
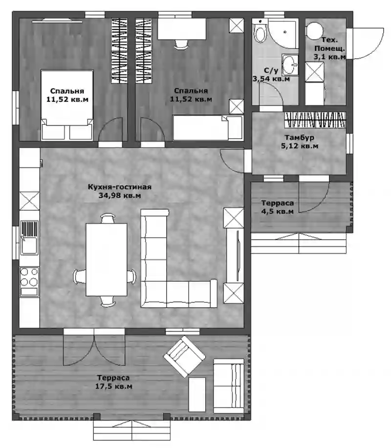
Коттеджный поселок комфорт-класса включает 114 участков с возможностью строительства домов по разным технологиям: кирпичной, каркасной, газобетонной или модульной. Фасады выполнены в комбинированной отделке — дерево, облицовочный кирпич, профлист. В зависимости от проекта в домах предусмотрены стандартные, увеличенные, панорамные окна и окна в ванных комнатах. Высота потолков — 3 метра. На участках возможно строительство типовых домов от застройщика или реализация индивидуального проекта.
Покупателям доступны участки с подрядом и без него, а также два формата отделки: теплый контур и white box. В теплый контур входит фундамент, стены, утепление, кровля, окна, двери, заведенные коммуникации, терраса и лестница (при наличии второго этажа). В отделке white box дополнительно выполняется штукатурка, стяжка пола, монтаж теплых полов, разводка инженерных систем, установка котельного оборудования, монтаж электрики, обвязка систем отопления и водоснабжения. Все дома подключены к электричеству и воде, газ проходит по границе участка.
На территории комплекса предусмотрены детская и спортивная площадки, зоны отдыха и прогулочные маршруты. Территория поселка охраняется, въезд осуществляется через КПП. Приватный квартал поселка включает 14 участков, отделенных лесом с четырех сторон — каждый наделен дополнительной степенью уединения и площадью от 10,5 до 13,1 сотки.
Поселок расположен на берегу Учинского водохранилища, в 20 км от МКАД. До центра Москвы — около 40 минут транспортом. В 15 минутах транспортом находится город Пушкино с развитой инфраструктурой: магазины, школы, фитнес-клубы, салоны, медучреждения. Рядом расположены конный клуб, лесной массив и места для рыбалки. Район отличается тишиной, чистотой воздуха и отсутствием промышленных объектов.
