Жилой комплекс состоит из 3 корпусов переменной этажности от 3 до 28 этажей, объединенных общим стилобатом. Архитектурный проект был создан бюро Wall. Здания имеют ступенчатую форму, а фасады выполнены в светлых и зеленых тонах. Комплекс располагает единым гранд-лобби, оборудованным мягкой мебелью, зоной ресепшн, почтовой зоной и постаматами. Также здесь есть коворкинг-зона, многофункциональный интерактивный зал и детская игровая комната. На первом этаже каждого здания предусмотрены колясочные и комната матери и ребенка.
В зданиях установлены высокоскоростные современные лифты, а также выделенный сервисный лифт с организованной зоной загрузки из паркинга.
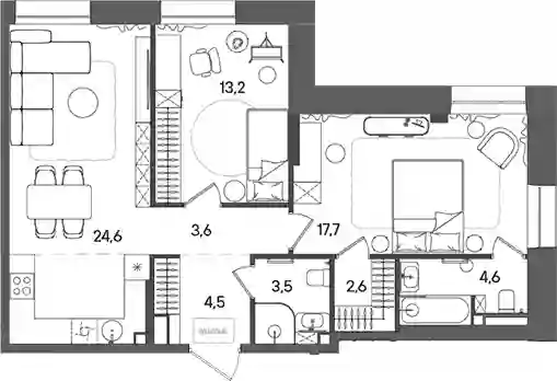
В жилом комплексе представлены планировки как классического формата, так и уникальные лоты: двухуровневые квартиры, просторные угловые кухни-столовые, планировки с мастер-спальней, студии с балконами и квартиры с террасами. Есть планировки, в которых предусмотрено окно в ванной комнате. А также видовые квартиры с видами на парк «Зеленая река» и Москва-Сити. Все квартиры сдаются без отделки, с высокими потолками от 3 метров и увеличенными окнами.
Во дворе комплекса созданы комфортные условия для работы и отдыха: здесь есть детские площадки, прогулочные и спортивные зоны, а также инфраструктура для домашних животных. В проекте предусмотрены общественная терраса и другие пространства, где можно работать или отдыхать. Для автовладельцев предусмотрен двухуровневый подземный паркинг.
Жилой комплекс расположен в районе Лефортово, на улице Золоторожский Вал, на границе Центрального административного округа и Таганского района. Рядом с ним находятся парк «Зеленая река», жилой комплекс «Символ» и Деловой центр «STONE Римская», в котором есть офисные пространства и дополнительная торговая инфраструктура. Метро «Римская» и «Площадь Ильича» в 5 минутах пешком.
