Жилой комплекс «Шолохово» — современный малоэтажный проект, возведенный по технологии газо-бетонного строительства с фасадами из штукатурки. Первые этажи отведены под коммерческие помещения.
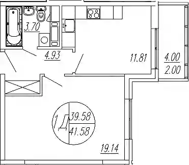
В проекте представлено большое количество планировочных решений — от студий до просторных 3х-комнатных квартир с возможностью ремонта «под ключ».
Территория комплекса благоустроена — имеется уютный зеленый двор с детской площадкой, рядом - детский сад на 120 мест, кафе, магазины.
Жилой комплекс расположен в окружении лесного массива, в 20 минутах езды от МКАД. В районе имеется все необходимое, в пешей доступности продовольственные магазины, образовательные и медицинские учреждения, аптеки и рестораны.
