Жилой комплекс бизнес-класса состоит из 2 корпусов: 35-этажная башня и 2-секционный дом переменной этажности высотой 19–20 этажей. Здания возводятся по монолитной технологии, вентилируемые фасады облицованы керамогранитом. В архитектуре зданий гармонично сочетаются современные геометрические формы и волнообразные линии фасадов. Для удобства жильцов предусмотрены входные группы, расположенные на уровне земли, без ступеней. Также в проекте есть пассажирские и грузовые лифты, и 2-уровневый подземный паркинг.
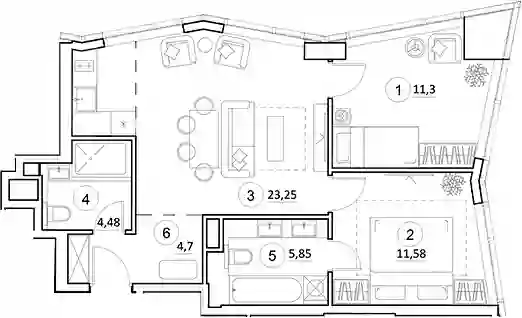
В жилом комплексе представлен широкий выбор планировочных решений — от уютных студий площадью от 28 кв. м до просторных квартир с 4 спальнями площадью 95 кв. м, включая эргономичные евроформаты. В помещениях установлены панорамные окна, высота потолков варьируется от 2,85 до 3,4 метров. Квартиры идут без стен, что дает владельцам возможность реализовать индивидуальные дизайнерские решения.
На территории комплекса представлены ресепшен с консьерж-сервисом, дизайнерские входные группы, благоустроенный двор с ландшафтным озеленением, детскими и спортивными площадками. В здании оборудованы колясочные и лапомойки, а в квартирах установлена система умного дома. Безбарьерная среда делает пространство доступным для всех категорий жителей.
Проект расположен в Можайском районе. В пределах 10–15 минут пешком есть вся необходимая инфраструктура: школы, детские сады, медицинские учреждения, парки, а также торговый центр Вегас. До центра Москвы можно добраться за 20 минут транспортом, а до Арбата — за 30 минут. В 10 минутах пешком находится МЦД Сетунь.
