Нарисуйте на карте нужную область
1 / 24
ЖК Горки Марусино Корпус 9
Москва, пгт Марусино
Некрасовка
15 мин
Сдача
3 кв. 2027 г.
Застройщик
СЗ Каравелла
Показать минимальную цену
от 4 508 450 ₽
Студии
1-комнатные квартиры
2-комнатные квартиры
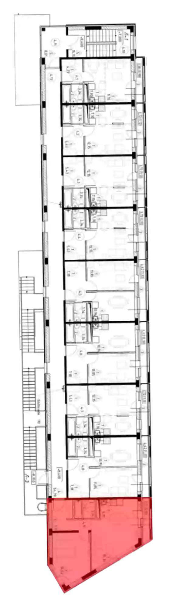
2-к.квартира, 46.52 м², 4 эт.
635318. Горки Марусино Корпус 9
Цена
7 660 800
С нами надежно. Мы совершаем все сделки в офисе по ценам и на условиях застройщика без комиссии
Оставить заявку на квартиру
Характеристики
- Количество комнат 2
- Общая площадь 46.52 м²
- Стоимость за м² 164 678
- Жилая площадь 14.62 м²
- Площадь кухни 21.45 м²
- Этаж 4
- Этажей в доме 4
- Тип санузла Совмещенный
- Наличие балкона/лоджии есть
- Тип отделки Без отделки
- Высота потолков 2.8 м




















































