Жилой комплекс «1-й Нагатинский» — это 3 кирпично-монолитных корпуса высотой от 24 до 28 этажей. В оформлении стен используется современный навесной вентилируемый фасад из керамогранита. В лобби выполнена дизайнерская отделка и установлены современные скоростные лифты.
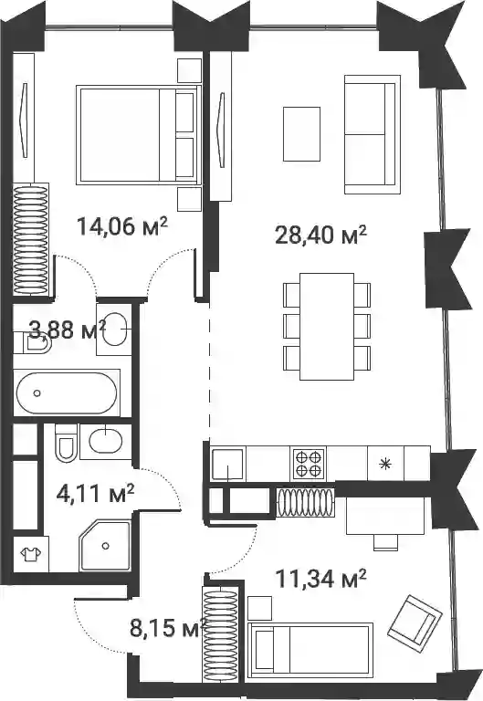
В проекте «1-й Нагатинский» предложено множество планировочных решений, в наличии студии и европланировки. Всего разработано более, чем 100 планировочных решений. Сдаются они с подчистовой отделкой, высотой потолков 3,15 метров и панорамными окнами. Из части квартир открывается прекрасный вид на реку.
По всей территории жилого комплекса «1-й Нагатинский» есть Wi-fi. В закрытом дворе предусмотрена круглосуточная охрана, сделан ландшафтный дизайн, установлены детские и спортивные площадки, организованы места для отдыха. На территории проекта находятся детский сад и школа. Для владельцев автомобилей предусмотрен подземный паркинг, в котором спроектированы кладовые помещения.
Жилой комплекс «1-й Нагатинский» находится в районе Нагатино-Садовники. В двух минутах пешком расположены благоустроенные набережные: Нагатинская, Новоданиловская и Набережная Марка Шагала. Напротив ЖК спроектирован новый мультифункциональный ТРЦ с бассейном и кинотеатрами. Рядом с комплексом находятся магазины, кафе, салоны красоты, детские сады, школы, медицинские учреждения, батутный парк, скейт-парк, всесезонный горнолыжный комплекс и картинг. До метро «Нагатинская» 5 минут пешком.
