
Загородный апарт-отель расположен на территории площадью 7 га и представляет собой коллекцию корпусов на 250 номеров. Здания возведены по монолитной технологии из газобетона, фасады облицованы панелями. Дома выполнены в современной стилистике и гармонично вписаны в природный ландшафт.
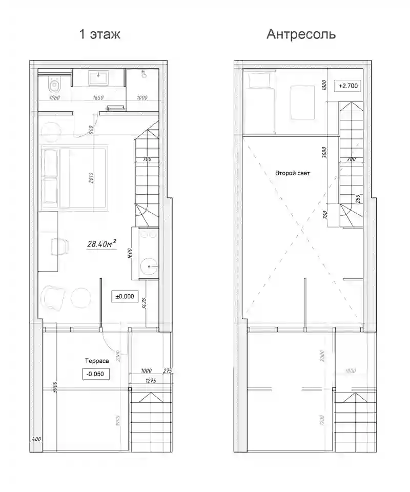
В каждом корпусе размещено по 10 типовых двухуровневых апартаментов площадью 50 кв. м. Все помещения имеют панорамные окна и вид на лес. Высота потолков варьируется от 2,7 до 5 м. Апартаменты передаются под ключ — с подготовкой стен и пола, разводкой коммуникаций, установкой мебели, бытовой техники и текстиля. Каждый номер полностью готов к проживанию и оснащен всем необходимым.
Территория комплекса благоустроена, выполнен ландшафтный дизайн, предусмотрены спа-зона, открытый бассейн, фитнес-зал, конференц-зал, фирменный ресторан с лаунж-баром, прогулочный парк с игровой зоной, спортивные и детские площадки. Для автомобилей оборудован охраняемый паркинг на 120 машиномест. За порядком следит собственная управляющая компания.
Проект находится в 90 км от МКАД по Минскому шоссе, в окружении густого лесного массива Наро-Фоминского городского округа Московской области, на территории управления Верея. Локация отличается тишиной, чистым воздухом и наличием рекреационных зон. До ТТК можно добраться за 1 час 30 минут транспортом, а до центра Москвы — за 1 час 40 минут.
