











Проект представляет собой малоэтажный жилой комплекс комфорт-класса, выполненный по кирпичной технологии с фасадом из облицовочного кирпича. В домах установлены грузовые лифты для комфорта передвижения по этажам.
В комплексе предлагаются квартиры с 1–2 комнатами в евроформате с кухней-нишей, а также двухуровневые квартиры с террасой на крыше. Высота потолков в стандартных квартирах составляет 2,68 м, в двухуровневых — 4,78 м. В помещениях установлены увеличенные окна. Жилье передается без межкомнатных перегородок, но с капитальными стенами, входной дверью и остеклением. Подведены коммуникации, электричество заведено до распределительного щитка, установлен котел и радиатор.
На территории комплекса расположены муниципальные школа и детский сад, поликлиника. Первые этажи зданий отведены под коммерческие помещения. Во дворах обустроены детские и спортивные площадки, а также зоны отдыха. Применена система контроля и управления доступом, интеллектуальное видеонаблюдение. Предусмотрены стоянки для автомобилей и всесезонное благоустройство.
Проект находится в Наро-Фоминском городском округе, в Апрелевке, рядом с лесом и набережной. На территории доступны магазины, кафе, аптеки, пункты выдачи, салоны красоты, фитнес-клубы и торговые центры. В 10 минутах транспортом расположен парк Дубки. Локация имеет удобный выезд на Киевское шоссе в 900 м. Дорога до аэропорта Внуково занимает 20 минут транспортом, до МКАД — около 30 минут, до центра Москвы — 55 минут.

Проект «The Lake» — это 1 каскадный клубный дом высотой от 10 до 16 этажей. Московское архитектурное бюро NOWADAYS office разработало архитектурную концепцию. В комплексе предусмотрено гранд-лобби с высокими 5-и метровыми потолками, витражными окнами, зонами отдыха, стойкой ресепшен и отдельной почтовой комнатой. Лобби спроектировано бюро ECUS.
В клубном доме «The Lake» предложено множество планировочных решений европейского формата. Сдаются они без стен и с подчистовой отделкой, высотой потолков от 3,25 до 4,1 метра, увеличенными окнами, с системами «Умный дом» и «Умная квартира».
Благоустройством территории «The Lake» занималось Бюро Utro. Так полезная площадь по сути небольшого земельного участка была увеличена за счет «парящего дворика» на крыше одноэтажного строения с коммерческими помещениями. Здесь располагаются игровое пространство и зоны отдыха. Приватный внутренний двор буквально «стекает» к набережной и парку. На спуске предусмотрен деревянный настил-амфитеатр, плавный пандус и несколько смотровых балконов. В здании спроектированы ко-воркинг и детская игровая комната. Для владельцев автомобилей предусмотрен подземный паркинг.
Клубный дом «The Lake» расположен в Капустинском парке у пруда. Всего в 15 минутах пешком располагаются магазины, салоны красоты, кафе, рестораны, детские сады, школы и медицинские учреждения. Метро «Свиблово» находится всего в 5 минутах пешком.
Проект «Парк Апрель» представляет собой малоэтажные дома и таунхаусы с собственным участком. При строительстве зданий использованы безопасные материалы от европейских производителей: австрийские керамические блоки Wienerberger, бельгийский облицовочный кирпич ручной формовки, цементно-песчаная черепица BRAAS.
В жилом комплексе «Парк Апрель» представлена уникальная линейка квартир в малоэтажных корпусах и трехуровневые таунхаусы с собственным участком. В проекте предложены Garden Flat на первом этаже с выходом на придомовую территорию, а на верхних этажах расположены квартиры формата Sky Loft с панорамными окнами и высокими потолками до 7,2 метров и выходом на кровлю. Таунхаусы есть односторонние и двусторонние со всеми коммуникациями. В них высокие потолки и панорамные окна. Вся территория ЖК площадью более 23 га огорожена, на въезде установлен КПП. За безопасность поселка отвечает специализированное охранное агентство.
Дворы малоэтажных корпусов оборудованы детскими площадками, закрыты от въезда автотранспорта и представляют собой уютные полузамкнутые пространства. Каждый из них благоустроен в стиле определенного музыкального джазового инструмента. Под внутреннюю инфраструктуру в проекте отведено более 6 600 кв. метров. На территории комплекса расположены детский сад и школа, торговый центр, игровые комплексы, спортивные площадки, прогулочные зоны и велодорожки. Украшением поселка стал центральный пешеходный бульвар с арт-объектами, площадками для игр в петанк и настольный теннис, театральной сценой, мобильными библиотеками.
Жилой комплекс «Парк Апрель» находится в живописной части города Апрелевка, в 29 км от МКАД по Киевскому шоссе. Квартал окружен лесом и соседствует с престижными стародачными поселками Фрунзевец и ГАБТ. В Апрелевке находится 6 муниципальных общеобразовательных школ, в том числе с углубленным изучением иностранных языков, спортивная школа, множество детских садов. В 10 минутах езды расположен новый торговый центр «Мелодия» и Дворец спорта «Мелодия».
Проект «Парк Апрель» представляет собой малоэтажные дома и таунхаусы с собственным участком. При строительстве зданий использованы безопасные материалы от европейских производителей: австрийские керамические блоки Wienerberger, бельгийский облицовочный кирпич ручной формовки, цементно-песчаная черепица BRAAS.
В жилом комплексе «Парк Апрель» представлена уникальная линейка квартир в малоэтажных корпусах и трехуровневые таунхаусы с собственным участком. В проекте предложены Garden Flat на первом этаже с выходом на придомовую территорию, а на верхних этажах расположены квартиры формата Sky Loft с панорамными окнами и высокими потолками до 7,2 метров и выходом на кровлю. Таунхаусы есть односторонние и двусторонние со всеми коммуникациями. В них высокие потолки и панорамные окна. Вся территория ЖК площадью более 23 га огорожена, на въезде установлен КПП. За безопасность поселка отвечает специализированное охранное агентство.
Дворы малоэтажных корпусов оборудованы детскими площадками, закрыты от въезда автотранспорта и представляют собой уютные полузамкнутые пространства. Каждый из них благоустроен в стиле определенного музыкального джазового инструмента. Под внутреннюю инфраструктуру в проекте отведено более 6 600 кв. метров. На территории комплекса расположены детский сад и школа, торговый центр, игровые комплексы, спортивные площадки, прогулочные зоны и велодорожки. Украшением поселка стал центральный пешеходный бульвар с арт-объектами, площадками для игр в петанк и настольный теннис, театральной сценой, мобильными библиотеками.
Жилой комплекс «Парк Апрель» находится в живописной части города Апрелевка, в 29 км от МКАД по Киевскому шоссе. Квартал окружен лесом и соседствует с престижными стародачными поселками Фрунзевец и ГАБТ. В Апрелевке находится 6 муниципальных общеобразовательных школ, в том числе с углубленным изучением иностранных языков, спортивная школа, множество детских садов. В 10 минутах езды расположен новый торговый центр «Мелодия» и Дворец спорта «Мелодия».
Проект «Парк Апрель» представляет собой малоэтажные дома и таунхаусы с собственным участком. При строительстве зданий использованы безопасные материалы от европейских производителей: австрийские керамические блоки Wienerberger, бельгийский облицовочный кирпич ручной формовки, цементно-песчаная черепица BRAAS.
В жилом комплексе «Парк Апрель» представлена уникальная линейка квартир в малоэтажных корпусах и трехуровневые таунхаусы с собственным участком. В проекте предложены Garden Flat на первом этаже с выходом на придомовую территорию, а на верхних этажах расположены квартиры формата Sky Loft с панорамными окнами и высокими потолками до 7,2 метров и выходом на кровлю. Таунхаусы есть односторонние и двусторонние со всеми коммуникациями. В них высокие потолки и панорамные окна. Вся территория ЖК площадью более 23 га огорожена, на въезде установлен КПП. За безопасность поселка отвечает специализированное охранное агентство.
Дворы малоэтажных корпусов оборудованы детскими площадками, закрыты от въезда автотранспорта и представляют собой уютные полузамкнутые пространства. Каждый из них благоустроен в стиле определенного музыкального джазового инструмента. Под внутреннюю инфраструктуру в проекте отведено более 6 600 кв. метров. На территории комплекса расположены детский сад и школа, торговый центр, игровые комплексы, спортивные площадки, прогулочные зоны и велодорожки. Украшением поселка стал центральный пешеходный бульвар с арт-объектами, площадками для игр в петанк и настольный теннис, театральной сценой, мобильными библиотеками.
Жилой комплекс «Парк Апрель» находится в живописной части города Апрелевка, в 29 км от МКАД по Киевскому шоссе. Квартал окружен лесом и соседствует с престижными стародачными поселками Фрунзевец и ГАБТ. В Апрелевке находится 6 муниципальных общеобразовательных школ, в том числе с углубленным изучением иностранных языков, спортивная школа, множество детских садов. В 10 минутах езды расположен новый торговый центр «Мелодия» и Дворец спорта «Мелодия».
Проект «Sydney Prime» — это квартал на территории 20 Га, включающий в себя 9 корпусов разной этажности: от 8 до 14 этажей. Дизайн квартала разрабатывал Ким Ен Гир. В оформлении наружных стен зданий используется медь, клинкерный кирпич, многослойные фасады. Входные группы корпусов имеют общий дизайн-код, в лобби сделана дизайнерская отделка от Олега Клодта и установлены скоростные бесшумные лифты.
В проекте «Sydney Prime» предложено 53 вида планировок, можно подобрать квартиру с мастер-спальней или двухуровневый пентхаус, большую кухню-гостиную, просторные помещения для хранения вещей или ванную с окном. Каскадное расположение домов обеспечивает прекрасные панорамные виды на реки, Филевский парк и на «Москва-Сити». На каждом этаже насчитывается не более 4 квартир. Сдаются они в виде свободной планировки, с подчистовой отделкой и высотой потолков от 3,6 метров.
Во дворах «Sydney Prime», спроектированных Хироки Мадзуро, сделан разноуровневый ландшафт с холмами, горками, высокими деревьями и кустарниками. В проекте предусмотрены игровые зоны и площадки для отдыха, оборудованы лужайки для спорта и спроектирован пруд с деревянным настилом. Размещение дворового пространства на стилобате создает камерную атмосферу, а для владельцев автомобилей предусмотрен подземный двухуровневый паркинг с прямым доступом на лифте.
Проект «Sydney Prime» располагается на первой береговой линии Москвы-реки в районе Хорошево-Мневники. В ближайшем окружении находится 7 природных парков и прямой выход на благоустроенную набережную Москвы-реки.
В основу архитектурной концепции «Rotterdam» легла тема реки, а формообразующим элементом выступила морская раковина, а именно раковина Наутилиуса, символизирующая золотое сечение. Идея фасадов заключается в динамике диагональных линий с эффектом закручивания вокруг своей оси. Одна из пяти башен является маяком и отличается от остальных максимальной высотой в 29 этажей и ярким медным цветом. Большая площадь остекления придает легкость архитектурному облику жилого комплекса, а облицовочный материал разных фактур и оттенков под медь, перламутр, серебро отмечает динамику и индивидуальность объекта.
В жилом комплексе «Rotterdam» предложено множество планировочных решений: в наличии квартиры, как классического типа, так и европланировки. Квартиры сдаются с подчистовой и чистовой отделкой, высотой потолков от 3 метров, а из панорамных окон открывается вид на реку.
В основе благоустройства ЖК «Rotterdam» — образ природы Голландии. Особенностью проекта является сеть велодорожек по всей территории, которая обеспечивает быстрый доступ к набережной, остановкам МЦК и трамвая. Для комфорта пользователей рядом с корпусами расположены крытые велопарковки с зарядками для электротранспорта. Активные шумные площадки, sporthub и playhub — вынесены за пределы внутренних дворов, где размещены тихие игровые пространства для детей, места для работы, площадки для йоги.
ЖК «Rotterdam» расположен на набережной Москва-реки в районе Нагатино-Садовники. В окружении проекта — парки, торговые и деловые центры, школы и детские сады, а также большой спортивный кластер. Метро «Нагатинская» находится в 5 минутах пешком.
В основу архитектурной концепции «Rotterdam» легла тема реки, а формообразующим элементом выступила морская раковина, а именно раковина Наутилиуса, символизирующая золотое сечение. Идея фасадов заключается в динамике диагональных линий с эффектом закручивания вокруг своей оси. Одна из пяти башен является маяком и отличается от остальных максимальной высотой в 29 этажей и ярким медным цветом. Большая площадь остекления придает легкость архитектурному облику жилого комплекса, а облицовочный материал разных фактур и оттенков под медь, перламутр, серебро отмечает динамику и индивидуальность объекта.
В жилом комплексе «Rotterdam» предложено множество планировочных решений: в наличии квартиры, как классического типа, так и европланировки. Квартиры сдаются с подчистовой и чистовой отделкой, высотой потолков от 3 метров, а из панорамных окон открывается вид на реку.
В основе благоустройства ЖК «Rotterdam» — образ природы Голландии. Особенностью проекта является сеть велодорожек по всей территории, которая обеспечивает быстрый доступ к набережной, остановкам МЦК и трамвая. Для комфорта пользователей рядом с корпусами расположены крытые велопарковки с зарядками для электротранспорта. Активные шумные площадки, sporthub и playhub — вынесены за пределы внутренних дворов, где размещены тихие игровые пространства для детей, места для работы, площадки для йоги.
ЖК «Rotterdam» расположен на набережной Москва-реки в районе Нагатино-Садовники. В окружении проекта — парки, торговые и деловые центры, школы и детские сады, а также большой спортивный кластер. Метро «Нагатинская» находится в 5 минутах пешком.
В основу архитектурной концепции «Rotterdam» легла тема реки, а формообразующим элементом выступила морская раковина, а именно раковина Наутилиуса, символизирующая золотое сечение. Идея фасадов заключается в динамике диагональных линий с эффектом закручивания вокруг своей оси. Одна из пяти башен является маяком и отличается от остальных максимальной высотой в 29 этажей и ярким медным цветом. Большая площадь остекления придает легкость архитектурному облику жилого комплекса, а облицовочный материал разных фактур и оттенков под медь, перламутр, серебро отмечает динамику и индивидуальность объекта.
В жилом комплексе «Rotterdam» предложено множество планировочных решений: в наличии квартиры, как классического типа, так и европланировки. Квартиры сдаются с подчистовой и чистовой отделкой, высотой потолков от 3 метров, а из панорамных окон открывается вид на реку.
В основе благоустройства ЖК «Rotterdam» — образ природы Голландии. Особенностью проекта является сеть велодорожек по всей территории, которая обеспечивает быстрый доступ к набережной, остановкам МЦК и трамвая. Для комфорта пользователей рядом с корпусами расположены крытые велопарковки с зарядками для электротранспорта. Активные шумные площадки, sporthub и playhub — вынесены за пределы внутренних дворов, где размещены тихие игровые пространства для детей, места для работы, площадки для йоги.
ЖК «Rotterdam» расположен на набережной Москва-реки в районе Нагатино-Садовники. В окружении проекта — парки, торговые и деловые центры, школы и детские сады, а также большой спортивный кластер. Метро «Нагатинская» находится в 5 минутах пешком.
Проект «Архитектор» включает в себя 3 жилых корпуса с переменной этажностью от 28 до 47 этажей. Фасады зданий представляют собой объемные геометрические панели разных цветов. В проекте реализована система «умный дом».
Всего запроектирован 64 типа планировок: в наличии квартиры, как классического типа, так и европланировки. Также здесь представлено множество нестандартных решений: квартиры с потолками 3 м, пентхаусы, двухуровневые квартиры, квартиры с мастер-спальнями, со входом в отдельную гардеробную и ванную комнату, квартиры с постирочными и кладовыми. Жилье сдается без отделки, с подчистовой отделкой и с чистовой дизайнерской отделкой в двух стилях.
На первых этажах комплекса предусмотрены фитнес-студия, ресторан и коворкинг. Внутренний двор без машин представляет двухуровневое пространство. Для детей отведен нижний уровень, а верхний уровень предназначен для досуга взрослых с местами для спорта, занятий йогой, шезлонгами и деревянными террасами. А ночью во дворе предусмотрен свето-дизайн.
Жилой комплекс «Архитектор» находится в 500 метрах от Юго-Западного лесопарка. За 20 минут можно дойти до Воронцовского парка. В радиусе 3 километров еще три крупные зеленые зоны — Тропаревский лесопарк, Битцевский лес и ландшафтный заказник «Теплый стан». Метро «Калужская» находится в 10 минутах пешком.
Проект «Архитектор» включает в себя 3 жилых корпуса с переменной этажностью от 28 до 47 этажей. Фасады зданий представляют собой объемные геометрические панели разных цветов. В проекте реализована система «умный дом».
Всего запроектирован 64 типа планировок: в наличии квартиры, как классического типа, так и европланировки. Также здесь представлено множество нестандартных решений: квартиры с потолками 3 м, пентхаусы, двухуровневые квартиры, квартиры с мастер-спальнями, со входом в отдельную гардеробную и ванную комнату, квартиры с постирочными и кладовыми. Жилье сдается без отделки, с подчистовой отделкой и с чистовой дизайнерской отделкой в двух стилях.
На первых этажах комплекса предусмотрены фитнес-студия, ресторан и коворкинг. Внутренний двор без машин представляет двухуровневое пространство. Для детей отведен нижний уровень, а верхний уровень предназначен для досуга взрослых с местами для спорта, занятий йогой, шезлонгами и деревянными террасами. А ночью во дворе предусмотрен свето-дизайн.
Жилой комплекс «Архитектор» находится в 500 метрах от Юго-Западного лесопарка. За 20 минут можно дойти до Воронцовского парка. В радиусе 3 километров еще три крупные зеленые зоны — Тропаревский лесопарк, Битцевский лес и ландшафтный заказник «Теплый стан». Метро «Калужская» находится в 10 минутах пешком.
Жилой комплекс «Настроение» представляет собой четыре корпуса переменной этажности от 8 до 22 этажей. Перепады высотности продуманы так, чтобы обеспечивать жителям верхних этажей вид на парк «Лосиный остров». На первых этажах разместятся коммерческие помещения, колясочные и мойки для лап питомцев.
Проектом предусмотрено строительство четырех корпусов на 1469 квартир более 30 видов планировок, включая уникальные авторские форматы: двухуровневые квартиры, квартиры с увеличенной кухней, двухкомнатные квартиры с угловым окном и французским балконом. Квартиры передаются дольщикам без отделки или с чистовой отделкой.
Проектом предусмотрены подземный паркинг на 553 места и гостевой – 52 места. Первые этажи комплекса отведены под супермаркеты, магазины, кафе, точки бытовых услуг, салоны красоты иаптеки. На придомовой территории установлены детские и спортивные площадки для разных возрастов, предусмотрены зеленые зоны, а также места для прогулок и отдыха.
ЖК «Настроение» находится на границе Ярославского и Ростокинского районов. В пяти минутах пешком находится крупнейший парк Москвы - «Лосиный остров». Так же в пешей доступности расположены школы, детские сады, магазины, отделения почты и банков. Выезд на МКАД в пяти минутах транспортом, метро «Ростокино» - 10 минут пешком.
Проект «Sydney City» включает в себя 33 жилых корпуса переменной этажности. Каскадное расположение домов позволяет максимально обеспечить квартиры панорамными видами на центр города и Москва-сити. В основе проекта концепция Well-being, которая заботится о благополучии жильцов. Места общего пользования выполнены по индивидуальным дизайн проектам.
Покупателям в ЖК «Sydney City» предложено множество планировочных решений: в наличии квартиры, как классического типа, так и европланировки. Они сдаются без отделки, с подчистовой отделкой White box или с одним из 8 вариантов чистовой отделки от дизайн-бюро класса де-люкс. Во всех помещениях предусмотрена система «Умная квартира» для управления всеми приборами, электрикой и светом.
Комплекс имеет собственную инфраструктуру: спортивные площадки, студии, SPA и медицинские учреждения, кафе и магазины. Предусмотрен выход на благоустроенную набережную Москва-реки.
ЖК находится в районе Хорошево-Мневниках на улице Шеногина. В пешей доступности находится 7 природных парков. Метро «Шелепиха» находится в 20 минутах пешком от жилого квартала.
Проект «Sydney City» включает в себя 33 жилых корпуса переменной этажности. Каскадное расположение домов позволяет максимально обеспечить квартиры панорамными видами на центр города и Москва-сити. В основе проекта концепция Well-being, которая заботится о благополучии жильцов. Места общего пользования выполнены по индивидуальным дизайн проектам.
Покупателям в ЖК «Sydney City» предложено множество планировочных решений: в наличии квартиры, как классического типа, так и европланировки. Они сдаются без отделки, с подчистовой отделкой White box или с одним из 8 вариантов чистовой отделки от дизайн-бюро класса де-люкс. Во всех помещениях предусмотрена система «Умная квартира» для управления всеми приборами, электрикой и светом.
Комплекс имеет собственную инфраструктуру: спортивные площадки, студии, SPA и медицинские учреждения, кафе и магазины. Предусмотрен выход на благоустроенную набережную Москва-реки.
ЖК находится в районе Хорошево-Мневниках на улице Шеногина. В пешей доступности находится 7 природных парков. Метро «Шелепиха» находится в 20 минутах пешком от жилого квартала.
Проект «Sydney City» включает в себя 33 жилых корпуса переменной этажности. Каскадное расположение домов позволяет максимально обеспечить квартиры панорамными видами на центр города и Москва-сити. В основе проекта концепция Well-being, которая заботится о благополучии жильцов. Места общего пользования выполнены по индивидуальным дизайн проектам.
Покупателям в ЖК «Sydney City» предложено множество планировочных решений: в наличии квартиры, как классического типа, так и европланировки. Они сдаются без отделки, с подчистовой отделкой White box или с одним из 8 вариантов чистовой отделки от дизайн-бюро класса де-люкс. Во всех помещениях предусмотрена система «Умная квартира» для управления всеми приборами, электрикой и светом.
Комплекс имеет собственную инфраструктуру: спортивные площадки, студии, SPA и медицинские учреждения, кафе и магазины. Предусмотрен выход на благоустроенную набережную Москва-реки.
ЖК находится в районе Хорошево-Мневниках на улице Шеногина. В пешей доступности находится 7 природных парков. Метро «Шелепиха» находится в 20 минутах пешком от жилого квартала.
Проект «Sydney City» включает в себя 33 жилых корпуса переменной этажности. Каскадное расположение домов позволяет максимально обеспечить квартиры панорамными видами на центр города и Москва-сити. В основе проекта концепция Well-being, которая заботится о благополучии жильцов. Места общего пользования выполнены по индивидуальным дизайн проектам.
Покупателям в ЖК «Sydney City» предложено множество планировочных решений: в наличии квартиры, как классического типа, так и европланировки. Они сдаются без отделки, с подчистовой отделкой White box или с одним из 8 вариантов чистовой отделки от дизайн-бюро класса де-люкс. Во всех помещениях предусмотрена система «Умная квартира» для управления всеми приборами, электрикой и светом.
Комплекс имеет собственную инфраструктуру: спортивные площадки, студии, SPA и медицинские учреждения, кафе и магазины. Предусмотрен выход на благоустроенную набережную Москва-реки.
ЖК находится в районе Хорошево-Мневниках на улице Шеногина. В пешей доступности находится 7 природных парков. Метро «Шелепиха» находится в 20 минутах пешком от жилого квартала.
Проект «Sydney City» включает в себя 33 жилых корпуса переменной этажности. Каскадное расположение домов позволяет максимально обеспечить квартиры панорамными видами на центр города и Москва-сити. В основе проекта концепция Well-being, которая заботится о благополучии жильцов. Места общего пользования выполнены по индивидуальным дизайн проектам.
Покупателям в ЖК «Sydney City» предложено множество планировочных решений: в наличии квартиры, как классического типа, так и европланировки. Они сдаются без отделки, с подчистовой отделкой White box или с одним из 8 вариантов чистовой отделки от дизайн-бюро класса де-люкс. Во всех помещениях предусмотрена система «Умная квартира» для управления всеми приборами, электрикой и светом.
Комплекс имеет собственную инфраструктуру: спортивные площадки, студии, SPA и медицинские учреждения, кафе и магазины. Предусмотрен выход на благоустроенную набережную Москва-реки.
ЖК находится в районе Хорошево-Мневниках на улице Шеногина. В пешей доступности находится 7 природных парков. Метро «Шелепиха» находится в 20 минутах пешком от жилого квартала.
Проект «Sydney City» включает в себя 33 жилых корпуса переменной этажности. Каскадное расположение домов позволяет максимально обеспечить квартиры панорамными видами на центр города и Москва-сити. В основе проекта концепция Well-being, которая заботится о благополучии жильцов. Места общего пользования выполнены по индивидуальным дизайн проектам.
Покупателям в ЖК «Sydney City» предложено множество планировочных решений: в наличии квартиры, как классического типа, так и европланировки. Они сдаются без отделки, с подчистовой отделкой White box или с одним из 8 вариантов чистовой отделки от дизайн-бюро класса де-люкс. Во всех помещениях предусмотрена система «Умная квартира» для управления всеми приборами, электрикой и светом.
Комплекс имеет собственную инфраструктуру: спортивные площадки, студии, SPA и медицинские учреждения, кафе и магазины. Предусмотрен выход на благоустроенную набережную Москва-реки.
ЖК находится в районе Хорошево-Мневниках на улице Шеногина. В пешей доступности находится 7 природных парков. Метро «Шелепиха» находится в 20 минутах пешком от жилого квартала.
Проект «Sydney City» включает в себя 33 жилых корпуса переменной этажности. Каскадное расположение домов позволяет максимально обеспечить квартиры панорамными видами на центр города и Москва-сити. В основе проекта концепция Well-being, которая заботится о благополучии жильцов. Места общего пользования выполнены по индивидуальным дизайн проектам.
Покупателям в ЖК «Sydney City» предложено множество планировочных решений: в наличии квартиры, как классического типа, так и европланировки. Они сдаются без отделки, с подчистовой отделкой White box или с одним из 8 вариантов чистовой отделки от дизайн-бюро класса де-люкс. Во всех помещениях предусмотрена система «Умная квартира» для управления всеми приборами, электрикой и светом.
Комплекс имеет собственную инфраструктуру: спортивные площадки, студии, SPA и медицинские учреждения, кафе и магазины. Предусмотрен выход на благоустроенную набережную Москва-реки.
ЖК находится в районе Хорошево-Мневниках на улице Шеногина. В пешей доступности находится 7 природных парков. Метро «Шелепиха» находится в 20 минутах пешком от жилого квартала.
Жилой комплекс «Жаворонки клаб» — современный 4-х этажный проект, возведенный по технологии кирпичного строительства.
В жилом комплексе представлено множество планировочных решений — от 1-комнатных до 3х-комнатных квартир. Лоты предоставляются как с подчистовой, так и с чистовой отделкой. Особенностью проекта являются 3 формата квартир: двухуровневые квартиры с отдельным выходом на кровлю, квартиры с собственным входом через улицу, на придомовой территории есть возможность организовать террасу и квартиры для работы на дому, где можно спланировать пространство, для разделения рабочей зоны и личной, чаще всего имеют 2 выхода на внутридворовую территорию и внешнюю сторону дома.
В жилом комплексе построен учебный кластер (школа и детский сад), отвечающий современным требованиям к гимназиям и школам с углубленным изучением предметов. Среди особенностей проекта школы: трансформируемые перегородки, магнитно-маркерные покрытия на стенах, многофункциональные подиумные конструкции, индивидуальные локеры с кодовыми замками, модульная и штабелируемая мебель, напольные покрытия с игровыми элементами. Наряду с обычными классами оборудованы специализированные лаборатории для естествознания, химии и физики, IT-полигон и робокласс.
Вдоль реки Незнайка размещен спортивный кластер с многофункциональными спортивными площадками и зоной воркаута, а также большой игровой хаб для разных возрастных категорий. Плейхаб рассчитан на длительное времяпрепровождение всей семьей. Игровые пространства перетекают в лаунж-пространства для взрослых.На другой стороне реки Незнайка, вблизи березовой и сиреневой рощи, в самом уютном и приватном месте, разместились беседки, предназначенные для досуга с близкими и с друзьями за уличным грилем или барбекю.
Жилой комплекс «Жаворонки клаб» — современный 4-х этажный проект, возведенный по технологии кирпичного строительства.
В жилом комплексе представлено множество планировочных решений — от 1-комнатных до 3х-комнатных квартир. Лоты предоставляются как с подчистовой, так и с чистовой отделкой. Особенностью проекта являются 3 формата квартир: двухуровневые квартиры с отдельным выходом на кровлю, квартиры с собственным входом через улицу, на придомовой территории есть возможность организовать террасу и квартиры для работы на дому, где можно спланировать пространство, для разделения рабочей зоны и личной, чаще всего имеют 2 выхода на внутридворовую территорию и внешнюю сторону дома.
В жилом комплексе построен учебный кластер (школа и детский сад), отвечающий современным требованиям к гимназиям и школам с углубленным изучением предметов. Среди особенностей проекта школы: трансформируемые перегородки, магнитно-маркерные покрытия на стенах, многофункциональные подиумные конструкции, индивидуальные локеры с кодовыми замками, модульная и штабелируемая мебель, напольные покрытия с игровыми элементами. Наряду с обычными классами оборудованы специализированные лаборатории для естествознания, химии и физики, IT-полигон и робокласс.
Вдоль реки Незнайка размещен спортивный кластер с многофункциональными спортивными площадками и зоной воркаута, а также большой игровой хаб для разных возрастных категорий. Плейхаб рассчитан на длительное времяпрепровождение всей семьей. Игровые пространства перетекают в лаунж-пространства для взрослых.На другой стороне реки Незнайка, вблизи березовой и сиреневой рощи, в самом уютном и приватном месте, разместились беседки, предназначенные для досуга с близкими и с друзьями за уличным грилем или барбекю.
Жилой комплекс «Жаворонки клаб» — современный 4-х этажный проект, возведенный по технологии кирпичного строительства.
В жилом комплексе представлено множество планировочных решений — от 1-комнатных до 3х-комнатных квартир. Лоты предоставляются как с подчистовой, так и с чистовой отделкой. Особенностью проекта являются 3 формата квартир: двухуровневые квартиры с отдельным выходом на кровлю, квартиры с собственным входом через улицу, на придомовой территории есть возможность организовать террасу и квартиры для работы на дому, где можно спланировать пространство, для разделения рабочей зоны и личной, чаще всего имеют 2 выхода на внутридворовую территорию и внешнюю сторону дома.
В жилом комплексе построен учебный кластер (школа и детский сад), отвечающий современным требованиям к гимназиям и школам с углубленным изучением предметов. Среди особенностей проекта школы: трансформируемые перегородки, магнитно-маркерные покрытия на стенах, многофункциональные подиумные конструкции, индивидуальные локеры с кодовыми замками, модульная и штабелируемая мебель, напольные покрытия с игровыми элементами. Наряду с обычными классами оборудованы специализированные лаборатории для естествознания, химии и физики, IT-полигон и робокласс.
Вдоль реки Незнайка размещен спортивный кластер с многофункциональными спортивными площадками и зоной воркаута, а также большой игровой хаб для разных возрастных категорий. Плейхаб рассчитан на длительное времяпрепровождение всей семьей. Игровые пространства перетекают в лаунж-пространства для взрослых.На другой стороне реки Незнайка, вблизи березовой и сиреневой рощи, в самом уютном и приватном месте, разместились беседки, предназначенные для досуга с близкими и с друзьями за уличным грилем или барбекю.
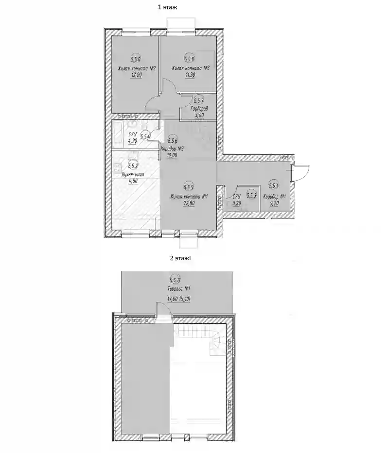
Проект представляет собой малоэтажный жилой комплекс комфорт-класса, выполненный по кирпичной технологии с фасадом из облицовочного кирпича. В домах установлены грузовые лифты для комфорта передвижения по этажам.
В комплексе предлагаются квартиры с 1–2 комнатами в евроформате с кухней-нишей, а также двухуровневые квартиры с террасой на крыше. Высота потолков в стандартных квартирах составляет 2,68 м, в двухуровневых — 4,78 м. В помещениях установлены увеличенные окна. Жилье передается без межкомнатных перегородок, но с капитальными стенами, входной дверью и остеклением. Подведены коммуникации, электричество заведено до распределительного щитка, установлен котел и радиатор.
На территории комплекса расположены муниципальные школа и детский сад, поликлиника. Первые этажи зданий отведены под коммерческие помещения. Во дворах обустроены детские и спортивные площадки, а также зоны отдыха. Применена система контроля и управления доступом, интеллектуальное видеонаблюдение. Предусмотрены стоянки для автомобилей и всесезонное благоустройство.
Проект находится в Наро-Фоминском городском округе, в Апрелевке, рядом с лесом и набережной. На территории доступны магазины, кафе, аптеки, пункты выдачи, салоны красоты, фитнес-клубы и торговые центры. В 10 минутах транспортом расположен парк Дубки. Локация имеет удобный выезд на Киевское шоссе в 900 м. Дорога до аэропорта Внуково занимает 20 минут транспортом, до МКАД — около 30 минут, до центра Москвы — 55 минут.
Проект представляет собой малоэтажный жилой комплекс комфорт-класса, выполненный по кирпичной технологии с фасадом из облицовочного кирпича. В домах установлены грузовые лифты для комфорта передвижения по этажам.
В комплексе предлагаются квартиры с 1–2 комнатами в евроформате с кухней-нишей, а также двухуровневые квартиры с террасой на крыше. Высота потолков в стандартных квартирах составляет 2,68 м, в двухуровневых — 4,78 м. В помещениях установлены увеличенные окна. Жилье передается без межкомнатных перегородок, но с капитальными стенами, входной дверью и остеклением. Подведены коммуникации, электричество заведено до распределительного щитка, установлен котел и радиатор.
На территории комплекса расположены муниципальные школа и детский сад, поликлиника. Первые этажи зданий отведены под коммерческие помещения. Во дворах обустроены детские и спортивные площадки, а также зоны отдыха. Применена система контроля и управления доступом, интеллектуальное видеонаблюдение. Предусмотрены стоянки для автомобилей и всесезонное благоустройство.
Проект находится в Наро-Фоминском городском округе, в Апрелевке, рядом с лесом и набережной. На территории доступны магазины, кафе, аптеки, пункты выдачи, салоны красоты, фитнес-клубы и торговые центры. В 10 минутах транспортом расположен парк Дубки. Локация имеет удобный выезд на Киевское шоссе в 900 м. Дорога до аэропорта Внуково занимает 20 минут транспортом, до МКАД — около 30 минут, до центра Москвы — 55 минут.
Проект представляет собой современный малоэтажный клубный поселок таунхаусов. Трехэтажные кирпичные здания состоят из 6 – 10 секций. Фасады выполнены в скандинавском стиле. В их отделке использовано сочетание кирпича, деревянных ламелей и фальца. Натуральные цвета фасадов гармонично сочетаются с природным окружением.
В проекте предложены трехэтажные таунхаусы площадью от 125 до 133 кв. метров. Планировками предусмотрены 4 спальни, просторная кухня-гостиная, гардеробные, кладовые и санузел на каждом этаже. Особенностью таунхаусов являются панорамные окна в пол. Таунхаусы сдаются без отделки, но есть возможность заказать подчистовую или чистовую отделку. К домам подведены центральные коммуникации, а у каждого таунхауса имеется свой участок и парковочное место перед домом. Предусмотрены место под кондиционер и фасадное освещение.
В поселке выполнен ландшафтный дизайн территории с сухим фонтаном без чаши и тактильным лабиринтом. В сердце поселка расположен живописный пруд с собственным пляжем и катком в зимний период, а всю территорию поселка опоясывает утопающий в зелени прогулочный бульвар протяженностью 1,8 километра. Для любителей спорта предусмотрены зоны воркаута и спортивные площадки под открытым небом, проложены велосипедные и беговые маршруты. Собственная инфраструктура поселка включает в себя торговую галерею и соседский центр с коворкингом, тренажерным залом и детской комнатой. В поселке есть собственный детский сад нового формата на 170 мест и школа с мультимедийными и IT-классами на 350 учеников.
Поселок расположен вблизи деревни Мартемьяново Наро-Фоминского городского округа в окружении леса в 27 км от МКАД по Киевскому шоссе. В 8 минутах пешком есть остановки общественного транспорта. Метро «Саларьево» в 25 минутах транспортом, станция МЦД-4 «Апрелевка» — в 10 минутах. От поселка до Киевского шоссе можно доехать за 4 минуты, до ТТК — за 45 минут, до Садового кольца — за 50 минут.
Проект представляет собой современный малоэтажный клубный поселок таунхаусов. Трехэтажные кирпичные здания состоят из 6 – 10 секций. Фасады выполнены в скандинавском стиле. В их отделке использовано сочетание кирпича, деревянных ламелей и фальца. Натуральные цвета фасадов гармонично сочетаются с природным окружением.
В проекте предложены трехэтажные таунхаусы площадью от 125 до 133 кв. метров. Планировками предусмотрены 4 спальни, просторная кухня-гостиная, гардеробные, кладовые и санузел на каждом этаже. Особенностью таунхаусов являются панорамные окна в пол. Таунхаусы сдаются без отделки, но есть возможность заказать подчистовую или чистовую отделку. К домам подведены центральные коммуникации, а у каждого таунхауса имеется свой участок и парковочное место перед домом. Предусмотрены место под кондиционер и фасадное освещение.
В поселке выполнен ландшафтный дизайн территории с сухим фонтаном без чаши и тактильным лабиринтом. В сердце поселка расположен живописный пруд с собственным пляжем и катком в зимний период, а всю территорию поселка опоясывает утопающий в зелени прогулочный бульвар протяженностью 1,8 километра. Для любителей спорта предусмотрены зоны воркаута и спортивные площадки под открытым небом, проложены велосипедные и беговые маршруты. Собственная инфраструктура поселка включает в себя торговую галерею и соседский центр с коворкингом, тренажерным залом и детской комнатой. В поселке есть собственный детский сад нового формата на 170 мест и школа с мультимедийными и IT-классами на 350 учеников.
Поселок расположен вблизи деревни Мартемьяново Наро-Фоминского городского округа в окружении леса в 27 км от МКАД по Киевскому шоссе. В 8 минутах пешком есть остановки общественного транспорта. Метро «Саларьево» в 25 минутах транспортом, станция МЦД-4 «Апрелевка» — в 10 минутах. От поселка до Киевского шоссе можно доехать за 4 минуты, до ТТК — за 45 минут, до Садового кольца — за 50 минут.
Проект представляет собой премиальный Lifehub-квартал, состоящий из шести башен переменной этажности высотой от 39 до 57 этажей. Каждая башня имеет уникальный облик, разработанный архитектурной мастерской Алексея Ильина в сотрудничестве с бюро Project 2018. Фасады зданий выполнены с использованием медной отделки и футуристических элементов, таких как округлые окна и вертикальные пилоны. Лобби и холлы имеют футуристичный дизайн от бюро UNK. Благодаря высоким потолкам в 4,5 м и панорамному остеклению просторные входные группы площадью от 80 м2 будут наполняться солнечным светом. В лобби разместится удобный коворкинг с отдельной зоной мягкой мебели, переговорной комнатой, а из лобби башни EAST можно будет попасть в детскую игровую.
В проекте предложен широкий выбор планировочных решений: от студий до четырехкомнатных квартир площадью 230 кв. метров. В наличии квартиры с большими кухнями-гостиными и мастер-спальнями, оборудованными собственными гардеробными и ванными комнатами. В квартирах спроектированы увеличенные окна, высота которых составляет 2,16 метра, а ширина — до 3 метров. Можно подобрать квартиру как без отделки, так и с отделкой White box.
В квартале предусмотрена богатая внутренняя инфраструктура. Общая благоустроенная территория комплекса составляет 6 гектаров, на которой размещены зоны для отдыха, детские и спортивные площадки. Для владельцев автомобилей в комплексе предусмотрен двухуровневый подземный паркинг с кладовыми.
Квартал расположен в Хорошевском районе Москвы, который отличается отличной транспортной доступностью. Район богат зелеными зонами, такими как Петровский парк, парк Ходынское поле и парк Красная Пресня. Вблизи комплекса находятся школы, детские сады, университеты, торговые центры и рестораны, что делает жизнь в районе удобной и насыщенной. Метро «Беговая» в 5 минутах пешком.
Проект представляет собой премиальный Lifehub-квартал, состоящий из шести башен переменной этажности высотой от 39 до 57 этажей. Каждая башня имеет уникальный облик, разработанный архитектурной мастерской Алексея Ильина в сотрудничестве с бюро Project 2018. Фасады зданий выполнены с использованием медной отделки и футуристических элементов, таких как округлые окна и вертикальные пилоны. Лобби и холлы имеют футуристичный дизайн от бюро UNK. Благодаря высоким потолкам в 4,5 м и панорамному остеклению просторные входные группы площадью от 80 м2 будут наполняться солнечным светом. В лобби разместится удобный коворкинг с отдельной зоной мягкой мебели, переговорной комнатой, а из лобби башни EAST можно будет попасть в детскую игровую.
В проекте предложен широкий выбор планировочных решений: от студий до четырехкомнатных квартир площадью 230 кв. метров. В наличии квартиры с большими кухнями-гостиными и мастер-спальнями, оборудованными собственными гардеробными и ванными комнатами. В квартирах спроектированы увеличенные окна, высота которых составляет 2,16 метра, а ширина — до 3 метров. Можно подобрать квартиру как без отделки, так и с отделкой White box.
В квартале предусмотрена богатая внутренняя инфраструктура. Общая благоустроенная территория комплекса составляет 6 гектаров, на которой размещены зоны для отдыха, детские и спортивные площадки. Для владельцев автомобилей в комплексе предусмотрен двухуровневый подземный паркинг с кладовыми.
Квартал расположен в Хорошевском районе Москвы, который отличается отличной транспортной доступностью. Район богат зелеными зонами, такими как Петровский парк, парк Ходынское поле и парк Красная Пресня. Вблизи комплекса находятся школы, детские сады, университеты, торговые центры и рестораны, что делает жизнь в районе удобной и насыщенной. Метро «Беговая» в 5 минутах пешком.
В состав жилого комплекса «Sky Garden» входит несколько корпусов с коммерческими пространствами на первых этажах. Фасады выполнены в спокойной цветовой гамме с яркими бирюзовыми акцентами. Места общего пользования представляют собой целую многофункциональную инфраструктуру для резидентов «Sky Garden». В каждом подъезде МОПы в дизайнерском оформлении, колясочная, лапомойка. В центральном лобби расположена стойка консьержа, оборудованы детская игровая комната и зона коворкинга.
В квартирах проекта «Sky Garden» предусмотрены мастер-спальни, гардеробные, постирочные. Во всех планировках площадью более 54 кв. метров окна выходят на две стороны. Переменная этажность секций позволяет обеспечить большинство квартир великолепными видами на Москву.
Внутри проекта «Sky Garden» расположена парковая территория площадью 3,85 га с игровыми и спортивными площадками, зонами для отдыха, центральной площадью, сухим фонтаном и декоративным прудом. Прилегающая набережная реки благоустроена для неспешных прогулок и отдыха у воды. Для хранения велосипедного транспорта в подземном паркинге оборудованы комнаты. ам же на минус 1 этаже, а также во дворе комплекса расположены станции технического обслуживания, и конечно же достаточное количество велопарковок.
ЖК «Sky Garden» находится в районе старой Москвы — Покровское-Стрешнево. Рядом с проектом находятся школы, детские сады, поликлиники, спортивные центры. За 7 минут транспортом можно добраться до ТЦ «Калейдоскоп», а за 10 — до ТРК «Крокус Сити». В ближайшем окружении расположены парки Сходненский ковш, Северное Тушино, Братцево, Покровский берег и Покровское Стрешнево, река Сходня, Сходненский канал. За 20 минут транспортом можно добраться до Спасского и Строгинского затонов, а в 5 минутах пешком расположен парк Берег реки Сходня с благоустроенной набережной для прогулок, местами для отдыха игр и занятиями спортом.

