Жилой комплекс класса комфорт+ выполнен по кирпично-монолитной технологии с использованием комбинированных материалов в облицовке фасадов. Архитектура органично вписана в природный ландшафт, здания оснащены пассажирскими и грузовыми лифтами.
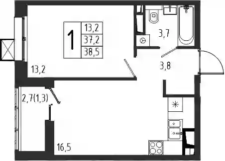
В проекте представлены студии и квартиры с 1–2 комнатами. Планировки продуманы для максимального комфорта: просторные комнаты, функциональные кухни и зоны отдыха. Все квартиры оснащены увеличенными окнами, что делает помещения светлыми и просторными. Высота потолков достигает 2,7 м. Жилье передается без отделки, что позволяет владельцам реализовать собственные дизайнерские решения.
Территория комплекса благоустроена и ориентирована на разные сценарии отдыха. Для хранения предусмотрены колясочные и кладовые, работает система круглосуточного видеонаблюдения. Организованы спортивные и игровые пространства: зона воркаут, баскетбольная площадка, детская игровая зона. Обустроены прогулочные дорожки и зоны отдыха. Для автомобилей предусмотрен подземный паркинг и отдельная двухуровневая стоянка.
Проект расположен в городе Химки Московской области, в окружении парковых зон, реки и пруда. В 10 минутах пешком находятся детский сад, поликлиника, магазины, кафе, аптеки и пункты выдачи. В радиусе 15 минут транспортом доступны станция метро Химки (D3) и аэропорт Шереметьево, выезд на МКАД находится в 20 минутах, до ТТК можно доехать за 30 минут, а до Кремля — примерно за 40 минут.
