
«Citimix Новокосино» — это 9-этажный комплекс апартаментов с собственной инфраструктурой. Здание оформлено в современном европейском стиле, оригинальность фасаду придают треугольные эркеры. В лобби выполнена лаконичная дизайнерская отделка с витражным остеклением окон. На территории комплекса предусмотрены круглосуточное видеонаблюдение и охрана.
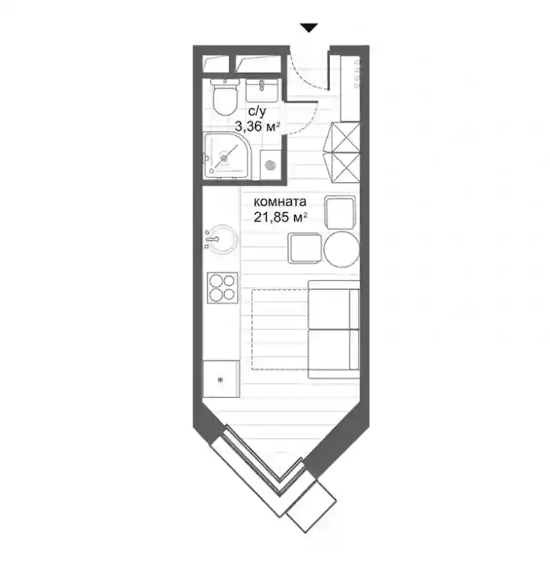
В проекте предложены однокомнатные и двухкомнатные апартаменты площадью от 20 до 45 кв. метров. Есть лоты с эркерами, угловым остеклением и окном в ванной. Все апартаменты сдаются с чистовой отделкой в бежевом или сером тоне.
В закрытом дворе, спроектированном по концепции «Двор без машин» выполнено ландшафтное озеленение, размещены зона отдыха со скамейками и малыми архитектурными формами, детская игровая и спортивная площадки. Первые этажи комплекса отведены под кофейни и рестораны, продуктовые магазины, центры бытовых услуг, аптеки и другие объекты необходимого сервиса. Для владельцев автомобилей предусмотрен подземный паркинг.
Комплекс апартаментов «Citimix Новокосино» находится в районе Новокосино, на улице Николая Старостина. Новокосино — район с развитой инфраструктурой, низкой плотностью застройки и благоприятной экологией. В пешей доступности есть все необходимое: школы и детские сады, поликлиники, магазины и торговые центры. Также в шаговой доступности: Ледовый дворец, ФОК и 50-ти метровый бассейн, парки, обустроенный городской пляж, футбольный стадион, фитнес-центр и двухкилометровый прогулочный бульвар. До метро «Новокосино» 20 минут пешком.
