
В состав комплекса входит 13 жилых корпусов переменной этажности в 4 и 5 этажей. Дома возведены по долговечной кирпично-монолитной технологии и соответствуют среднему классу энергоэффективности. Стены каждого корпуса утеплены и облицованы декоративным кирпичом. В каждом подъезде есть помещения для хранения колясок.
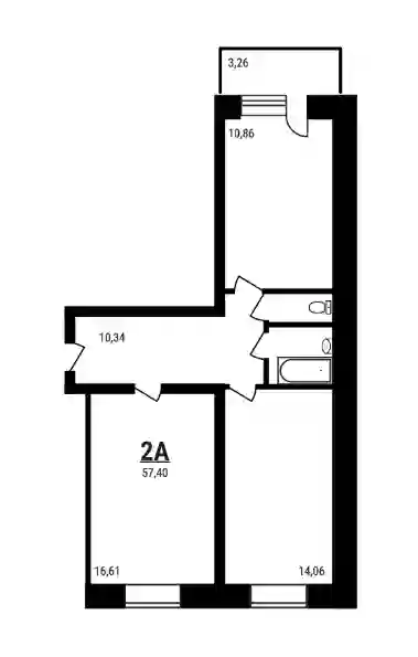
В жилом комплексе предложены однокомнатные и 2-комнатные квартиры, есть также планировки европейского формата. Все балконы и лоджии в квартирах застеклены. Можно подобрать квартиру без отделки, с отделкой White Box или готовой чистовой отделкой.
На территории комплекса проведено комплексное благоустройство. Предусмотрены места для отдыха, игровые площадки для детей, спортивные зоны. Для владельцев автомобилей на придомовой территории комплекса предусмотрена наземная плоскостная парковка.
Жилой комплекс расположен в микрорайоне Восточный поселка Тучково Рузского городского округа. В окрестностях комплекса много зеленых зон: есть несколько водоемов, в 10 минутах ходьбы располагается усадьба «Любвино» с парком и смотровой площадкой. Рядом с комплексом удобная инфраструктура: есть детские сады, школы и поликлиники. В 5 минутах ходьбы расположено несколько супермаркетов. Транспортом до комплекса можно добраться по Можайскому или Минскому шоссе. От комплекса до МКАД по Можайскому шоссе — около 65 километров. Рядом с домом есть остановки общественного транспорта, где проходят автобусы, следующие к станции метро «Тушинская». Также в 20 минутах пешком функционирует железнодорожная станция «Тучково», позволяющая добраться до Белорусского вокзала.
