Жилой комплекс «DUO» — современный проект клубного формата на 49 квартир, возведенный по технологии кирпично-монолитного строительства с вентилируемыми фасадами из декоративного камня. Жилой комплекс состоит из двух частей: первая — реставрация исторической застройки XIX века, созданной по проекту Ивана Черника, вторая — это новое строительство в прочтении итальянского бюро Marco Casamonti. В центре фасада находится арка, которая соединяет историческую часть с современной.
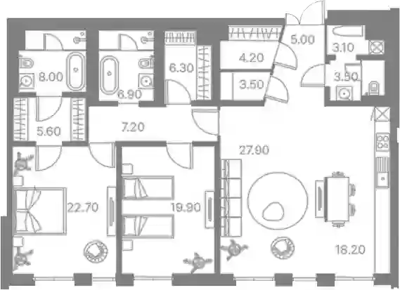
В проекте представлено множество планировочных решений — от 1-комнатных до 5-ти комнатных квартир, в том числе и пентхаусов с террасами и бассейном.
Территория комплекса благоустроена — имеется сигарная комната для приватных встреч, винный зал, переговорная, приватный внутренний двор.
Жилой комплекс «DUO» расположен в исторической части Москвы, в 700 метрах от парка Зарядье и Кремля. Инфраструктура района развита очень хорошо — в пешей доступности находятся историко-культурные достопримечательности, продовольственные магазины, аптеки, образовательные и медицинские учреждения, кафе и рестораны.
