Апарт-комплекс состоит из 4 корпусов высотой от 13 до 22 этажей, построенных по кирпично-монолитной технологии. Фасады оформлены с применением вентилируемой системы и облицованы керамогранитом. Входные группы организованы сквозным образом — на уровне земли, без пандусов. В холлах предусмотрены зоны ожидания и бесшумные скоростные пассажирские и грузовые лифты. На нижних этажах размещены коммерческие помещения под магазины, кафе и другие сервисы.
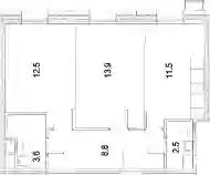
В проекте представлены студии и апартаменты с 1–3 комнатами площадью от 31,8 до 77 кв. м. Высота потолков варьируется от 2,87 до 3,02 метра. Установлены увеличенные оконные проемы, что делает помещения светлыми и визуально просторными. Квартиры передаются в формате без стен — с возможностью самостоятельного зонирования пространства по своему усмотрению. В некоторых планировках спроектированы гардеробные.
Территория комплекса закрыта от посторонних, оснащена охраной и видеонаблюдением. Придомовое пространство свободно от автомобилей. Для прогулок и отдыха предусмотрены озелененные зоны, детские и спортивные площадки, для хранения доступны кладовые помещения. Работает круглосуточный консьерж-сервис отельного уровня. Подземный паркинг оснащен системой контроля доступа и лифтовым сообщением с жилыми этажами — попасть к машине можно напрямую из лобби.
Проект расположен в районе Покровское-Стрешнево Северо-Западного административного округа. В 5 минутах пешком находятся станции метро Тушинская и Спартак, в пределах 10–15 минут — супермаркеты, кафе, рестораны, фитнес-центры, теннисный клуб и салоны красоты, а также Лукойл Арена и набережная реки Сходня. До торгового центра Крокус Сити Молл и парка Покровское-Стрешнево можно добраться за 15 минут транспортом, до ТТК — за 20 минут, до Садового кольца — за 25 минут, а до аэропорта Шереметьево — за 45 минут.
