
Загородный клубный дом представляет собой многосекционное здание комфорт-класса высотой в 4 этажа. Кирпично-монолитный дом выполнен в современном европейском стиле, фасады, облицованные природными материалами светлых оттенков, лаконично вписываются в окружающий пейзаж. В каждом подъезде предусмотрен лифт.
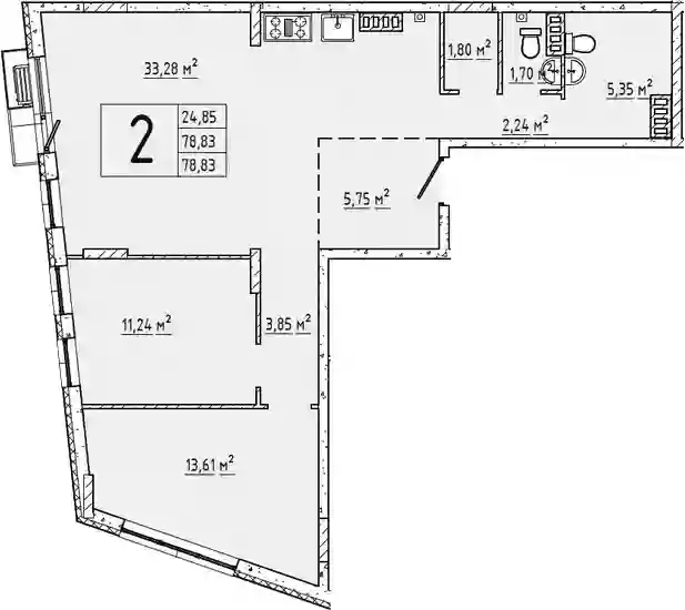
В проекте предложены разнообразные планировочные решения: однокомнатные, двух-, трех- и четырехкомнатные квартиры площадью от 48 до 138 кв. метров. Есть планировки с кладовками, двумя санузлами, кухнями-гостиными, балконами и лоджиями. Есть возможность приобретения кладовых помещений в подвальных этажах. Квартиры имеют увеличенную площадь остекления и высокие потолки 3,1 метра. На каждом этаже расположено всего от 3 до 5 квартир. Предложены квартиры как без отделки, так и с готовой чистовой отделкой.
Жилые секции дома замкнуты в кольцо и формируют закрытую приватную территорию двора. В нем обустроены спортивные, баскетбольные и детские игровые площадки, прогулочные зоны с березовой аллеей и пространства для отдыха. Рядом с домом благоустроены родник и долина реки Ликова. На территории реализована концепция «двор без машин». Клубный дом оборудован двухуровневым подземным паркингом. В нем 172 машино-места для жителей, а также есть 100 машино-мест на гостевых парковках по периметру проекта.
Клубный дом расположен в ГО Одинцово, в 16 километрах от МКАД, в окружении лесного массива. В 10 минутах пешком находятся две железнодорожные станции «Здравница» и «Перхушково», за 10 минут можно доехать до станции МЦД «Одинцово», за 25 минут — до метро «Кунцевская» и за 45 минут — до Белорусского вокзала. До Москвы на автомобиле можно доехать за 20 минут по Минскому или Можайскому шоссе, до города Одинцово — за 10 минут.
