












Жилой комплекс «EVO» — современный проект, возведенный по технологии кирпично-монолитного строительства с вентилируемыми фасадами из керамогранита. Дизайн фасада выполнен в ритмично повторяющихся оттенках молочного цвета и венге. Балконы и корзины под кондиционеры сочетаются с цветом фасада. Первые этажи здания отведены под коммерческие помещения. Также на первом этаже комплекса будут располагаться индивидуальные кладовые и помещения для хранения колясок и велосипедов.
В проекте представлены планировочные решения различной комнатности. Все лоты сдаются с высотой потолков 2.7 метра и без отделки.
Двор-сад закрыт от машин и поделен на «тихие» зоны и зоны для активного отдыха с workout-пространствами. Для детей предусмотрены 3 игровые площадки с безопасным покрытием. Доступ на территорию комплекса доступен только для владельцев комплекса. В целях безопасности действует круглосуточная охрана и видеонаблюдение. На территории комплекса располагается школа на 750 мест и детский сад на 150 мест.
Жилой комплекс «EVO» расположен в 10 минутах пешком от железнодорожной станции «Реутово». Инфраструктура района развита хорошо — в пешей доступности находятся образовательные учреждения, торговые центы, медицинский центры, физкультурно-оздоровительный комплекс, парки и скверы.

Проект представляет собой современный жилой квартал комфорт-класса переменной высоты от 20 до 25 этажей с собственной инфраструктурой. В квартале создана безбарьерная среда, входные группы расположены на уровне земли, а безопасность обеспечивают круглосуточное видеонаблюдение и система «Умный дом» с IP-домофонией и возможностью управления доступом через смартфон. На первых этажах домов предусмотрены места для хранения колясок, велосипедов и самокатов, а также индивидуальные кладовые с прямым доступом на лифте.
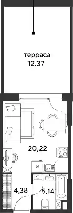
В жилом комплексе предложен широкий выбор современных функциональных планировок: от компактных студий до трехкомнатных квартир евроформата с просторной кухней-гостиной. Во всех квартирах увеличенные окна и высокие потолки от 2,65 метра. Часть лотов сдается с чистовой отделкой. Из окон квартир открывается вид на реку Ока и благоустроенный двор.
В квартале спроектированы дворы без машин с всесезонным озеленением. Здесь оборудованы современные игровые площадки для детей разных возрастов, выполненные из натуральных и безопасных материалов. Также предусмотрены зоны для спокойного отдыха со скамейками и крытыми зонами. А для любителей активного образа жизни есть воркаут-площадки с тренажерами. В квартале есть собственный бульвар для пеших прогулок с зонами отдыха. Для общения и отдыха жителей комплекса организован многофункциональный соседский центр.
Жилой квартал расположен в Ленинском округе Калуги, на левом берегу Оки, недалеко от центра города. Вокруг развитый район: в пешей доступности магазины, торговые центры, кафе, поликлиники. До школы № 4 всего три минуты пешком, до детского сада № 30 — 10 минут. В трёх минутах пешком находится спортивная школа «Юность». На машине за 5 минут можно доехать до теннисного центра «Теннис XL». У жилого комплекса отличная транспортная доступность. Всего в 2 минутах находится остановка городского транспорта — можно доехать в любую точку города на автобусе, маршрутке или троллейбусе. На машине до ж/д вокзала — 15 минут, до международного аэропорта Калуги имени К. Э. Циолковского — 10 минут. До ботанического сада КГУ им. К. Э. Циолковского можно доехать за 6 минут на машине, а до музея истории космонавтики — за 15 минут.
Жилой комплекс «EVO» — современный проект, возведенный по технологии кирпично-монолитного строительства с вентилируемыми фасадами из керамогранита. Дизайн фасада выполнен в ритмично повторяющихся оттенках молочного цвета и венге. Балконы и корзины под кондиционеры сочетаются с цветом фасада. Первые этажи здания отведены под коммерческие помещения. Также на первом этаже комплекса будут располагаться индивидуальные кладовые и помещения для хранения колясок и велосипедов.
В проекте представлены планировочные решения различной комнатности. Все лоты сдаются с высотой потолков 2.7 метра и без отделки.
Двор-сад закрыт от машин и поделен на «тихие» зоны и зоны для активного отдыха с workout-пространствами. Для детей предусмотрены 3 игровые площадки с безопасным покрытием. Доступ на территорию комплекса доступен только для владельцев комплекса. В целях безопасности действует круглосуточная охрана и видеонаблюдение. На территории комплекса располагается школа на 750 мест и детский сад на 150 мест.
Жилой комплекс «EVO» расположен в 10 минутах пешком от железнодорожной станции «Реутово». Инфраструктура района развита хорошо — в пешей доступности находятся образовательные учреждения, торговые центы, медицинский центры, физкультурно-оздоровительный комплекс, парки и скверы.
Жилой комплекс «EVO» — современный проект, возведенный по технологии кирпично-монолитного строительства с вентилируемыми фасадами из керамогранита. Дизайн фасада выполнен в ритмично повторяющихся оттенках молочного цвета и венге. Балконы и корзины под кондиционеры сочетаются с цветом фасада. Первые этажи здания отведены под коммерческие помещения. Также на первом этаже комплекса будут располагаться индивидуальные кладовые и помещения для хранения колясок и велосипедов.
В проекте представлены планировочные решения различной комнатности. Все лоты сдаются с высотой потолков 2.7 метра и без отделки.
Двор-сад закрыт от машин и поделен на «тихие» зоны и зоны для активного отдыха с workout-пространствами. Для детей предусмотрены 3 игровые площадки с безопасным покрытием. Доступ на территорию комплекса доступен только для владельцев комплекса. В целях безопасности действует круглосуточная охрана и видеонаблюдение. На территории комплекса располагается школа на 750 мест и детский сад на 150 мест.
Жилой комплекс «EVO» расположен в 10 минутах пешком от железнодорожной станции «Реутово». Инфраструктура района развита хорошо — в пешей доступности находятся образовательные учреждения, торговые центы, медицинский центры, физкультурно-оздоровительный комплекс, парки и скверы.
Жилой корпус состоит из домов переменной этажности высотой от 9 до 15 этажей. Современная архитектура квартала сочетает в себе натуральные оттенки вентилируемого фасада, четкие вертикальные линии и облицовку под кирпич. Корзины с орнаментом скрывают внешние блоки кондиционеров и придают фасадам домов более эстетичный и аккуратный вид. В домах все входы расположены на уровне земли, без порогов и перепадов по высоте. В лобби выполнена дизайнерская отделка, предусмотрены просторные колясочные и места для хранения велосипедов. Двери лобби открываются через приложение на смартфоне.
В жилом комплексе предложен широкий выбор планировочных решений от студий до трехкомнатных квартир европейского формата с просторной кухней-гостиной. Есть квартиры с двумя санузлами и квартиры с балконами. На верхних этажах расположены квартиры с потолками 3 метра. В наличии квартиры как без отделки, так и с готовой чистовой отделкой.
На территории квартала выполнено благоустройство дворов с всесезонным озеленением, многоуровневым ландшафтом и арт-объектами. В зеленых дворах комплекса есть зоны для отдыха, игровые площадки для детей разных возрастов, спортивные площадки, зоны для йоги и воркаута, столы для настольного тенниса и площадки для выгула собак. Комплекс имеет собственную рекреационная зону в лесу с прогулочными и беговыми маршрутами. На территории квартала есть вся необходимая инфраструктура: поликлиника рассчитанная на 432 посещения в смену, 5 детских садов по 300 мест каждый 2 школы по 1650 мест, культурно-досуговый центр, отделения почтовой связи, филиалы банков, МФЦ, автомойки. Первые этажи домов занимают коммерческие помещения. Для владельцев автомобилей предусмотрены 7 многоуровневых паркингов, 14 подземных паркингов и гостевые машино-места.
Квартал расположен в городе Пушкино, с хорошо развитой социальной инфраструктурой: рядом открыты десятки детских садов и школ, работают вузы, поликлиники, магазины и кафе, спортивные и торговые центры. До центра Москвы от квартала всего 30 километров, до МКАД — 14 километров. До Москвы можно доехать на машине или автобусе по Ярославскому шоссе. В городе есть несколько ж/д станций, откуда легко добраться до Ярославского вокзала.
Жилой корпус состоит из домов переменной этажности высотой от 9 до 15 этажей. Современная архитектура квартала сочетает в себе натуральные оттенки вентилируемого фасада, четкие вертикальные линии и облицовку под кирпич. Корзины с орнаментом скрывают внешние блоки кондиционеров и придают фасадам домов более эстетичный и аккуратный вид. В домах все входы расположены на уровне земли, без порогов и перепадов по высоте. В лобби выполнена дизайнерская отделка, предусмотрены просторные колясочные и места для хранения велосипедов. Двери лобби открываются через приложение на смартфоне.
В жилом комплексе предложен широкий выбор планировочных решений от студий до трехкомнатных квартир европейского формата с просторной кухней-гостиной. Есть квартиры с двумя санузлами и квартиры с балконами. На верхних этажах расположены квартиры с потолками 3 метра. В наличии квартиры как без отделки, так и с готовой чистовой отделкой.
На территории квартала выполнено благоустройство дворов с всесезонным озеленением, многоуровневым ландшафтом и арт-объектами. В зеленых дворах комплекса есть зоны для отдыха, игровые площадки для детей разных возрастов, спортивные площадки, зоны для йоги и воркаута, столы для настольного тенниса и площадки для выгула собак. Комплекс имеет собственную рекреационная зону в лесу с прогулочными и беговыми маршрутами. На территории квартала есть вся необходимая инфраструктура: поликлиника рассчитанная на 432 посещения в смену, 5 детских садов по 300 мест каждый 2 школы по 1650 мест, культурно-досуговый центр, отделения почтовой связи, филиалы банков, МФЦ, автомойки. Первые этажи домов занимают коммерческие помещения. Для владельцев автомобилей предусмотрены 7 многоуровневых паркингов, 14 подземных паркингов и гостевые машино-места.
Квартал расположен в городе Пушкино, с хорошо развитой социальной инфраструктурой: рядом открыты десятки детских садов и школ, работают вузы, поликлиники, магазины и кафе, спортивные и торговые центры. До центра Москвы от квартала всего 30 километров, до МКАД — 14 километров. До Москвы можно доехать на машине или автобусе по Ярославскому шоссе. В городе есть несколько ж/д станций, откуда легко добраться до Ярославского вокзала.
Жилой корпус состоит из домов переменной этажности высотой от 9 до 15 этажей. Современная архитектура квартала сочетает в себе натуральные оттенки вентилируемого фасада, четкие вертикальные линии и облицовку под кирпич. Корзины с орнаментом скрывают внешние блоки кондиционеров и придают фасадам домов более эстетичный и аккуратный вид. В домах все входы расположены на уровне земли, без порогов и перепадов по высоте. В лобби выполнена дизайнерская отделка, предусмотрены просторные колясочные и места для хранения велосипедов. Двери лобби открываются через приложение на смартфоне.
В жилом комплексе предложен широкий выбор планировочных решений от студий до трехкомнатных квартир европейского формата с просторной кухней-гостиной. Есть квартиры с двумя санузлами и квартиры с балконами. На верхних этажах расположены квартиры с потолками 3 метра. В наличии квартиры как без отделки, так и с готовой чистовой отделкой.
На территории квартала выполнено благоустройство дворов с всесезонным озеленением, многоуровневым ландшафтом и арт-объектами. В зеленых дворах комплекса есть зоны для отдыха, игровые площадки для детей разных возрастов, спортивные площадки, зоны для йоги и воркаута, столы для настольного тенниса и площадки для выгула собак. Комплекс имеет собственную рекреационная зону в лесу с прогулочными и беговыми маршрутами. На территории квартала есть вся необходимая инфраструктура: поликлиника рассчитанная на 432 посещения в смену, 5 детских садов по 300 мест каждый 2 школы по 1650 мест, культурно-досуговый центр, отделения почтовой связи, филиалы банков, МФЦ, автомойки. Первые этажи домов занимают коммерческие помещения. Для владельцев автомобилей предусмотрены 7 многоуровневых паркингов, 14 подземных паркингов и гостевые машино-места.
Квартал расположен в городе Пушкино, с хорошо развитой социальной инфраструктурой: рядом открыты десятки детских садов и школ, работают вузы, поликлиники, магазины и кафе, спортивные и торговые центры. До центра Москвы от квартала всего 30 километров, до МКАД — 14 километров. До Москвы можно доехать на машине или автобусе по Ярославскому шоссе. В городе есть несколько ж/д станций, откуда легко добраться до Ярославского вокзала.
Жилой корпус состоит из домов переменной этажности высотой от 9 до 15 этажей. Современная архитектура квартала сочетает в себе натуральные оттенки вентилируемого фасада, четкие вертикальные линии и облицовку под кирпич. Корзины с орнаментом скрывают внешние блоки кондиционеров и придают фасадам домов более эстетичный и аккуратный вид. В домах все входы расположены на уровне земли, без порогов и перепадов по высоте. В лобби выполнена дизайнерская отделка, предусмотрены просторные колясочные и места для хранения велосипедов. Двери лобби открываются через приложение на смартфоне.
В жилом комплексе предложен широкий выбор планировочных решений от студий до трехкомнатных квартир европейского формата с просторной кухней-гостиной. Есть квартиры с двумя санузлами и квартиры с балконами. На верхних этажах расположены квартиры с потолками 3 метра. В наличии квартиры как без отделки, так и с готовой чистовой отделкой.
На территории квартала выполнено благоустройство дворов с всесезонным озеленением, многоуровневым ландшафтом и арт-объектами. В зеленых дворах комплекса есть зоны для отдыха, игровые площадки для детей разных возрастов, спортивные площадки, зоны для йоги и воркаута, столы для настольного тенниса и площадки для выгула собак. Комплекс имеет собственную рекреационная зону в лесу с прогулочными и беговыми маршрутами. На территории квартала есть вся необходимая инфраструктура: поликлиника рассчитанная на 432 посещения в смену, 5 детских садов по 300 мест каждый 2 школы по 1650 мест, культурно-досуговый центр, отделения почтовой связи, филиалы банков, МФЦ, автомойки. Первые этажи домов занимают коммерческие помещения. Для владельцев автомобилей предусмотрены 7 многоуровневых паркингов, 14 подземных паркингов и гостевые машино-места.
Квартал расположен в городе Пушкино, с хорошо развитой социальной инфраструктурой: рядом открыты десятки детских садов и школ, работают вузы, поликлиники, магазины и кафе, спортивные и торговые центры. До центра Москвы от квартала всего 30 километров, до МКАД — 14 километров. До Москвы можно доехать на машине или автобусе по Ярославскому шоссе. В городе есть несколько ж/д станций, откуда легко добраться до Ярославского вокзала.
Жилой корпус состоит из домов переменной этажности высотой от 9 до 15 этажей. Современная архитектура квартала сочетает в себе натуральные оттенки вентилируемого фасада, четкие вертикальные линии и облицовку под кирпич. Корзины с орнаментом скрывают внешние блоки кондиционеров и придают фасадам домов более эстетичный и аккуратный вид. В домах все входы расположены на уровне земли, без порогов и перепадов по высоте. В лобби выполнена дизайнерская отделка, предусмотрены просторные колясочные и места для хранения велосипедов. Двери лобби открываются через приложение на смартфоне.
В жилом комплексе предложен широкий выбор планировочных решений от студий до трехкомнатных квартир европейского формата с просторной кухней-гостиной. Есть квартиры с двумя санузлами и квартиры с балконами. На верхних этажах расположены квартиры с потолками 3 метра. В наличии квартиры как без отделки, так и с готовой чистовой отделкой.
На территории квартала выполнено благоустройство дворов с всесезонным озеленением, многоуровневым ландшафтом и арт-объектами. В зеленых дворах комплекса есть зоны для отдыха, игровые площадки для детей разных возрастов, спортивные площадки, зоны для йоги и воркаута, столы для настольного тенниса и площадки для выгула собак. Комплекс имеет собственную рекреационная зону в лесу с прогулочными и беговыми маршрутами. На территории квартала есть вся необходимая инфраструктура: поликлиника рассчитанная на 432 посещения в смену, 5 детских садов по 300 мест каждый 2 школы по 1650 мест, культурно-досуговый центр, отделения почтовой связи, филиалы банков, МФЦ, автомойки. Первые этажи домов занимают коммерческие помещения. Для владельцев автомобилей предусмотрены 7 многоуровневых паркингов, 14 подземных паркингов и гостевые машино-места.
Квартал расположен в городе Пушкино, с хорошо развитой социальной инфраструктурой: рядом открыты десятки детских садов и школ, работают вузы, поликлиники, магазины и кафе, спортивные и торговые центры. До центра Москвы от квартала всего 30 километров, до МКАД — 14 километров. До Москвы можно доехать на машине или автобусе по Ярославскому шоссе. В городе есть несколько ж/д станций, откуда легко добраться до Ярославского вокзала.
Жилой корпус состоит из домов переменной этажности высотой от 9 до 15 этажей. Современная архитектура квартала сочетает в себе натуральные оттенки вентилируемого фасада, четкие вертикальные линии и облицовку под кирпич. Корзины с орнаментом скрывают внешние блоки кондиционеров и придают фасадам домов более эстетичный и аккуратный вид. В домах все входы расположены на уровне земли, без порогов и перепадов по высоте. В лобби выполнена дизайнерская отделка, предусмотрены просторные колясочные и места для хранения велосипедов. Двери лобби открываются через приложение на смартфоне.
В жилом комплексе предложен широкий выбор планировочных решений от студий до трехкомнатных квартир европейского формата с просторной кухней-гостиной. Есть квартиры с двумя санузлами и квартиры с балконами. На верхних этажах расположены квартиры с потолками 3 метра. В наличии квартиры как без отделки, так и с готовой чистовой отделкой.
На территории квартала выполнено благоустройство дворов с всесезонным озеленением, многоуровневым ландшафтом и арт-объектами. В зеленых дворах комплекса есть зоны для отдыха, игровые площадки для детей разных возрастов, спортивные площадки, зоны для йоги и воркаута, столы для настольного тенниса и площадки для выгула собак. Комплекс имеет собственную рекреационная зону в лесу с прогулочными и беговыми маршрутами. На территории квартала есть вся необходимая инфраструктура: поликлиника рассчитанная на 432 посещения в смену, 5 детских садов по 300 мест каждый 2 школы по 1650 мест, культурно-досуговый центр, отделения почтовой связи, филиалы банков, МФЦ, автомойки. Первые этажи домов занимают коммерческие помещения. Для владельцев автомобилей предусмотрены 7 многоуровневых паркингов, 14 подземных паркингов и гостевые машино-места.
Квартал расположен в городе Пушкино, с хорошо развитой социальной инфраструктурой: рядом открыты десятки детских садов и школ, работают вузы, поликлиники, магазины и кафе, спортивные и торговые центры. До центра Москвы от квартала всего 30 километров, до МКАД — 14 километров. До Москвы можно доехать на машине или автобусе по Ярославскому шоссе. В городе есть несколько ж/д станций, откуда легко добраться до Ярославского вокзала.
Жилой корпус состоит из домов переменной этажности высотой от 9 до 15 этажей. Современная архитектура квартала сочетает в себе натуральные оттенки вентилируемого фасада, четкие вертикальные линии и облицовку под кирпич. Корзины с орнаментом скрывают внешние блоки кондиционеров и придают фасадам домов более эстетичный и аккуратный вид. В домах все входы расположены на уровне земли, без порогов и перепадов по высоте. В лобби выполнена дизайнерская отделка, предусмотрены просторные колясочные и места для хранения велосипедов. Двери лобби открываются через приложение на смартфоне.
В жилом комплексе предложен широкий выбор планировочных решений от студий до трехкомнатных квартир европейского формата с просторной кухней-гостиной. Есть квартиры с двумя санузлами и квартиры с балконами. На верхних этажах расположены квартиры с потолками 3 метра. В наличии квартиры как без отделки, так и с готовой чистовой отделкой.
На территории квартала выполнено благоустройство дворов с всесезонным озеленением, многоуровневым ландшафтом и арт-объектами. В зеленых дворах комплекса есть зоны для отдыха, игровые площадки для детей разных возрастов, спортивные площадки, зоны для йоги и воркаута, столы для настольного тенниса и площадки для выгула собак. Комплекс имеет собственную рекреационная зону в лесу с прогулочными и беговыми маршрутами. На территории квартала есть вся необходимая инфраструктура: поликлиника рассчитанная на 432 посещения в смену, 5 детских садов по 300 мест каждый 2 школы по 1650 мест, культурно-досуговый центр, отделения почтовой связи, филиалы банков, МФЦ, автомойки. Первые этажи домов занимают коммерческие помещения. Для владельцев автомобилей предусмотрены 7 многоуровневых паркингов, 14 подземных паркингов и гостевые машино-места.
Квартал расположен в городе Пушкино, с хорошо развитой социальной инфраструктурой: рядом открыты десятки детских садов и школ, работают вузы, поликлиники, магазины и кафе, спортивные и торговые центры. До центра Москвы от квартала всего 30 километров, до МКАД — 14 километров. До Москвы можно доехать на машине или автобусе по Ярославскому шоссе. В городе есть несколько ж/д станций, откуда легко добраться до Ярославского вокзала.
