Жилой комплекс включает в себя 10 малоэтажных корпусов высотой в 4 этажа. Дома построены по монолитной технологии и отличаются оригинальным архитектурным стилем и дизайном.
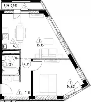
В жилом комплексе представлен широкий выбор планировочных решений: от студий до 3-х комнатных квартир. Также есть квартиры евроформата с кухней-гостиной и варианты с мастер-спальней. Высота потолков составляет 2,8 метра. Все квартиры сдаются без отделки, но есть возможность заказать как подчистовую, так и чистовую отделку.
Инфраструктура комплекса включает физкультурно-оздоровительный центр, ресторан и сетевой магазин. На территории создана комфортная общественная среда: зоны для отдыха и прогулок, игровые площадки для детей всех возрастов, воркаут-зоны и пляжные участки. Особое внимание привлекает благоустроенная набережная с променадом — излюбленное место для отдыха. Комплекс оснащен современными системами безопасности, включая видеонаблюдение. Для владельцев автомобилей предусмотрена наземная парковка.
Жилой комплекс расположен в городском округе Люберцы, в поселке Марусино. Это экологически чистый район. В 3 минутах на транспорте находятся школа и детский сад, а в 7 — Люберецкая областная больница. До метро «Некрасовка» можно добраться за 15 минут транспортом. Поездка до центра Москвы займет 35 минут, а до выезда на СВХ и трассу М-12 — всего 5 минут.
