Клубный дом премиального уровня состоит из 27 этажей и выполнен по монолитной технологии с комбинированным фасадом, в отделке которого применены архитектурный бетон, натуральный камень и металлические панели. Проект разработан бюро WALL: башня высотой 100 м гармонично вписана в городской ландшафт. Входная группа представлена просторным лобби с потолками 9 м с библиотекой и круглосуточным консьерж-сервисом. В здании установлены скоростные пассажирские и грузовые лифты.
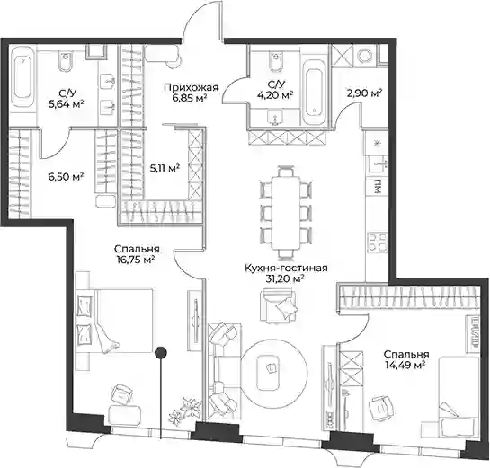
В проекте представлены квартиры площадью 39–300 кв. м с 1–4 комнатами и 18 типами планировок, включая форматы с ванными комнатами с панорамным остеклением, каминами и кухнями с кладовыми. Высота потолков варьируется от 3,2 до 5 м. В каждой квартире предусмотрена центральная система кондиционирования VRF. На 27 этаже спроектировано 3 пентхауса площадью 250, 290 и 300 кв. м с дровяными каминами и отдельными входами для жильцов и персонала.
Территория комплекса занимает 0,8 га и организована как приватное пространство с гипоаллергенными растениями и 5 садами. Внутри расположены воркаут-зоны, площадки для йоги, помещение для фитнеса, амфитеатр, детская площадка с возрастным зонированием и площадка для выгула собак. Для владельцев авто обустроен подземный паркинг с зарядными станциями для электромобилей. Жителям доступен прямой выход к набережной.
Комплекс расположен в Западном административном округе Москвы, на первой линии Москвы-реки в районе Филевский парк, рядом с Шелепихинским мостом. В радиусе 5–20 минут пешком доступны детские сады, школы, медицинские учреждения, магазины, аптеки, кафе, салоны красоты, фитнес-клубы, парки и торговые центры. Станции метро Фили и Шелепиха находятся в 10 минутах пешком. За 5 минут транспортом можно добраться до Кутузовского проспекта, за 10 минут — до Москва-Сити, за 20 минут — до центра Москвы, за 30 минут — до аэропорта Шереметьево.
