Жилой комплекс состоит из корпусов высотой 18 этажей. Дома возведены по технологии газобетон-монолит, фасады облицованы керамогранитом, что обеспечивает хорошую тепло- и звукоизоляцию. В подъездах установлены высокоскоростные грузовые лифты. В проекте реализована система автономного отопления, одним из преимуществ которой является возможность самостоятельно регулировать температуру в квартирах.
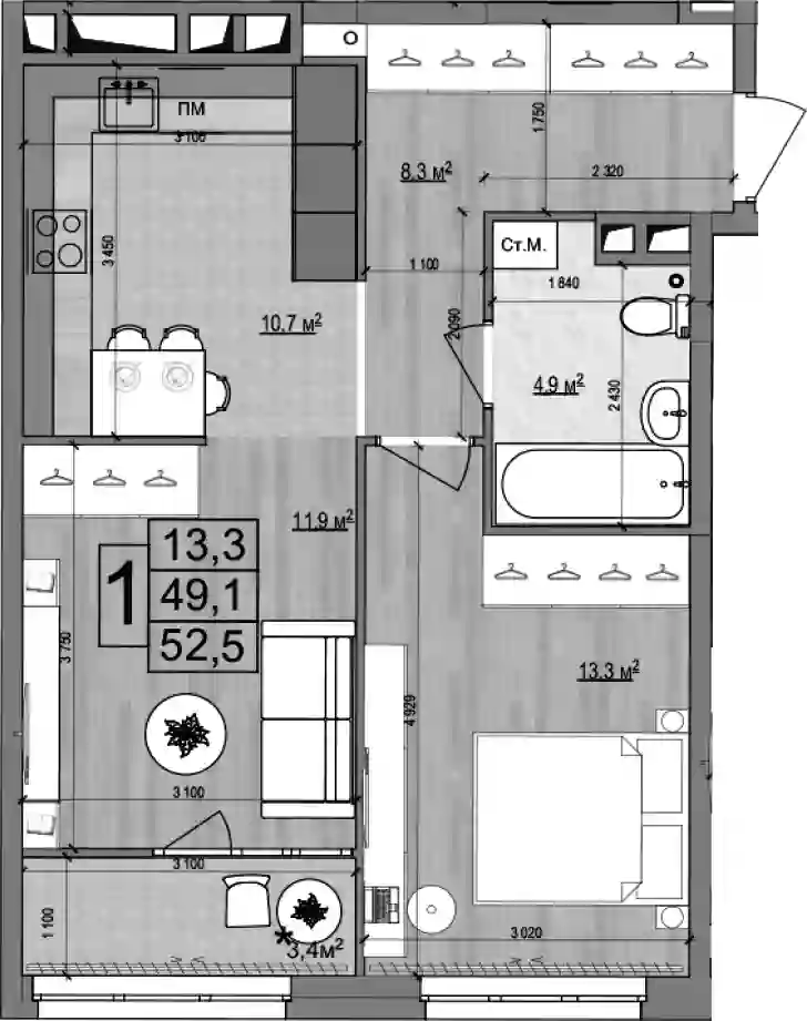
В проекте представлены студии и квартиры с 1–3 спальнями, также доступны опции с европланировками. В помещениях предусмотрены потолки высотой от 2,8 до 3,1 метра и увеличенные окна с защитой от ультрафиолета и теплопотерь. Квартиры спроектированы с упором на комфортное и энергоэффективное проживание в течение всего года.
Дворовая территория комплекса организована по концепции без машин. На 2 подземных уровнях расположен вместительный паркинг. Во дворе размещены детский сад, игровые и спортивные площадки, футбольное и баскетбольное поля, а также воркаут-зона с тренажерами. Пешеходные дорожки и скамейки оснащены системой подогрева, что делает общественные зоны удобными даже в мороз. Безопасность обеспечивается интеллектуальной системой видеонаблюдения и контролем доступа.
Проект находится в городском округе Жуковский, на берегу реки Быковка, в окружении природы. В радиусе 10–15 минут пешком находятся школы, детские сады, медицинские центры, парки и крупные торговые комплексы. До станции наземного метро Быково (D3) — около 10 минут транспортом. Дорога до МКАД занимает порядка 25 минут транспортом, до ТТК — около 40 минут, а до центра Москвы — 1 час.
