Жилой комплекс «Идеал» — современный проект переменной этажности кирпично-монолитной технологии строительства с вентилируемыми фасадами из керамогранита. Первые этажи отведены под коммерческие помещения.
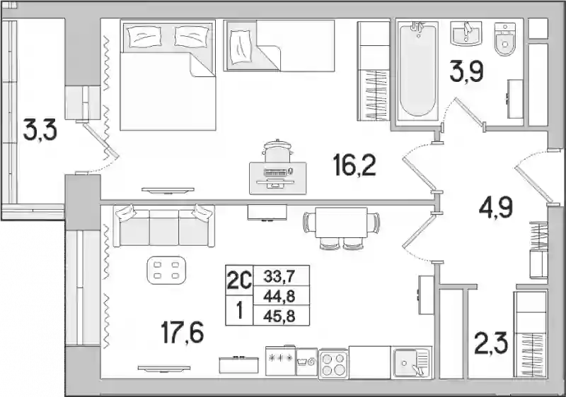
Представлено несколько вариантов планировок классического и евро-формата. Все лоты сдаются с высотой потолков 2,72 метра и базовой отделкой.
Территория комплекса благоустроена — двор закрыт от автомобилей, ведется видеонаблюдение. Имеются детские сады, школы, спортивные и детские площадки, места для выгула животных, высажены деревья и кустарники. Для автомобилистов предусмотрен крытый и открытый паркинги.
Жилой комплекс расположен в районе с хорошо развитой инфраструктурой: в пешей доступности имеется все необходимое — продовольственные магазины, аптеки, рестораны и кафе. Дорога до Москвы займет 20 минут на автомобиле, также хорошо развита сеть общественного транспорта.
