











Жилой комплекс «Indy Towers» — современное пространство архитектурного бюро «Остоженка», где технологии и дизайн интегрированы в современную архитектуру. ЖК возведен по технологии монолитного строительства. Первая очередь строительства «Indy Towers» включает в себя три монолитных жилых корпуса, расположенных на общей стилобатной части. Первые этажи здания отведены под коммерческие помещения.
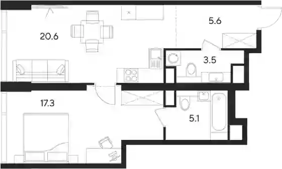
В проекте представлено множество планировочных решений — от студий до просторных 3х-комнатных квартир. Все лоты сдаются с подчистовой отделкой, высотой потолков до 3,5 метров и панорамными окнами.
Территория комплекса благоустроена, имеется сад, где собраны: игровой квест, песочница, качели, горка, площадки для игр, специальное покрытие для рисования. проектом предусмотрен детский клуб «Аквилон KIDS», который передается в собственность жильцов. Также во дворе располагается водный сад, который скрыт от глаз прохожих, — внутри уединенная зона для отдыха и прогулок. Пространство дополняют открытые площадки с небольшими водными объектами и качели под навесом. Предусмотрено выполнение концептуального благоустройства территории. Для автовладельцев имеется двухуровневый подземный паркинг.
Жилой комплекс «Indy Towers» расположен в Хорошеньком районе Москвы, на ул. Куусинена, в 200 метрах от станции МЦК «Зорге».ЖК находится на стыке нескольких разных типов городской среды: «сталинской» застройки района Сокол и постмодернистского архитектурного комплексаХодынского поля, в 2 минутах от парка «Березовые рощи». В пешей доступности находятся парки, торговые центры, образовательные и медицинские учреждения.

Комплекс состоит из 9 секций переменной этажности высотой от 12 до 28 этажей. Архитектурный облик от голландского бюро MLA+ отличается необычным дизайном в урбанистическом стиле. В оформлении фасадов использовано сочетание различных фактур и цветовых решений из стекла и клинкерного кирпича. Доминантой жилого корпуса станет 28-этажная стеклянная башня высотой до 90 метров. В комплексе спроектировано просторное гранд-лобби с панорамным остеклением, отделкой с использованием фактур дерева и камня и обилием зелени. На первом этаже предусмотрены комнаты для хранения колясок и велосипедов оборудованные специальными стойками и системами крепления, на подземном этаже — сити-боксы (кладовые) для сезонных и габаритных вещей.
В проекте представлены разнообразные типы планировок классических и евро-форматов: от компактных студий до просторных квартир с несколькими спальнями. Есть квартиры с видовыми террасами. Квартиры сдаются с подчистовой отделкой White Box и увеличенными оконными проемами LIGHT-IN.
В закрытом от машин дворе размещены: событийная площадь с амфитеатром, зоны тихого отдыха, разновозрастные детские площадки с эко-инвентарем, спортивные площадки, шаговые тропы, зоны отдыха с качелями и теневые навесы. Во дворе также оборудованы удобные рабочие места с розетками. В рамках жилого комплекса спроектирован современный образовательный комплекс на 825 учеников, в который войдут: современные учебные кабинеты, IT-полигон и робоклассы, 2 многосветных актовых зала, медицинский блок, многофункциональная спортивная площадка на свежем воздухе, уличное пространство для практических занятий биологией, экологическая образовательная тропа. На первом этаже жилого комплекса расположено пространство для детей Akvilon Kids, это место для встреч маленьких соседей, игр и проведения семейных праздников с участием аниматоров. Для владельцев автомобилей в комплексе предусмотрен подземный паркинг.
Комплекс расположен в Нижегородском районе, на Рязанском проспекте. Рядом с жилым комплексом есть множество небольших магазинов, кафе, ресторанов, а также крупные торговые центры и строительный центр «Леруа Мерлен». Для спорта и активного отдыха рядом есть фитнес-клуб, бассейны, теннисные корты и даже конная школа. В шаговой доступности расположено 8 масштабных зеленых зон. В пешей доступности метро «Нижегородская» и «Стахановская».
Комплекс апартаментов состоит из четырех башен высотой 23 этажа, соединенных между собой стилобатом на 5-6 этажей. В корпусах 1 и 2 расположены апартаменты для постоянного проживания, а корпуса 3 и 4 представляют собой 4-звездочный апарт-отель, управляемый профессиональным гостиничным оператором. Архитектурная концепция проекта была разработана бюро АПЕКС. Фасады зданий оформлены в сочетании прозрачного стекла, фактурной клинкерной плитки и серебристых металлических панелей. Фасады украшены удлиненными перекрестными арт-корзинами для кондиционеров и вазонами с цветами. На стилобате создана эксплуатируемая кровля с зелеными террасами. В лобби предусмотрены зона для гостей и место для хранения колясок. Первые этажи предназначены для социальных и коммерческих объектов: небольших магазинов, кофеен, аптек и других сервисов. На подземном этаже оборудован паркинг и индивидуальные кладовые.
В корпусах 1 и 2 предлагаются апартаменты для постоянного проживания - от компактных студий до просторных двух- и трехкомнатных планировок европейского формата. Апартаменты сдаются с отделкой White box и панорамным остеклением. Есть видовые апартаменты, из некоторых предусмотрен выход на благоустроенную крышу.
Собственная инфраструктура комплекса включает в себя коворкинги, расположенные как внутри здания, так и на открытом воздухе, лаунж-зону, конференц-зал, лобби-бар, рестораны и кафе, фитнес-центр, зоны отдыха и игровые зоны для детей.На территории комплекса организованы пешеходные зоны, площадки для отдыха, установлены малые архитектурные формы и высажены декоративные растения. Между секциями на первых уровнях обустроены внутренние дворы.
Комплекс расположен на Сигнальном проезде, в районе Отрадное с развитой общественной и транспортной инфраструктурой. В пешей доступности есть все необходимое: школы и детские сады, поликлиники, множество магазинов, торговые центры «Парк хаус» и «Алтуфьевский». В пешей доступности парк «Отрада» и Ботанический сад. Метро «Владыкино» расположено в 5 минутах ходьбы, рядом с комплексом есть несколько остановок общественного транспорта. Рядом проходит Северо-Восточная хорда, по которой можно быстро добраться до любой точки города на автомобиле.
Комплекс апартаментов состоит из четырех башен высотой 23 этажа, соединенных между собой стилобатом на 5-6 этажей. В корпусах 1 и 2 расположены апартаменты для постоянного проживания, а корпуса 3 и 4 представляют собой 4-звездочный апарт-отель, управляемый профессиональным гостиничным оператором. Архитектурная концепция проекта была разработана бюро АПЕКС. Фасады зданий оформлены в сочетании прозрачного стекла, фактурной клинкерной плитки и серебристых металлических панелей. Фасады украшены удлиненными перекрестными арт-корзинами для кондиционеров и вазонами с цветами. На стилобате создана эксплуатируемая кровля с зелеными террасами. В лобби предусмотрены зона для гостей и место для хранения колясок. Первые этажи предназначены для социальных и коммерческих объектов: небольших магазинов, кофеен, аптек и других сервисов. На подземном этаже оборудован паркинг и индивидуальные кладовые.
В корпусах 1 и 2 предлагаются апартаменты для постоянного проживания - от компактных студий до просторных двух- и трехкомнатных планировок европейского формата. Апартаменты сдаются с отделкой White box и панорамным остеклением. Есть видовые апартаменты, из некоторых предусмотрен выход на благоустроенную крышу.
Собственная инфраструктура комплекса включает в себя коворкинги, расположенные как внутри здания, так и на открытом воздухе, лаунж-зону, конференц-зал, лобби-бар, рестораны и кафе, фитнес-центр, зоны отдыха и игровые зоны для детей.На территории комплекса организованы пешеходные зоны, площадки для отдыха, установлены малые архитектурные формы и высажены декоративные растения. Между секциями на первых уровнях обустроены внутренние дворы.
Комплекс расположен на Сигнальном проезде, в районе Отрадное с развитой общественной и транспортной инфраструктурой. В пешей доступности есть все необходимое: школы и детские сады, поликлиники, множество магазинов, торговые центры «Парк хаус» и «Алтуфьевский». В пешей доступности парк «Отрада» и Ботанический сад. Метро «Владыкино» расположено в 5 минутах ходьбы, рядом с комплексом есть несколько остановок общественного транспорта. Рядом проходит Северо-Восточная хорда, по которой можно быстро добраться до любой точки города на автомобиле.
Жилой комплекс бизнес-класса представляет собой 44-этажное здание, возведенное по кирпично-монолитной технологии. Наружная отделка выполнена фасадным остеклением и системой ламелей в виде лент, формирующих объемную пластику фасада. В здании предусмотрены пассажирские и грузовые лифты. Входная группа оформлена двусветным гранд-лобби с высотой потолков 8,2 метра, лифтовые холлы дополнены световым мэппингом и круглосуточной стойкой ресепшен с консьержем.
В проекте представлены студии и квартиры с 1–5 комнатами, включая европланировки. Площади лотов варьируются от 28 до 183 кв. м. Доступны квартиры с мастер-спальнями, отдельными постирочными и гардеробныыми. Предусмотрены пентхаусы и квартиры с террасами. Установлены панорамные окна, виды на реку Москва открываются с 20 этажа в северо-восточном, восточном и юго-восточном направлениях, виды на центр города — с 36 этажа в северо-западном направлении. Высота потолков в типовых квартирах составляет 3 м, на 43 этаже — 4,4 м. Студии и 1-комнатные квартиры передаются с отделкой white box, квартиры от 2 комнат и более — без отделки. Реализована система умного дома inHome 4.0.
Для резидентов предусмотрен фиджитал фитнес-рум с кардио- и силовыми тренажерами, студией для стрейтчинга и аэробики, зоной для йоги в гамаках и балетным классом со станком. На территории оборудован сад-трансформер с мобильным озеленением и двухуровневым павильоном с открытой спортивной площадкой и лаунж-зоной, рядом размещена развивающая игровая площадка. Также доступен event-lounge для проведения мероприятий резидентов. Работают видеонаблюдение и система контроля доступа. Для автомобилей предусмотрен подземный паркинг с зарядными станциями для электромобилей.
Проект расположен в Южном административном округе Москвы, на пересечении исторических районов Замоскворечье и Даниловский. В 5–20 минутах пешком находятся детские сады, школы, колледжи, вузы, медицинские учреждения, магазины, аптеки, пункты выдачи, кафе и рестораны, салоны красоты, фитнес-клубы, парки и торговые центры, Дербеневская набережная. До Садового кольца и ТТК — 10 минут транспортом, до центра города — 15 минут, до Москва-Сити — 20 минут, до аэропорта Внуково — 40 минут. Станция метро Павелецкая находится в 10 минутах пешком.
Комплекс апартаментов состоит из 4 башен высотой 23 этажа и разноуровневого стилобата на 5-6 этажей. В корпусах 1 и 2 расположены апартаменты для постоянного проживания, а в корпусах 3 и 4 находится 4-звездочный апарт-отель, управляемый профессиональным гостиничным оператором. Архитектурная концепция проекта разработана бюро АПЕКС. Фасады выполнены из сочетания прозрачного стекла, фактурной клинкерной плитки и серебристых металлических панелей. На разноуровневом стилобате создана эксплуатируемая кровля с зелеными террасами. В лобби предусмотрена зона для гостей и место для хранения колясок. Первые этажи отведены под социальные и коммерческие объекты: небольшие магазины, кофейни, аптеки и другие сервисы. На подземном этаже расположен паркинг и индивидуальные кладовые.
В корпусах 3 и 4 предлагаются сервисные апартаменты для краткосрочного проживания. В проекте предусмотрено 758 номеров, которые разделены на 5 категорий: от компактных студий до просторных двух- и трехкомнатных планировок европейского формата. Апартаменты сдаются с чистовой отделкой и полностью оборудованы всем необходимым для сдачи в аренду: мебелью и бытовой техникой. Сдачу в аренду, заселение, обслуживание и эксплуатацию номеров осуществляет профессиональная управляющая компания Domotel.
Собственная инфраструктура комплекса включает в себя коворкинги, расположенные как внутри здания, так и на открытом воздухе, лаунж-зону, конференц-зал, лобби-бар, рестораны, кафе, фитнес-центр, зоны отдыха и игровые зоны для детей. На территории комплекса организованы пешеходные зоны, площадки для отдыха, установлены малые архитектурные формы и высажены декоративные растения. Между секциями на первых уровнях обустроены внутренние дворы.
Комплекс расположен на Сигнальном проезде, в районе Отрадное, который отличается развитой инфраструктурой. В пешей доступности от комплекса есть все необходимое: школы и детские сады, поликлиники, множество магазинов, торговые центры «Парк хаус» и «Алтуфьевский». Также в пешей доступности находится парк «Отрада» и Ботанический сад. Метро «Владыкино» находится всего в 5 минутах ходьбы от комплекса. Рядом с комплексом есть несколько остановок общественного транспорта. Также недалеко проходит Северо-Восточная хорда, по которой можно быстро и удобно добраться до любой точки города на автомобиле.
Комплекс апартаментов состоит из 4 башен высотой 23 этажа и разноуровневого стилобата на 5-6 этажей. В корпусах 1 и 2 расположены апартаменты для постоянного проживания, а в корпусах 3 и 4 находится 4-звездочный апарт-отель, управляемый профессиональным гостиничным оператором. Архитектурная концепция проекта разработана бюро АПЕКС. Фасады выполнены из сочетания прозрачного стекла, фактурной клинкерной плитки и серебристых металлических панелей. На разноуровневом стилобате создана эксплуатируемая кровля с зелеными террасами. В лобби предусмотрена зона для гостей и место для хранения колясок. Первые этажи отведены под социальные и коммерческие объекты: небольшие магазины, кофейни, аптеки и другие сервисы. На подземном этаже расположен паркинг и индивидуальные кладовые.
В корпусах 3 и 4 предлагаются сервисные апартаменты для краткосрочного проживания. В проекте предусмотрено 758 номеров, которые разделены на 5 категорий: от компактных студий до просторных двух- и трехкомнатных планировок европейского формата. Апартаменты сдаются с чистовой отделкой и полностью оборудованы всем необходимым для сдачи в аренду: мебелью и бытовой техникой. Сдачу в аренду, заселение, обслуживание и эксплуатацию номеров осуществляет профессиональная управляющая компания Domotel.
Собственная инфраструктура комплекса включает в себя коворкинги, расположенные как внутри здания, так и на открытом воздухе, лаунж-зону, конференц-зал, лобби-бар, рестораны, кафе, фитнес-центр, зоны отдыха и игровые зоны для детей. На территории комплекса организованы пешеходные зоны, площадки для отдыха, установлены малые архитектурные формы и высажены декоративные растения. Между секциями на первых уровнях обустроены внутренние дворы.
Комплекс расположен на Сигнальном проезде, в районе Отрадное, который отличается развитой инфраструктурой. В пешей доступности от комплекса есть все необходимое: школы и детские сады, поликлиники, множество магазинов, торговые центры «Парк хаус» и «Алтуфьевский». Также в пешей доступности находится парк «Отрада» и Ботанический сад. Метро «Владыкино» находится всего в 5 минутах ходьбы от комплекса. Рядом с комплексом есть несколько остановок общественного транспорта. Также недалеко проходит Северо-Восточная хорда, по которой можно быстро и удобно добраться до любой точки города на автомобиле.
Жилой комплекс представляет собой башню бизнес-класса высотой 46 этажей. Здание выполнено по кирпично-монолитной технологии с вентилируемым фасадом из керамогранита, с использованием алюминиевых кассет, стеклофибробетона и витражного остекления. Архитектурная концепция разработана бюро ОСТОЖЕНКА. В проекте предусмотрены пассажирские и грузовые лифты, многофункциональное гранд-лобби и стойка ресепшен с круглосуточным консьерж-сервисом.
В проекте представлены студии и квартиры с 1–4 комнатами площадью 28–95 кв. м, включая европланировки с кухней-нишей. Среди планировочных решений предусмотрены мастер-спальни, гардеробные, пентхаусы и угловое панорамное остекление. В квартирах установлены панорамные окна, в некоторых есть эркеры. Высота потолков составляет 2,85 м на типовых этажах, 3 м на уровне 45 этажа и 3,55 м на 46 этаже. Жилье идет в черновой или подчистовой отделке. Реализована система умного дома inHOME 4, дополнительная шумоизоляция, технология повышенной энергоэффективности и система фильтрации воды.
Благоустройство выполнено студией SCAPE и включает панорамный двор-террасу на высоте 7 м, спортивные споты, детскую познавательную площадку и шоппинг-променад в стилобатной части. Для автомобилей предусмотрен двухуровневый подземный паркинг на 300 машиномест с автоматическим распознаванием номеров, зарядными станциями для электромобилей и сити-боксами для хранения крупногабаритных вещей.
Комплекс расположен в районе Кунцево в Западном административном округе. В пределах 5–15 минут пешком находятся детские сады, школы, колледжи, вузы, медицинские учреждения, магазины, аптеки, пункты выдачи, кафе, рестораны, салоны красоты, фитнес-клубы и торговые центры. До станции метро Молодежная можно дойти за 5 минут пешком. В 5 минут транспортом расположен проспект Багратиона, до ТТК — 10 минут, до Москва-Сити — 15 минут, до центра Москвы — 20 минут, до аэропорта Внуково — 25 минут.
Жилой комплекс «Indy Towers» — современное пространство архитектурного бюро «Остоженка», где технологии и дизайн интегрированы в современную архитектуру. ЖК возведен по технологии монолитного строительства. Первая очередь строительства «Indy Towers» включает в себя три монолитных жилых корпуса, расположенных на общей стилобатной части. Первые этажи здания отведены под коммерческие помещения.
В проекте представлено множество планировочных решений — от студий до просторных 3х-комнатных квартир. Все лоты сдаются с подчистовой отделкой, высотой потолков до 3,5 метров и панорамными окнами.
Территория комплекса благоустроена, имеется сад, где собраны: игровой квест, песочница, качели, горка, площадки для игр, специальное покрытие для рисования. проектом предусмотрен детский клуб «Аквилон KIDS», который передается в собственность жильцов. Также во дворе располагается водный сад, который скрыт от глаз прохожих, — внутри уединенная зона для отдыха и прогулок. Пространство дополняют открытые площадки с небольшими водными объектами и качели под навесом. Предусмотрено выполнение концептуального благоустройства территории. Для автовладельцев имеется двухуровневый подземный паркинг.
Жилой комплекс «Indy Towers» расположен в Хорошеньком районе Москвы, на ул. Куусинена, в 200 метрах от станции МЦК «Зорге».ЖК находится на стыке нескольких разных типов городской среды: «сталинской» застройки района Сокол и постмодернистского архитектурного комплексаХодынского поля, в 2 минутах от парка «Березовые рощи». В пешей доступности находятся парки, торговые центры, образовательные и медицинские учреждения.
Жилой комплекс «Indy Towers» — современное пространство архитектурного бюро «Остоженка», где технологии и дизайн интегрированы в современную архитектуру. ЖК возведен по технологии монолитного строительства. Первая очередь строительства «Indy Towers» включает в себя три монолитных жилых корпуса, расположенных на общей стилобатной части. Первые этажи здания отведены под коммерческие помещения.
В проекте представлено множество планировочных решений — от студий до просторных 3х-комнатных квартир. Все лоты сдаются с подчистовой отделкой, высотой потолков до 3,5 метров и панорамными окнами.
Территория комплекса благоустроена, имеется сад, где собраны: игровой квест, песочница, качели, горка, площадки для игр, специальное покрытие для рисования. проектом предусмотрен детский клуб «Аквилон KIDS», который передается в собственность жильцов. Также во дворе располагается водный сад, который скрыт от глаз прохожих, — внутри уединенная зона для отдыха и прогулок. Пространство дополняют открытые площадки с небольшими водными объектами и качели под навесом. Предусмотрено выполнение концептуального благоустройства территории. Для автовладельцев имеется двухуровневый подземный паркинг.
Жилой комплекс «Indy Towers» расположен в Хорошеньком районе Москвы, на ул. Куусинена, в 200 метрах от станции МЦК «Зорге».ЖК находится на стыке нескольких разных типов городской среды: «сталинской» застройки района Сокол и постмодернистского архитектурного комплексаХодынского поля, в 2 минутах от парка «Березовые рощи». В пешей доступности находятся парки, торговые центры, образовательные и медицинские учреждения.
Жилой комплекс «Indy Towers» — современное пространство архитектурного бюро «Остоженка», где технологии и дизайн интегрированы в современную архитектуру. ЖК возведен по технологии монолитного строительства. Первая очередь строительства «Indy Towers» включает в себя три монолитных жилых корпуса, расположенных на общей стилобатной части. Первые этажи здания отведены под коммерческие помещения.
В проекте представлено множество планировочных решений — от студий до просторных 3х-комнатных квартир. Все лоты сдаются с подчистовой отделкой, высотой потолков до 3,5 метров и панорамными окнами.
Территория комплекса благоустроена, имеется сад, где собраны: игровой квест, песочница, качели, горка, площадки для игр, специальное покрытие для рисования. проектом предусмотрен детский клуб «Аквилон KIDS», который передается в собственность жильцов. Также во дворе располагается водный сад, который скрыт от глаз прохожих, — внутри уединенная зона для отдыха и прогулок. Пространство дополняют открытые площадки с небольшими водными объектами и качели под навесом. Предусмотрено выполнение концептуального благоустройства территории. Для автовладельцев имеется двухуровневый подземный паркинг.
Жилой комплекс «Indy Towers» расположен в Хорошеньком районе Москвы, на ул. Куусинена, в 200 метрах от станции МЦК «Зорге».ЖК находится на стыке нескольких разных типов городской среды: «сталинской» застройки района Сокол и постмодернистского архитектурного комплексаХодынского поля, в 2 минутах от парка «Березовые рощи». В пешей доступности находятся парки, торговые центры, образовательные и медицинские учреждения.
Жилой комплекс «Indy Towers» — современное пространство архитектурного бюро «Остоженка», где технологии и дизайн интегрированы в современную архитектуру. ЖК возведен по технологии монолитного строительства. Первая очередь строительства «Indy Towers» включает в себя три монолитных жилых корпуса, расположенных на общей стилобатной части. Первые этажи здания отведены под коммерческие помещения.
В проекте представлено множество планировочных решений — от студий до просторных 3х-комнатных квартир. Все лоты сдаются с подчистовой отделкой, высотой потолков до 3,5 метров и панорамными окнами.
Территория комплекса благоустроена, имеется сад, где собраны: игровой квест, песочница, качели, горка, площадки для игр, специальное покрытие для рисования. проектом предусмотрен детский клуб «Аквилон KIDS», который передается в собственность жильцов. Также во дворе располагается водный сад, который скрыт от глаз прохожих, — внутри уединенная зона для отдыха и прогулок. Пространство дополняют открытые площадки с небольшими водными объектами и качели под навесом. Предусмотрено выполнение концептуального благоустройства территории. Для автовладельцев имеется двухуровневый подземный паркинг.
Жилой комплекс «Indy Towers» расположен в Хорошеньком районе Москвы, на ул. Куусинена, в 200 метрах от станции МЦК «Зорге».ЖК находится на стыке нескольких разных типов городской среды: «сталинской» застройки района Сокол и постмодернистского архитектурного комплексаХодынского поля, в 2 минутах от парка «Березовые рощи». В пешей доступности находятся парки, торговые центры, образовательные и медицинские учреждения.

