












Жилой комплекс «INJOY» — современный проект, возведенный по технологии монолитного строительства с вентилируемыми фасадами из панелей металлических сплавов, керамогранита и клинкерной плитки. Для жителей и гостей комплекса имеются пассажирский и грузовой лифты.
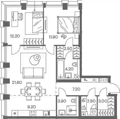
В проекте представлено множество планировочных решений — все лоты сдаются с увеличенными или панорамными окнами, высотой потолков до 3,85 метров и базовой отделкой. Имеются петхаусы с приватными террасами.
Территория комплекса хорошо благоустроена, выполнено ландшафтное озеленение — имеется гранд-лобби, 3 зоны коворкинга, детский сад, школа, кладовые помещения для хранения сезонных вещей, паркинг для автовладельцев. На уровне 2 этажа расположен общественный променад.
Жилой комплекс «INJOY» находится в районе с хорошо развитой инфраструктурой — в пешей доступности имеется все необходимое: продовольственные магазины, аптеки, рестораны, кафе, образовательные учреждения, парк и водохранилище.

Жилой комплекс «Белый Мыс» — современный проект архитектурного бюро «Semrén & Månsson», возведенный по технологии кирпично-монолитного строительства с комбинированными фасадами из клинкерной плитки и алюминиевых панелей. На первых этажах предусмотрены кладовые помещения для хранения сезонных вещей.
В проекте представлено множество планировочных решений — от студий до просторных 4х-комнатных квартир. Все лоты сдаются с базовой отделкой, высотой потолков до 3,16 метров и стандартными окнами. Предусмотрены квартиры с мастер-спальнями и гардеробными.
Территория комплекса благоустроена — имеются детские сады и школы, детские площадки, тихие зоны для отдыха и занятий спортом, велодорожки, собственный большой физкультурно-оздоровительный комплекс с бассейном. Ландшафтный дизайн выполнен международным бюро «Gillespies». Для автовладельцев предусмотрены открытые многоуровневые паркинги.
Жилой комплекс «Белый Мыс» расположен по северо-восточному направлению Московской области и имеет удобные подъездные дороги со стороны Ярославского шоссе. В пешей доступности от комплекса есть все необходимое — продовольственные магазины, торговые центры, образовательные учреждения, салоны красоты, фитнес-клубы, музеи, кинотеатры и аквапарк.
Жилой комплекс «Белый Мыс» — современный проект архитектурного бюро «Semrén & Månsson», возведенный по технологии кирпично-монолитного строительства с комбинированными фасадами из клинкерной плитки и алюминиевых панелей. На первых этажах предусмотрены кладовые помещения для хранения сезонных вещей.
В проекте представлено множество планировочных решений — от студий до просторных 4х-комнатных квартир. Все лоты сдаются с базовой отделкой, высотой потолков до 3,16 метров и стандартными окнами. Предусмотрены квартиры с мастер-спальнями и гардеробными.
Территория комплекса благоустроена — имеются детские сады и школы, детские площадки, тихие зоны для отдыха и занятий спортом, велодорожки, собственный большой физкультурно-оздоровительный комплекс с бассейном. Ландшафтный дизайн выполнен международным бюро «Gillespies». Для автовладельцев предусмотрены открытые многоуровневые паркинги.
Жилой комплекс «Белый Мыс» расположен по северо-восточному направлению Московской области и имеет удобные подъездные дороги со стороны Ярославского шоссе. В пешей доступности от комплекса есть все необходимое — продовольственные магазины, торговые центры, образовательные учреждения, салоны красоты, фитнес-клубы, музеи, кинотеатры и аквапарк.
Жилой комплекс «Белый Мыс» — современный проект архитектурного бюро «Semrén & Månsson», возведенный по технологии кирпично-монолитного строительства с комбинированными фасадами из клинкерной плитки и алюминиевых панелей. На первых этажах предусмотрены кладовые помещения для хранения сезонных вещей.
В проекте представлено множество планировочных решений — от студий до просторных 4х-комнатных квартир. Все лоты сдаются с базовой отделкой, высотой потолков до 3,16 метров и стандартными окнами. Предусмотрены квартиры с мастер-спальнями и гардеробными.
Территория комплекса благоустроена — имеются детские сады и школы, детские площадки, тихие зоны для отдыха и занятий спортом, велодорожки, собственный большой физкультурно-оздоровительный комплекс с бассейном. Ландшафтный дизайн выполнен международным бюро «Gillespies». Для автовладельцев предусмотрены открытые многоуровневые паркинги.
Жилой комплекс «Белый Мыс» расположен по северо-восточному направлению Московской области и имеет удобные подъездные дороги со стороны Ярославского шоссе. В пешей доступности от комплекса есть все необходимое — продовольственные магазины, торговые центры, образовательные учреждения, салоны красоты, фитнес-клубы, музеи, кинотеатры и аквапарк.
Жилой комплекс «Белый Мыс» — современный проект архитектурного бюро «Semrén & Månsson», возведенный по технологии кирпично-монолитного строительства с комбинированными фасадами из клинкерной плитки и алюминиевых панелей. На первых этажах предусмотрены кладовые помещения для хранения сезонных вещей.
В проекте представлено множество планировочных решений — от студий до просторных 4х-комнатных квартир. Все лоты сдаются с базовой отделкой, высотой потолков до 3,16 метров и стандартными окнами. Предусмотрены квартиры с мастер-спальнями и гардеробными.
Территория комплекса благоустроена — имеются детские сады и школы, детские площадки, тихие зоны для отдыха и занятий спортом, велодорожки, собственный большой физкультурно-оздоровительный комплекс с бассейном. Ландшафтный дизайн выполнен международным бюро «Gillespies». Для автовладельцев предусмотрены открытые многоуровневые паркинги.
Жилой комплекс «Белый Мыс» расположен по северо-восточному направлению Московской области и имеет удобные подъездные дороги со стороны Ярославского шоссе. В пешей доступности от комплекса есть все необходимое — продовольственные магазины, торговые центры, образовательные учреждения, салоны красоты, фитнес-клубы, музеи, кинотеатры и аквапарк.
Жилой комплекс «Белый Мыс» — современный проект архитектурного бюро «Semrén & Månsson», возведенный по технологии кирпично-монолитного строительства с комбинированными фасадами из клинкерной плитки и алюминиевых панелей. На первых этажах предусмотрены кладовые помещения для хранения сезонных вещей.
В проекте представлено множество планировочных решений — от студий до просторных 4х-комнатных квартир. Все лоты сдаются с базовой отделкой, высотой потолков до 3,16 метров и стандартными окнами. Предусмотрены квартиры с мастер-спальнями и гардеробными.
Территория комплекса благоустроена — имеются детские сады и школы, детские площадки, тихие зоны для отдыха и занятий спортом, велодорожки, собственный большой физкультурно-оздоровительный комплекс с бассейном. Ландшафтный дизайн выполнен международным бюро «Gillespies». Для автовладельцев предусмотрены открытые многоуровневые паркинги.
Жилой комплекс «Белый Мыс» расположен по северо-восточному направлению Московской области и имеет удобные подъездные дороги со стороны Ярославского шоссе. В пешей доступности от комплекса есть все необходимое — продовольственные магазины, торговые центры, образовательные учреждения, салоны красоты, фитнес-клубы, музеи, кинотеатры и аквапарк.
Жилой комплекс «Белый Мыс» — современный проект архитектурного бюро «Semrén & Månsson», возведенный по технологии кирпично-монолитного строительства с комбинированными фасадами из клинкерной плитки и алюминиевых панелей. На первых этажах предусмотрены кладовые помещения для хранения сезонных вещей.
В проекте представлено множество планировочных решений — от студий до просторных 4х-комнатных квартир. Все лоты сдаются с базовой отделкой, высотой потолков до 3,16 метров и стандартными окнами. Предусмотрены квартиры с мастер-спальнями и гардеробными.
Территория комплекса благоустроена — имеются детские сады и школы, детские площадки, тихие зоны для отдыха и занятий спортом, велодорожки, собственный большой физкультурно-оздоровительный комплекс с бассейном. Ландшафтный дизайн выполнен международным бюро «Gillespies». Для автовладельцев предусмотрены открытые многоуровневые паркинги.
Жилой комплекс «Белый Мыс» расположен по северо-восточному направлению Московской области и имеет удобные подъездные дороги со стороны Ярославского шоссе. В пешей доступности от комплекса есть все необходимое — продовольственные магазины, торговые центры, образовательные учреждения, салоны красоты, фитнес-клубы, музеи, кинотеатры и аквапарк.
Проект «Новое Медведково» включает в себя 39 жилых корпусов высотой 15-17 этажей. Фасады зданий облицованы кирпичом разных оттенков. В холлах выполнена отделка согласно авторскому дизайн-проекту. Входные парадные расположены на уровне земли, без ступеней и пандусов и 2 входами: со двора и улицы.
Покупателям квартир в ЖК «Новое Медведково» предложено множество планировочных решений: в наличии квартиры, как классического типа, так и европланировки с гардеробными и кладовыми. Квартиры передаются дольщикам с чистовой отделкой и без отделки.
В состав комплекса входят детские сада и школа. Для автовладельцев предусмотрены паркинги. Также запроектированы кладовые помещения для хранения колясок и велосипедов. Проектом предусмотрено создание уютного закрытого двора, свободного от автомобилей. Все придомовые территории благоустроены и озеленены. Предусмотрены места для отдыха, пешеходные аллеи, игровые площадки и уличные гимнастические комплексы.
Жилой комплекс «Новое Медведково» расположен в Мытищах с развитой инфраструктурой. В пешей доступности находятся Пироговский и Русаковский парки. Метро «Медведково» находится в 15 минутах транспортом.
Проект «Новое Медведково» включает в себя 39 жилых корпусов высотой 15-17 этажей. Фасады зданий облицованы кирпичом разных оттенков. В холлах выполнена отделка согласно авторскому дизайн-проекту. Входные парадные расположены на уровне земли, без ступеней и пандусов и 2 входами: со двора и улицы.
Покупателям квартир в ЖК «Новое Медведково» предложено множество планировочных решений: в наличии квартиры, как классического типа, так и европланировки с гардеробными и кладовыми. Квартиры передаются дольщикам с чистовой отделкой и без отделки.
В состав комплекса входят детские сада и школа. Для автовладельцев предусмотрены паркинги. Также запроектированы кладовые помещения для хранения колясок и велосипедов. Проектом предусмотрено создание уютного закрытого двора, свободного от автомобилей. Все придомовые территории благоустроены и озеленены. Предусмотрены места для отдыха, пешеходные аллеи, игровые площадки и уличные гимнастические комплексы.
Жилой комплекс «Новое Медведково» расположен в Мытищах с развитой инфраструктурой. В пешей доступности находятся Пироговский и Русаковский парки. Метро «Медведково» находится в 15 минутах транспортом.
Проект «Новое Медведково» включает в себя 39 жилых корпусов высотой 15-17 этажей. Фасады зданий облицованы кирпичом разных оттенков. В холлах выполнена отделка согласно авторскому дизайн-проекту. Входные парадные расположены на уровне земли, без ступеней и пандусов и 2 входами: со двора и улицы.
Покупателям квартир в ЖК «Новое Медведково» предложено множество планировочных решений: в наличии квартиры, как классического типа, так и европланировки с гардеробными и кладовыми. Квартиры передаются дольщикам с чистовой отделкой и без отделки.
В состав комплекса входят детские сада и школа. Для автовладельцев предусмотрены паркинги. Также запроектированы кладовые помещения для хранения колясок и велосипедов. Проектом предусмотрено создание уютного закрытого двора, свободного от автомобилей. Все придомовые территории благоустроены и озеленены. Предусмотрены места для отдыха, пешеходные аллеи, игровые площадки и уличные гимнастические комплексы.
Жилой комплекс «Новое Медведково» расположен в Мытищах с развитой инфраструктурой. В пешей доступности находятся Пироговский и Русаковский парки. Метро «Медведково» находится в 15 минутах транспортом.
Проект «Новое Медведково» включает в себя 39 жилых корпусов высотой 15-17 этажей. Фасады зданий облицованы кирпичом разных оттенков. В холлах выполнена отделка согласно авторскому дизайн-проекту. Входные парадные расположены на уровне земли, без ступеней и пандусов и 2 входами: со двора и улицы.
Покупателям квартир в ЖК «Новое Медведково» предложено множество планировочных решений: в наличии квартиры, как классического типа, так и европланировки с гардеробными и кладовыми. Квартиры передаются дольщикам с чистовой отделкой и без отделки.
В состав комплекса входят детские сада и школа. Для автовладельцев предусмотрены паркинги. Также запроектированы кладовые помещения для хранения колясок и велосипедов. Проектом предусмотрено создание уютного закрытого двора, свободного от автомобилей. Все придомовые территории благоустроены и озеленены. Предусмотрены места для отдыха, пешеходные аллеи, игровые площадки и уличные гимнастические комплексы.
Жилой комплекс «Новое Медведково» расположен в Мытищах с развитой инфраструктурой. В пешей доступности находятся Пироговский и Русаковский парки. Метро «Медведково» находится в 15 минутах транспортом.
Проект «КутузовGRAD II» включает в себя шесть жилых корпусов высотой 28 этажей. Дизайн входных групп разработан бюро «Glekel&Partners». На первом этаже лобби и зона ожидания для гостей, помещения для хранения колясок и велосипедов, место для консьержа. Стены общественных пространств отделаны декоративной штукатуркой, в холлах картины и малые архитектурные формы.
Проектом запланированы квартиры различных площадей и планировок от небольших студий до просторных двухуровневых квартир. Кроме того, будут представлены квартиры с каминами, террасами и окнами в ванных комнатах. Лоджии с панорамным остеклением обеспечат повышенную освещенность. Квартиры передаются дольщикам с чистовой отделкой и без отделки.
Для автовладельцев предусмотрен подземный паркинг на 479 мест с возможностью установки системы Klaus. Также запроектированы кладовые помещения для хранения колясок и велосипедов. Проектом предусмотрено создание уютных закрытых дворов, свободных от автомобилей. Все придомовые территории благоустроены и озеленены по авторскому проекту бюро «iCube», предусмотрены пешеходные аллеи, игровые площадки и уличные гимнастические комплексы.
Жилой комплекс «КутузовGRAD II» — расположен на западе Москвы, в 15 минутах транспортом от метро «Кунцевская», рядом с Кутузовским проспектом и Поклонной горой. Развитая собственная инфраструктура с кафе и магазинами на первых этажах дополняется шаговой доступностью крупнейшего природного заказника «Долина реки Сетунь».
Проект «КутузовGRAD II» включает в себя шесть жилых корпусов высотой 28 этажей. Дизайн входных групп разработан бюро «Glekel&Partners». На первом этаже лобби и зона ожидания для гостей, помещения для хранения колясок и велосипедов, место для консьержа. Стены общественных пространств отделаны декоративной штукатуркой, в холлах картины и малые архитектурные формы.
Проектом запланированы квартиры различных площадей и планировок от небольших студий до просторных двухуровневых квартир. Кроме того, будут представлены квартиры с каминами, террасами и окнами в ванных комнатах. Лоджии с панорамным остеклением обеспечат повышенную освещенность. Квартиры передаются дольщикам с чистовой отделкой и без отделки.
Для автовладельцев предусмотрен подземный паркинг на 479 мест с возможностью установки системы Klaus. Также запроектированы кладовые помещения для хранения колясок и велосипедов. Проектом предусмотрено создание уютных закрытых дворов, свободных от автомобилей. Все придомовые территории благоустроены и озеленены по авторскому проекту бюро «iCube», предусмотрены пешеходные аллеи, игровые площадки и уличные гимнастические комплексы.
Жилой комплекс «КутузовGRAD II» — расположен на западе Москвы, в 15 минутах транспортом от метро «Кунцевская», рядом с Кутузовским проспектом и Поклонной горой. Развитая собственная инфраструктура с кафе и магазинами на первых этажах дополняется шаговой доступностью крупнейшего природного заказника «Долина реки Сетунь».
Квартал «Новое Пушкино» представляет собой проект комплексного освоения территории с собственной инфраструктурой. Комплекс включает в себя монолитные корпуса переменной этажности. Лаконичные фасады выполнены в теплых оттенках светлых и темных тонов. Входные группы спроектированы с высокими потолками, дизайнерской отделкой, витражным остеклением и двумя входами: со двора и улицы. Входы расположены на уровне земли, без ступеней и пандусов.
Покупателям квартир в ЖК «Новое Пушкино» предложено множество планировочных решений: в наличии квартиры, как классического типа, так и европланировки. Квартиры сдаются с чистовой, подчистовой и без отделки.
Проект включает в себя три детских сада, три школы и поликлинику. Также предусмотрены спортивный комплекс и торгово-развлекательный центр. Архитектурное расположение домов образует закрытый двор от машин и случайных прохожих. Для автовладельцев предусмотрены наземные и подземные паркинги. На придомовой территории находятся детские и спортивные площадки, пешеходные дорожки и места для отдыха. На первых этажах предусмотрены коммерческие помещения.
ЖК «Новое Пушкино» возводится в Подмосковном городе Пушкино. В шаговой доступности расположены школа, детские сады и торговые комплексы. Метро «Бабушкинская» в 50 минутах транспортом, выезд на МКАД — в 21 км.
Квартал «Новое Пушкино» представляет собой проект комплексного освоения территории с собственной инфраструктурой. Комплекс включает в себя монолитные корпуса переменной этажности. Лаконичные фасады выполнены в теплых оттенках светлых и темных тонов. Входные группы спроектированы с высокими потолками, дизайнерской отделкой, витражным остеклением и двумя входами: со двора и улицы. Входы расположены на уровне земли, без ступеней и пандусов.
Покупателям квартир в ЖК «Новое Пушкино» предложено множество планировочных решений: в наличии квартиры, как классического типа, так и европланировки. Квартиры сдаются с чистовой, подчистовой и без отделки.
Проект включает в себя три детских сада, три школы и поликлинику. Также предусмотрены спортивный комплекс и торгово-развлекательный центр. Архитектурное расположение домов образует закрытый двор от машин и случайных прохожих. Для автовладельцев предусмотрены наземные и подземные паркинги. На придомовой территории находятся детские и спортивные площадки, пешеходные дорожки и места для отдыха. На первых этажах предусмотрены коммерческие помещения.
ЖК «Новое Пушкино» возводится в Подмосковном городе Пушкино. В шаговой доступности расположены школа, детские сады и торговые комплексы. Метро «Бабушкинская» в 50 минутах транспортом, выезд на МКАД — в 21 км.
Квартал «Новое Пушкино» представляет собой проект комплексного освоения территории с собственной инфраструктурой. Комплекс включает в себя монолитные корпуса переменной этажности. Лаконичные фасады выполнены в теплых оттенках светлых и темных тонов. Входные группы спроектированы с высокими потолками, дизайнерской отделкой, витражным остеклением и двумя входами: со двора и улицы. Входы расположены на уровне земли, без ступеней и пандусов.
Покупателям квартир в ЖК «Новое Пушкино» предложено множество планировочных решений: в наличии квартиры, как классического типа, так и европланировки. Квартиры сдаются с чистовой, подчистовой и без отделки.
Проект включает в себя три детских сада, три школы и поликлинику. Также предусмотрены спортивный комплекс и торгово-развлекательный центр. Архитектурное расположение домов образует закрытый двор от машин и случайных прохожих. Для автовладельцев предусмотрены наземные и подземные паркинги. На придомовой территории находятся детские и спортивные площадки, пешеходные дорожки и места для отдыха. На первых этажах предусмотрены коммерческие помещения.
ЖК «Новое Пушкино» возводится в Подмосковном городе Пушкино. В шаговой доступности расположены школа, детские сады и торговые комплексы. Метро «Бабушкинская» в 50 минутах транспортом, выезд на МКАД — в 21 км.
Квартал «Новое Пушкино» представляет собой проект комплексного освоения территории с собственной инфраструктурой. Комплекс включает в себя монолитные корпуса переменной этажности. Лаконичные фасады выполнены в теплых оттенках светлых и темных тонов. Входные группы спроектированы с высокими потолками, дизайнерской отделкой, витражным остеклением и двумя входами: со двора и улицы. Входы расположены на уровне земли, без ступеней и пандусов.
Покупателям квартир в ЖК «Новое Пушкино» предложено множество планировочных решений: в наличии квартиры, как классического типа, так и европланировки. Квартиры сдаются с чистовой, подчистовой и без отделки.
Проект включает в себя три детских сада, три школы и поликлинику. Также предусмотрены спортивный комплекс и торгово-развлекательный центр. Архитектурное расположение домов образует закрытый двор от машин и случайных прохожих. Для автовладельцев предусмотрены наземные и подземные паркинги. На придомовой территории находятся детские и спортивные площадки, пешеходные дорожки и места для отдыха. На первых этажах предусмотрены коммерческие помещения.
ЖК «Новое Пушкино» возводится в Подмосковном городе Пушкино. В шаговой доступности расположены школа, детские сады и торговые комплексы. Метро «Бабушкинская» в 50 минутах транспортом, выезд на МКАД — в 21 км.
Проект «Одинград» — это масштабный проект комплексной застройки. Квартал «Семейный» включает в себя 11 жилых корпусов с собственной инфраструктурой и уникальным внутренним двором «Фабрика детства». Архитектурная концепция карталов разработана бюро «Tikkanen». Дизайн входных групп разработан бюро «Галерея Проектов». Они выполнены в едином с фасадами стиле.
Проектом запланированы квартиры различных площадей и планировок от 20 до 92 квадратных метров. Кроме того, будут представлены квартиры с лоджиями-террасами на последних этажах. Квартиры передаются дольщикам с чистовой отделкой и без отделки.
Для автовладельцев предусмотрен подземный паркинг. Также запроектированы кладовые помещения для хранения колясок и велосипедов. Проектом предусмотрено создание уютного закрытого двора, свободного от автомобилей. Все придомовые территории благоустроены и озеленены по авторскому проекту бюро ARTEZA, предусмотрены места для отдыха с гамаками и лежаками, пешеходные аллеи, игровые площадки и уличные гимнастические комплексы.
Жилой комплекс «Одинград» — расположен в микрорайоне Одинцово с развитой инфраструктурой. В пешей доступности находятся Детский парк и Центральный пруд. Выезд на МКАД находится в 10 минутах по платной трассе М1. Метро «Славянский бульвар» находится в 30 минутах транспортом.
Проект «Одинград» — это масштабный проект комплексной застройки. Квартал «Семейный» включает в себя 11 жилых корпусов с собственной инфраструктурой и уникальным внутренним двором «Фабрика детства». Архитектурная концепция карталов разработана бюро «Tikkanen». Дизайн входных групп разработан бюро «Галерея Проектов». Они выполнены в едином с фасадами стиле.
Проектом запланированы квартиры различных площадей и планировок от 20 до 92 квадратных метров. Кроме того, будут представлены квартиры с лоджиями-террасами на последних этажах. Квартиры передаются дольщикам с чистовой отделкой и без отделки.
Для автовладельцев предусмотрен подземный паркинг. Также запроектированы кладовые помещения для хранения колясок и велосипедов. Проектом предусмотрено создание уютного закрытого двора, свободного от автомобилей. Все придомовые территории благоустроены и озеленены по авторскому проекту бюро ARTEZA, предусмотрены места для отдыха с гамаками и лежаками, пешеходные аллеи, игровые площадки и уличные гимнастические комплексы.
Жилой комплекс «Одинград» — расположен в микрорайоне Одинцово с развитой инфраструктурой. В пешей доступности находятся Детский парк и Центральный пруд. Выезд на МКАД находится в 10 минутах по платной трассе М1. Метро «Славянский бульвар» находится в 30 минутах транспортом.
Проект «Одинград» — это масштабный проект комплексной застройки. Квартал «Семейный» включает в себя 11 жилых корпусов с собственной инфраструктурой и уникальным внутренним двором «Фабрика детства». Архитектурная концепция карталов разработана бюро «Tikkanen». Дизайн входных групп разработан бюро «Галерея Проектов». Они выполнены в едином с фасадами стиле.
Проектом запланированы квартиры различных площадей и планировок от 20 до 92 квадратных метров. Кроме того, будут представлены квартиры с лоджиями-террасами на последних этажах. Квартиры передаются дольщикам с чистовой отделкой и без отделки.
Для автовладельцев предусмотрен подземный паркинг. Также запроектированы кладовые помещения для хранения колясок и велосипедов. Проектом предусмотрено создание уютного закрытого двора, свободного от автомобилей. Все придомовые территории благоустроены и озеленены по авторскому проекту бюро ARTEZA, предусмотрены места для отдыха с гамаками и лежаками, пешеходные аллеи, игровые площадки и уличные гимнастические комплексы.
Жилой комплекс «Одинград» — расположен в микрорайоне Одинцово с развитой инфраструктурой. В пешей доступности находятся Детский парк и Центральный пруд. Выезд на МКАД находится в 10 минутах по платной трассе М1. Метро «Славянский бульвар» находится в 30 минутах транспортом.
Проект «Одинград» — это масштабный проект комплексной застройки. Квартал «Семейный» включает в себя 11 жилых корпусов с собственной инфраструктурой и уникальным внутренним двором «Фабрика детства». Архитектурная концепция карталов разработана бюро «Tikkanen». Дизайн входных групп разработан бюро «Галерея Проектов». Они выполнены в едином с фасадами стиле.
Проектом запланированы квартиры различных площадей и планировок от 20 до 92 квадратных метров. Кроме того, будут представлены квартиры с лоджиями-террасами на последних этажах. Квартиры передаются дольщикам с чистовой отделкой и без отделки.
Для автовладельцев предусмотрен подземный паркинг. Также запроектированы кладовые помещения для хранения колясок и велосипедов. Проектом предусмотрено создание уютного закрытого двора, свободного от автомобилей. Все придомовые территории благоустроены и озеленены по авторскому проекту бюро ARTEZA, предусмотрены места для отдыха с гамаками и лежаками, пешеходные аллеи, игровые площадки и уличные гимнастические комплексы.
Жилой комплекс «Одинград» — расположен в микрорайоне Одинцово с развитой инфраструктурой. В пешей доступности находятся Детский парк и Центральный пруд. Выезд на МКАД находится в 10 минутах по платной трассе М1. Метро «Славянский бульвар» находится в 30 минутах транспортом.
Проект «Филатов луг» включает в себя 10 жилых корпусов высотой от 12 до 22 этажей. Архитектурная концепция «Филатов луг» была разработана бюро «SPEECH». Вентилируемые фасады домов выполнены из керамогранитной плитки и декорированы акварельной живописью. Входные группы отделаны витражным остеклением.
Проектом запланированы квартиры различных площадей и планировок от 23 до 96 кв.м. Квартиры передаются покупателям без отделки, с подчистовой и чистовой отделкой в двух вариантах на выбор: «Скандия» и «Брюгге». Высота потолков — 2,85 метра.
Благоустройство территории «Филатов Луг» разработала мастерская Arteza и включает в себя: Детские площадки с рельефом, Концепцию «двор без машин», современные игровые элементы для детей, зоны тихого отдыха, зону отдыха с качелями, площадку для отдыха с деревянным настилом, площадки для игр в активные игры, зоны workout и уличные тренажеры, столы для настольного тенниса, Велодорожку протяженностью почти 1 км, инсталляции в стилистике современного искусства. В проект входит 3 детских сада, школа, собственная социальная и коммерческая инфраструктура на первых этажах.
Проект «Филатов Луг» находится на территории Новой Москвы, в 5 км от МКАД. В шаговой доступности расположены супермаркет «METRO Cash & Carry», гипермаркет Leroy Merlin, Картмазовский пруд. Инфраструктура района развита: школы, детские сады, магазины, фитнес-центры с бассейном, ТРЦ, горнолыжно-спортивный комплекс «Ново-Переделкино». Метро «Филатов Луг» и «Саларьево» находится в 10 минутах транспортом.
Проект «Филатов луг» включает в себя 10 жилых корпусов высотой от 12 до 22 этажей. Архитектурная концепция «Филатов луг» была разработана бюро «SPEECH». Вентилируемые фасады домов выполнены из керамогранитной плитки и декорированы акварельной живописью. Входные группы отделаны витражным остеклением.
Проектом запланированы квартиры различных площадей и планировок от 23 до 96 кв.м. Квартиры передаются покупателям без отделки, с подчистовой и чистовой отделкой в двух вариантах на выбор: «Скандия» и «Брюгге». Высота потолков — 2,85 метра.
Благоустройство территории «Филатов Луг» разработала мастерская Arteza и включает в себя: Детские площадки с рельефом, Концепцию «двор без машин», современные игровые элементы для детей, зоны тихого отдыха, зону отдыха с качелями, площадку для отдыха с деревянным настилом, площадки для игр в активные игры, зоны workout и уличные тренажеры, столы для настольного тенниса, Велодорожку протяженностью почти 1 км, инсталляции в стилистике современного искусства. В проект входит 3 детских сада, школа, собственная социальная и коммерческая инфраструктура на первых этажах.
Проект «Филатов Луг» находится на территории Новой Москвы, в 5 км от МКАД. В шаговой доступности расположены супермаркет «METRO Cash & Carry», гипермаркет Leroy Merlin, Картмазовский пруд. Инфраструктура района развита: школы, детские сады, магазины, фитнес-центры с бассейном, ТРЦ, горнолыжно-спортивный комплекс «Ново-Переделкино». Метро «Филатов Луг» и «Саларьево» находится в 10 минутах транспортом.
