Комплекс апартаментов «Insider» — это 3 корпуса переменной этажности: от 10 до 16 этажей. Проект создан в бюро «Цимайло, Ляшенко и партнеры». Выполнен он в стиле современного минимализма — ступенчатый силуэт террас задает ритм, а матовый архитектурный бетон в облицовке сглаживает масштаб здания. Цвет фасада — слоновая кость. В дизайнерском гранд-лобби с водопадом обустроена зона ожидания с мягкой мебелью и журнальными столиками. Рядом расположены Lounge Bar с пекарней и Speakeasy Bar. В проекте предусмотрен консьерж-сервис.
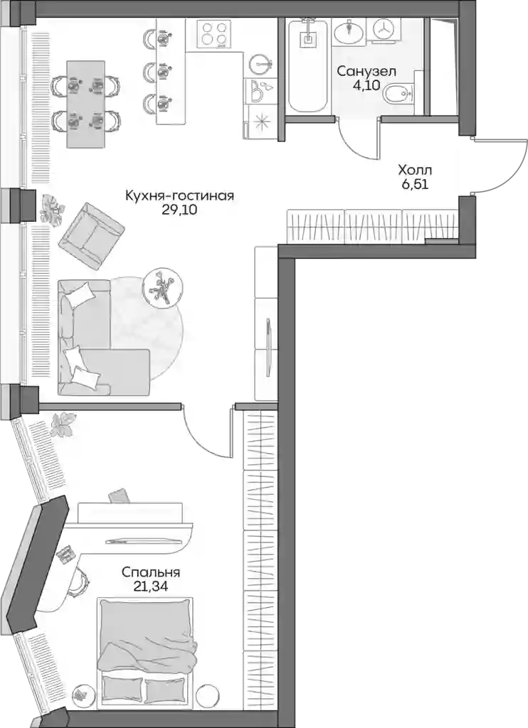
В проекте «Insider» площади планировок варьируются от студий 20 кв. метров до просторных трехкомнатных апартаментов площадью более 100 кв. метров. Представлены варианты с мастер-спальней и выходом на собственную большую террасу. Благодаря высоким потолкам и большим панорамным окнам апартаменты наполнены светом и воздухом. Отделка представлена в трех стилистических решениях — Minimal, Culture и Nature. Все апартаменты сдаются с системой «Умный дом», а собственное мобильное приложение позволяет заказать услугу консьержа, настроить взаимодействие с управляющей компанией, проконтролировать коммунальные платежи или разместить заявку на ремонт.
В проекте «Insider» предусмотрены фитнес-студия с инфракрасной сауной, кафе с летней террасой, детский центр, дизайнерская лаунж-зона с лобби-баром и служба ресепшен. Для бизнеса спроектированы 2 коворкинга и пространство деловых встреч. В лобби работают аптека и стоматология. Минимаркет, химчистка и пункт бытовых услуг удовлетворяют большинство повседневных потребностей. Во дворе расположены зоны отдыха и фонтан. Для владельцев автомобилей предусмотрен подземный паркинг с въездом по рампе через систему распознавания номеров. Здесь же находятся келлеры площадью от 1,4 до 7,7 кв. метров. Паркинг оборудован настенной системой хранения велосипедов и розетками для электромобилей.
Проект «Insider» расположен на Симоновской набережной в непосредственной близости к воде. Внешняя инфраструктура развита, в пешей доступности детские сады, школы, кафе, магазины, медицинские учреждения и фитнес центр. Метро «Тульская» находится в 15 минутах пешком, а Кремль в 7 км от проекта.
