Корпуса спроектированы по монолитной технологии с современными фасадами, разработанными архитектурным бюро Остоженка. Переменная этажность от 6 до 39 уровней формирует выразительный силуэт квартала. Входные группы организованы через просторные лобби с современным оформлением, пассажирскими и грузовыми лифтами. Для владельцев автомобилей предусмотрен двухуровневый подземный паркинг с подогреваемой рампой и пологим заездом. На первых этажах предусмотрены коммерческие помещения.
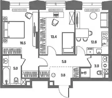
Планировочные решения включают разнообразные форматы квартир, рассчитанные на разный образ жизни: от 28 до 383 кв. м с потолками от 3 м. Квартиры представлены без внутренних стен, позволяя реализовать собственные дизайнерские решения. Разработка проекта ведется с учетом поэтапного ввода: на первом этапе возводятся 2 корпуса на 807 квартир с продуманными планировками и инженерными узлами.
На территории располагается парк площадью около 3 га с прогулочными, беговыми и веломаршрутами в несколько километров, детскими игровыми зонами и спортивными площадками. Добавлена отдельная зона для выгула и дрессировки собак, рекреации для тихого отдыха и благоустроенные дворики с зелеными насаждениями. Также для жителей обустроены клубная гостиная с общей зоной, коворкинг с панорамным видом на парк, фитнес-комната и арт-клуб.В составе проекта предусмотрен крупный учебно-воспитательный комплекс на 1 000 мест, включающий школу и детский сад с современными пространствами и собственным двором.
Проект находится в 10 минутах пешком от станции метро Сокольники и 5 минутах от МЦД Митьково. Всего в 400 метрах расположен парк Сокольники с развитой спортивной и рекреационной инфраструктурой: десятками маршрутов для пробежек и велоспорта, теннисными кортами, площадками для футбола и хоккея, зонами для отдыха у воды и летним бассейном. Образовательная среда района включает 9 государственных детских садов, школу №1530 им. Ломоносова и Европейскую гимназию в радиусе 15 минут транспортом, а также ведущие вузы — МГТУ им. Баумана, РГСУ, Политех, МЭИ и МИРЭА.
