Жилой комплекс состоит из 5 кирпично-монолитных корпусов высотой 8 этажей. Элегантные, визуально легкие фасады с продуманными архитектурными элементами, дополнены уютными лоджиями и широкими окнами. Каждый корпус обладает уникальным стилем, благодаря декоративным элементам и узорам. В жилом комплексе создана безбарьерная среда — входы в подъезды расположены на уровне земли, без подъемов и лестниц. Во входных группах предусмотрены удобные сквозные проходы, помещения для консьержей, зоны хранения колясок и велосипедов. В подвальном этаже спроектированы кладовые помещения.
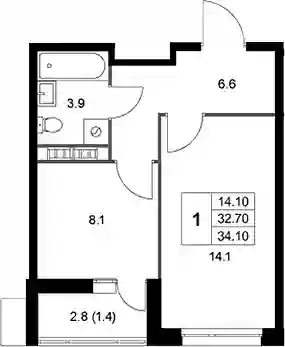
В жилом комплексе представлены различные варианты планировок — от студий до просторных 3-х комнатных квартир. Есть планировки европейского формата с кухней-гостиной и квартиры с гардеробными. Многие квартиры имеют лоджии. Все квартиры сдаются без отделки, с высотой потолков от 2,72 до 3,92 метра и увеличенными окнами.
Жилой комплекс имеет собственную инфраструктуру: воспитательно-образовательный комплекс, включающий школу на 500 мест и детский сад на 120 мест, многофункциональный торговый центр с супермаркетом, спортивный зал с бассейном, магазины, кафе, аптеки и прочие сервисы, расположенные на первых этажах домов. Территория комплекса оборудована просторными пешеходными бульварами с уютными скамейками и продуманным освещением, велодорожками и велопарковками. Во дворах спроектированы 7 различных детских площадок, с песочницами, домиками и качелями, 4 спортивных площадки с тренажерами и мини-площадкой для футбола, а также места для отдыха с шахматным и теннисным столом. Для владельцев автомобилей предусмотрены специальные парковочные зоны на 607 мест.
Жилой комплекс расположен вблизи Егорьевского шоссе в поселке Красково городского округа Люберцы, в 25 минутах езды до МКАД. К территории комплекса прилегает Кореневский карьер с благоустроенными пляжами. В непосредственной близости расположены, культурный центр и другие объекты социальной инфраструктуры, в 10 минутах езды расположена Люберецкая областная больница, на территории которой в 2026 году появится современный многопрофильный консультативно-диагностический центр. В пешей доступности находятся автобусные остановки (маршруты до Москвы), а также ж/д станция «Коренево».
