












Малоэтажный жилой комплекс спроектирован как продолжение архитектурного ансамбля Жилого и Клубного кварталов Отрада, сочетающих экодизайн со стилем модерн. Кирпично-монолитные 6-этажные дома с фасадами из темного и светлого кирпича, дополненные стеклянными плоскостями балконов, гармонично вписываются в природный ландшафт. Во всех подъездах выполнена дизайнерская отделка лобби и мест общего пользования, предусмотрены колясочные и кладовые помещения. Все подъезды сквозные и обеспечивают выход во двор и к дороге. Перед входами установлены велопарковки.
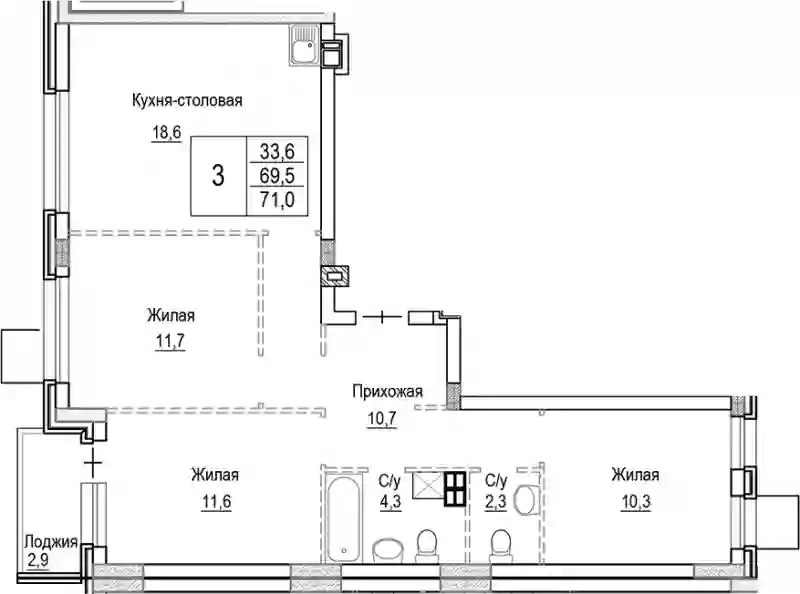
В комплексе предложен широкий выбор планировок от студий до 2-комнатных квартир европейского формата с просторной кухней-гостиной. На первых этажах располагаются квартиры формата Лаунж Флэт с собственными террасами. Квартиры спроектированы в формате «хайсилинг», который подразумевает увеличенную площадь остекления и высокие потолки до 3,9 метра. Квартиры сдаются с отделкой White Box.
Комплекс имеет полностью закрытую территорию с круглосуточным видеонаблюдением и охраной. Дворы и скверы жилого комплекса предлагают разнообразные возможности для отдыха. В квартале расположены парковые зоны и аллеи с лавочками, цветами, растениями и уникальным ландшафтным дизайном. На территории предусмотрены различные детские площадки, зоны для воркаута, спортивные и игровые площадки. Большинство дворов спроектированы в концепции «двор без машин». На территории есть собственный детский сад, а также работают развивающие кружки и спортивные секции. Для детей организован школьный автобус. Для владельцев автомобилей предусмотрен многоуровневый паркинг, также на территории есть открытые стоянки. Комплекс расположен на территории зеленой зоны с многолетними деревьями.
Жилой комплекс находится неподалеку от поселка Светлые Горы Красногорского городского округа, в 9,5 километрах от МКАД по Пятницкому шоссе. Рядом с комплексом расположены остановки сразу нескольких маршрутов автобусов и маршрутных такси. Всего за 10 минут можно добраться до метро «Пятницкое шоссе» и района Митино.

Малоэтажный жилой комплекс спроектирован как продолжение архитектурного ансамбля Жилого и Клубного кварталов Отрада, сочетающих экодизайн со стилем модерн. Кирпично-монолитные 6-этажные дома с фасадами из темного и светлого кирпича, дополненные стеклянными плоскостями балконов, гармонично вписываются в природный ландшафт. Во всех подъездах выполнена дизайнерская отделка лобби и мест общего пользования, предусмотрены колясочные и кладовые помещения. Все подъезды сквозные и обеспечивают выход во двор и к дороге. Перед входами установлены велопарковки.
В комплексе предложен широкий выбор планировок от студий до 2-комнатных квартир европейского формата с просторной кухней-гостиной. На первых этажах располагаются квартиры формата Лаунж Флэт с собственными террасами. Квартиры спроектированы в формате «хайсилинг», который подразумевает увеличенную площадь остекления и высокие потолки до 3,9 метра. Квартиры сдаются с отделкой White Box.
Комплекс имеет полностью закрытую территорию с круглосуточным видеонаблюдением и охраной. Дворы и скверы жилого комплекса предлагают разнообразные возможности для отдыха. В квартале расположены парковые зоны и аллеи с лавочками, цветами, растениями и уникальным ландшафтным дизайном. На территории предусмотрены различные детские площадки, зоны для воркаута, спортивные и игровые площадки. Большинство дворов спроектированы в концепции «двор без машин». На территории есть собственный детский сад, а также работают развивающие кружки и спортивные секции. Для детей организован школьный автобус. Для владельцев автомобилей предусмотрен многоуровневый паркинг, также на территории есть открытые стоянки. Комплекс расположен на территории зеленой зоны с многолетними деревьями.
Жилой комплекс находится неподалеку от поселка Светлые Горы Красногорского городского округа, в 9,5 километрах от МКАД по Пятницкому шоссе. Рядом с комплексом расположены остановки сразу нескольких маршрутов автобусов и маршрутных такси. Всего за 10 минут можно добраться до метро «Пятницкое шоссе» и района Митино.
Малоэтажный жилой комплекс спроектирован как продолжение архитектурного ансамбля Жилого и Клубного кварталов Отрада, сочетающих экодизайн со стилем модерн. Кирпично-монолитные 6-этажные дома с фасадами из темного и светлого кирпича, дополненные стеклянными плоскостями балконов, гармонично вписываются в природный ландшафт. Во всех подъездах выполнена дизайнерская отделка лобби и мест общего пользования, предусмотрены колясочные и кладовые помещения. Все подъезды сквозные и обеспечивают выход во двор и к дороге. Перед входами установлены велопарковки.
В комплексе предложен широкий выбор планировок от студий до 2-комнатных квартир европейского формата с просторной кухней-гостиной. На первых этажах располагаются квартиры формата Лаунж Флэт с собственными террасами. Квартиры спроектированы в формате «хайсилинг», который подразумевает увеличенную площадь остекления и высокие потолки до 3,9 метра. Квартиры сдаются с отделкой White Box.
Комплекс имеет полностью закрытую территорию с круглосуточным видеонаблюдением и охраной. Дворы и скверы жилого комплекса предлагают разнообразные возможности для отдыха. В квартале расположены парковые зоны и аллеи с лавочками, цветами, растениями и уникальным ландшафтным дизайном. На территории предусмотрены различные детские площадки, зоны для воркаута, спортивные и игровые площадки. Большинство дворов спроектированы в концепции «двор без машин». На территории есть собственный детский сад, а также работают развивающие кружки и спортивные секции. Для детей организован школьный автобус. Для владельцев автомобилей предусмотрен многоуровневый паркинг, также на территории есть открытые стоянки. Комплекс расположен на территории зеленой зоны с многолетними деревьями.
Жилой комплекс находится неподалеку от поселка Светлые Горы Красногорского городского округа, в 9,5 километрах от МКАД по Пятницкому шоссе. Рядом с комплексом расположены остановки сразу нескольких маршрутов автобусов и маршрутных такси. Всего за 10 минут можно добраться до метро «Пятницкое шоссе» и района Митино.
Малоэтажный жилой комплекс спроектирован как продолжение архитектурного ансамбля Жилого и Клубного кварталов Отрада, сочетающих экодизайн со стилем модерн. Кирпично-монолитные 6-этажные дома с фасадами из темного и светлого кирпича, дополненные стеклянными плоскостями балконов, гармонично вписываются в природный ландшафт. Во всех подъездах выполнена дизайнерская отделка лобби и мест общего пользования, предусмотрены колясочные и кладовые помещения. Все подъезды сквозные и обеспечивают выход во двор и к дороге. Перед входами установлены велопарковки.
В комплексе предложен широкий выбор планировок от студий до 2-комнатных квартир европейского формата с просторной кухней-гостиной. На первых этажах располагаются квартиры формата Лаунж Флэт с собственными террасами. Квартиры спроектированы в формате «хайсилинг», который подразумевает увеличенную площадь остекления и высокие потолки до 3,9 метра. Квартиры сдаются с отделкой White Box.
Комплекс имеет полностью закрытую территорию с круглосуточным видеонаблюдением и охраной. Дворы и скверы жилого комплекса предлагают разнообразные возможности для отдыха. В квартале расположены парковые зоны и аллеи с лавочками, цветами, растениями и уникальным ландшафтным дизайном. На территории предусмотрены различные детские площадки, зоны для воркаута, спортивные и игровые площадки. Большинство дворов спроектированы в концепции «двор без машин». На территории есть собственный детский сад, а также работают развивающие кружки и спортивные секции. Для детей организован школьный автобус. Для владельцев автомобилей предусмотрен многоуровневый паркинг, также на территории есть открытые стоянки. Комплекс расположен на территории зеленой зоны с многолетними деревьями.
Жилой комплекс находится неподалеку от поселка Светлые Горы Красногорского городского округа, в 9,5 километрах от МКАД по Пятницкому шоссе. Рядом с комплексом расположены остановки сразу нескольких маршрутов автобусов и маршрутных такси. Всего за 10 минут можно добраться до метро «Пятницкое шоссе» и района Митино.
Малоэтажный жилой комплекс спроектирован как продолжение архитектурного ансамбля Жилого и Клубного кварталов Отрада, сочетающих экодизайн со стилем модерн. Кирпично-монолитные 6-этажные дома с фасадами из темного и светлого кирпича, дополненные стеклянными плоскостями балконов, гармонично вписываются в природный ландшафт. Во всех подъездах выполнена дизайнерская отделка лобби и мест общего пользования, предусмотрены колясочные и кладовые помещения. Все подъезды сквозные и обеспечивают выход во двор и к дороге. Перед входами установлены велопарковки.
В комплексе предложен широкий выбор планировок от студий до 2-комнатных квартир европейского формата с просторной кухней-гостиной. На первых этажах располагаются квартиры формата Лаунж Флэт с собственными террасами. Квартиры спроектированы в формате «хайсилинг», который подразумевает увеличенную площадь остекления и высокие потолки до 3,9 метра. Квартиры сдаются с отделкой White Box.
Комплекс имеет полностью закрытую территорию с круглосуточным видеонаблюдением и охраной. Дворы и скверы жилого комплекса предлагают разнообразные возможности для отдыха. В квартале расположены парковые зоны и аллеи с лавочками, цветами, растениями и уникальным ландшафтным дизайном. На территории предусмотрены различные детские площадки, зоны для воркаута, спортивные и игровые площадки. Большинство дворов спроектированы в концепции «двор без машин». На территории есть собственный детский сад, а также работают развивающие кружки и спортивные секции. Для детей организован школьный автобус. Для владельцев автомобилей предусмотрен многоуровневый паркинг, также на территории есть открытые стоянки. Комплекс расположен на территории зеленой зоны с многолетними деревьями.
Жилой комплекс находится неподалеку от поселка Светлые Горы Красногорского городского округа, в 9,5 километрах от МКАД по Пятницкому шоссе. Рядом с комплексом расположены остановки сразу нескольких маршрутов автобусов и маршрутных такси. Всего за 10 минут можно добраться до метро «Пятницкое шоссе» и района Митино.
Проектом предусмотрены 14 корпусов средней этажности высотой от 6 до 9 этажей. Проект отличает узнаваемый авторский архитектурный стиль Кварталов Отрада. Современная европейская архитектура с элементами скандинавского стиля и невысокие дома создают ощущение уютного европейского пригорода. Во входных группах выполнена дизайнерская отделка, в каждом подъезде предусмотрены просторные колясочные для хранения детского инвентаря, колясок и велосипедов. Первые этажи домов отведены под коммерческие помещения для размещения магазинов, салонов красоты, аптек и других объектов социально-бытовой инфраструктуры.
В проекте предложены одно- двух- и трехкомнатные квартиры европейского формата с просторными кухнями-гостиными, а также квартиры формата Лаунж Флэт с потолками до 3,7 метра и собственными террасами-патио. Все квартиры сдаются без отделки.
Территория комплекса не огорожена, но изолирована за счет естественного барьера — окружающего квартал лесного массива. В закрытых от машин дворах оборудованы современные детские площадки. Важным преимуществом для семей с детьми является муниципальная школа на 1100 мест и муниципальный и частный детские сады на 280 мест. Для владельцев автомобилей предусмотрены два многоуровневых наземных паркинга и гостевые парковки возле домов. В многоуровневом паркинге спроектированы кладовые помещения.
Жилой комплекс расположен в Красногорске, в микрорайоне Опалиха. Локация сочетает в себе благоприятную экологию с прекрасной транспортной доступностью. Квартал расположен между 2 станциями МЦД «Опалиха» и «Аникеевка». До любой из них можно добраться на транспорте за 10 минут. Комплекс имеет удобный выезд на Волоколамское шоссе в сторону Красногорска и Нахабино.
Проектом предусмотрены 14 корпусов средней этажности высотой от 6 до 9 этажей. Проект отличает узнаваемый авторский архитектурный стиль Кварталов Отрада. Современная европейская архитектура с элементами скандинавского стиля и невысокие дома создают ощущение уютного европейского пригорода. Во входных группах выполнена дизайнерская отделка, в каждом подъезде предусмотрены просторные колясочные для хранения детского инвентаря, колясок и велосипедов. Первые этажи домов отведены под коммерческие помещения для размещения магазинов, салонов красоты, аптек и других объектов социально-бытовой инфраструктуры.
В проекте предложены одно- двух- и трехкомнатные квартиры европейского формата с просторными кухнями-гостиными, а также квартиры формата Лаунж Флэт с потолками до 3,7 метра и собственными террасами-патио. Все квартиры сдаются без отделки.
Территория комплекса не огорожена, но изолирована за счет естественного барьера — окружающего квартал лесного массива. В закрытых от машин дворах оборудованы современные детские площадки. Важным преимуществом для семей с детьми является муниципальная школа на 1100 мест и муниципальный и частный детские сады на 280 мест. Для владельцев автомобилей предусмотрены два многоуровневых наземных паркинга и гостевые парковки возле домов. В многоуровневом паркинге спроектированы кладовые помещения.
Жилой комплекс расположен в Красногорске, в микрорайоне Опалиха. Локация сочетает в себе благоприятную экологию с прекрасной транспортной доступностью. Квартал расположен между 2 станциями МЦД «Опалиха» и «Аникеевка». До любой из них можно добраться на транспорте за 10 минут. Комплекс имеет удобный выезд на Волоколамское шоссе в сторону Красногорска и Нахабино.
Проектом предусмотрены 14 корпусов средней этажности высотой от 6 до 9 этажей. Проект отличает узнаваемый авторский архитектурный стиль Кварталов Отрада. Современная европейская архитектура с элементами скандинавского стиля и невысокие дома создают ощущение уютного европейского пригорода. Во входных группах выполнена дизайнерская отделка, в каждом подъезде предусмотрены просторные колясочные для хранения детского инвентаря, колясок и велосипедов. Первые этажи домов отведены под коммерческие помещения для размещения магазинов, салонов красоты, аптек и других объектов социально-бытовой инфраструктуры.
В проекте предложены одно- двух- и трехкомнатные квартиры европейского формата с просторными кухнями-гостиными, а также квартиры формата Лаунж Флэт с потолками до 3,7 метра и собственными террасами-патио. Все квартиры сдаются без отделки.
Территория комплекса не огорожена, но изолирована за счет естественного барьера — окружающего квартал лесного массива. В закрытых от машин дворах оборудованы современные детские площадки. Важным преимуществом для семей с детьми является муниципальная школа на 1100 мест и муниципальный и частный детские сады на 280 мест. Для владельцев автомобилей предусмотрены два многоуровневых наземных паркинга и гостевые парковки возле домов. В многоуровневом паркинге спроектированы кладовые помещения.
Жилой комплекс расположен в Красногорске, в микрорайоне Опалиха. Локация сочетает в себе благоприятную экологию с прекрасной транспортной доступностью. Квартал расположен между 2 станциями МЦД «Опалиха» и «Аникеевка». До любой из них можно добраться на транспорте за 10 минут. Комплекс имеет удобный выезд на Волоколамское шоссе в сторону Красногорска и Нахабино.
Проектом предусмотрены 14 корпусов средней этажности высотой от 6 до 9 этажей. Проект отличает узнаваемый авторский архитектурный стиль Кварталов Отрада. Современная европейская архитектура с элементами скандинавского стиля и невысокие дома создают ощущение уютного европейского пригорода. Во входных группах выполнена дизайнерская отделка, в каждом подъезде предусмотрены просторные колясочные для хранения детского инвентаря, колясок и велосипедов. Первые этажи домов отведены под коммерческие помещения для размещения магазинов, салонов красоты, аптек и других объектов социально-бытовой инфраструктуры.
В проекте предложены одно- двух- и трехкомнатные квартиры европейского формата с просторными кухнями-гостиными, а также квартиры формата Лаунж Флэт с потолками до 3,7 метра и собственными террасами-патио. Все квартиры сдаются без отделки.
Территория комплекса не огорожена, но изолирована за счет естественного барьера — окружающего квартал лесного массива. В закрытых от машин дворах оборудованы современные детские площадки. Важным преимуществом для семей с детьми является муниципальная школа на 1100 мест и муниципальный и частный детские сады на 280 мест. Для владельцев автомобилей предусмотрены два многоуровневых наземных паркинга и гостевые парковки возле домов. В многоуровневом паркинге спроектированы кладовые помещения.
Жилой комплекс расположен в Красногорске, в микрорайоне Опалиха. Локация сочетает в себе благоприятную экологию с прекрасной транспортной доступностью. Квартал расположен между 2 станциями МЦД «Опалиха» и «Аникеевка». До любой из них можно добраться на транспорте за 10 минут. Комплекс имеет удобный выезд на Волоколамское шоссе в сторону Красногорска и Нахабино.
Проектом предусмотрены 14 корпусов средней этажности высотой от 6 до 9 этажей. Проект отличает узнаваемый авторский архитектурный стиль Кварталов Отрада. Современная европейская архитектура с элементами скандинавского стиля и невысокие дома создают ощущение уютного европейского пригорода. Во входных группах выполнена дизайнерская отделка, в каждом подъезде предусмотрены просторные колясочные для хранения детского инвентаря, колясок и велосипедов. Первые этажи домов отведены под коммерческие помещения для размещения магазинов, салонов красоты, аптек и других объектов социально-бытовой инфраструктуры.
В проекте предложены одно- двух- и трехкомнатные квартиры европейского формата с просторными кухнями-гостиными, а также квартиры формата Лаунж Флэт с потолками до 3,7 метра и собственными террасами-патио. Все квартиры сдаются без отделки.
Территория комплекса не огорожена, но изолирована за счет естественного барьера — окружающего квартал лесного массива. В закрытых от машин дворах оборудованы современные детские площадки. Важным преимуществом для семей с детьми является муниципальная школа на 1100 мест и муниципальный и частный детские сады на 280 мест. Для владельцев автомобилей предусмотрены два многоуровневых наземных паркинга и гостевые парковки возле домов. В многоуровневом паркинге спроектированы кладовые помещения.
Жилой комплекс расположен в Красногорске, в микрорайоне Опалиха. Локация сочетает в себе благоприятную экологию с прекрасной транспортной доступностью. Квартал расположен между 2 станциями МЦД «Опалиха» и «Аникеевка». До любой из них можно добраться на транспорте за 10 минут. Комплекс имеет удобный выезд на Волоколамское шоссе в сторону Красногорска и Нахабино.
Проектом предусмотрены 14 корпусов средней этажности высотой от 6 до 9 этажей. Проект отличает узнаваемый авторский архитектурный стиль Кварталов Отрада. Современная европейская архитектура с элементами скандинавского стиля и невысокие дома создают ощущение уютного европейского пригорода. Во входных группах выполнена дизайнерская отделка, в каждом подъезде предусмотрены просторные колясочные для хранения детского инвентаря, колясок и велосипедов. Первые этажи домов отведены под коммерческие помещения для размещения магазинов, салонов красоты, аптек и других объектов социально-бытовой инфраструктуры.
В проекте предложены одно- двух- и трехкомнатные квартиры европейского формата с просторными кухнями-гостиными, а также квартиры формата Лаунж Флэт с потолками до 3,7 метра и собственными террасами-патио. Все квартиры сдаются без отделки.
Территория комплекса не огорожена, но изолирована за счет естественного барьера — окружающего квартал лесного массива. В закрытых от машин дворах оборудованы современные детские площадки. Важным преимуществом для семей с детьми является муниципальная школа на 1100 мест и муниципальный и частный детские сады на 280 мест. Для владельцев автомобилей предусмотрены два многоуровневых наземных паркинга и гостевые парковки возле домов. В многоуровневом паркинге спроектированы кладовые помещения.
Жилой комплекс расположен в Красногорске, в микрорайоне Опалиха. Локация сочетает в себе благоприятную экологию с прекрасной транспортной доступностью. Квартал расположен между 2 станциями МЦД «Опалиха» и «Аникеевка». До любой из них можно добраться на транспорте за 10 минут. Комплекс имеет удобный выезд на Волоколамское шоссе в сторону Красногорска и Нахабино.
Проектом предусмотрены 14 корпусов средней этажности высотой от 6 до 9 этажей. Проект отличает узнаваемый авторский архитектурный стиль Кварталов Отрада. Современная европейская архитектура с элементами скандинавского стиля и невысокие дома создают ощущение уютного европейского пригорода. Во входных группах выполнена дизайнерская отделка, в каждом подъезде предусмотрены просторные колясочные для хранения детского инвентаря, колясок и велосипедов. Первые этажи домов отведены под коммерческие помещения для размещения магазинов, салонов красоты, аптек и других объектов социально-бытовой инфраструктуры.
В проекте предложены одно- двух- и трехкомнатные квартиры европейского формата с просторными кухнями-гостиными, а также квартиры формата Лаунж Флэт с потолками до 3,7 метра и собственными террасами-патио. Все квартиры сдаются без отделки.
Территория комплекса не огорожена, но изолирована за счет естественного барьера — окружающего квартал лесного массива. В закрытых от машин дворах оборудованы современные детские площадки. Важным преимуществом для семей с детьми является муниципальная школа на 1100 мест и муниципальный и частный детские сады на 280 мест. Для владельцев автомобилей предусмотрены два многоуровневых наземных паркинга и гостевые парковки возле домов. В многоуровневом паркинге спроектированы кладовые помещения.
Жилой комплекс расположен в Красногорске, в микрорайоне Опалиха. Локация сочетает в себе благоприятную экологию с прекрасной транспортной доступностью. Квартал расположен между 2 станциями МЦД «Опалиха» и «Аникеевка». До любой из них можно добраться на транспорте за 10 минут. Комплекс имеет удобный выезд на Волоколамское шоссе в сторону Красногорска и Нахабино.
Проектом предусмотрены 14 корпусов средней этажности высотой от 6 до 9 этажей. Проект отличает узнаваемый авторский архитектурный стиль Кварталов Отрада. Современная европейская архитектура с элементами скандинавского стиля и невысокие дома создают ощущение уютного европейского пригорода. Во входных группах выполнена дизайнерская отделка, в каждом подъезде предусмотрены просторные колясочные для хранения детского инвентаря, колясок и велосипедов. Первые этажи домов отведены под коммерческие помещения для размещения магазинов, салонов красоты, аптек и других объектов социально-бытовой инфраструктуры.
В проекте предложены одно- двух- и трехкомнатные квартиры европейского формата с просторными кухнями-гостиными, а также квартиры формата Лаунж Флэт с потолками до 3,7 метра и собственными террасами-патио. Все квартиры сдаются без отделки.
Территория комплекса не огорожена, но изолирована за счет естественного барьера — окружающего квартал лесного массива. В закрытых от машин дворах оборудованы современные детские площадки. Важным преимуществом для семей с детьми является муниципальная школа на 1100 мест и муниципальный и частный детские сады на 280 мест. Для владельцев автомобилей предусмотрены два многоуровневых наземных паркинга и гостевые парковки возле домов. В многоуровневом паркинге спроектированы кладовые помещения.
Жилой комплекс расположен в Красногорске, в микрорайоне Опалиха. Локация сочетает в себе благоприятную экологию с прекрасной транспортной доступностью. Квартал расположен между 2 станциями МЦД «Опалиха» и «Аникеевка». До любой из них можно добраться на транспорте за 10 минут. Комплекс имеет удобный выезд на Волоколамское шоссе в сторону Красногорска и Нахабино.
Проект включает в себя клубный дом на 170 квартир, состоящий из 16 малоэтажных секций высотой от 2 до 6 этажей, и зону дуплексов. Центральная входная группа клубного дома включает в себя дизайнерское лобби с круглосуточным консьержем, зоной ожидания для гостей, почтовой зоной и общественной гостиной. В большинстве подъездов обустроены специальные помещения для хранения спортивного инвентаря. Помещения оборудованы камерами видеонаблюдения и контролем доступа, а система умного дома позволит попасть на территорию при помощи смартфона, заказать пропуск гостям или курьеру, воспользоваться услугами управляющей компании.
Все квартиры в комплексе выполнены в формате европланировок с просторными кухнями-гостиными и приватными спальнями. В части квартир балконы и лоджии остеклены, но есть также и варианты квартир с французскими балконами без остекления. Часть квартир выполнены в формате Лаунж Флэт с собственными террасами патио. На отдельной территории спроектированы дуплексы и индивидуальные жилые дома. Все квартиры в комплексе сдаются без отделки. Высота потолков в квартирах варьируется от 2,96 до 3,71 метра, а из окон открываются виды на реку.
Закрытый двор клубного дома предлагает разнообразные возможности для отдыха, включая террасы с барной стойкой, зоной барбекю, газоном для йоги и местами для релаксации. В рамках строительства жилого комплекса возведены общественные рекреационные и прогулочные зоны, детские и спортивные площадки, пляжные зоны. Местом особого притяжения для жителей района станет благоустроенная набережная с 900-метровым променадом. На территории квартала есть собственный конный клуб и загородный парк с ресторанами и озером для рыбалки. Для владельцев автомобилей предусмотрен трехуровневый подземный паркинг с выделенной зоной гостевой парковки и возможностью установки зарядок для электромобилей.
Жилой комплекс располагается на берегу реки Синичка, в городе Красногорске. В радиусе 3 километров расположены торговый центр «Отрада» и клуб Otrada Beach с бассейном-инфинити, крупнейшая клиника МЕДСИ, 2 муниципальные школы, включая новый образовательный центр «Отрада», 4 частных школы, муниципальные и частные детские сады, фитнес-клубы, студии пилатеса и йоги, спортивный комплекс с теннисными кортами, супермаркеты, пекарни и фермерские магазины. Квартал граничит с районом Митино и находится всего в 10 минутах езды от метро «Пятницкое шоссе».
Жилой комплекс бизнес-класса состоит из 3 башен высотой 31 этаж, объединенных общим стилобатом. Здания выполнены по кирпично-монолитной технологии с вентилируемым фасадом из керамогранита. Нижняя часть оформлена в терракотовых и графитовых оттенках, а верхняя — в серебристых тонах со стеклянными вставками. В домах предусмотрены грузовые лифты и дизайнерские входные группы с местами для велосипедов и колясок
В проекте представлены студии и квартиры с 1–3 комнатами. Основная часть лотов спроектирована по стандартам евроформата с просторной кухней-гостиной, также доступны планировки с изолированной кухней. Высота потолков составляет 2,85 м на типовых этажах и 6 м на последних. На верхних этажах размещены пентхаусы с панорамными окнами и видами на Опалиховский лесопарк. Остальные квартиры оборудованы стандартными окнами с улучшенной шумоизоляцией. Отделка выполнена в подчистовом формате или без стен — в зависимости от корпуса.
В стилобатной части комплекса размещены коммерческие помещения. На стилобате обустроен двор с местами для прогулок и смотровой площадкой. Предусмотрен многоуровневый подземный паркинг с системой распознавания номеров, а также система умного дома с доступом в подъезд и на территорию через мобильное приложение. Безопасность обеспечивают круглосуточная охрана и видеонаблюдение.
Проект расположен в городе Красногорск Московской области, в самой высокой точке города. В 5–20 минутах пешком находятся детские сады, школы, медицинские учреждения, магазины, кафе, аптеки, фитнес-клубы, торговые центры и природные зоны — Опалиховский лесопарк, Изумрудные холмы и Губайловский экопарк. До станции Павшино (линия D2) — 10 минут транспортом, до МКАД — 15 минут, до ТТК — 25 минут, а до центра Москвы — 35 минут.
