









Проект представлен 5 зданиями высотой от 20 до 26 этажей, построенными по кирпично-монолитной технологии. Фасады облицованы керамогранитом по вентилируемой системе с выразительной архитектурой от мастерской Фефелова и фирменной подсветкой в темное время суток. В квартирах установлены увеличенные окна высотой до 2,35 м, с двухкамерными стеклопакетами и алюминиевым профилем. На втором этаже предусмотрены квартиры с потолками до 5,42 м, на остальных этажах — 3,02 м. В проекте оборудован подземный паркинг с отоплением, системой распознавания госномеров и лифтовым доступом со всех жилых этажей.
Жилой комплекс включает студии и квартиры от 1 до 4 комнат, включая европланировки с кухней-нишей и всего 3 квартиры с террасами от 5 до 16 кв. м. Площадь лотов варьируется от 28,4 до 120,4 кв. м. В корпусах представлены два формата отделки: white box и без отделки. В white box выполнены стяжка, черновая электрика, звуко- и гидроизоляция, перегородки, штукатурка, подрозетники и выводы под освещение. Возможны объединения квартир и создание индивидуальных планировок.
Закрытая территория двора площадью 1,15 га благоустроена бюро Правда и включает игровые зоны, площадки для спорта, воркаута и йоги, уличный коворкинг и тихие места для отдыха. Лобби с авторским дизайном от бюро BLANK выполнено в формате просторных гостиных площадью 45–50 кв. м с потолками до 6,45 м. Здесь предусмотрены мягкие зоны для общения, камин, стойка ресепшен, почтовые ящики и дополнительные удобства: гостевые санузлы и мойки для лап животных. На первых этажах размещены коммерческие помещения под кафе, пекарни и магазины.
Комплекс расположен в престижном районе вблизи Химкинского водохранилища и парка Покровское-Стрешнево. Пешком можно дойти до станции МЦК Балтийская за 10 минут и до метро Войковская за 15 минут. Выезд на Ленинградское шоссе занимает 5 минут, дорога до Третьего транспортного кольца — около 10 минут. В окружении — ТЦ Метрополис, фитнес-клубы, школы, детские сады, медицинские учреждения и крупные спортивные объекты. Поблизости находятся Старопетровский сквер, усадьба Михалково, Тимирязевский парк, а также пляж и вейк-клуб на берегу водохранилища.

Жилой комплекс «Level Селигерская» состоит из двух домов высотой от 11 до 30 этажей объединенных общим стилобатом. В оформлении стен зданий используется современный навесной вентилируемый фасад из керамогранита. В дизайнерском лобби предусмотрены высокие потолки – 4,9 метра, панорамное остекление, ресепшен и лаунж-зона. На первом этаже спроектирована лапомойка для животных.
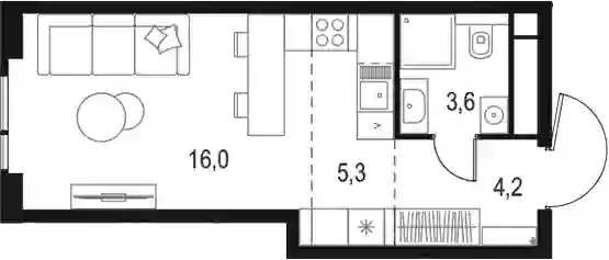
В проекте «Level Селигерская» предложено множество планировочных решений. Квартиры сдаются без отделки и со свободной планировкой, высотой потолков 2,8 метра и увеличенными окнами. Угловое остекление и большое количество окон в квартире наполняют жилое пространство большим количеством естественного света.
По всей территории проекта «Level Селигерская» ведется круглосуточное видеонаблюдение. Во дворе-парке выполнен ландшафтный дизайн с перепадом высот и тематическими зонами, установлены детские и спортивные площадки, организованы места для отдыха и предусмотрен бесплатный WI-FI. Придомовая территория реализована по концепции «двор без машин» и огорожена по периметру. Для владельцев автомобилей спроектирован подземный паркинг.
ЖК «Level Селигерская» расположен на севере Москвы — в развитом Бескудниковском районе, в пешей доступности от метро «Селигерская». Рядом с комплексом находятся магазины, школы, детские сады, салоны красоты, кафе, медицинские учреждения и парки. Имеется удобный выезд на Дмитровское шоссе и МКАД.
Жилой комплекс «Level Селигерская» состоит из двух домов высотой от 11 до 30 этажей объединенных общим стилобатом. В оформлении стен зданий используется современный навесной вентилируемый фасад из керамогранита. В дизайнерском лобби предусмотрены высокие потолки – 4,9 метра, панорамное остекление, ресепшен и лаунж-зона. На первом этаже спроектирована лапомойка для животных.
В проекте «Level Селигерская» предложено множество планировочных решений. Квартиры сдаются без отделки и со свободной планировкой, высотой потолков 2,8 метра и увеличенными окнами. Угловое остекление и большое количество окон в квартире наполняют жилое пространство большим количеством естественного света.
По всей территории проекта «Level Селигерская» ведется круглосуточное видеонаблюдение. Во дворе-парке выполнен ландшафтный дизайн с перепадом высот и тематическими зонами, установлены детские и спортивные площадки, организованы места для отдыха и предусмотрен бесплатный WI-FI. Придомовая территория реализована по концепции «двор без машин» и огорожена по периметру. Для владельцев автомобилей спроектирован подземный паркинг.
ЖК «Level Селигерская» расположен на севере Москвы — в развитом Бескудниковском районе, в пешей доступности от метро «Селигерская». Рядом с комплексом находятся магазины, школы, детские сады, салоны красоты, кафе, медицинские учреждения и парки. Имеется удобный выезд на Дмитровское шоссе и МКАД.
Комплекс состоит из 2 кирпично-монолитных башен высотой 48 и 64 этажа с выразительной архитектурой от студии Станислава Михаловского. В отделке фасадов используются алюминиевые кассеты, стемалит, хризотилцементные плиты с эффектом глянца. Фасады выполнены в сдержанной цветовой палитре, которая включает оттенки серого от серебристого до графитового. Башни имеют просторное дизайнерское лобби с окнами в пол. В каждом лоббиоборудованы стойки ресепшена,комфортные зоны ожидания, гостевыесанузлы и мойки для лап животных.
В комплексе предложено 20 вариантов планировочных решений площадью от 17 до 123 кв. метров. Есть нестандартные
форматы квартир: квартиры с террасами, квартиры с двумя балконами и квартиры с панорамными окнами на верхних этажах. На выбор предложено 3 варианта отделки: без отделки, White box и дизайнерская. Из большинства квартир открываются виды на панораму города.
Между корпусами спроектирован закрытый двор-парк площадью 0,45 га с детскими площадками для всех возрастов, воркаут-зонами, местами для работы на свежем воздухе с доступом к Wi-Fi и амфитеатром для событийных мероприятий. В стилобатах и на первых этажах предусмотрены коммерческие помещения для магазинов, кафе и других необходимых сервисов. Под корпусами расположен двухуровневый паркинг на 350 мест с системой распознавания номеров автомобиля.
Комплекс расположен в районе Хорошево-Мневники, на северо-западе Москвы. В перечень знаковых мест рядом с комплексом входят: Музей русского импрессионизма, дворец спорта «МЕГАСПОРТ», Московский зоопарк. В непосредственной близости расположены 12 парковых зон отдыха общей площадью 1000 гектар, среди них: «Ходынское поле», «Серебряный бор», «Красная Пресня» и Парк Победы. Комплекс находится в районе с качественной образовательной средой. В пешей доступности и в 10-15 минутах на автомобиле более 25 детских садов, порядка 20 школ и 10 вузов, в том числе с высоким рейтингом. Такие как: международный детский сад One! International School, Курчатовская школа, Школа № 1560 «Лидер», Финансовый университет при Правительстве РФ. В пешей доступности метро «Народное ополчение» и «Хорошево». В 5 минутах пешком от проекта откроетсястанция «Звенигородская». На автомобиле можно добраться за 4 минуты до ТТК, за 8 — до Садового кольца, за 15 — до Кремля.
Комплекс состоит из 2 кирпично-монолитных башен высотой 48 и 64 этажа с выразительной архитектурой от студии Станислава Михаловского. В отделке фасадов используются алюминиевые кассеты, стемалит, хризотилцементные плиты с эффектом глянца. Фасады выполнены в сдержанной цветовой палитре, которая включает оттенки серого от серебристого до графитового. Башни имеют просторное дизайнерское лобби с окнами в пол. В каждом лоббиоборудованы стойки ресепшена,комфортные зоны ожидания, гостевыесанузлы и мойки для лап животных.
В комплексе предложено 20 вариантов планировочных решений площадью от 17 до 123 кв. метров. Есть нестандартные
форматы квартир: квартиры с террасами, квартиры с двумя балконами и квартиры с панорамными окнами на верхних этажах. На выбор предложено 3 варианта отделки: без отделки, White box и дизайнерская. Из большинства квартир открываются виды на панораму города.
Между корпусами спроектирован закрытый двор-парк площадью 0,45 га с детскими площадками для всех возрастов, воркаут-зонами, местами для работы на свежем воздухе с доступом к Wi-Fi и амфитеатром для событийных мероприятий. В стилобатах и на первых этажах предусмотрены коммерческие помещения для магазинов, кафе и других необходимых сервисов. Под корпусами расположен двухуровневый паркинг на 350 мест с системой распознавания номеров автомобиля.
Комплекс расположен в районе Хорошево-Мневники, на северо-западе Москвы. В перечень знаковых мест рядом с комплексом входят: Музей русского импрессионизма, дворец спорта «МЕГАСПОРТ», Московский зоопарк. В непосредственной близости расположены 12 парковых зон отдыха общей площадью 1000 гектар, среди них: «Ходынское поле», «Серебряный бор», «Красная Пресня» и Парк Победы. Комплекс находится в районе с качественной образовательной средой. В пешей доступности и в 10-15 минутах на автомобиле более 25 детских садов, порядка 20 школ и 10 вузов, в том числе с высоким рейтингом. Такие как: международный детский сад One! International School, Курчатовская школа, Школа № 1560 «Лидер», Финансовый университет при Правительстве РФ. В пешей доступности метро «Народное ополчение» и «Хорошево». В 5 минутах пешком от проекта откроетсястанция «Звенигородская». На автомобиле можно добраться за 4 минуты до ТТК, за 8 — до Садового кольца, за 15 — до Кремля.
Жилой комплекс «Level Южнопортовая» — это комплексная застройка из 14 монолитных домов переменной этажности от 12 до 69 этажей. Архитектурная концепция разработана бюро «SPEECH». Дизайн фасадов напоминает волны. Образ подчеркивает светлая цветовая гамма с чередованием оттенков серого. В зависимости от ракурса и освещения силуэты зданий меняются, создавая эффект движения воды.
В ЖК «Level Южнопортовая» предложено множество планировочных решений: в наличии квартиры, как классического типа, так и европланировки. Можно подобрать планировку с увеличенным количеством окон, с мастер-спальней, угловым остеклением. На 68 и 69 этажах расположены двухуровневые квартиры с высотой потолков 5,9 метров. На выбор предлагаются квартиры без отделки, с отделкой «White box» и дизайнерской отделкой в одном из двух стилей — «Modern» или «Classic». Из окон открываются панорамные виды на реку, парки и Москва-Сити.
Проект благоустройства ЖК «Level Южнопортовая» разработан бюро «GAFA». Главная идея — создание аналога Центрального парка Нью-Йорка. Около половины внутренней территории в 2 га отведено под озеленение, предусмотрено несколько тематических зон отдыха: цветочный сад, пустыня, хвойный лес и другие. Оборудованы современные детские и спортивные площадки, открытая зона с двумя навесами, тренажерами, качелями и петанком, в центре двора разбит амфитеатр. В жилом комплексе своя развитая инфраструктура: первые этажи занимают коммерческие помещения, на территории расположены собственный детский сад и школа, торговый и медицинский центры, кафе, магазины и фитнес-центр. В проекте спроектированы Open Space и террасы для коливинга с живой изгородью, шезлонгами, столами и розетками. Для владельцев автомобилей предусмотрено 2 паркинга — подземный отапливаемый и отдельно стоящий 9-этажный.
ЖК «Level Южнопортовая» расположен в районе Печатники, на левом берегу Москвы-реки. В пешей доступности находится 2 метро — «Кожуховская» и «Дубровка». До ТТК дорога займет 3 минуты, до МКАД — 20 минут транспортом.
Жилой комплекс «Level Южнопортовая» — это комплексная застройка из 14 монолитных домов переменной этажности от 12 до 69 этажей. Архитектурная концепция разработана бюро «SPEECH». Дизайн фасадов напоминает волны. Образ подчеркивает светлая цветовая гамма с чередованием оттенков серого. В зависимости от ракурса и освещения силуэты зданий меняются, создавая эффект движения воды.
В ЖК «Level Южнопортовая» предложено множество планировочных решений: в наличии квартиры, как классического типа, так и европланировки. Можно подобрать планировку с увеличенным количеством окон, с мастер-спальней, угловым остеклением. На 68 и 69 этажах расположены двухуровневые квартиры с высотой потолков 5,9 метров. На выбор предлагаются квартиры без отделки, с отделкой «White box» и дизайнерской отделкой в одном из двух стилей — «Modern» или «Classic». Из окон открываются панорамные виды на реку, парки и Москва-Сити.
Проект благоустройства ЖК «Level Южнопортовая» разработан бюро «GAFA». Главная идея — создание аналога Центрального парка Нью-Йорка. Около половины внутренней территории в 2 га отведено под озеленение, предусмотрено несколько тематических зон отдыха: цветочный сад, пустыня, хвойный лес и другие. Оборудованы современные детские и спортивные площадки, открытая зона с двумя навесами, тренажерами, качелями и петанком, в центре двора разбит амфитеатр. В жилом комплексе своя развитая инфраструктура: первые этажи занимают коммерческие помещения, на территории расположены собственный детский сад и школа, торговый и медицинский центры, кафе, магазины и фитнес-центр. В проекте спроектированы Open Space и террасы для коливинга с живой изгородью, шезлонгами, столами и розетками. Для владельцев автомобилей предусмотрено 2 паркинга — подземный отапливаемый и отдельно стоящий 9-этажный.
ЖК «Level Южнопортовая» расположен в районе Печатники, на левом берегу Москвы-реки. В пешей доступности находится 2 метро — «Кожуховская» и «Дубровка». До ТТК дорога займет 3 минуты, до МКАД — 20 минут транспортом.
Жилой комплекс «Level Южнопортовая» — это комплексная застройка из 14 монолитных домов переменной этажности от 12 до 69 этажей. Архитектурная концепция разработана бюро «SPEECH». Дизайн фасадов напоминает волны. Образ подчеркивает светлая цветовая гамма с чередованием оттенков серого. В зависимости от ракурса и освещения силуэты зданий меняются, создавая эффект движения воды.
В ЖК «Level Южнопортовая» предложено множество планировочных решений: в наличии квартиры, как классического типа, так и европланировки. Можно подобрать планировку с увеличенным количеством окон, с мастер-спальней, угловым остеклением. На 68 и 69 этажах расположены двухуровневые квартиры с высотой потолков 5,9 метров. На выбор предлагаются квартиры без отделки, с отделкой «White box» и дизайнерской отделкой в одном из двух стилей — «Modern» или «Classic». Из окон открываются панорамные виды на реку, парки и Москва-Сити.
Проект благоустройства ЖК «Level Южнопортовая» разработан бюро «GAFA». Главная идея — создание аналога Центрального парка Нью-Йорка. Около половины внутренней территории в 2 га отведено под озеленение, предусмотрено несколько тематических зон отдыха: цветочный сад, пустыня, хвойный лес и другие. Оборудованы современные детские и спортивные площадки, открытая зона с двумя навесами, тренажерами, качелями и петанком, в центре двора разбит амфитеатр. В жилом комплексе своя развитая инфраструктура: первые этажи занимают коммерческие помещения, на территории расположены собственный детский сад и школа, торговый и медицинский центры, кафе, магазины и фитнес-центр. В проекте спроектированы Open Space и террасы для коливинга с живой изгородью, шезлонгами, столами и розетками. Для владельцев автомобилей предусмотрено 2 паркинга — подземный отапливаемый и отдельно стоящий 9-этажный.
ЖК «Level Южнопортовая» расположен в районе Печатники, на левом берегу Москвы-реки. В пешей доступности находится 2 метро — «Кожуховская» и «Дубровка». До ТТК дорога займет 3 минуты, до МКАД — 20 минут транспортом.
Жилой комплекс «Level Южнопортовая» — это комплексная застройка из 14 монолитных домов переменной этажности от 12 до 69 этажей. Архитектурная концепция разработана бюро «SPEECH». Дизайн фасадов напоминает волны. Образ подчеркивает светлая цветовая гамма с чередованием оттенков серого. В зависимости от ракурса и освещения силуэты зданий меняются, создавая эффект движения воды.
В ЖК «Level Южнопортовая» предложено множество планировочных решений: в наличии квартиры, как классического типа, так и европланировки. Можно подобрать планировку с увеличенным количеством окон, с мастер-спальней, угловым остеклением. На 68 и 69 этажах расположены двухуровневые квартиры с высотой потолков 5,9 метров. На выбор предлагаются квартиры без отделки, с отделкой «White box» и дизайнерской отделкой в одном из двух стилей — «Modern» или «Classic». Из окон открываются панорамные виды на реку, парки и Москва-Сити.
Проект благоустройства ЖК «Level Южнопортовая» разработан бюро «GAFA». Главная идея — создание аналога Центрального парка Нью-Йорка. Около половины внутренней территории в 2 га отведено под озеленение, предусмотрено несколько тематических зон отдыха: цветочный сад, пустыня, хвойный лес и другие. Оборудованы современные детские и спортивные площадки, открытая зона с двумя навесами, тренажерами, качелями и петанком, в центре двора разбит амфитеатр. В жилом комплексе своя развитая инфраструктура: первые этажи занимают коммерческие помещения, на территории расположены собственный детский сад и школа, торговый и медицинский центры, кафе, магазины и фитнес-центр. В проекте спроектированы Open Space и террасы для коливинга с живой изгородью, шезлонгами, столами и розетками. Для владельцев автомобилей предусмотрено 2 паркинга — подземный отапливаемый и отдельно стоящий 9-этажный.
ЖК «Level Южнопортовая» расположен в районе Печатники, на левом берегу Москвы-реки. В пешей доступности находится 2 метро — «Кожуховская» и «Дубровка». До ТТК дорога займет 3 минуты, до МКАД — 20 минут транспортом.
Жилой комплекс «Level Южнопортовая» — это комплексная застройка из 14 монолитных домов переменной этажности от 12 до 69 этажей. Архитектурная концепция разработана бюро «SPEECH». Дизайн фасадов напоминает волны. Образ подчеркивает светлая цветовая гамма с чередованием оттенков серого. В зависимости от ракурса и освещения силуэты зданий меняются, создавая эффект движения воды.
В ЖК «Level Южнопортовая» предложено множество планировочных решений: в наличии квартиры, как классического типа, так и европланировки. Можно подобрать планировку с увеличенным количеством окон, с мастер-спальней, угловым остеклением. На 68 и 69 этажах расположены двухуровневые квартиры с высотой потолков 5,9 метров. На выбор предлагаются квартиры без отделки, с отделкой «White box» и дизайнерской отделкой в одном из двух стилей — «Modern» или «Classic». Из окон открываются панорамные виды на реку, парки и Москва-Сити.
Проект благоустройства ЖК «Level Южнопортовая» разработан бюро «GAFA». Главная идея — создание аналога Центрального парка Нью-Йорка. Около половины внутренней территории в 2 га отведено под озеленение, предусмотрено несколько тематических зон отдыха: цветочный сад, пустыня, хвойный лес и другие. Оборудованы современные детские и спортивные площадки, открытая зона с двумя навесами, тренажерами, качелями и петанком, в центре двора разбит амфитеатр. В жилом комплексе своя развитая инфраструктура: первые этажи занимают коммерческие помещения, на территории расположены собственный детский сад и школа, торговый и медицинский центры, кафе, магазины и фитнес-центр. В проекте спроектированы Open Space и террасы для коливинга с живой изгородью, шезлонгами, столами и розетками. Для владельцев автомобилей предусмотрено 2 паркинга — подземный отапливаемый и отдельно стоящий 9-этажный.
ЖК «Level Южнопортовая» расположен в районе Печатники, на левом берегу Москвы-реки. В пешей доступности находится 2 метро — «Кожуховская» и «Дубровка». До ТТК дорога займет 3 минуты, до МКАД — 20 минут транспортом.
Жилой комплекс «Level Южнопортовая» — это комплексная застройка из 14 монолитных домов переменной этажности от 12 до 69 этажей. Архитектурная концепция разработана бюро «SPEECH». Дизайн фасадов напоминает волны. Образ подчеркивает светлая цветовая гамма с чередованием оттенков серого. В зависимости от ракурса и освещения силуэты зданий меняются, создавая эффект движения воды.
В ЖК «Level Южнопортовая» предложено множество планировочных решений: в наличии квартиры, как классического типа, так и европланировки. Можно подобрать планировку с увеличенным количеством окон, с мастер-спальней, угловым остеклением. На 68 и 69 этажах расположены двухуровневые квартиры с высотой потолков 5,9 метров. На выбор предлагаются квартиры без отделки, с отделкой «White box» и дизайнерской отделкой в одном из двух стилей — «Modern» или «Classic». Из окон открываются панорамные виды на реку, парки и Москва-Сити.
Проект благоустройства ЖК «Level Южнопортовая» разработан бюро «GAFA». Главная идея — создание аналога Центрального парка Нью-Йорка. Около половины внутренней территории в 2 га отведено под озеленение, предусмотрено несколько тематических зон отдыха: цветочный сад, пустыня, хвойный лес и другие. Оборудованы современные детские и спортивные площадки, открытая зона с двумя навесами, тренажерами, качелями и петанком, в центре двора разбит амфитеатр. В жилом комплексе своя развитая инфраструктура: первые этажи занимают коммерческие помещения, на территории расположены собственный детский сад и школа, торговый и медицинский центры, кафе, магазины и фитнес-центр. В проекте спроектированы Open Space и террасы для коливинга с живой изгородью, шезлонгами, столами и розетками. Для владельцев автомобилей предусмотрено 2 паркинга — подземный отапливаемый и отдельно стоящий 9-этажный.
ЖК «Level Южнопортовая» расположен в районе Печатники, на левом берегу Москвы-реки. В пешей доступности находится 2 метро — «Кожуховская» и «Дубровка». До ТТК дорога займет 3 минуты, до МКАД — 20 минут транспортом.
Жилой комплекс «Level Южнопортовая» — это комплексная застройка из 14 монолитных домов переменной этажности от 12 до 69 этажей. Архитектурная концепция разработана бюро «SPEECH». Дизайн фасадов напоминает волны. Образ подчеркивает светлая цветовая гамма с чередованием оттенков серого. В зависимости от ракурса и освещения силуэты зданий меняются, создавая эффект движения воды.
В ЖК «Level Южнопортовая» предложено множество планировочных решений: в наличии квартиры, как классического типа, так и европланировки. Можно подобрать планировку с увеличенным количеством окон, с мастер-спальней, угловым остеклением. На 68 и 69 этажах расположены двухуровневые квартиры с высотой потолков 5,9 метров. На выбор предлагаются квартиры без отделки, с отделкой «White box» и дизайнерской отделкой в одном из двух стилей — «Modern» или «Classic». Из окон открываются панорамные виды на реку, парки и Москва-Сити.
Проект благоустройства ЖК «Level Южнопортовая» разработан бюро «GAFA». Главная идея — создание аналога Центрального парка Нью-Йорка. Около половины внутренней территории в 2 га отведено под озеленение, предусмотрено несколько тематических зон отдыха: цветочный сад, пустыня, хвойный лес и другие. Оборудованы современные детские и спортивные площадки, открытая зона с двумя навесами, тренажерами, качелями и петанком, в центре двора разбит амфитеатр. В жилом комплексе своя развитая инфраструктура: первые этажи занимают коммерческие помещения, на территории расположены собственный детский сад и школа, торговый и медицинский центры, кафе, магазины и фитнес-центр. В проекте спроектированы Open Space и террасы для коливинга с живой изгородью, шезлонгами, столами и розетками. Для владельцев автомобилей предусмотрено 2 паркинга — подземный отапливаемый и отдельно стоящий 9-этажный.
ЖК «Level Южнопортовая» расположен в районе Печатники, на левом берегу Москвы-реки. В пешей доступности находится 2 метро — «Кожуховская» и «Дубровка». До ТТК дорога займет 3 минуты, до МКАД — 20 минут транспортом.
Жилой комплекс «Level Южнопортовая» — это комплексная застройка из 14 монолитных домов переменной этажности от 12 до 69 этажей. Архитектурная концепция разработана бюро «SPEECH». Дизайн фасадов напоминает волны. Образ подчеркивает светлая цветовая гамма с чередованием оттенков серого. В зависимости от ракурса и освещения силуэты зданий меняются, создавая эффект движения воды.
В ЖК «Level Южнопортовая» предложено множество планировочных решений: в наличии квартиры, как классического типа, так и европланировки. Можно подобрать планировку с увеличенным количеством окон, с мастер-спальней, угловым остеклением. На 68 и 69 этажах расположены двухуровневые квартиры с высотой потолков 5,9 метров. На выбор предлагаются квартиры без отделки, с отделкой «White box» и дизайнерской отделкой в одном из двух стилей — «Modern» или «Classic». Из окон открываются панорамные виды на реку, парки и Москва-Сити.
Проект благоустройства ЖК «Level Южнопортовая» разработан бюро «GAFA». Главная идея — создание аналога Центрального парка Нью-Йорка. Около половины внутренней территории в 2 га отведено под озеленение, предусмотрено несколько тематических зон отдыха: цветочный сад, пустыня, хвойный лес и другие. Оборудованы современные детские и спортивные площадки, открытая зона с двумя навесами, тренажерами, качелями и петанком, в центре двора разбит амфитеатр. В жилом комплексе своя развитая инфраструктура: первые этажи занимают коммерческие помещения, на территории расположены собственный детский сад и школа, торговый и медицинский центры, кафе, магазины и фитнес-центр. В проекте спроектированы Open Space и террасы для коливинга с живой изгородью, шезлонгами, столами и розетками. Для владельцев автомобилей предусмотрено 2 паркинга — подземный отапливаемый и отдельно стоящий 9-этажный.
ЖК «Level Южнопортовая» расположен в районе Печатники, на левом берегу Москвы-реки. В пешей доступности находится 2 метро — «Кожуховская» и «Дубровка». До ТТК дорога займет 3 минуты, до МКАД — 20 минут транспортом.
ЖК «Level Причальный» расположен на первой береговой линии Москвы-реки. Архитектура разработана бюро «Остоженка» так, чтобы комплекс гармонично вписался в ансамбль Шелепихинской набережной. Дома строятся по кирпично-монолитной технологии, а навесные-вентелируемые фасады выполнены из керамогранита. В лобби предусмотрен дизайнерский интерьер от бюро «BergerBureаu».
Спроектировано более 80 вариантов планировочных решений от компактных студий до просторных квартир евроформата с мастер-спальнями и кабинетами. Также на выбор представлены квартиры с террасой, с эркером, с патио или с окном в ванной. В комплексе есть видовые квартиры на реку и Москва-Сити с окнами в пол. Реализованы высокие потолки от 2,95 м до 4,37 м. Квартиры передаются без отделки или с подчистовой, есть возможность дозаказать один из двух вариантов дизайнерской отделки.
Для автовладельцев спроектирован двухуровневый паркинг на 618 машиномест. В комплексе предусмотрен собственный торговый центр и гастромаркет. В проект включен благоустроенный двухуровневый двор. Уровни соеденены пешеходным мостом. Для детей запланированы большой игровой комплекс на верхнем уровне и игровая зона на нижнем уровне, к которой ведет горка. Для взрослых разработаны лаунж-зоны и воркаут. Предусмотрен велопарк и площадка для выгула собак за периметром двора. Безопасность обеспечивается за счет закрытой охроняемой территориии.
ЖК «Level Причальный» имеет удобное расположение, что позволит за 5 минут на транспорте добраться до ТТК, за 10 минут – до Москва-Сити, а за 15 - до Садового кольца или МКАД. В 10 минутах пешком находится м. «Шелепиха».
Инфраструктура района включает большое количество магазинов, торговых центров, 9 фитнес-центров, государственные и частные поликлиники, 4 крупных парка, и многие другие объекты. В пешей доступности расположено 2 детских сада и 2 школы.
ЖК «Level Причальный» расположен на первой береговой линии Москвы-реки. Архитектура разработана бюро «Остоженка» так, чтобы комплекс гармонично вписался в ансамбль Шелепихинской набережной. Дома строятся по кирпично-монолитной технологии, а навесные-вентелируемые фасады выполнены из керамогранита. В лобби предусмотрен дизайнерский интерьер от бюро «BergerBureаu».
Спроектировано более 80 вариантов планировочных решений от компактных студий до просторных квартир евроформата с мастер-спальнями и кабинетами. Также на выбор представлены квартиры с террасой, с эркером, с патио или с окном в ванной. В комплексе есть видовые квартиры на реку и Москва-Сити с окнами в пол. Реализованы высокие потолки от 2,95 м до 4,37 м. Квартиры передаются без отделки или с подчистовой, есть возможность дозаказать один из двух вариантов дизайнерской отделки.
Для автовладельцев спроектирован двухуровневый паркинг на 618 машиномест. В комплексе предусмотрен собственный торговый центр и гастромаркет. В проект включен благоустроенный двухуровневый двор. Уровни соеденены пешеходным мостом. Для детей запланированы большой игровой комплекс на верхнем уровне и игровая зона на нижнем уровне, к которой ведет горка. Для взрослых разработаны лаунж-зоны и воркаут. Предусмотрен велопарк и площадка для выгула собак за периметром двора. Безопасность обеспечивается за счет закрытой охроняемой территориии.
ЖК «Level Причальный» имеет удобное расположение, что позволит за 5 минут на транспорте добраться до ТТК, за 10 минут – до Москва-Сити, а за 15 - до Садового кольца или МКАД. В 10 минутах пешком находится м. «Шелепиха».
Инфраструктура района включает большое количество магазинов, торговых центров, 9 фитнес-центров, государственные и частные поликлиники, 4 крупных парка, и многие другие объекты. В пешей доступности расположено 2 детских сада и 2 школы.
ЖК «Level Причальный» расположен на первой береговой линии Москвы-реки. Архитектура разработана бюро «Остоженка» так, чтобы комплекс гармонично вписался в ансамбль Шелепихинской набережной. Дома строятся по кирпично-монолитной технологии, а навесные-вентелируемые фасады выполнены из керамогранита. В лобби предусмотрен дизайнерский интерьер от бюро «BergerBureаu».
Спроектировано более 80 вариантов планировочных решений от компактных студий до просторных квартир евроформата с мастер-спальнями и кабинетами. Также на выбор представлены квартиры с террасой, с эркером, с патио или с окном в ванной. В комплексе есть видовые квартиры на реку и Москва-Сити с окнами в пол. Реализованы высокие потолки от 2,95 м до 4,37 м. Квартиры передаются без отделки или с подчистовой, есть возможность дозаказать один из двух вариантов дизайнерской отделки.
Для автовладельцев спроектирован двухуровневый паркинг на 618 машиномест. В комплексе предусмотрен собственный торговый центр и гастромаркет. В проект включен благоустроенный двухуровневый двор. Уровни соеденены пешеходным мостом. Для детей запланированы большой игровой комплекс на верхнем уровне и игровая зона на нижнем уровне, к которой ведет горка. Для взрослых разработаны лаунж-зоны и воркаут. Предусмотрен велопарк и площадка для выгула собак за периметром двора. Безопасность обеспечивается за счет закрытой охроняемой территориии.
ЖК «Level Причальный» имеет удобное расположение, что позволит за 5 минут на транспорте добраться до ТТК, за 10 минут – до Москва-Сити, а за 15 - до Садового кольца или МКАД. В 10 минутах пешком находится м. «Шелепиха».
Инфраструктура района включает большое количество магазинов, торговых центров, 9 фитнес-центров, государственные и частные поликлиники, 4 крупных парка, и многие другие объекты. В пешей доступности расположено 2 детских сада и 2 школы.
Проект представлен 5 зданиями высотой от 20 до 26 этажей, построенными по кирпично-монолитной технологии. Фасады облицованы керамогранитом по вентилируемой системе с выразительной архитектурой от мастерской Фефелова и фирменной подсветкой в темное время суток. В квартирах установлены увеличенные окна высотой до 2,35 м, с двухкамерными стеклопакетами и алюминиевым профилем. На втором этаже предусмотрены квартиры с потолками до 5,42 м, на остальных этажах — 3,02 м. В проекте оборудован подземный паркинг с отоплением, системой распознавания госномеров и лифтовым доступом со всех жилых этажей.
Жилой комплекс включает студии и квартиры от 1 до 4 комнат, включая европланировки с кухней-нишей и всего 3 квартиры с террасами от 5 до 16 кв. м. Площадь лотов варьируется от 28,4 до 120,4 кв. м. В корпусах представлены два формата отделки: white box и без отделки. В white box выполнены стяжка, черновая электрика, звуко- и гидроизоляция, перегородки, штукатурка, подрозетники и выводы под освещение. Возможны объединения квартир и создание индивидуальных планировок.
Закрытая территория двора площадью 1,15 га благоустроена бюро Правда и включает игровые зоны, площадки для спорта, воркаута и йоги, уличный коворкинг и тихие места для отдыха. Лобби с авторским дизайном от бюро BLANK выполнено в формате просторных гостиных площадью 45–50 кв. м с потолками до 6,45 м. Здесь предусмотрены мягкие зоны для общения, камин, стойка ресепшен, почтовые ящики и дополнительные удобства: гостевые санузлы и мойки для лап животных. На первых этажах размещены коммерческие помещения под кафе, пекарни и магазины.
Комплекс расположен в престижном районе вблизи Химкинского водохранилища и парка Покровское-Стрешнево. Пешком можно дойти до станции МЦК Балтийская за 10 минут и до метро Войковская за 15 минут. Выезд на Ленинградское шоссе занимает 5 минут, дорога до Третьего транспортного кольца — около 10 минут. В окружении — ТЦ Метрополис, фитнес-клубы, школы, детские сады, медицинские учреждения и крупные спортивные объекты. Поблизости находятся Старопетровский сквер, усадьба Михалково, Тимирязевский парк, а также пляж и вейк-клуб на берегу водохранилища.
Жилой комплекс «Level Нижегородская» — современный проект архитектурного бюро «ARCH(E)TYPE», возведенный по технологии газобетонного-монолитного строительства с комбинированными фасадами.
В проекте представлено множество планировочных решений: от студий до просторных 4х-комнатных квартир. Все лоты сдаются с 3 видами отделки, высотой потолков 2,85 метров, увеличенными и панорамными окнами.
Территория комплекса благоустроена: имеется закрытый двор-парк, детские площадки, спортивные площадки с элементами ворк-аута, эко-тропики, места для работы и отдыха с Wi-Fi. В общественных зонах ведется видеонаблюдение. Для входа в жилую часть и на территорию паркинга предоставляется единый ключ доступа.
ЖК «Level Нижегородская» расположен в 10 минутах пешком от станции метро «Нижегородская», которая входит в состав крупнейшего в Москве транспортно-пересадочного узла. Дорога до ТТК на автомобиле занимает 10 минут, до Садового кольца — 15 минут, до центра можно добраться за 20 минут.
Жилой комплекс «Level Нижегородская» — современный проект архитектурного бюро «ARCH(E)TYPE», возведенный по технологии газобетонного-монолитного строительства с комбинированными фасадами.
В проекте представлено множество планировочных решений: от студий до просторных 4х-комнатных квартир. Все лоты сдаются с 3 видами отделки, высотой потолков 2,85 метров, увеличенными и панорамными окнами.
Территория комплекса благоустроена: имеется закрытый двор-парк, детские площадки, спортивные площадки с элементами ворк-аута, эко-тропики, места для работы и отдыха с Wi-Fi. В общественных зонах ведется видеонаблюдение. Для входа в жилую часть и на территорию паркинга предоставляется единый ключ доступа.
ЖК «Level Нижегородская» расположен в 10 минутах пешком от станции метро «Нижегородская», которая входит в состав крупнейшего в Москве транспортно-пересадочного узла. Дорога до ТТК на автомобиле занимает 10 минут, до Садового кольца — 15 минут, до центра можно добраться за 20 минут.
Жилой комплекс «Level Нижегородская» — современный проект архитектурного бюро «ARCH(E)TYPE», возведенный по технологии газобетонного-монолитного строительства с комбинированными фасадами.
В проекте представлено множество планировочных решений: от студий до просторных 4х-комнатных квартир. Все лоты сдаются с 3 видами отделки, высотой потолков 2,85 метров, увеличенными и панорамными окнами.
Территория комплекса благоустроена: имеется закрытый двор-парк, детские площадки, спортивные площадки с элементами ворк-аута, эко-тропики, места для работы и отдыха с Wi-Fi. В общественных зонах ведется видеонаблюдение. Для входа в жилую часть и на территорию паркинга предоставляется единый ключ доступа.
ЖК «Level Нижегородская» расположен в 10 минутах пешком от станции метро «Нижегородская», которая входит в состав крупнейшего в Москве транспортно-пересадочного узла. Дорога до ТТК на автомобиле занимает 10 минут, до Садового кольца — 15 минут, до центра можно добраться за 20 минут.
Жилой комплекс «Level Академическая» — это камерный проект из 1 корпуса высотой в 19 этажей, разработанный бюро UNK project. Для оформления здания использован большой процент остекления фасада. Во всех местах общего пользования выполнена дизайнерская отделка.
В проекте «Level Академическая» представлено более 20 опций функциональных планировочных решений площадью от 18 до 143 кв. метров. Есть редкие форматы: с окнами в ванных комнатах, с собственными патио и трехсторонние с моллированным остеклением. У большинства квартир открывается прекрасный вид в сторону МГУ и Москва-Сити.
На территории проекта «Level Академическая» создана развитая внутренняя инфраструктура — собственный торговый центр с супермаркетом, кафе и магазинами. Помимо этого, спроектирован закрытый безопасный двор на стилобате с детской игровой площадкой, зоной для занятий спортом, а также уютными местами для работы на открытом воздухе.
ЖК «Level Академическая» находится в районе с отличной транспортной доступностью: 1 минута пешком до метро «Академическая», 8 минут на автомобиле до Садового кольца, 4 минуты до ТТК, 13 минут до Кремля. В округе расположилось 80 детских садов, 50 школ, 30 вузов. Многие из них входят в топ рейтингов лучших образовательных учреждений страны. Кроме того, район утопает в зелени парков. Общая площадь природных объектов в радиусе 2–6 км от дома — 476,5 га.

