
Жилой квартал занимает территорию в 14 гектаров, примыкающую к набережной, парку и историческому зданию Северного речного вокзала. В рамках проекта вдоль набережной будет построено 3 линии жилых домов разной высотности. Всего спроектировано 18 корпусов высотой от 10 до 68 этажей. Архитектурная концепция проекта разработана APEX project bureau.
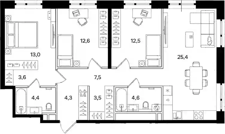
В проекте предложен широкий выбор планировок: от компактных студий до четырехкомнатных квартир. Планировками предусмотрены просторные кухни-гостиные и обязательная гардеробная при входе. Также есть уникальные форматы с собственной террасой, отдельным входом со стороны парка и возможностью обустройства собственного палисадника. Из окон квартир открывается вид на воду, яркие закаты и шпили архитектурного ансамбля Северного вокзала. Квартиры сдаются без отделки.
На территории квартала расположены модные рестораны и кафе, магазины, аква- и фитнес-центр, школа на 825 мест и детский сад на 150 малышей. Первые этажи домов занимают кафе, супермаркеты и сервисы шаговой доступности. В рамках проекта будет построен дом Wellness — спортивный комплекс со СПА-центром и тренажерным залом. У каждого дома есть свой огороженный безопасный двор с индивидуальным ландшафтным дизайном и игровыми площадками. От каждого дома есть прямой доступ к благоустроенной набережной протяженностью 3,2 километра. Для владельцев автомобилей предусмотрен паркинг более чем на 2500 мест.
Квартал расположен в Левобережном районе. Рядом есть образовательные и дошкольные учреждения, развлекательные заведения, спортивные объекты, включая яхт-клуб с собственным причалом, парк «Дружба», парк Северного вокзала, «Левобережный» парк и благоустроенные пляжи. В пешей доступности располагаются метро «Речной вокзал» и «Беломорская». За 10 минут можно доехать до Ленинградского проспекта. Время в пути до ТТК составляет 15 минут, до Садового кольца — 17 минут, до Белорусского вокзала — 15 минут.
