









Жилой комплекс состоит из 3 корпусов высотой 43, 12 и 18 этажей, объединенных общим стилобатом. Архитектурная концепция проекта разработана бюро UNK Architects и вдохновлена творчеством Пита Мондриана. Фасады высотной башни масштабно остеклены с использованием цветных витражей. Другие два корпуса облицованы кирпичом, а верхние этажи украшает витражное остекление. Входные группы и лобби выполнены в современном дизайне с использованием премиальных материалов. Здесь есть и зона ресепшена, и уютное, комфортабельное лаунж-пространство. Здания оснащены системой «Умный дом». На подземных этажах расположены паркинг с лифтовым доступом и функциональные кладовые помещения.
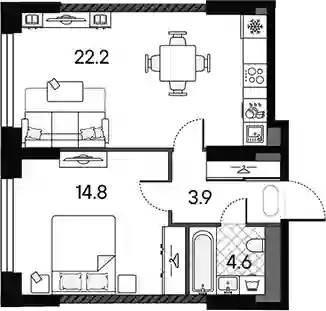
В жилом комплексе предложен широкий выбор планировочных решений: в наличии квартиры как классического типа, так и европланировки. Помимо классических форматов, в комплексе запроектированы квартиры с террасами и двухуровневые пентхаусы. Квартиры сдаются без отделки, высота потолков составляет 3 метра в квартирах и до 5,7 метра в пентхаусах. Все квартиры оснащены увеличенными окнами, в пентхаусах предусмотрено панорамное остекление. Из окон открываются виды на Москву-реку и Музей-заповедник Коломенское.
Двор комплекса благоустроен: на его территории есть детские и спортивные площадки, а также зоны для отдыха. Также здесь находится набережная длиной почти 4 километра, на которой есть действующий причал, амфитеатр и детские и спортивные площадки.
Жилой комплекс находится в Даниловском районе на набережной Марка Шагала. В нескольких шагах от комплекса расположены муниципальные детские сады и школы, а также образовательный центр на 2500 мест. Вблизи находится дизайнерский парк «Тюфелева роща» с арт-объектами, прудом и обширным зеленым массивом. В парке есть прогулочная «галерея», спортивные площадки, тренажеры, игровые зоны для детей и пространство для выгула собак. В пешей доступности находятся «ЦСКА Арена» — крупнейшая площадка для спортивных соревнований, концертных и деловых мероприятий и «Акватория ЗИЛ» — спортивный комплекс с бассейнами, а также «Остров мечты» — крупнейший в Европе крытый тематический парк развлечений. Ближайшее метро «ЗИЛ» — в 20 минутах пешком от комплекса.

Жилой комплекс «Дмитровское небо» включает 2 башни по 32 этажа. Здания объединены трехэтажным стилобатом, в котором размещаются коммерческие помещения. Входные группы представлены дизайнерскими лобби. Концепцию жилого комплекса разработало архитектурное бюро SPEECHСергея Чобана, обладателя Европейской премии в области архитектуры European Prize for Architecture. В каждом корпусе предусмотрены места для хранения колясок и велосипедов.
В комплексе «Дмитровское небо»предложено множество планировочных решений: в наличии квартиры, как классического типа, так и европланировки. Сдаются они без стен, высотой потолков 2,7 метра и увеличенными окнами.
Одно из преимуществ проекта «Дмитровское небо» — закрытый от автомобилей двор с детскими площадками. На его территории оборудована система видеонаблюдения с выводом на центральный пульт диспетчера. Под домами находится единое одноуровневое парковочное пространство на 164 места. На парковке предусмотрен пункт подкачки шин со встроенным пылесосом. На каждом этаже обоих зданий расположатся кладовки для хранения крупногабаритных вещей.
Жилой комплекс «Дмитровское небо» возводится в Северном административном округе в районе Западное Дегунино в Ильменском проезде. Рядом с ЖК работают 9 школ и 14 детских садов. В шаговой доступности от комплекса — парк имени Святослава Федорова, Дегунинский, Головинский и Ангарские пруды, а также главный ботанический сад Российской академии наук. Метро «Селигерская» и «Верхние Лихоборы» расположены в 5 минутах пешком.
Жилой комплекс «Дмитровское небо» включает 2 башни по 32 этажа. Здания объединены трехэтажным стилобатом, в котором размещаются коммерческие помещения. Входные группы представлены дизайнерскими лобби. Концепцию жилого комплекса разработало архитектурное бюро SPEECHСергея Чобана, обладателя Европейской премии в области архитектуры European Prize for Architecture. В каждом корпусе предусмотрены места для хранения колясок и велосипедов.
В комплексе «Дмитровское небо»предложено множество планировочных решений: в наличии квартиры, как классического типа, так и европланировки. Сдаются они без стен, высотой потолков 2,7 метра и увеличенными окнами.
Одно из преимуществ проекта «Дмитровское небо» — закрытый от автомобилей двор с детскими площадками. На его территории оборудована система видеонаблюдения с выводом на центральный пульт диспетчера. Под домами находится единое одноуровневое парковочное пространство на 164 места. На парковке предусмотрен пункт подкачки шин со встроенным пылесосом. На каждом этаже обоих зданий расположатся кладовки для хранения крупногабаритных вещей.
Жилой комплекс «Дмитровское небо» возводится в Северном административном округе в районе Западное Дегунино в Ильменском проезде. Рядом с ЖК работают 9 школ и 14 детских садов. В шаговой доступности от комплекса — парк имени Святослава Федорова, Дегунинский, Головинский и Ангарские пруды, а также главный ботанический сад Российской академии наук. Метро «Селигерская» и «Верхние Лихоборы» расположены в 5 минутах пешком.
Жилой комплекс «Дмитровское небо» включает 2 башни по 32 этажа. Здания объединены трехэтажным стилобатом, в котором размещаются коммерческие помещения. Входные группы представлены дизайнерскими лобби. Концепцию жилого комплекса разработало архитектурное бюро SPEECHСергея Чобана, обладателя Европейской премии в области архитектуры European Prize for Architecture. В каждом корпусе предусмотрены места для хранения колясок и велосипедов.
В комплексе «Дмитровское небо»предложено множество планировочных решений: в наличии квартиры, как классического типа, так и европланировки. Сдаются они без стен, высотой потолков 2,7 метра и увеличенными окнами.
Одно из преимуществ проекта «Дмитровское небо» — закрытый от автомобилей двор с детскими площадками. На его территории оборудована система видеонаблюдения с выводом на центральный пульт диспетчера. Под домами находится единое одноуровневое парковочное пространство на 164 места. На парковке предусмотрен пункт подкачки шин со встроенным пылесосом. На каждом этаже обоих зданий расположатся кладовки для хранения крупногабаритных вещей.
Жилой комплекс «Дмитровское небо» возводится в Северном административном округе в районе Западное Дегунино в Ильменском проезде. Рядом с ЖК работают 9 школ и 14 детских садов. В шаговой доступности от комплекса — парк имени Святослава Федорова, Дегунинский, Головинский и Ангарские пруды, а также главный ботанический сад Российской академии наук. Метро «Селигерская» и «Верхние Лихоборы» расположены в 5 минутах пешком.
Жилой комплекс «Обручева 30» — современный проект архитектурного бюро «KAMEN Architects» включающий в себя 2 здания переменной этажности. Комплекс объединяет 2 зеркальные башни, возвышающиеся из общего каскадного основания. Выполнено фасадное остекление стен зданий. В корпусах установлены пассажирские и грузовые лифты. Во входных группах выполнена премиальная дизайнерская отделка, имеется биокамин. Первые этажи жилого комплекса отведены под коммерческие помещения. Для жильцов предусмотрены места для хранения колясок и велосипедов.
В проекте «Обручева 30» представлено множество планировочных решений. Сдаются они, как с чистовой отделкой, так и без нее. Имеются квартиры с открытыми террасами. Высота потолков — 2,95 метра.
На территории комплекса «Обручева 30»: закрытый от автомобилей двор со спортивными и детскими площадками, навесами для отдыха и малыми архитектурными формами. Внутри двора для жильцов есть Wi-Fi, скамейки с устройствами для зарядки мобильных телефонов. В обоих корпусах работает новейшая система видеонаблюдения. Для доступа в здания имеются IP-домофоны со встроенным модулем Wi-Fi и возможностью подключения индивидуальной вызывной панели. Также предусмотрено парковочное пространство с зоной, оборудованной для подкачки колес и пространство для одновременной зарядки электромобилей.
Жилой комплекс «Обручева 30» находится в районе Коньково города Москвы. В пешей доступности находятся школы, детские сады, библиотеки, высшие учебные заведения, медицинские учреждения и спортивные комплексы. До метро «Калужская» дорога займет 5 минут пешком, до метро «Воронцовская» 10 минут.
Жилой комплекс «Обручева 30» — современный проект архитектурного бюро «KAMEN Architects» включающий в себя 2 здания переменной этажности. Комплекс объединяет 2 зеркальные башни, возвышающиеся из общего каскадного основания. Выполнено фасадное остекление стен зданий. В корпусах установлены пассажирские и грузовые лифты. Во входных группах выполнена премиальная дизайнерская отделка, имеется биокамин. Первые этажи жилого комплекса отведены под коммерческие помещения. Для жильцов предусмотрены места для хранения колясок и велосипедов.
В проекте «Обручева 30» представлено множество планировочных решений. Сдаются они, как с чистовой отделкой, так и без нее. Имеются квартиры с открытыми террасами. Высота потолков — 2,95 метра.
На территории комплекса «Обручева 30»: закрытый от автомобилей двор со спортивными и детскими площадками, навесами для отдыха и малыми архитектурными формами. Внутри двора для жильцов есть Wi-Fi, скамейки с устройствами для зарядки мобильных телефонов. В обоих корпусах работает новейшая система видеонаблюдения. Для доступа в здания имеются IP-домофоны со встроенным модулем Wi-Fi и возможностью подключения индивидуальной вызывной панели. Также предусмотрено парковочное пространство с зоной, оборудованной для подкачки колес и пространство для одновременной зарядки электромобилей.
Жилой комплекс «Обручева 30» находится в районе Коньково города Москвы. В пешей доступности находятся школы, детские сады, библиотеки, высшие учебные заведения, медицинские учреждения и спортивные комплексы. До метро «Калужская» дорога займет 5 минут пешком, до метро «Воронцовская» 10 минут.
ЖК «Wave» — это авторская архитектура от бюро СПИЧ. Проект представляет из себя 4 башни: Azure, Bondi, Indigo и Sapphire — разной этажности, с панорамным остеклением фасадов, алюминиевыми композитными панелями и декоративными решетками создадут атмосферу современного района. Фасады башен имеют индивидуальный характер и при этом образовывать с соседними зданиями единый архитектурный ансамбль.
В жилом комплексе «Wave» предложено множество планировочных решений: в наличии квартиры классического типа, так и европланировки. Сдаются они без стен и высотой потолков 3 метра. Из окон открываются панорамные виды на Москву-реку, пруды и парки.
Внутреннее пространство жилого комплекса Wave» закрыто для посторонних. А благоустроенная территория вокруг комплекса занимает более 7 гектаров, включая продуманное озеленение, всесезонные детские и спортивные площадки. В проекте предусмотрены места для хранения велосипедов, тележки для разгрузки автомобилей, колясочная в лобби, Wi-Fi на улице, скамейки и тренажеры. Скоростные лифты с надежной системой безопасности соединяют двухуровневый подземный паркинг, рассчитанный на более чем 400 мест, с жилыми этажами.
Жилой комплекс WAVE расположен в благоустроенном районе с развитой инфраструктурой, Москворечье-Сабурово. Район Москворечье-Сабурово — это большие парковые ансамбли и красивые водные пространства, хорошая спортивная инфраструктура и близость к деловому кластеру. Рядом с территорией жилого комплекса создана качественной образовательная инфраструктура для детей. В пешей доступности расположены несколько парков: Царицыно, Братеевский каскадный парк, Борисовские пруды и Коломенское. Метро «Борисово» находится в 10 минутах транспортом, а 1,5 км расположена станция МЦД-2 «Москворечье».
ЖК «Wave» — это авторская архитектура от бюро СПИЧ. Проект представляет из себя 4 башни: Azure, Bondi, Indigo и Sapphire — разной этажности, с панорамным остеклением фасадов, алюминиевыми композитными панелями и декоративными решетками создадут атмосферу современного района. Фасады башен имеют индивидуальный характер и при этом образовывать с соседними зданиями единый архитектурный ансамбль.
В жилом комплексе «Wave» предложено множество планировочных решений: в наличии квартиры классического типа, так и европланировки. Сдаются они без стен и высотой потолков 3 метра. Из окон открываются панорамные виды на Москву-реку, пруды и парки.
Внутреннее пространство жилого комплекса Wave» закрыто для посторонних. А благоустроенная территория вокруг комплекса занимает более 7 гектаров, включая продуманное озеленение, всесезонные детские и спортивные площадки. В проекте предусмотрены места для хранения велосипедов, тележки для разгрузки автомобилей, колясочная в лобби, Wi-Fi на улице, скамейки и тренажеры. Скоростные лифты с надежной системой безопасности соединяют двухуровневый подземный паркинг, рассчитанный на более чем 400 мест, с жилыми этажами.
Жилой комплекс WAVE расположен в благоустроенном районе с развитой инфраструктурой, Москворечье-Сабурово. Район Москворечье-Сабурово — это большие парковые ансамбли и красивые водные пространства, хорошая спортивная инфраструктура и близость к деловому кластеру. Рядом с территорией жилого комплекса создана качественной образовательная инфраструктура для детей. В пешей доступности расположены несколько парков: Царицыно, Братеевский каскадный парк, Борисовские пруды и Коломенское. Метро «Борисово» находится в 10 минутах транспортом, а 1,5 км расположена станция МЦД-2 «Москворечье».
ЖК «Wave» — это авторская архитектура от бюро СПИЧ. Проект представляет из себя 4 башни: Azure, Bondi, Indigo и Sapphire — разной этажности, с панорамным остеклением фасадов, алюминиевыми композитными панелями и декоративными решетками создадут атмосферу современного района. Фасады башен имеют индивидуальный характер и при этом образовывать с соседними зданиями единый архитектурный ансамбль.
В жилом комплексе «Wave» предложено множество планировочных решений: в наличии квартиры классического типа, так и европланировки. Сдаются они без стен и высотой потолков 3 метра. Из окон открываются панорамные виды на Москву-реку, пруды и парки.
Внутреннее пространство жилого комплекса Wave» закрыто для посторонних. А благоустроенная территория вокруг комплекса занимает более 7 гектаров, включая продуманное озеленение, всесезонные детские и спортивные площадки. В проекте предусмотрены места для хранения велосипедов, тележки для разгрузки автомобилей, колясочная в лобби, Wi-Fi на улице, скамейки и тренажеры. Скоростные лифты с надежной системой безопасности соединяют двухуровневый подземный паркинг, рассчитанный на более чем 400 мест, с жилыми этажами.
Жилой комплекс WAVE расположен в благоустроенном районе с развитой инфраструктурой, Москворечье-Сабурово. Район Москворечье-Сабурово — это большие парковые ансамбли и красивые водные пространства, хорошая спортивная инфраструктура и близость к деловому кластеру. Рядом с территорией жилого комплекса создана качественной образовательная инфраструктура для детей. В пешей доступности расположены несколько парков: Царицыно, Братеевский каскадный парк, Борисовские пруды и Коломенское. Метро «Борисово» находится в 10 минутах транспортом, а 1,5 км расположена станция МЦД-2 «Москворечье».
Жилой комплекс состоит из 3 корпусов высотой 43, 12 и 18 этажей, объединенных общим стилобатом. Архитектурная концепция проекта разработана бюро UNK Architects и вдохновлена творчеством Пита Мондриана. Фасады высотной башни масштабно остеклены с использованием цветных витражей. Другие два корпуса облицованы кирпичом, а верхние этажи украшает витражное остекление. Входные группы и лобби выполнены в современном дизайне с использованием премиальных материалов. Здесь есть и зона ресепшена, и уютное, комфортабельное лаунж-пространство. Здания оснащены системой «Умный дом». На подземных этажах расположены паркинг с лифтовым доступом и функциональные кладовые помещения.
В жилом комплексе предложен широкий выбор планировочных решений: в наличии квартиры как классического типа, так и европланировки. Помимо классических форматов, в комплексе запроектированы квартиры с террасами и двухуровневые пентхаусы. Квартиры сдаются без отделки, высота потолков составляет 3 метра в квартирах и до 5,7 метра в пентхаусах. Все квартиры оснащены увеличенными окнами, в пентхаусах предусмотрено панорамное остекление. Из окон открываются виды на Москву-реку и Музей-заповедник Коломенское.
Двор комплекса благоустроен: на его территории есть детские и спортивные площадки, а также зоны для отдыха. Также здесь находится набережная длиной почти 4 километра, на которой есть действующий причал, амфитеатр и детские и спортивные площадки.
Жилой комплекс находится в Даниловском районе на набережной Марка Шагала. В нескольких шагах от комплекса расположены муниципальные детские сады и школы, а также образовательный центр на 2500 мест. Вблизи находится дизайнерский парк «Тюфелева роща» с арт-объектами, прудом и обширным зеленым массивом. В парке есть прогулочная «галерея», спортивные площадки, тренажеры, игровые зоны для детей и пространство для выгула собак. В пешей доступности находятся «ЦСКА Арена» — крупнейшая площадка для спортивных соревнований, концертных и деловых мероприятий и «Акватория ЗИЛ» — спортивный комплекс с бассейнами, а также «Остров мечты» — крупнейший в Европе крытый тематический парк развлечений. Ближайшее метро «ЗИЛ» — в 20 минутах пешком от комплекса.
Жилой комплекс состоит из 3 корпусов высотой 43, 12 и 18 этажей, объединенных общим стилобатом. Архитектурная концепция проекта разработана бюро UNK Architects и вдохновлена творчеством Пита Мондриана. Фасады высотной башни масштабно остеклены с использованием цветных витражей. Другие два корпуса облицованы кирпичом, а верхние этажи украшает витражное остекление. Входные группы и лобби выполнены в современном дизайне с использованием премиальных материалов. Здесь есть и зона ресепшена, и уютное, комфортабельное лаунж-пространство. Здания оснащены системой «Умный дом». На подземных этажах расположены паркинг с лифтовым доступом и функциональные кладовые помещения.
В жилом комплексе предложен широкий выбор планировочных решений: в наличии квартиры как классического типа, так и европланировки. Помимо классических форматов, в комплексе запроектированы квартиры с террасами и двухуровневые пентхаусы. Квартиры сдаются без отделки, высота потолков составляет 3 метра в квартирах и до 5,7 метра в пентхаусах. Все квартиры оснащены увеличенными окнами, в пентхаусах предусмотрено панорамное остекление. Из окон открываются виды на Москву-реку и Музей-заповедник Коломенское.
Двор комплекса благоустроен: на его территории есть детские и спортивные площадки, а также зоны для отдыха. Также здесь находится набережная длиной почти 4 километра, на которой есть действующий причал, амфитеатр и детские и спортивные площадки.
Жилой комплекс находится в Даниловском районе на набережной Марка Шагала. В нескольких шагах от комплекса расположены муниципальные детские сады и школы, а также образовательный центр на 2500 мест. Вблизи находится дизайнерский парк «Тюфелева роща» с арт-объектами, прудом и обширным зеленым массивом. В парке есть прогулочная «галерея», спортивные площадки, тренажеры, игровые зоны для детей и пространство для выгула собак. В пешей доступности находятся «ЦСКА Арена» — крупнейшая площадка для спортивных соревнований, концертных и деловых мероприятий и «Акватория ЗИЛ» — спортивный комплекс с бассейнами, а также «Остров мечты» — крупнейший в Европе крытый тематический парк развлечений. Ближайшее метро «ЗИЛ» — в 20 минутах пешком от комплекса.

