Жилой комплекс «Метроном» — современный проект, возведенный по технологии кирпично-монолитного строительства с вентилируемыми фасадами из керамогранита. В комплексе имеются пассажирские и грузовые лифты, колясочные и места для хранения велосипедов. Первые этажи отведены под коммерческие помещения.
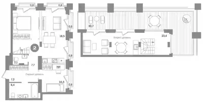
В проекте представлено множество планировочных решений — от студий до просторных 4-х комнатных квартир. Все лоты сдаются с подчистовой отделкой, высотой потолков до 2,7 метров и увеличенными окнами.
Территория комплекса благоустроена и озеленена: имеется система контроля доступа, открытые террасы на крышах, для автовладельцев предусмотрен подземный паркинг.
Жилой комплекс «Метроном» расположен в районе с хорошо развитой инфраструктурой. В пешей доступности имеется все необходимое: продовольственные магазины, медицинские и образовательные учреждения, аптеки, кафе и рестораны.
