Проект представляет собой жилой квартал в едином визуальном стиле. Архитектурный облик зданий сочетает в себе современные элементы и связь с архитектурным наследием района. Комплекс состоит из 3 корпусов, каждый из которых облицован своим собственным оттенком: темно-серым, нежно-розовым и светло-серым. Во всех корпусах представлено дизайнерское лобби от бюро GAAG Studio. В лобби — 2 холла, колясочная, лапомойка, зоны для ожидания, стойка ресепшн, зона для курьеров и доставок.
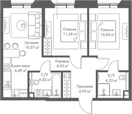
В комплексе представлены квартиры с 1–3 спальнями и таунхаусы. Квартиры сдаются с предчистовой отделкой MR BASE, что позволяет сконцентрироваться на создании интерьера под свой стиль. В квартирах установлены системы «Умная квартира» с контролем освещения и отопления, а также предусмотрена защита от протечек.
На территории благоустроенного двора находятся детские и спортивные площадки, центральная площадь с фонтаном, зеленые дорожки и зоны отдыха. В комплексе есть 2 ресторана с живописным видом на парк, 3 уютных кафе и современная фитнес-студия. Для владельцев автомобилей предусмотрен подземный паркинг на 344 места. Территория закрыта, с системой контроля доступа и круглосуточным видеонаблюдением.
Комплекс расположен в Алексеевском районе, на северо-востоке Москвы. Рядом раскинулись природные и культурные достопримечательности, такие как парк Акведук и река Яуза. В 10 минутах пешком находится масштабный выставочный комплекс ВДНХ, в 15 минутах пешком — станция метро «ВДНХ».
