Ансамбль комплекса формируют три пространства: Nicole Club с коммерческой и жилой частью, семейный Nicole Residence и приватный Nicole Collection с благоустроенными дворами. Над проектом работали 2 бюро с мировым именем — Heatherwick Studio и Paris Classical Architecture. Идеи архитекторов предусматривают бережную реконструкцию старинных зданий и дополнение их новыми элементами, что символизирует вечную классику и гармоничную связь прошлого и настоящего. В архитектурный замысел проекта удалось безупречно интегрировать Усадьбу Хаджи-Консты, возведенную в 1737 году. В общественных зонах объединяется эстетика роскоши и атмосфера уединения. Каждый элемент тщательно подобран, как уникальное произведение искусства. Для резидентов квартала доступны: зимний сад, музыкальный лаундж, сигарная и икорная комнаты, винный и клубный бары. Резиденты комплекса станут членами закрытого клуба, им будет доступен премиальный сервис 24/7, соответствующий самым высоким ожиданиям.
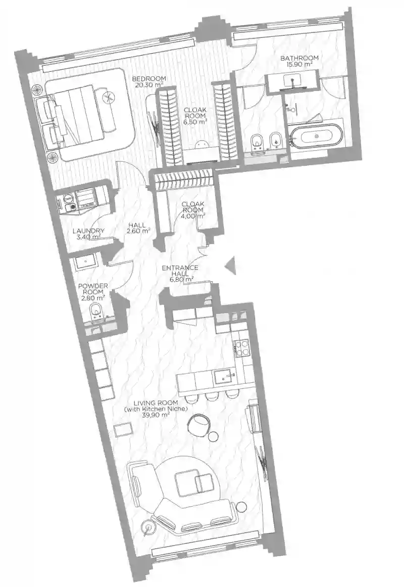
В проекте каждая квартира и каждое планировочное решение уникальны. В комплексе разместятся роскошные квартиры, двухуровневые жилые резиденции и роскошные пентхаусы. Также есть двух- и трехэтажные квартиры с патио и отдельным входом и таунхаусы. Из части квартир открываются панорамные виды на Кремль. Будущим резидентам квартиры предлагаются с подчистовой отделкой White Box Deluxe. В качестве дополнительной опции можно выбрать вариант с финишной авторской отделкой.
В проекте предусмотрены уникальные объекты внутренней инфраструктуры, включая закрытый клуб, игровые зоны для детей и подростков, коворкинг, премиальный ритейл, кафе, рестораны и площадки для проведения мероприятий. В комплексе спроектировано три внутренних двора: яркий общественный, закрытый приватный и уединенный камерный. Территория квартала будет обладать собственной внутренней логикой и структурой и станет местом притяжения, отдыха и вдохновения.
Комплекс находится в Тверском районе столицы, на Никольской улице. Его окружают памятники истории и культуры мирового значения, легендарные театры, знаменитые музеи, выставочные галереи, лучшие рестораны и бутики. За 10 минут можно дойти до Кремля и набережной Москвы-реки. В пешей доступности парк «Зарядье» и Ильинский сквер, Большой театр и ЦУМ.
