Проект «Новое Медведково» включает в себя 39 жилых корпусов высотой 15-17 этажей. Фасады зданий облицованы кирпичом разных оттенков. В холлах выполнена отделка согласно авторскому дизайн-проекту. Входные парадные расположены на уровне земли, без ступеней и пандусов и 2 входами: со двора и улицы.
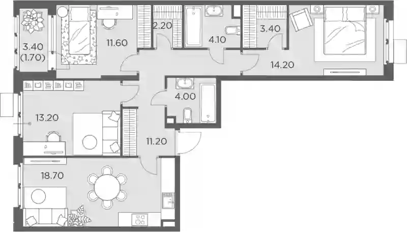
Покупателям квартир в ЖК «Новое Медведково» предложено множество планировочных решений: в наличии квартиры, как классического типа, так и европланировки с гардеробными и кладовыми. Квартиры передаются дольщикам с чистовой отделкой и без отделки.
В состав комплекса входят детские сада и школа. Для автовладельцев предусмотрены паркинги. Также запроектированы кладовые помещения для хранения колясок и велосипедов. Проектом предусмотрено создание уютного закрытого двора, свободного от автомобилей. Все придомовые территории благоустроены и озеленены. Предусмотрены места для отдыха, пешеходные аллеи, игровые площадки и уличные гимнастические комплексы.
Жилой комплекс «Новое Медведково» расположен в Мытищах с развитой инфраструктурой. В пешей доступности находятся Пироговский и Русаковский парки. Метро «Медведково» находится в 15 минутах транспортом.
