












Жилой комплекс «ONEST» — это 4 ультратонкие башни высотой в 23 этажа, 2 корпуса с фасадами из металлических блоков высотой от 9 до 23 этажей и 10 приватных урбан-вилл высотой в 2 этажа. Проект реализован архитектурным бюро «Цимайло Ляшенко и Партнеры». Отличительной особенностью ЖК стали открытые высотные лобби — SKY HALLS, которые представляют собой строгий геометрический объем, высеченный в верхней половине фасада каждой из башен. Они предназначены для размещения общественных функций и делятся на две части. Первая часть – это внутреннее пространство с зоной для работы или отдыха, вторая — терраса с панорамным видом на Москву. В высотных лобби выделены lounge-зоны с view-point баром и кафе, террасы с прекрасными видами, пространства с капсульными местами, места для занятий йогой и тренировок со спортивным оборудованием, раздевалки и туалетные комнаты.
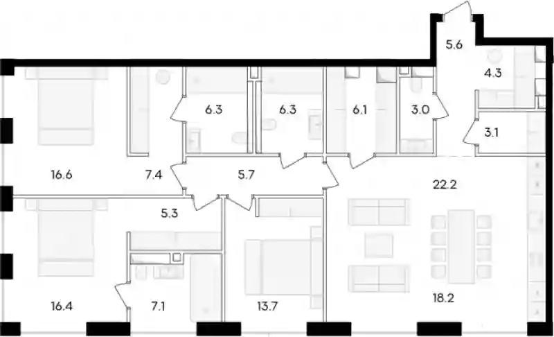
В ЖК «ONEST» предложено множество планировочных решений европейского формата. Сдаются они без стен и высотой потолков от 3,18 до 6,81 метра. Из панорамных окон открывается прекрасный вид на Москву.
На территории проекта «ONEST» предусмотрен внутренний парк с местами для отдыха. Важнейшей частью жилого комплекса стал учебный кластер международного уровня под управлением известного оператора Heritage International School. Корпус расположен внутри закрытого периметра квартала. Здание полностью защищено от несанкционированного проникновения благодаря современным системам безопасности и видеонаблюдения. Для владельцев автомобилей продуман подземный паркинг.
Жилой комплекс «ONEST» расположен в районе, который называют «бронзовой милей» — в нескольких шагах от Краснопресненского парка и в пешей доступности от живописной набережной с видами на знаковые архитектурные объекты города. В непосредственной близости от комплекса: парк «Красногвардейские пруды» – 150 метров, парк «Красная Пресня» – 800 метров, парк «Декабрьского восстания» – 500 метров, Краснопресненская набережная – 1,4 км и набережная Москвы-реки – 1,2 км.

Проект «Достижение» — это шестисекционный дом высотой 21-29 этажей. Архитектурный облик новостройки выполнен в стиле ар-деко. В наружном оформлении здания преобладают различные декоративные элементы, в числе которых кованые балконы, пики, лепнина и арки. Для облицовки фасадов дома используется натуральный камень светлых оттенков в сочетании с клинкерным кирпичом.
Покупателям квартир в ЖК «Достижение» предложено 115 планировочных решений: в наличии квартиры, как классического типа, так и европланировки. Среди них также представлены квартиры с каминами, террасами и пентхаусы с потолками 6,5 метров.
В ЖК «Достижение» функционируют все системы комфорта: вентиляция и фильтрация воздуха, очистка воды, круглогодичное горячее водоснабжение, круглосуточная охрана и огороженная территория. Служба сервиса работает по стандарту Sminex Premium Service. Также в проекте предусмотрен фитнес-клуб по стандарту FIT LAB от Sminex, собственная смотровая площадка на крыше, частный детский сад, развивающая детская площадка и игровая комната по стандарту KID’S LAB, а еще — уникальная общественная гостиная с открытой террасой Для автовладельцев спроектирован двухэтажный подземный паркинг на 835 мест. Во дворе дома на площади 1,7 га создан ландшафтный двор. Предусмотрен большой классический фонтан на центральной площади, уютный пруд с лавочками и тихие зоны для отдыха, 5 пеших маршрутов для променада, а также отдельные зоны активного отдыха: детская площадка, универсальная спортивная площадка и зона workout, зона для пикника.
Комплекс «Достижение» возводится в СВАО столицы в районе Марфино. В пешеходной доступности от дома работают общеобразовательные и дошкольные учреждения, супермаркеты, поликлиника, ТРЦ, спортивные и культурные объекты и несколько больших парковых зон, в числе которых парк «Дубовая роща», парк «Останкино», ВДНХ и Ботанический сад. Дом расположен близко к центру города: 3 станции до Цветного бульвара, 8 минут ходьбы до станции метро «Бутырская», 15 мин на автомобиле до Садового кольца.
Тихий зеленый элитный квартал включает в себя 14 корпусов переменной этажности высотой от 3 до 24 этажей. Каждый дом отличается индивидуальной неповторимой архитектурой. Фасады выполнены из премиальных материалов: светлого и темного гранита, известняка, глазурованного и матового клинкерного кирпича, алюминиевых панелей различных оттенков. Дома оснащены современными системами комфорта: приточно-вытяжной вентиляцией с двухступенчатой фильтрацией воздуха, индивидуальными системами кондиционирования, системой очистки воды до уровня бутилированной питьевой. О жителях и доме заботится Служба комфорта Smineх, которая предлагает сервис уровня 5-звездочных отелей.
В квартале предложен широкий выбор квартир с увеличенной до 7,65 метра высотой потолков, пентхаусов с террасами, дровяными каминами и потолками высотой до 8,25 м. Есть варианты со вторым светом и возможностью обустройства второго этажа. В наличии квартиры High Level на предпоследнем этаже, с возможностью обустроить дровяной камин. Есть квартиры с террасами в уровень этажа, лоты с панорамными окнами, индивидуальными балконами и моллированным остеклением. Все квартиры сдаются без отделки.
В квартале создан уникальный для элитного дома прогулочный бульвар в огромном дворе-парке площадью 2,1 га. Бульвар проходит через весь квартал и объединяет в общее пространство три двора: Кленовый, Рябиновый и Ивовый. Вдоль всего прогулочного маршрута протекает извилистый ручей. Во дворе оборудованы зоны для активного и тихого отдыха, крытые галереи, приватные зеленые комнаты, многофункциональная спортивная площадка, воркаут-зона, детская площадка, сухой фонтан. Только для жителей доступен Clubhouse — уникальный для рынка, продуманный и насыщенный инфраструктурный центр. В нем предусмотрены соседский центр с террасой по стандарту FRIEND’S LAB для встреч и совместного отдыха жителей, детский игровой клуб по стандарту KID’S LAB, пространства для здорового образа жизни по стандарту FIT LAB с бесплатным фитнес-клубом с бассейном.
Квартал находится на исторической Тишинке — в престижном районе центра Москвы. Рядом расположены городские точки притяжения и гастрономические локации. Всего 1,5 километрах от квартала находятся Патриаршие пруды. Белая площадь расположена еще ближе — на расстоянии 1,2 километра. Это точка концентрации деловой жизни и модных ресторанов. В пешей доступности Римско-католический кафедральный собор.
Тихий зеленый элитный квартал включает в себя 14 корпусов переменной этажности высотой от 3 до 24 этажей. Каждый дом отличается индивидуальной неповторимой архитектурой. Фасады выполнены из премиальных материалов: светлого и темного гранита, известняка, глазурованного и матового клинкерного кирпича, алюминиевых панелей различных оттенков. Дома оснащены современными системами комфорта: приточно-вытяжной вентиляцией с двухступенчатой фильтрацией воздуха, индивидуальными системами кондиционирования, системой очистки воды до уровня бутилированной питьевой. О жителях и доме заботится Служба комфорта Smineх, которая предлагает сервис уровня 5-звездочных отелей.
В квартале предложен широкий выбор квартир с увеличенной до 7,65 метра высотой потолков, пентхаусов с террасами, дровяными каминами и потолками высотой до 8,25 м. Есть варианты со вторым светом и возможностью обустройства второго этажа. В наличии квартиры High Level на предпоследнем этаже, с возможностью обустроить дровяной камин. Есть квартиры с террасами в уровень этажа, лоты с панорамными окнами, индивидуальными балконами и моллированным остеклением. Все квартиры сдаются без отделки.
В квартале создан уникальный для элитного дома прогулочный бульвар в огромном дворе-парке площадью 2,1 га. Бульвар проходит через весь квартал и объединяет в общее пространство три двора: Кленовый, Рябиновый и Ивовый. Вдоль всего прогулочного маршрута протекает извилистый ручей. Во дворе оборудованы зоны для активного и тихого отдыха, крытые галереи, приватные зеленые комнаты, многофункциональная спортивная площадка, воркаут-зона, детская площадка, сухой фонтан. Только для жителей доступен Clubhouse — уникальный для рынка, продуманный и насыщенный инфраструктурный центр. В нем предусмотрены соседский центр с террасой по стандарту FRIEND’S LAB для встреч и совместного отдыха жителей, детский игровой клуб по стандарту KID’S LAB, пространства для здорового образа жизни по стандарту FIT LAB с бесплатным фитнес-клубом с бассейном.
Квартал находится на исторической Тишинке — в престижном районе центра Москвы. Рядом расположены городские точки притяжения и гастрономические локации. Всего 1,5 километрах от квартала находятся Патриаршие пруды. Белая площадь расположена еще ближе — на расстоянии 1,2 километра. Это точка концентрации деловой жизни и модных ресторанов. В пешей доступности Римско-католический кафедральный собор.
Тихий зеленый элитный квартал включает в себя 14 корпусов переменной этажности высотой от 3 до 24 этажей. Каждый дом отличается индивидуальной неповторимой архитектурой. Фасады выполнены из премиальных материалов: светлого и темного гранита, известняка, глазурованного и матового клинкерного кирпича, алюминиевых панелей различных оттенков. Дома оснащены современными системами комфорта: приточно-вытяжной вентиляцией с двухступенчатой фильтрацией воздуха, индивидуальными системами кондиционирования, системой очистки воды до уровня бутилированной питьевой. О жителях и доме заботится Служба комфорта Smineх, которая предлагает сервис уровня 5-звездочных отелей.
В квартале предложен широкий выбор квартир с увеличенной до 7,65 метра высотой потолков, пентхаусов с террасами, дровяными каминами и потолками высотой до 8,25 м. Есть варианты со вторым светом и возможностью обустройства второго этажа. В наличии квартиры High Level на предпоследнем этаже, с возможностью обустроить дровяной камин. Есть квартиры с террасами в уровень этажа, лоты с панорамными окнами, индивидуальными балконами и моллированным остеклением. Все квартиры сдаются без отделки.
В квартале создан уникальный для элитного дома прогулочный бульвар в огромном дворе-парке площадью 2,1 га. Бульвар проходит через весь квартал и объединяет в общее пространство три двора: Кленовый, Рябиновый и Ивовый. Вдоль всего прогулочного маршрута протекает извилистый ручей. Во дворе оборудованы зоны для активного и тихого отдыха, крытые галереи, приватные зеленые комнаты, многофункциональная спортивная площадка, воркаут-зона, детская площадка, сухой фонтан. Только для жителей доступен Clubhouse — уникальный для рынка, продуманный и насыщенный инфраструктурный центр. В нем предусмотрены соседский центр с террасой по стандарту FRIEND’S LAB для встреч и совместного отдыха жителей, детский игровой клуб по стандарту KID’S LAB, пространства для здорового образа жизни по стандарту FIT LAB с бесплатным фитнес-клубом с бассейном.
Квартал находится на исторической Тишинке — в престижном районе центра Москвы. Рядом расположены городские точки притяжения и гастрономические локации. Всего 1,5 километрах от квартала находятся Патриаршие пруды. Белая площадь расположена еще ближе — на расстоянии 1,2 километра. Это точка концентрации деловой жизни и модных ресторанов. В пешей доступности Римско-католический кафедральный собор.
Тихий зеленый элитный квартал включает в себя 14 корпусов переменной этажности высотой от 3 до 24 этажей. Каждый дом отличается индивидуальной неповторимой архитектурой. Фасады выполнены из премиальных материалов: светлого и темного гранита, известняка, глазурованного и матового клинкерного кирпича, алюминиевых панелей различных оттенков. Дома оснащены современными системами комфорта: приточно-вытяжной вентиляцией с двухступенчатой фильтрацией воздуха, индивидуальными системами кондиционирования, системой очистки воды до уровня бутилированной питьевой. О жителях и доме заботится Служба комфорта Smineх, которая предлагает сервис уровня 5-звездочных отелей.
В квартале предложен широкий выбор квартир с увеличенной до 7,65 метра высотой потолков, пентхаусов с террасами, дровяными каминами и потолками высотой до 8,25 м. Есть варианты со вторым светом и возможностью обустройства второго этажа. В наличии квартиры High Level на предпоследнем этаже, с возможностью обустроить дровяной камин. Есть квартиры с террасами в уровень этажа, лоты с панорамными окнами, индивидуальными балконами и моллированным остеклением. Все квартиры сдаются без отделки.
В квартале создан уникальный для элитного дома прогулочный бульвар в огромном дворе-парке площадью 2,1 га. Бульвар проходит через весь квартал и объединяет в общее пространство три двора: Кленовый, Рябиновый и Ивовый. Вдоль всего прогулочного маршрута протекает извилистый ручей. Во дворе оборудованы зоны для активного и тихого отдыха, крытые галереи, приватные зеленые комнаты, многофункциональная спортивная площадка, воркаут-зона, детская площадка, сухой фонтан. Только для жителей доступен Clubhouse — уникальный для рынка, продуманный и насыщенный инфраструктурный центр. В нем предусмотрены соседский центр с террасой по стандарту FRIEND’S LAB для встреч и совместного отдыха жителей, детский игровой клуб по стандарту KID’S LAB, пространства для здорового образа жизни по стандарту FIT LAB с бесплатным фитнес-клубом с бассейном.
Квартал находится на исторической Тишинке — в престижном районе центра Москвы. Рядом расположены городские точки притяжения и гастрономические локации. Всего 1,5 километрах от квартала находятся Патриаршие пруды. Белая площадь расположена еще ближе — на расстоянии 1,2 километра. Это точка концентрации деловой жизни и модных ресторанов. В пешей доступности Римско-католический кафедральный собор.
Тихий зеленый элитный квартал включает в себя 14 корпусов переменной этажности высотой от 3 до 24 этажей. Каждый дом отличается индивидуальной неповторимой архитектурой. Фасады выполнены из премиальных материалов: светлого и темного гранита, известняка, глазурованного и матового клинкерного кирпича, алюминиевых панелей различных оттенков. Дома оснащены современными системами комфорта: приточно-вытяжной вентиляцией с двухступенчатой фильтрацией воздуха, индивидуальными системами кондиционирования, системой очистки воды до уровня бутилированной питьевой. О жителях и доме заботится Служба комфорта Smineх, которая предлагает сервис уровня 5-звездочных отелей.
В квартале предложен широкий выбор квартир с увеличенной до 7,65 метра высотой потолков, пентхаусов с террасами, дровяными каминами и потолками высотой до 8,25 м. Есть варианты со вторым светом и возможностью обустройства второго этажа. В наличии квартиры High Level на предпоследнем этаже, с возможностью обустроить дровяной камин. Есть квартиры с террасами в уровень этажа, лоты с панорамными окнами, индивидуальными балконами и моллированным остеклением. Все квартиры сдаются без отделки.
В квартале создан уникальный для элитного дома прогулочный бульвар в огромном дворе-парке площадью 2,1 га. Бульвар проходит через весь квартал и объединяет в общее пространство три двора: Кленовый, Рябиновый и Ивовый. Вдоль всего прогулочного маршрута протекает извилистый ручей. Во дворе оборудованы зоны для активного и тихого отдыха, крытые галереи, приватные зеленые комнаты, многофункциональная спортивная площадка, воркаут-зона, детская площадка, сухой фонтан. Только для жителей доступен Clubhouse — уникальный для рынка, продуманный и насыщенный инфраструктурный центр. В нем предусмотрены соседский центр с террасой по стандарту FRIEND’S LAB для встреч и совместного отдыха жителей, детский игровой клуб по стандарту KID’S LAB, пространства для здорового образа жизни по стандарту FIT LAB с бесплатным фитнес-клубом с бассейном.
Квартал находится на исторической Тишинке — в престижном районе центра Москвы. Рядом расположены городские точки притяжения и гастрономические локации. Всего 1,5 километрах от квартала находятся Патриаршие пруды. Белая площадь расположена еще ближе — на расстоянии 1,2 километра. Это точка концентрации деловой жизни и модных ресторанов. В пешей доступности Римско-католический кафедральный собор.
Тихий зеленый элитный квартал включает в себя 14 корпусов переменной этажности высотой от 3 до 24 этажей. Каждый дом отличается индивидуальной неповторимой архитектурой. Фасады выполнены из премиальных материалов: светлого и темного гранита, известняка, глазурованного и матового клинкерного кирпича, алюминиевых панелей различных оттенков. Дома оснащены современными системами комфорта: приточно-вытяжной вентиляцией с двухступенчатой фильтрацией воздуха, индивидуальными системами кондиционирования, системой очистки воды до уровня бутилированной питьевой. О жителях и доме заботится Служба комфорта Smineх, которая предлагает сервис уровня 5-звездочных отелей.
В квартале предложен широкий выбор квартир с увеличенной до 7,65 метра высотой потолков, пентхаусов с террасами, дровяными каминами и потолками высотой до 8,25 м. Есть варианты со вторым светом и возможностью обустройства второго этажа. В наличии квартиры High Level на предпоследнем этаже, с возможностью обустроить дровяной камин. Есть квартиры с террасами в уровень этажа, лоты с панорамными окнами, индивидуальными балконами и моллированным остеклением. Все квартиры сдаются без отделки.
В квартале создан уникальный для элитного дома прогулочный бульвар в огромном дворе-парке площадью 2,1 га. Бульвар проходит через весь квартал и объединяет в общее пространство три двора: Кленовый, Рябиновый и Ивовый. Вдоль всего прогулочного маршрута протекает извилистый ручей. Во дворе оборудованы зоны для активного и тихого отдыха, крытые галереи, приватные зеленые комнаты, многофункциональная спортивная площадка, воркаут-зона, детская площадка, сухой фонтан. Только для жителей доступен Clubhouse — уникальный для рынка, продуманный и насыщенный инфраструктурный центр. В нем предусмотрены соседский центр с террасой по стандарту FRIEND’S LAB для встреч и совместного отдыха жителей, детский игровой клуб по стандарту KID’S LAB, пространства для здорового образа жизни по стандарту FIT LAB с бесплатным фитнес-клубом с бассейном.
Квартал находится на исторической Тишинке — в престижном районе центра Москвы. Рядом расположены городские точки притяжения и гастрономические локации. Всего 1,5 километрах от квартала находятся Патриаршие пруды. Белая площадь расположена еще ближе — на расстоянии 1,2 километра. Это точка концентрации деловой жизни и модных ресторанов. В пешей доступности Римско-католический кафедральный собор.
Тихий зеленый элитный квартал включает в себя 14 корпусов переменной этажности высотой от 3 до 24 этажей. Каждый дом отличается индивидуальной неповторимой архитектурой. Фасады выполнены из премиальных материалов: светлого и темного гранита, известняка, глазурованного и матового клинкерного кирпича, алюминиевых панелей различных оттенков. Дома оснащены современными системами комфорта: приточно-вытяжной вентиляцией с двухступенчатой фильтрацией воздуха, индивидуальными системами кондиционирования, системой очистки воды до уровня бутилированной питьевой. О жителях и доме заботится Служба комфорта Smineх, которая предлагает сервис уровня 5-звездочных отелей.
В квартале предложен широкий выбор квартир с увеличенной до 7,65 метра высотой потолков, пентхаусов с террасами, дровяными каминами и потолками высотой до 8,25 м. Есть варианты со вторым светом и возможностью обустройства второго этажа. В наличии квартиры High Level на предпоследнем этаже, с возможностью обустроить дровяной камин. Есть квартиры с террасами в уровень этажа, лоты с панорамными окнами, индивидуальными балконами и моллированным остеклением. Все квартиры сдаются без отделки.
В квартале создан уникальный для элитного дома прогулочный бульвар в огромном дворе-парке площадью 2,1 га. Бульвар проходит через весь квартал и объединяет в общее пространство три двора: Кленовый, Рябиновый и Ивовый. Вдоль всего прогулочного маршрута протекает извилистый ручей. Во дворе оборудованы зоны для активного и тихого отдыха, крытые галереи, приватные зеленые комнаты, многофункциональная спортивная площадка, воркаут-зона, детская площадка, сухой фонтан. Только для жителей доступен Clubhouse — уникальный для рынка, продуманный и насыщенный инфраструктурный центр. В нем предусмотрены соседский центр с террасой по стандарту FRIEND’S LAB для встреч и совместного отдыха жителей, детский игровой клуб по стандарту KID’S LAB, пространства для здорового образа жизни по стандарту FIT LAB с бесплатным фитнес-клубом с бассейном.
Квартал находится на исторической Тишинке — в престижном районе центра Москвы. Рядом расположены городские точки притяжения и гастрономические локации. Всего 1,5 километрах от квартала находятся Патриаршие пруды. Белая площадь расположена еще ближе — на расстоянии 1,2 километра. Это точка концентрации деловой жизни и модных ресторанов. В пешей доступности Римско-католический кафедральный собор.
Тихий зеленый элитный квартал включает в себя 14 корпусов переменной этажности высотой от 3 до 24 этажей. Каждый дом отличается индивидуальной неповторимой архитектурой. Фасады выполнены из премиальных материалов: светлого и темного гранита, известняка, глазурованного и матового клинкерного кирпича, алюминиевых панелей различных оттенков. Дома оснащены современными системами комфорта: приточно-вытяжной вентиляцией с двухступенчатой фильтрацией воздуха, индивидуальными системами кондиционирования, системой очистки воды до уровня бутилированной питьевой. О жителях и доме заботится Служба комфорта Smineх, которая предлагает сервис уровня 5-звездочных отелей.
В квартале предложен широкий выбор квартир с увеличенной до 7,65 метра высотой потолков, пентхаусов с террасами, дровяными каминами и потолками высотой до 8,25 м. Есть варианты со вторым светом и возможностью обустройства второго этажа. В наличии квартиры High Level на предпоследнем этаже, с возможностью обустроить дровяной камин. Есть квартиры с террасами в уровень этажа, лоты с панорамными окнами, индивидуальными балконами и моллированным остеклением. Все квартиры сдаются без отделки.
В квартале создан уникальный для элитного дома прогулочный бульвар в огромном дворе-парке площадью 2,1 га. Бульвар проходит через весь квартал и объединяет в общее пространство три двора: Кленовый, Рябиновый и Ивовый. Вдоль всего прогулочного маршрута протекает извилистый ручей. Во дворе оборудованы зоны для активного и тихого отдыха, крытые галереи, приватные зеленые комнаты, многофункциональная спортивная площадка, воркаут-зона, детская площадка, сухой фонтан. Только для жителей доступен Clubhouse — уникальный для рынка, продуманный и насыщенный инфраструктурный центр. В нем предусмотрены соседский центр с террасой по стандарту FRIEND’S LAB для встреч и совместного отдыха жителей, детский игровой клуб по стандарту KID’S LAB, пространства для здорового образа жизни по стандарту FIT LAB с бесплатным фитнес-клубом с бассейном.
Квартал находится на исторической Тишинке — в престижном районе центра Москвы. Рядом расположены городские точки притяжения и гастрономические локации. Всего 1,5 километрах от квартала находятся Патриаршие пруды. Белая площадь расположена еще ближе — на расстоянии 1,2 километра. Это точка концентрации деловой жизни и модных ресторанов. В пешей доступности Римско-католический кафедральный собор.
Тихий зеленый элитный квартал включает в себя 14 корпусов переменной этажности высотой от 3 до 24 этажей. Каждый дом отличается индивидуальной неповторимой архитектурой. Фасады выполнены из премиальных материалов: светлого и темного гранита, известняка, глазурованного и матового клинкерного кирпича, алюминиевых панелей различных оттенков. Дома оснащены современными системами комфорта: приточно-вытяжной вентиляцией с двухступенчатой фильтрацией воздуха, индивидуальными системами кондиционирования, системой очистки воды до уровня бутилированной питьевой. О жителях и доме заботится Служба комфорта Smineх, которая предлагает сервис уровня 5-звездочных отелей.
В квартале предложен широкий выбор квартир с увеличенной до 7,65 метра высотой потолков, пентхаусов с террасами, дровяными каминами и потолками высотой до 8,25 м. Есть варианты со вторым светом и возможностью обустройства второго этажа. В наличии квартиры High Level на предпоследнем этаже, с возможностью обустроить дровяной камин. Есть квартиры с террасами в уровень этажа, лоты с панорамными окнами, индивидуальными балконами и моллированным остеклением. Все квартиры сдаются без отделки.
В квартале создан уникальный для элитного дома прогулочный бульвар в огромном дворе-парке площадью 2,1 га. Бульвар проходит через весь квартал и объединяет в общее пространство три двора: Кленовый, Рябиновый и Ивовый. Вдоль всего прогулочного маршрута протекает извилистый ручей. Во дворе оборудованы зоны для активного и тихого отдыха, крытые галереи, приватные зеленые комнаты, многофункциональная спортивная площадка, воркаут-зона, детская площадка, сухой фонтан. Только для жителей доступен Clubhouse — уникальный для рынка, продуманный и насыщенный инфраструктурный центр. В нем предусмотрены соседский центр с террасой по стандарту FRIEND’S LAB для встреч и совместного отдыха жителей, детский игровой клуб по стандарту KID’S LAB, пространства для здорового образа жизни по стандарту FIT LAB с бесплатным фитнес-клубом с бассейном.
Квартал находится на исторической Тишинке — в престижном районе центра Москвы. Рядом расположены городские точки притяжения и гастрономические локации. Всего 1,5 километрах от квартала находятся Патриаршие пруды. Белая площадь расположена еще ближе — на расстоянии 1,2 километра. Это точка концентрации деловой жизни и модных ресторанов. В пешей доступности Римско-католический кафедральный собор.
Тихий зеленый элитный квартал включает в себя 14 корпусов переменной этажности высотой от 3 до 24 этажей. Каждый дом отличается индивидуальной неповторимой архитектурой. Фасады выполнены из премиальных материалов: светлого и темного гранита, известняка, глазурованного и матового клинкерного кирпича, алюминиевых панелей различных оттенков. Дома оснащены современными системами комфорта: приточно-вытяжной вентиляцией с двухступенчатой фильтрацией воздуха, индивидуальными системами кондиционирования, системой очистки воды до уровня бутилированной питьевой. О жителях и доме заботится Служба комфорта Smineх, которая предлагает сервис уровня 5-звездочных отелей.
В квартале предложен широкий выбор квартир с увеличенной до 7,65 метра высотой потолков, пентхаусов с террасами, дровяными каминами и потолками высотой до 8,25 м. Есть варианты со вторым светом и возможностью обустройства второго этажа. В наличии квартиры High Level на предпоследнем этаже, с возможностью обустроить дровяной камин. Есть квартиры с террасами в уровень этажа, лоты с панорамными окнами, индивидуальными балконами и моллированным остеклением. Все квартиры сдаются без отделки.
В квартале создан уникальный для элитного дома прогулочный бульвар в огромном дворе-парке площадью 2,1 га. Бульвар проходит через весь квартал и объединяет в общее пространство три двора: Кленовый, Рябиновый и Ивовый. Вдоль всего прогулочного маршрута протекает извилистый ручей. Во дворе оборудованы зоны для активного и тихого отдыха, крытые галереи, приватные зеленые комнаты, многофункциональная спортивная площадка, воркаут-зона, детская площадка, сухой фонтан. Только для жителей доступен Clubhouse — уникальный для рынка, продуманный и насыщенный инфраструктурный центр. В нем предусмотрены соседский центр с террасой по стандарту FRIEND’S LAB для встреч и совместного отдыха жителей, детский игровой клуб по стандарту KID’S LAB, пространства для здорового образа жизни по стандарту FIT LAB с бесплатным фитнес-клубом с бассейном.
Квартал находится на исторической Тишинке — в престижном районе центра Москвы. Рядом расположены городские точки притяжения и гастрономические локации. Всего 1,5 километрах от квартала находятся Патриаршие пруды. Белая площадь расположена еще ближе — на расстоянии 1,2 километра. Это точка концентрации деловой жизни и модных ресторанов. В пешей доступности Римско-католический кафедральный собор.
Проект представляет собой элитный клубный город-парк, состоящий из 11 корпусов переменной этажности высотой от 5 до 13 этажей. Это единый ансамбль из трех архитектурных образов. В малоэтажной части пятиэтажные дома и двухэтажные виллы в стиле авангард. В среднеэтажной — 13-этажный дом в стиле сталинский ампир и три 10-этажные стеклянные башни в современном стиле.
В проекте представлено более 150 планировочных решений. Большой выбор уникальных лотов с бассейнами, видовыми террасами, патио и возможностью обустройства дровяных каминов, а также редких форматов: квартир с потолками высотой 7 метров и антресолями, двухэтажных ситихаусов, пентхаусов и вилл. В домах размещено всего от 2 до 5 лотов на этаже. Из окон квартир открываются живописные виды на Кремль, Москву-реку, Нескучный сад и Парк Горького. О жителях и доме заботится служба комфорта Smineх, которая предлагает сервис уровня 5-звездочных отелей.
Только для жителей создан беспрецедентно большой в элит-классе инфраструктурный центр с безграничными возможностями для общения, занятий спортом и детского развития — Clubhouse. В нём размещены соседский центр по стандарту Friend’s Lab, детский игровой клуб по стандарту Kid’s Lab, фитнес с бассейном по стандарту Fit Lab. В рамках проекта создан самый большой в элитном сегменте двор-парк площадью 3,1 гектара. На его территории будут расти сосны, а у воды появятся зоны отдыха. В парке размещены: многофункциональная площадка для командных видов спорта, зона для воркаута, пространство для йоги и медитации, а также детская игровая площадка площадью 600 кв. метров. Для владельцев автомобилей в комплексе предусмотрен подземный паркинг.
Жилой квартал находится в респектабельном районе Хамовники, на Фрунзенской набережной. Расположение идеально подходит для любителей прогулок и здорового образа жизни. Для жителей доступен прямой выход к Москве-реке, за которой раскинулись парк Горького, Нескучный сад и Воробьевы горы — всего 219 гектаров природных парков. На набережной маршруты для бега, пеших и велопрогулок. Спортивный комплекс «Лужники» расположен в 2 километрах.
Жилой комплекс «ONEST» — это 4 ультратонкие башни высотой в 23 этажа, 2 корпуса с фасадами из металлических блоков высотой от 9 до 23 этажей и 10 приватных урбан-вилл высотой в 2 этажа. Проект реализован архитектурным бюро «Цимайло Ляшенко и Партнеры». Отличительной особенностью ЖК стали открытые высотные лобби — SKY HALLS, которые представляют собой строгий геометрический объем, высеченный в верхней половине фасада каждой из башен. Они предназначены для размещения общественных функций и делятся на две части. Первая часть – это внутреннее пространство с зоной для работы или отдыха, вторая — терраса с панорамным видом на Москву. В высотных лобби выделены lounge-зоны с view-point баром и кафе, террасы с прекрасными видами, пространства с капсульными местами, места для занятий йогой и тренировок со спортивным оборудованием, раздевалки и туалетные комнаты.
В ЖК «ONEST» предложено множество планировочных решений европейского формата. Сдаются они без стен и высотой потолков от 3,18 до 6,81 метра. Из панорамных окон открывается прекрасный вид на Москву.
На территории проекта «ONEST» предусмотрен внутренний парк с местами для отдыха. Важнейшей частью жилого комплекса стал учебный кластер международного уровня под управлением известного оператора Heritage International School. Корпус расположен внутри закрытого периметра квартала. Здание полностью защищено от несанкционированного проникновения благодаря современным системам безопасности и видеонаблюдения. Для владельцев автомобилей продуман подземный паркинг.
Жилой комплекс «ONEST» расположен в районе, который называют «бронзовой милей» — в нескольких шагах от Краснопресненского парка и в пешей доступности от живописной набережной с видами на знаковые архитектурные объекты города. В непосредственной близости от комплекса: парк «Красногвардейские пруды» – 150 метров, парк «Красная Пресня» – 800 метров, парк «Декабрьского восстания» – 500 метров, Краснопресненская набережная – 1,4 км и набережная Москвы-реки – 1,2 км.
Жилой комплекс «ONEST» — это 4 ультратонкие башни высотой в 23 этажа, 2 корпуса с фасадами из металлических блоков высотой от 9 до 23 этажей и 10 приватных урбан-вилл высотой в 2 этажа. Проект реализован архитектурным бюро «Цимайло Ляшенко и Партнеры». Отличительной особенностью ЖК стали открытые высотные лобби — SKY HALLS, которые представляют собой строгий геометрический объем, высеченный в верхней половине фасада каждой из башен. Они предназначены для размещения общественных функций и делятся на две части. Первая часть – это внутреннее пространство с зоной для работы или отдыха, вторая — терраса с панорамным видом на Москву. В высотных лобби выделены lounge-зоны с view-point баром и кафе, террасы с прекрасными видами, пространства с капсульными местами, места для занятий йогой и тренировок со спортивным оборудованием, раздевалки и туалетные комнаты.
В ЖК «ONEST» предложено множество планировочных решений европейского формата. Сдаются они без стен и высотой потолков от 3,18 до 6,81 метра. Из панорамных окон открывается прекрасный вид на Москву.
На территории проекта «ONEST» предусмотрен внутренний парк с местами для отдыха. Важнейшей частью жилого комплекса стал учебный кластер международного уровня под управлением известного оператора Heritage International School. Корпус расположен внутри закрытого периметра квартала. Здание полностью защищено от несанкционированного проникновения благодаря современным системам безопасности и видеонаблюдения. Для владельцев автомобилей продуман подземный паркинг.
Жилой комплекс «ONEST» расположен в районе, который называют «бронзовой милей» — в нескольких шагах от Краснопресненского парка и в пешей доступности от живописной набережной с видами на знаковые архитектурные объекты города. В непосредственной близости от комплекса: парк «Красногвардейские пруды» – 150 метров, парк «Красная Пресня» – 800 метров, парк «Декабрьского восстания» – 500 метров, Краснопресненская набережная – 1,4 км и набережная Москвы-реки – 1,2 км.
Жилой комплекс «ONEST» — это 4 ультратонкие башни высотой в 23 этажа, 2 корпуса с фасадами из металлических блоков высотой от 9 до 23 этажей и 10 приватных урбан-вилл высотой в 2 этажа. Проект реализован архитектурным бюро «Цимайло Ляшенко и Партнеры». Отличительной особенностью ЖК стали открытые высотные лобби — SKY HALLS, которые представляют собой строгий геометрический объем, высеченный в верхней половине фасада каждой из башен. Они предназначены для размещения общественных функций и делятся на две части. Первая часть – это внутреннее пространство с зоной для работы или отдыха, вторая — терраса с панорамным видом на Москву. В высотных лобби выделены lounge-зоны с view-point баром и кафе, террасы с прекрасными видами, пространства с капсульными местами, места для занятий йогой и тренировок со спортивным оборудованием, раздевалки и туалетные комнаты.
В ЖК «ONEST» предложено множество планировочных решений европейского формата. Сдаются они без стен и высотой потолков от 3,18 до 6,81 метра. Из панорамных окон открывается прекрасный вид на Москву.
На территории проекта «ONEST» предусмотрен внутренний парк с местами для отдыха. Важнейшей частью жилого комплекса стал учебный кластер международного уровня под управлением известного оператора Heritage International School. Корпус расположен внутри закрытого периметра квартала. Здание полностью защищено от несанкционированного проникновения благодаря современным системам безопасности и видеонаблюдения. Для владельцев автомобилей продуман подземный паркинг.
Жилой комплекс «ONEST» расположен в районе, который называют «бронзовой милей» — в нескольких шагах от Краснопресненского парка и в пешей доступности от живописной набережной с видами на знаковые архитектурные объекты города. В непосредственной близости от комплекса: парк «Красногвардейские пруды» – 150 метров, парк «Красная Пресня» – 800 метров, парк «Декабрьского восстания» – 500 метров, Краснопресненская набережная – 1,4 км и набережная Москвы-реки – 1,2 км.
Жилой комплекс «ONEST» — это 4 ультратонкие башни высотой в 23 этажа, 2 корпуса с фасадами из металлических блоков высотой от 9 до 23 этажей и 10 приватных урбан-вилл высотой в 2 этажа. Проект реализован архитектурным бюро «Цимайло Ляшенко и Партнеры». Отличительной особенностью ЖК стали открытые высотные лобби — SKY HALLS, которые представляют собой строгий геометрический объем, высеченный в верхней половине фасада каждой из башен. Они предназначены для размещения общественных функций и делятся на две части. Первая часть – это внутреннее пространство с зоной для работы или отдыха, вторая — терраса с панорамным видом на Москву. В высотных лобби выделены lounge-зоны с view-point баром и кафе, террасы с прекрасными видами, пространства с капсульными местами, места для занятий йогой и тренировок со спортивным оборудованием, раздевалки и туалетные комнаты.
В ЖК «ONEST» предложено множество планировочных решений европейского формата. Сдаются они без стен и высотой потолков от 3,18 до 6,81 метра. Из панорамных окон открывается прекрасный вид на Москву.
На территории проекта «ONEST» предусмотрен внутренний парк с местами для отдыха. Важнейшей частью жилого комплекса стал учебный кластер международного уровня под управлением известного оператора Heritage International School. Корпус расположен внутри закрытого периметра квартала. Здание полностью защищено от несанкционированного проникновения благодаря современным системам безопасности и видеонаблюдения. Для владельцев автомобилей продуман подземный паркинг.
Жилой комплекс «ONEST» расположен в районе, который называют «бронзовой милей» — в нескольких шагах от Краснопресненского парка и в пешей доступности от живописной набережной с видами на знаковые архитектурные объекты города. В непосредственной близости от комплекса: парк «Красногвардейские пруды» – 150 метров, парк «Красная Пресня» – 800 метров, парк «Декабрьского восстания» – 500 метров, Краснопресненская набережная – 1,4 км и набережная Москвы-реки – 1,2 км.
Жилой комплекс «ONEST» — это 4 ультратонкие башни высотой в 23 этажа, 2 корпуса с фасадами из металлических блоков высотой от 9 до 23 этажей и 10 приватных урбан-вилл высотой в 2 этажа. Проект реализован архитектурным бюро «Цимайло Ляшенко и Партнеры». Отличительной особенностью ЖК стали открытые высотные лобби — SKY HALLS, которые представляют собой строгий геометрический объем, высеченный в верхней половине фасада каждой из башен. Они предназначены для размещения общественных функций и делятся на две части. Первая часть – это внутреннее пространство с зоной для работы или отдыха, вторая — терраса с панорамным видом на Москву. В высотных лобби выделены lounge-зоны с view-point баром и кафе, террасы с прекрасными видами, пространства с капсульными местами, места для занятий йогой и тренировок со спортивным оборудованием, раздевалки и туалетные комнаты.
В ЖК «ONEST» предложено множество планировочных решений европейского формата. Сдаются они без стен и высотой потолков от 3,18 до 6,81 метра. Из панорамных окон открывается прекрасный вид на Москву.
На территории проекта «ONEST» предусмотрен внутренний парк с местами для отдыха. Важнейшей частью жилого комплекса стал учебный кластер международного уровня под управлением известного оператора Heritage International School. Корпус расположен внутри закрытого периметра квартала. Здание полностью защищено от несанкционированного проникновения благодаря современным системам безопасности и видеонаблюдения. Для владельцев автомобилей продуман подземный паркинг.
Жилой комплекс «ONEST» расположен в районе, который называют «бронзовой милей» — в нескольких шагах от Краснопресненского парка и в пешей доступности от живописной набережной с видами на знаковые архитектурные объекты города. В непосредственной близости от комплекса: парк «Красногвардейские пруды» – 150 метров, парк «Красная Пресня» – 800 метров, парк «Декабрьского восстания» – 500 метров, Краснопресненская набережная – 1,4 км и набережная Москвы-реки – 1,2 км.
Проект «Чистые Пруды» — это настоящий клубный дом 1915 года высотой в 6 этажей. В проекте выполнена полная реконструкция здания, восстановлены сложный дорогой фасад из натурального камня, карнизы, пилястры с рустами и кованые элементы балконов. В доме спроектировано просторное роскошное лобби с потолками 4,7 метра и общественная гостиная. По вечерам дом украсит архитектурная подсветка.
ЖК «Чистые Пруды» — клубный дом всего на 31 квартиру, включая четыре пентхауса с террасами и каминами. Окна всех квартир выходят в тихий московский двор. Сдаются квартиры без отделки и высотой потолков: 1 этаж — 5,4 метра, типовой — 3,9 метра, 6 этаж —4,1 метра первый уровень и 3,15 метра второй уровень.
Дом «Чистые Пруды» окружен зеленым просторным двором-садом и закрыт для посторонних, он не виден с улицы и разделен на несколько зон: парадная, торжественная часть с фонтаном расположена перед входом в лобби и приватные тихие пространства для отдыха с лавочками и патио. Озеленение сформировано таким образом, чтобы двор-сад оставался красивым в любое время года. Для детей создано уникальное пространство по фирменному стандарту KID’S LAB, оно включает игровую площадку на свежем воздухе и детскую комнату. Для здорового образа жизни создан фитнес-зал также по фирменному стандарту FIT LAB.
Клубный дом «Чистые Пруды» находится в престижном районе Москвы, в 50 метрах от знаменитого пруда и бульвара. Вокруг раскинулась сеть тихих исторических переулков: Кривоколенного, Армянского, Сверчкова, Потаповского. Кремль находится всего в 1500 метрах от дома. В пешей доступности находятся: парк «Горка» с фонтаном и смотровой площадкой, «Зарядье» — крупнейшая парковая зона в центре, Сад культуры и отдыха им. Н. Э. Баумана, 3 театра, фитнес клубы, магазины, детские сады, школы, банки,рестораны и кафе. В 5 минутах пешком находятся 3 станции метро.
Проект «Ильинка 3/8» представляет собой 3 реконструированных исторических особняка XIX века, 4 современные резиденции — отдельные дома по 4–5 этажей, по проекту Kleinwelt Architekten. Фасады — натуральный камень, элементы из патинированной латуни, белокаменные рельефы в арочных нишах первых этажей. Представительные лобби решены в авторском, продуманном до мельчайших деталей неорусском стиле. Лифтовые кабины и элементы навигации выполнены по индивидуальному дизайн-проету. Входные группы резиденций будут украшены точными копиями зооморфных рельефов с фасадов древнего Георгиевского собора в городе Юрьеве-Польском Владимирской области.
На каждом этаже комплекса «Ильинка 3/8» расположено всего от 1 до 4 апартамента. Сдаются они cо свободной планировкой и высокими потолками до 5,3 метров. Окна выполнены из ценных пород древесины по тщательно восстановленным аутентичным чертежам. В комплектации с энергоэффективными стеклопакетами из высококачественного просветленного стекла Crystalvision.
В проекте «Ильинка 3/8» предусмотрен закрытый сад с многоярусным озеленением. Ландшафтная подсветка спроектирована по принципу зеленого театра. В мощении дорожек использована раскладка из нескольких видов натурального камня. В комплексе спроектированы фитнес-зал с массажным кабинетом и одноуровневый подземный паркинг на 36 машиномест с автомобильными лифтами.
Проект «Ильинка 3/8» находится в историческом центре Москвы в 400 метрах от Кремля. В пешей доступности музеи, рестораны, бутики, магазины, медицинские и учебные учреждения. Метро «Площадь Революции», «Театральная» и «Китай-город».
Проект «West Garden» — пример greenfield development, подразумевающий создание жилой среды на ранее неиспользуемых территориях. Архитектурная концепция комплекса разработана бюро SPEECH под руководством Сергея Чобана. ЖК отличается низкой плотностью застройки — на участке в 20 гектаров комфортно размещены 19 корпусов высотой 12-14 этажей. Фасады домов выполнены из натуральных материалов: камень, кирпич, фибробетон и мультифункциональное стекло. Жилые корпуса «West Garden» представлены двумя кластерами — респектабельная и тихая River line, и динамичная и насыщенная Park line.
Покупателям в ЖК «West Garden» предложено множество планировочных решений: в наличии квартиры, как классического типа, так и европланировки. Также представлены квартиры уникальных форматов: пентхаусы, квартиры с террасами, квартиры с высотой потолков 4,2 метра на последних этажах, сплошное панорамное остекление, с окнами в ванной и гардеробных, квартиры с каминами. Из окон некоторых корпусов открываются виды на Москва-Сити, Поклонную гору, Матвеевский лес и благоустроенную набережную реки Раменка.
В состав комплекса входит детский сад на 125 мест. Для автовладельцев предусмотрен подземный паркинг на 500 мест. Спуститься в паркинг можно на пассажирском или грузовом лифте из каждого корпуса. Также на подземном этаже располагаются кладовые помещения площадью от 2,6 до 11,8 кв. м. Для удобства жителей предусмотрена оборудованная переговорная комната в корпусе №2 для организации встреч. На территории комплекса спроектированы места для размещения коммерческих помещений. Внутренний двор организован в виде большого парка, сформированного из разноцветных садов, образующих приватные дворовые пространства. Все дворы объединены прогулочным бульваром. Дворовое пространство комплекса разделено на несколько функциональных зон, предусмотренных для комфортного отдыха жителей всех возрастов. На благоустроенной набережной реки Раменка организованы прогулочные и беговые маршруты, оборудован пешеходный мост, построены игровые и спортивные площадки.
Комплекс расположен в районе Раменки. Рядом с территорией «West Garden» находится уникальный природный заказник «Долина реки Сетунь», самый большой природный заповедник в Москве. До метро «Минская» 10 минут пешком.
Проект «West Garden» — пример greenfield development, подразумевающий создание жилой среды на ранее неиспользуемых территориях. Архитектурная концепция комплекса разработана бюро SPEECH под руководством Сергея Чобана. ЖК отличается низкой плотностью застройки — на участке в 20 гектаров комфортно размещены 19 корпусов высотой 12-14 этажей. Фасады домов выполнены из натуральных материалов: камень, кирпич, фибробетон и мультифункциональное стекло. Жилые корпуса «West Garden» представлены двумя кластерами — респектабельная и тихая River line, и динамичная и насыщенная Park line.
Покупателям в ЖК «West Garden» предложено множество планировочных решений: в наличии квартиры, как классического типа, так и европланировки. Также представлены квартиры уникальных форматов: пентхаусы, квартиры с террасами, квартиры с высотой потолков 4,2 метра на последних этажах, сплошное панорамное остекление, с окнами в ванной и гардеробных, квартиры с каминами. Из окон некоторых корпусов открываются виды на Москва-Сити, Поклонную гору, Матвеевский лес и благоустроенную набережную реки Раменка.
В состав комплекса входит детский сад на 125 мест. Для автовладельцев предусмотрен подземный паркинг на 500 мест. Спуститься в паркинг можно на пассажирском или грузовом лифте из каждого корпуса. Также на подземном этаже располагаются кладовые помещения площадью от 2,6 до 11,8 кв. м. Для удобства жителей предусмотрена оборудованная переговорная комната в корпусе №2 для организации встреч. На территории комплекса спроектированы места для размещения коммерческих помещений. Внутренний двор организован в виде большого парка, сформированного из разноцветных садов, образующих приватные дворовые пространства. Все дворы объединены прогулочным бульваром. Дворовое пространство комплекса разделено на несколько функциональных зон, предусмотренных для комфортного отдыха жителей всех возрастов. На благоустроенной набережной реки Раменка организованы прогулочные и беговые маршруты, оборудован пешеходный мост, построены игровые и спортивные площадки.
Комплекс расположен в районе Раменки. Рядом с территорией «West Garden» находится уникальный природный заказник «Долина реки Сетунь», самый большой природный заповедник в Москве. До метро «Минская» 10 минут пешком.
Проект «West Garden» — пример greenfield development, подразумевающий создание жилой среды на ранее неиспользуемых территориях. Архитектурная концепция комплекса разработана бюро SPEECH под руководством Сергея Чобана. ЖК отличается низкой плотностью застройки — на участке в 20 гектаров комфортно размещены 19 корпусов высотой 12-14 этажей. Фасады домов выполнены из натуральных материалов: камень, кирпич, фибробетон и мультифункциональное стекло. Жилые корпуса «West Garden» представлены двумя кластерами — респектабельная и тихая River line, и динамичная и насыщенная Park line.
Покупателям в ЖК «West Garden» предложено множество планировочных решений: в наличии квартиры, как классического типа, так и европланировки. Также представлены квартиры уникальных форматов: пентхаусы, квартиры с террасами, квартиры с высотой потолков 4,2 метра на последних этажах, сплошное панорамное остекление, с окнами в ванной и гардеробных, квартиры с каминами. Из окон некоторых корпусов открываются виды на Москва-Сити, Поклонную гору, Матвеевский лес и благоустроенную набережную реки Раменка.
В состав комплекса входит детский сад на 125 мест. Для автовладельцев предусмотрен подземный паркинг на 500 мест. Спуститься в паркинг можно на пассажирском или грузовом лифте из каждого корпуса. Также на подземном этаже располагаются кладовые помещения площадью от 2,6 до 11,8 кв. м. Для удобства жителей предусмотрена оборудованная переговорная комната в корпусе №2 для организации встреч. На территории комплекса спроектированы места для размещения коммерческих помещений. Внутренний двор организован в виде большого парка, сформированного из разноцветных садов, образующих приватные дворовые пространства. Все дворы объединены прогулочным бульваром. Дворовое пространство комплекса разделено на несколько функциональных зон, предусмотренных для комфортного отдыха жителей всех возрастов. На благоустроенной набережной реки Раменка организованы прогулочные и беговые маршруты, оборудован пешеходный мост, построены игровые и спортивные площадки.
Комплекс расположен в районе Раменки. Рядом с территорией «West Garden» находится уникальный природный заказник «Долина реки Сетунь», самый большой природный заповедник в Москве. До метро «Минская» 10 минут пешком.
Проект «West Garden» — пример greenfield development, подразумевающий создание жилой среды на ранее неиспользуемых территориях. Архитектурная концепция комплекса разработана бюро SPEECH под руководством Сергея Чобана. ЖК отличается низкой плотностью застройки — на участке в 20 гектаров комфортно размещены 19 корпусов высотой 12-14 этажей. Фасады домов выполнены из натуральных материалов: камень, кирпич, фибробетон и мультифункциональное стекло. Жилые корпуса «West Garden» представлены двумя кластерами — респектабельная и тихая River line, и динамичная и насыщенная Park line.
Покупателям в ЖК «West Garden» предложено множество планировочных решений: в наличии квартиры, как классического типа, так и европланировки. Также представлены квартиры уникальных форматов: пентхаусы, квартиры с террасами, квартиры с высотой потолков 4,2 метра на последних этажах, сплошное панорамное остекление, с окнами в ванной и гардеробных, квартиры с каминами. Из окон некоторых корпусов открываются виды на Москва-Сити, Поклонную гору, Матвеевский лес и благоустроенную набережную реки Раменка.
В состав комплекса входит детский сад на 125 мест. Для автовладельцев предусмотрен подземный паркинг на 500 мест. Спуститься в паркинг можно на пассажирском или грузовом лифте из каждого корпуса. Также на подземном этаже располагаются кладовые помещения площадью от 2,6 до 11,8 кв. м. Для удобства жителей предусмотрена оборудованная переговорная комната в корпусе №2 для организации встреч. На территории комплекса спроектированы места для размещения коммерческих помещений. Внутренний двор организован в виде большого парка, сформированного из разноцветных садов, образующих приватные дворовые пространства. Все дворы объединены прогулочным бульваром. Дворовое пространство комплекса разделено на несколько функциональных зон, предусмотренных для комфортного отдыха жителей всех возрастов. На благоустроенной набережной реки Раменка организованы прогулочные и беговые маршруты, оборудован пешеходный мост, построены игровые и спортивные площадки.
Комплекс расположен в районе Раменки. Рядом с территорией «West Garden» находится уникальный природный заказник «Долина реки Сетунь», самый большой природный заповедник в Москве. До метро «Минская» 10 минут пешком.
