











Проект включает в себя 6 высотных зданий: пять жилых корпусов и деловой центр. Здания достигают высоты 30-31 этажей. Архитектура выполнена по монолитной технологии строительства, а фасады облицованы керамогранитом. Здания объединены общим стилобатом. Проект вдохновлен биологическими формами.
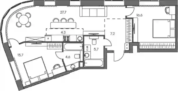
В комплексе предложен широкий выбор планировочных решений от студий до 5-ти комнатных квартир. Также доступны уникальные форматы: квартиры с панорамными гостиными и террасами. Все квартиры сдаются без стен, что открывает возможности для индивидуального оформления. Высота потолков составляет 2,8 метра, а окна — панорамные и увеличенные.
В этом комплексе есть закрытый зеленый двор без машин, в котором оборудованы лаунж-зоны, детские и спортивные площадки. Центральным элементом двора является сухой фонтан с вечерней подсветкой. Жители могут воспользоваться услугами wellness-центра и spa. В стилобате комплекса находится гастрономическая улица, коворкинги, мультимедийный развлекательный центр и детский сад. Для удобства жильцов предусмотрен подземный паркинг с кладовыми для хранения вещей.
Комплекс расположен в районе Ново-Переделкино, в непосредственной близости от Ульяновского лесопарка. В непосредственной близости находятся спортивные комплексы, школы и культурные учреждения. До метро «Ново-Переделкино» 5 минут пешком. Удобная транспортная доступность обеспечивается выездом на Боровское шоссе и скоростную магистраль «Солнцево — Бутово — Варшавское шоссе».











Проект «Russian Design District» представляет собой комплексное освоение территории в поселении Ватутинки. Всего спроектировано 9 жилых башен. Проект, созданный в коллаборации со звездами культуры, дизайна и спорта.
Спроектировано 715 квартир, которые сдаются без отделки. На выбор покупателя представлены разнообразные планировки: от студий до видовых пентхаусов на последних этажах с собственными террасами. Возможно объединение нескольких квартир в одну. Высота потолков варьируется от 3 до 4,2 м. Все квартиры имеют панорамное остекление.
Жители микрорайона станут участниками закрытого клуба Top people. Членство в клубе дает такие преимущества, как свободный вход на мероприятия, которые будут проводить в комплексе: международные соревнования, выставки, лекции и мастер-классы ведущих дизайнеров, архитекторов, модельеров и рестораторов мира. Многофункциональный комплекс «Russian Design District» включает собственную образовательную и спортивную инфраструктуру. На территории размещены: академия художественной гимнастики Ирины Александровны Винер-Усмановой,академия единоборств Fight Nights Камила Гаджиева, школа йоги и здорового питания, школа дизайна и технологий Design and Technology Art School (DATA).
ЖК размещен на берегу реки Десна с благоустроенной прогулочной набережной. Во дворах предусмотрены игровые площадки. В зонах отдыха размещены арт-объекты, в спортивных зонах — футбольное, волейбольное и хоккейное поля, беговые дорожки и воркаут. Выезд на МКАД находится в 20 минутах транспортом.
Проект «Russian Design District» представляет собой комплексное освоение территории в поселении Ватутинки. Всего спроектировано 9 жилых башен. Проект, созданный в коллаборации со звездами культуры, дизайна и спорта.
Спроектировано 715 квартир, которые сдаются без отделки. На выбор покупателя представлены разнообразные планировки: от студий до видовых пентхаусов на последних этажах с собственными террасами. Возможно объединение нескольких квартир в одну. Высота потолков варьируется от 3 до 4,2 м. Все квартиры имеют панорамное остекление.
Жители микрорайона станут участниками закрытого клуба Top people. Членство в клубе дает такие преимущества, как свободный вход на мероприятия, которые будут проводить в комплексе: международные соревнования, выставки, лекции и мастер-классы ведущих дизайнеров, архитекторов, модельеров и рестораторов мира. Многофункциональный комплекс «Russian Design District» включает собственную образовательную и спортивную инфраструктуру. На территории размещены: академия художественной гимнастики Ирины Александровны Винер-Усмановой,академия единоборств Fight Nights Камила Гаджиева, школа йоги и здорового питания, школа дизайна и технологий Design and Technology Art School (DATA).
ЖК размещен на берегу реки Десна с благоустроенной прогулочной набережной. Во дворах предусмотрены игровые площадки. В зонах отдыха размещены арт-объекты, в спортивных зонах — футбольное, волейбольное и хоккейное поля, беговые дорожки и воркаут. Выезд на МКАД находится в 20 минутах транспортом.
Проект «Russian Design District» представляет собой комплексное освоение территории в поселении Ватутинки. Всего спроектировано 9 жилых башен. Проект, созданный в коллаборации со звездами культуры, дизайна и спорта.
Спроектировано 715 квартир, которые сдаются без отделки. На выбор покупателя представлены разнообразные планировки: от студий до видовых пентхаусов на последних этажах с собственными террасами. Возможно объединение нескольких квартир в одну. Высота потолков варьируется от 3 до 4,2 м. Все квартиры имеют панорамное остекление.
Жители микрорайона станут участниками закрытого клуба Top people. Членство в клубе дает такие преимущества, как свободный вход на мероприятия, которые будут проводить в комплексе: международные соревнования, выставки, лекции и мастер-классы ведущих дизайнеров, архитекторов, модельеров и рестораторов мира. Многофункциональный комплекс «Russian Design District» включает собственную образовательную и спортивную инфраструктуру. На территории размещены: академия художественной гимнастики Ирины Александровны Винер-Усмановой,академия единоборств Fight Nights Камила Гаджиева, школа йоги и здорового питания, школа дизайна и технологий Design and Technology Art School (DATA).
ЖК размещен на берегу реки Десна с благоустроенной прогулочной набережной. Во дворах предусмотрены игровые площадки. В зонах отдыха размещены арт-объекты, в спортивных зонах — футбольное, волейбольное и хоккейное поля, беговые дорожки и воркаут. Выезд на МКАД находится в 20 минутах транспортом.
Проект «Союз» представляет собой инновационный жилой кластер, состоящий из 6 монолитных 21-этажных жилых зданий с собственной спортивно-оздоровительной инфраструктурой. Архитектурная концепция проекта отражает тренд на натуральность. В отделке фасадов используется дерево, стекло с цифровой печатью, алюминиевые композитные панели, брашированная латунь. Теплые тона дерева, натуральные цвета и волнистая геометрия фасадов позволяют гармонично вписать проект в окружающий природный ландшафт.
В жилом кластере «Союз» предложено 27 видов планировочных решений площадью от 29,4 до 186 кв. метров, включая квартиры с террасами, мастер спальней и просторные пентхаусы на трех последних этажах. Сдаются они без отделки, с высокими потолками от 3,02 до 4 метров. Большинство квартир спроектировано с входом «на свет». В каждой квартире предусмотрены балконы: на нижних этажах— французские, до 1,5 кв. метров, на верхних — торцевые, с прозрачным остеклением и реечным ограждением.
Спортивно-оздоровительная инфраструктура жилого кластера «Союз» включает: футбольные поля, ледовые площадки для хоккея и фигурного катания, зал для фехтования, 4 крытые площадки для настольного тенниса, бассейн на 6 дорожек, центр единоборств, 7 теннисных кортов, легкоатлетический стадион, площадки для баскетбола и волейбола. В общей сложности на территории кластера размещены площадки для занятий 20 видами спорта, доступные жителям в режиме 24/7. На территории комплекса расположен первый в России центр биохакинга. В лобби каждого жилого дома предусмотрена собственная инфраструктура с детской игровой, Zoom-room переговорной, биллиардом, сигарной, а также лаунж-зоной с камином. На всей территории комплекса ведется видеонаблюдение, система контроля доступа реализована с использованием единого электронного ключа — «Master Key». Для владельцев автомобилей предусмотрен подземный паркинг с автомойкой.
Жилой кластер «Союз» расположен в Северо-Восточном АО, в районе Росткинос развитой инфраструктурой. В непосредственной близости расположено 18 детских садов, 12 школ, 3ВУЗа, 20 музеев и выставочных пространств. В пешей доступности находится один из самых больших зеленых массивов Москвы с парками «Останкино»,Леоновскаяроща, «Сад Будущего», ВДНХ. До станции метро «Ботанический сад» - 10 минут пешком.
Проект «Союз» представляет собой инновационный жилой кластер, состоящий из 6 монолитных 21-этажных жилых зданий с собственной спортивно-оздоровительной инфраструктурой. Архитектурная концепция проекта отражает тренд на натуральность. В отделке фасадов используется дерево, стекло с цифровой печатью, алюминиевые композитные панели, брашированная латунь. Теплые тона дерева, натуральные цвета и волнистая геометрия фасадов позволяют гармонично вписать проект в окружающий природный ландшафт.
В жилом кластере «Союз» предложено 27 видов планировочных решений площадью от 29,4 до 186 кв. метров, включая квартиры с террасами, мастер спальней и просторные пентхаусы на трех последних этажах. Сдаются они без отделки, с высокими потолками от 3,02 до 4 метров. Большинство квартир спроектировано с входом «на свет». В каждой квартире предусмотрены балконы: на нижних этажах— французские, до 1,5 кв. метров, на верхних — торцевые, с прозрачным остеклением и реечным ограждением.
Спортивно-оздоровительная инфраструктура жилого кластера «Союз» включает: футбольные поля, ледовые площадки для хоккея и фигурного катания, зал для фехтования, 4 крытые площадки для настольного тенниса, бассейн на 6 дорожек, центр единоборств, 7 теннисных кортов, легкоатлетический стадион, площадки для баскетбола и волейбола. В общей сложности на территории кластера размещены площадки для занятий 20 видами спорта, доступные жителям в режиме 24/7. На территории комплекса расположен первый в России центр биохакинга. В лобби каждого жилого дома предусмотрена собственная инфраструктура с детской игровой, Zoom-room переговорной, биллиардом, сигарной, а также лаунж-зоной с камином. На всей территории комплекса ведется видеонаблюдение, система контроля доступа реализована с использованием единого электронного ключа — «Master Key». Для владельцев автомобилей предусмотрен подземный паркинг с автомойкой.
Жилой кластер «Союз» расположен в Северо-Восточном АО, в районе Росткинос развитой инфраструктурой. В непосредственной близости расположено 18 детских садов, 12 школ, 3ВУЗа, 20 музеев и выставочных пространств. В пешей доступности находится один из самых больших зеленых массивов Москвы с парками «Останкино»,Леоновскаяроща, «Сад Будущего», ВДНХ. До станции метро «Ботанический сад» - 10 минут пешком.
Проект «Союз» представляет собой инновационный жилой кластер, состоящий из 6 монолитных 21-этажных жилых зданий с собственной спортивно-оздоровительной инфраструктурой. Архитектурная концепция проекта отражает тренд на натуральность. В отделке фасадов используется дерево, стекло с цифровой печатью, алюминиевые композитные панели, брашированная латунь. Теплые тона дерева, натуральные цвета и волнистая геометрия фасадов позволяют гармонично вписать проект в окружающий природный ландшафт.
В жилом кластере «Союз» предложено 27 видов планировочных решений площадью от 29,4 до 186 кв. метров, включая квартиры с террасами, мастер спальней и просторные пентхаусы на трех последних этажах. Сдаются они без отделки, с высокими потолками от 3,02 до 4 метров. Большинство квартир спроектировано с входом «на свет». В каждой квартире предусмотрены балконы: на нижних этажах— французские, до 1,5 кв. метров, на верхних — торцевые, с прозрачным остеклением и реечным ограждением.
Спортивно-оздоровительная инфраструктура жилого кластера «Союз» включает: футбольные поля, ледовые площадки для хоккея и фигурного катания, зал для фехтования, 4 крытые площадки для настольного тенниса, бассейн на 6 дорожек, центр единоборств, 7 теннисных кортов, легкоатлетический стадион, площадки для баскетбола и волейбола. В общей сложности на территории кластера размещены площадки для занятий 20 видами спорта, доступные жителям в режиме 24/7. На территории комплекса расположен первый в России центр биохакинга. В лобби каждого жилого дома предусмотрена собственная инфраструктура с детской игровой, Zoom-room переговорной, биллиардом, сигарной, а также лаунж-зоной с камином. На всей территории комплекса ведется видеонаблюдение, система контроля доступа реализована с использованием единого электронного ключа — «Master Key». Для владельцев автомобилей предусмотрен подземный паркинг с автомойкой.
Жилой кластер «Союз» расположен в Северо-Восточном АО, в районе Росткинос развитой инфраструктурой. В непосредственной близости расположено 18 детских садов, 12 школ, 3ВУЗа, 20 музеев и выставочных пространств. В пешей доступности находится один из самых больших зеленых массивов Москвы с парками «Останкино»,Леоновскаяроща, «Сад Будущего», ВДНХ. До станции метро «Ботанический сад» - 10 минут пешком.
Проект «Союз» представляет собой инновационный жилой кластер, состоящий из 6 монолитных 21-этажных жилых зданий с собственной спортивно-оздоровительной инфраструктурой. Архитектурная концепция проекта отражает тренд на натуральность. В отделке фасадов используется дерево, стекло с цифровой печатью, алюминиевые композитные панели, брашированная латунь. Теплые тона дерева, натуральные цвета и волнистая геометрия фасадов позволяют гармонично вписать проект в окружающий природный ландшафт.
В жилом кластере «Союз» предложено 27 видов планировочных решений площадью от 29,4 до 186 кв. метров, включая квартиры с террасами, мастер спальней и просторные пентхаусы на трех последних этажах. Сдаются они без отделки, с высокими потолками от 3,02 до 4 метров. Большинство квартир спроектировано с входом «на свет». В каждой квартире предусмотрены балконы: на нижних этажах— французские, до 1,5 кв. метров, на верхних — торцевые, с прозрачным остеклением и реечным ограждением.
Спортивно-оздоровительная инфраструктура жилого кластера «Союз» включает: футбольные поля, ледовые площадки для хоккея и фигурного катания, зал для фехтования, 4 крытые площадки для настольного тенниса, бассейн на 6 дорожек, центр единоборств, 7 теннисных кортов, легкоатлетический стадион, площадки для баскетбола и волейбола. В общей сложности на территории кластера размещены площадки для занятий 20 видами спорта, доступные жителям в режиме 24/7. На территории комплекса расположен первый в России центр биохакинга. В лобби каждого жилого дома предусмотрена собственная инфраструктура с детской игровой, Zoom-room переговорной, биллиардом, сигарной, а также лаунж-зоной с камином. На всей территории комплекса ведется видеонаблюдение, система контроля доступа реализована с использованием единого электронного ключа — «Master Key». Для владельцев автомобилей предусмотрен подземный паркинг с автомойкой.
Жилой кластер «Союз» расположен в Северо-Восточном АО, в районе Росткинос развитой инфраструктурой. В непосредственной близости расположено 18 детских садов, 12 школ, 3ВУЗа, 20 музеев и выставочных пространств. В пешей доступности находится один из самых больших зеленых массивов Москвы с парками «Останкино»,Леоновскаяроща, «Сад Будущего», ВДНХ. До станции метро «Ботанический сад» - 10 минут пешком.
Проект «Союз» представляет собой инновационный жилой кластер, состоящий из 6 монолитных 21-этажных жилых зданий с собственной спортивно-оздоровительной инфраструктурой. Архитектурная концепция проекта отражает тренд на натуральность. В отделке фасадов используется дерево, стекло с цифровой печатью, алюминиевые композитные панели, брашированная латунь. Теплые тона дерева, натуральные цвета и волнистая геометрия фасадов позволяют гармонично вписать проект в окружающий природный ландшафт.
В жилом кластере «Союз» предложено 27 видов планировочных решений площадью от 29,4 до 186 кв. метров, включая квартиры с террасами, мастер спальней и просторные пентхаусы на трех последних этажах. Сдаются они без отделки, с высокими потолками от 3,02 до 4 метров. Большинство квартир спроектировано с входом «на свет». В каждой квартире предусмотрены балконы: на нижних этажах— французские, до 1,5 кв. метров, на верхних — торцевые, с прозрачным остеклением и реечным ограждением.
Спортивно-оздоровительная инфраструктура жилого кластера «Союз» включает: футбольные поля, ледовые площадки для хоккея и фигурного катания, зал для фехтования, 4 крытые площадки для настольного тенниса, бассейн на 6 дорожек, центр единоборств, 7 теннисных кортов, легкоатлетический стадион, площадки для баскетбола и волейбола. В общей сложности на территории кластера размещены площадки для занятий 20 видами спорта, доступные жителям в режиме 24/7. На территории комплекса расположен первый в России центр биохакинга. В лобби каждого жилого дома предусмотрена собственная инфраструктура с детской игровой, Zoom-room переговорной, биллиардом, сигарной, а также лаунж-зоной с камином. На всей территории комплекса ведется видеонаблюдение, система контроля доступа реализована с использованием единого электронного ключа — «Master Key». Для владельцев автомобилей предусмотрен подземный паркинг с автомойкой.
Жилой кластер «Союз» расположен в Северо-Восточном АО, в районе Росткинос развитой инфраструктурой. В непосредственной близости расположено 18 детских садов, 12 школ, 3ВУЗа, 20 музеев и выставочных пространств. В пешей доступности находится один из самых больших зеленых массивов Москвы с парками «Останкино»,Леоновскаяроща, «Сад Будущего», ВДНХ. До станции метро «Ботанический сад» - 10 минут пешком.
Проект «Союз» представляет собой инновационный жилой кластер, состоящий из 6 монолитных 21-этажных жилых зданий с собственной спортивно-оздоровительной инфраструктурой. Архитектурная концепция проекта отражает тренд на натуральность. В отделке фасадов используется дерево, стекло с цифровой печатью, алюминиевые композитные панели, брашированная латунь. Теплые тона дерева, натуральные цвета и волнистая геометрия фасадов позволяют гармонично вписать проект в окружающий природный ландшафт.
В жилом кластере «Союз» предложено 27 видов планировочных решений площадью от 29,4 до 186 кв. метров, включая квартиры с террасами, мастер спальней и просторные пентхаусы на трех последних этажах. Сдаются они без отделки, с высокими потолками от 3,02 до 4 метров. Большинство квартир спроектировано с входом «на свет». В каждой квартире предусмотрены балконы: на нижних этажах— французские, до 1,5 кв. метров, на верхних — торцевые, с прозрачным остеклением и реечным ограждением.
Спортивно-оздоровительная инфраструктура жилого кластера «Союз» включает: футбольные поля, ледовые площадки для хоккея и фигурного катания, зал для фехтования, 4 крытые площадки для настольного тенниса, бассейн на 6 дорожек, центр единоборств, 7 теннисных кортов, легкоатлетический стадион, площадки для баскетбола и волейбола. В общей сложности на территории кластера размещены площадки для занятий 20 видами спорта, доступные жителям в режиме 24/7. На территории комплекса расположен первый в России центр биохакинга. В лобби каждого жилого дома предусмотрена собственная инфраструктура с детской игровой, Zoom-room переговорной, биллиардом, сигарной, а также лаунж-зоной с камином. На всей территории комплекса ведется видеонаблюдение, система контроля доступа реализована с использованием единого электронного ключа — «Master Key». Для владельцев автомобилей предусмотрен подземный паркинг с автомойкой.
Жилой кластер «Союз» расположен в Северо-Восточном АО, в районе Росткинос развитой инфраструктурой. В непосредственной близости расположено 18 детских садов, 12 школ, 3ВУЗа, 20 музеев и выставочных пространств. В пешей доступности находится один из самых больших зеленых массивов Москвы с парками «Останкино»,Леоновскаяроща, «Сад Будущего», ВДНХ. До станции метро «Ботанический сад» - 10 минут пешком.
Проект включает в себя 6 высотных зданий: пять жилых корпусов и деловой центр. Здания достигают высоты 30-31 этажей. Архитектура выполнена по монолитной технологии строительства, а фасады облицованы керамогранитом. Здания объединены общим стилобатом. Проект вдохновлен биологическими формами.
В комплексе предложен широкий выбор планировочных решений от студий до 5-ти комнатных квартир. Также доступны уникальные форматы: квартиры с панорамными гостиными и террасами. Все квартиры сдаются без стен, что открывает возможности для индивидуального оформления. Высота потолков составляет 2,8 метра, а окна — панорамные и увеличенные.
В этом комплексе есть закрытый зеленый двор без машин, в котором оборудованы лаунж-зоны, детские и спортивные площадки. Центральным элементом двора является сухой фонтан с вечерней подсветкой. Жители могут воспользоваться услугами wellness-центра и spa. В стилобате комплекса находится гастрономическая улица, коворкинги, мультимедийный развлекательный центр и детский сад. Для удобства жильцов предусмотрен подземный паркинг с кладовыми для хранения вещей.
Комплекс расположен в районе Ново-Переделкино, в непосредственной близости от Ульяновского лесопарка. В непосредственной близости находятся спортивные комплексы, школы и культурные учреждения. До метро «Ново-Переделкино» 5 минут пешком. Удобная транспортная доступность обеспечивается выездом на Боровское шоссе и скоростную магистраль «Солнцево — Бутово — Варшавское шоссе».
Жилой комплекс включает в себя 3 формата домов: 3 клубных дома высотой от 11 до 19 этажей, 2 высотные башни 35 и 37 этажей и 15 таунхаусов с собственными палисадниками. Запоминающийся облик зданий создается благодаря гармоничному сочетанию керамогранита в оттенках антрацита и под дерево и металлических кассет в цвете белого золота. В просторном лобби с потолками выше 4,5 метра размещены стойка ресепшн, зона ожидания с мягкой мебелью, детская комната и коворкинг с переговорной. Также в каждой секции предусмотрены колясочные, лапомойки и гостевые санузлы.
В жилом комплексе представлены три формата недвижимости: квартиры в небоскребах с панорамными видами, резиденции в клубных домах средней этажности и 15 двухуровневых таунхаусов. Площадь квартир варьируется от 41 до 126 кв. метров, а высота потолков составляет от 3,15 до 4,1 метра. Все квартиры сдаются без отделки. Из панорамных окон квартир открываются виды на реку и парк «Долина реки Сетунь».
На территории комплекса будет построен многофункциональный комплекс со спортивно-оздоровительный центром с бассейном, офисным центром, ресторанной зоной с летними верандами и фуд-холлом. Также на территории есть собственный детский сад. Для владельцев автомобилей предусмотрен подземный паркинг с велопарковкой и кладовыми. Во дворе размещены детские и спортивные площадки, «зеленая» зона коворкинга, оснащенная точкой доступа Wi-Fi. Основным преимуществом комплекса является близость к природному заказнику «Долина реки Сетунь», к которому у жителей комплекса есть собственный выход. Заказник оборудован велосипедными дорожками, беседками для отдыха и благоустроенными экотропами. На территории заказника также имеются открытые детские и спортивные площадки.
Жилой комплекс находится в Можайском районе, на улице Верейская. Рядом с проектом богатая образовательная инфраструктура: филиалы МГУ, МГТУ, МФЮА и Института современного искусства. В районе расположен Инновационный центр «Сколково». В 10 минутах езды от жилого квартала находятся 6 престижных школ из списка Forbes. Рядом расположены Мастерская Петра Фоменко, музей «Мосфильма», Московский театр мюзикла и Музей Победы. В шаговой доступности торговые центры «Океания», «Времена года» и «Афимолл Сити». До станции метро «Давыдково» можно дойти за 15 минут.
Жилой комплекс включает в себя 3 формата домов: 3 клубных дома высотой от 11 до 19 этажей, 2 высотные башни 35 и 37 этажей и 15 таунхаусов с собственными палисадниками. Запоминающийся облик зданий создается благодаря гармоничному сочетанию керамогранита в оттенках антрацита и под дерево и металлических кассет в цвете белого золота. В просторном лобби с потолками выше 4,5 метра размещены стойка ресепшн, зона ожидания с мягкой мебелью, детская комната и коворкинг с переговорной. Также в каждой секции предусмотрены колясочные, лапомойки и гостевые санузлы.
В жилом комплексе представлены три формата недвижимости: квартиры в небоскребах с панорамными видами, резиденции в клубных домах средней этажности и 15 двухуровневых таунхаусов. Площадь квартир варьируется от 41 до 126 кв. метров, а высота потолков составляет от 3,15 до 4,1 метра. Все квартиры сдаются без отделки. Из панорамных окон квартир открываются виды на реку и парк «Долина реки Сетунь».
На территории комплекса будет построен многофункциональный комплекс со спортивно-оздоровительный центром с бассейном, офисным центром, ресторанной зоной с летними верандами и фуд-холлом. Также на территории есть собственный детский сад. Для владельцев автомобилей предусмотрен подземный паркинг с велопарковкой и кладовыми. Во дворе размещены детские и спортивные площадки, «зеленая» зона коворкинга, оснащенная точкой доступа Wi-Fi. Основным преимуществом комплекса является близость к природному заказнику «Долина реки Сетунь», к которому у жителей комплекса есть собственный выход. Заказник оборудован велосипедными дорожками, беседками для отдыха и благоустроенными экотропами. На территории заказника также имеются открытые детские и спортивные площадки.
Жилой комплекс находится в Можайском районе, на улице Верейская. Рядом с проектом богатая образовательная инфраструктура: филиалы МГУ, МГТУ, МФЮА и Института современного искусства. В районе расположен Инновационный центр «Сколково». В 10 минутах езды от жилого квартала находятся 6 престижных школ из списка Forbes. Рядом расположены Мастерская Петра Фоменко, музей «Мосфильма», Московский театр мюзикла и Музей Победы. В шаговой доступности торговые центры «Океания», «Времена года» и «Афимолл Сити». До станции метро «Давыдково» можно дойти за 15 минут.
Жилой комплекс включает в себя 3 формата домов: 3 клубных дома высотой от 11 до 19 этажей, 2 высотные башни 35 и 37 этажей и 15 таунхаусов с собственными палисадниками. Запоминающийся облик зданий создается благодаря гармоничному сочетанию керамогранита в оттенках антрацита и под дерево и металлических кассет в цвете белого золота. В просторном лобби с потолками выше 4,5 метра размещены стойка ресепшн, зона ожидания с мягкой мебелью, детская комната и коворкинг с переговорной. Также в каждой секции предусмотрены колясочные, лапомойки и гостевые санузлы.
В жилом комплексе представлены три формата недвижимости: квартиры в небоскребах с панорамными видами, резиденции в клубных домах средней этажности и 15 двухуровневых таунхаусов. Площадь квартир варьируется от 41 до 126 кв. метров, а высота потолков составляет от 3,15 до 4,1 метра. Все квартиры сдаются без отделки. Из панорамных окон квартир открываются виды на реку и парк «Долина реки Сетунь».
На территории комплекса будет построен многофункциональный комплекс со спортивно-оздоровительный центром с бассейном, офисным центром, ресторанной зоной с летними верандами и фуд-холлом. Также на территории есть собственный детский сад. Для владельцев автомобилей предусмотрен подземный паркинг с велопарковкой и кладовыми. Во дворе размещены детские и спортивные площадки, «зеленая» зона коворкинга, оснащенная точкой доступа Wi-Fi. Основным преимуществом комплекса является близость к природному заказнику «Долина реки Сетунь», к которому у жителей комплекса есть собственный выход. Заказник оборудован велосипедными дорожками, беседками для отдыха и благоустроенными экотропами. На территории заказника также имеются открытые детские и спортивные площадки.
Жилой комплекс находится в Можайском районе, на улице Верейская. Рядом с проектом богатая образовательная инфраструктура: филиалы МГУ, МГТУ, МФЮА и Института современного искусства. В районе расположен Инновационный центр «Сколково». В 10 минутах езды от жилого квартала находятся 6 престижных школ из списка Forbes. Рядом расположены Мастерская Петра Фоменко, музей «Мосфильма», Московский театр мюзикла и Музей Победы. В шаговой доступности торговые центры «Океания», «Времена года» и «Афимолл Сити». До станции метро «Давыдково» можно дойти за 15 минут.
Жилой комплекс включает в себя 3 формата домов: 3 клубных дома высотой от 11 до 19 этажей, 2 высотные башни 35 и 37 этажей и 15 таунхаусов с собственными палисадниками. Запоминающийся облик зданий создается благодаря гармоничному сочетанию керамогранита в оттенках антрацита и под дерево и металлических кассет в цвете белого золота. В просторном лобби с потолками выше 4,5 метра размещены стойка ресепшн, зона ожидания с мягкой мебелью, детская комната и коворкинг с переговорной. Также в каждой секции предусмотрены колясочные, лапомойки и гостевые санузлы.
В жилом комплексе представлены три формата недвижимости: квартиры в небоскребах с панорамными видами, резиденции в клубных домах средней этажности и 15 двухуровневых таунхаусов. Площадь квартир варьируется от 41 до 126 кв. метров, а высота потолков составляет от 3,15 до 4,1 метра. Все квартиры сдаются без отделки. Из панорамных окон квартир открываются виды на реку и парк «Долина реки Сетунь».
На территории комплекса будет построен многофункциональный комплекс со спортивно-оздоровительный центром с бассейном, офисным центром, ресторанной зоной с летними верандами и фуд-холлом. Также на территории есть собственный детский сад. Для владельцев автомобилей предусмотрен подземный паркинг с велопарковкой и кладовыми. Во дворе размещены детские и спортивные площадки, «зеленая» зона коворкинга, оснащенная точкой доступа Wi-Fi. Основным преимуществом комплекса является близость к природному заказнику «Долина реки Сетунь», к которому у жителей комплекса есть собственный выход. Заказник оборудован велосипедными дорожками, беседками для отдыха и благоустроенными экотропами. На территории заказника также имеются открытые детские и спортивные площадки.
Жилой комплекс находится в Можайском районе, на улице Верейская. Рядом с проектом богатая образовательная инфраструктура: филиалы МГУ, МГТУ, МФЮА и Института современного искусства. В районе расположен Инновационный центр «Сколково». В 10 минутах езды от жилого квартала находятся 6 престижных школ из списка Forbes. Рядом расположены Мастерская Петра Фоменко, музей «Мосфильма», Московский театр мюзикла и Музей Победы. В шаговой доступности торговые центры «Океания», «Времена года» и «Афимолл Сити». До станции метро «Давыдково» можно дойти за 15 минут.
Жилой комплекс включает в себя 3 формата домов: 3 клубных дома высотой от 11 до 19 этажей, 2 высотные башни 35 и 37 этажей и 15 таунхаусов с собственными палисадниками. Запоминающийся облик зданий создается благодаря гармоничному сочетанию керамогранита в оттенках антрацита и под дерево и металлических кассет в цвете белого золота. В просторном лобби с потолками выше 4,5 метра размещены стойка ресепшн, зона ожидания с мягкой мебелью, детская комната и коворкинг с переговорной. Также в каждой секции предусмотрены колясочные, лапомойки и гостевые санузлы.
В жилом комплексе представлены три формата недвижимости: квартиры в небоскребах с панорамными видами, резиденции в клубных домах средней этажности и 15 двухуровневых таунхаусов. Площадь квартир варьируется от 41 до 126 кв. метров, а высота потолков составляет от 3,15 до 4,1 метра. Все квартиры сдаются без отделки. Из панорамных окон квартир открываются виды на реку и парк «Долина реки Сетунь».
На территории комплекса будет построен многофункциональный комплекс со спортивно-оздоровительный центром с бассейном, офисным центром, ресторанной зоной с летними верандами и фуд-холлом. Также на территории есть собственный детский сад. Для владельцев автомобилей предусмотрен подземный паркинг с велопарковкой и кладовыми. Во дворе размещены детские и спортивные площадки, «зеленая» зона коворкинга, оснащенная точкой доступа Wi-Fi. Основным преимуществом комплекса является близость к природному заказнику «Долина реки Сетунь», к которому у жителей комплекса есть собственный выход. Заказник оборудован велосипедными дорожками, беседками для отдыха и благоустроенными экотропами. На территории заказника также имеются открытые детские и спортивные площадки.
Жилой комплекс находится в Можайском районе, на улице Верейская. Рядом с проектом богатая образовательная инфраструктура: филиалы МГУ, МГТУ, МФЮА и Института современного искусства. В районе расположен Инновационный центр «Сколково». В 10 минутах езды от жилого квартала находятся 6 престижных школ из списка Forbes. Рядом расположены Мастерская Петра Фоменко, музей «Мосфильма», Московский театр мюзикла и Музей Победы. В шаговой доступности торговые центры «Океания», «Времена года» и «Афимолл Сити». До станции метро «Давыдково» можно дойти за 15 минут.




















