Жилой комплекс состоит из 20 корпусов высотой от 6 до 9 этажей. Здания построены по монолитной технологии с вентилируемыми фасадами из панелей. Архитектура гармонично вписана в природный ландшафт. Для автомобилистов предусмотрены наземные стоянки, а каждый корпус оборудован лифтом.
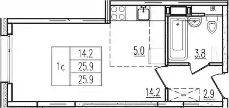
В проекте представлены студии, а также квартиры с 1, 2 и 3 комнатами. Все помещения идут с чистовой отделкой: установлены натяжные потолки, межкомнатные двери и радиаторы отопления, выполнена отделка стен и полов. Также предусмотрены потолки высотой от 2,6 метров и стандартные окна, откуда открываются виды на залив.
Комплекс расположен на закрытой территории, где обустроены спортивные и детские площадки, зоны для прогулок и отдыха. Особым преимуществом является прямой выход к берегу Пироговского залива, где можно заниматься водными видами спорта. В поселке есть вся необходимая социальная инфраструктура: детский сад, школа, магазины и медицинские учреждения.
Проект находится в окружении лесного массива в деревне Пирогово городского округа Мытищи. Автобусная остановка находится в 5 минутах пешком, а дорога до ближайшего метро Медведково занимает около 25 минут транспортом. До МКАД можно добраться за 30 минут транспортом, а до центра Москвы — за 1 час.
