












ЖК «Primavera» — это комплексная застройка переменной этажности от 2 до 22 этажей в стиле неоклассики и ар-деко. Авторами проекта выступила архитектурная мастерская Atrium. Отделка фасадов выполнена алюминиевыми композитными панелями, керамогранитом, стемалитом. В лобби сделана уникальная дизайнерская отделка, спроектированы колясочные и почтовые комнаты.
В ЖК «Primavera» представлены видовые двухуровневые пентхаусы, а также квартиры с патио и террасами. Всего в квартале доступно более 120 планировочных решений площадью от 40 до 192 квадратных метров. Большое количество квартир имеют вид на реку.
На территории проекта «Primavera» спроектирован эко парк на 17 га. Он включает в себя смотровые площадки, пляжные зоны, спуск к реке, зону лесного отдыха, детские, спортивные, рекреационные и экологические площадки, прогулочные тропы и велодорожки, а также зону воркаут. На территории ЖК продуман центральный прогулочный бульвар, который включает в себя: 4 функциональные зоны, детские площадки с батутами и современными игровыми комплексами, непрерывные беговые дорожки и спортивные комплексы марки Kompan, лаунж-зоны с качелями, шезлонгами и лавочки с WiFi. В проекте предусмотрен ландшафтный дизайн, озеленение и вечерняя подсветка. Внутреннее благоустройство включает в себя: места для игр и общения, дворы с фонтанами, площадками для спорта и детских игр, лаунж-зону с навесами и openair-коворкинг, музыкальные инсталляции, сенсорные сады, тактильною тропу, лавочки с WiFi.
Проект «Primavera» находится в районе Покровское-Стрешнево. Рядом с проектом находятся школы, детские сады, поликлиники, спортивные центры, магазины, салоны красоты. До метро «Спартак» — 15 минут пешком.

Апарт-комплекс состоит из 4 корпусов высотой от 13 до 22 этажей, построенных по кирпично-монолитной технологии. Фасады оформлены с применением вентилируемой системы и облицованы керамогранитом. Входные группы организованы сквозным образом — на уровне земли, без пандусов. В холлах предусмотрены зоны ожидания и бесшумные скоростные пассажирские и грузовые лифты. На нижних этажах размещены коммерческие помещения под магазины, кафе и другие сервисы.
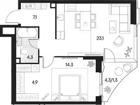
В проекте представлены студии и апартаменты с 1–3 комнатами площадью от 31,8 до 77 кв. м. Высота потолков варьируется от 2,87 до 3,02 метра. Установлены увеличенные оконные проемы, что делает помещения светлыми и визуально просторными. Квартиры передаются в формате без стен — с возможностью самостоятельного зонирования пространства по своему усмотрению. В некоторых планировках спроектированы гардеробные.
Территория комплекса закрыта от посторонних, оснащена охраной и видеонаблюдением. Придомовое пространство свободно от автомобилей. Для прогулок и отдыха предусмотрены озелененные зоны, детские и спортивные площадки, для хранения доступны кладовые помещения. Работает круглосуточный консьерж-сервис отельного уровня. Подземный паркинг оснащен системой контроля доступа и лифтовым сообщением с жилыми этажами — попасть к машине можно напрямую из лобби.
Проект расположен в районе Покровское-Стрешнево Северо-Западного административного округа. В 5 минутах пешком находятся станции метро Тушинская и Спартак, в пределах 10–15 минут — супермаркеты, кафе, рестораны, фитнес-центры, теннисный клуб и салоны красоты, а также Лукойл Арена и набережная реки Сходня. До торгового центра Крокус Сити Молл и парка Покровское-Стрешнево можно добраться за 15 минут транспортом, до ТТК — за 20 минут, до Садового кольца — за 25 минут, а до аэропорта Шереметьево — за 45 минут.
ЖК «Primavera» — это комплексная застройка переменной этажности от 2 до 22 этажей в стиле неоклассики и ар-деко. Авторами проекта выступила архитектурная мастерская Atrium. Отделка фасадов выполнена алюминиевыми композитными панелями, керамогранитом, стемалитом. В лобби сделана уникальная дизайнерская отделка, спроектированы колясочные и почтовые комнаты.
В ЖК «Primavera» представлены видовые двухуровневые пентхаусы, а также квартиры с патио и террасами. Всего в квартале доступно более 120 планировочных решений площадью от 40 до 192 квадратных метров. Большое количество квартир имеют вид на реку.
На территории проекта «Primavera» спроектирован эко парк на 17 га. Он включает в себя смотровые площадки, пляжные зоны, спуск к реке, зону лесного отдыха, детские, спортивные, рекреационные и экологические площадки, прогулочные тропы и велодорожки, а также зону воркаут. На территории ЖК продуман центральный прогулочный бульвар, который включает в себя: 4 функциональные зоны, детские площадки с батутами и современными игровыми комплексами, непрерывные беговые дорожки и спортивные комплексы марки Kompan, лаунж-зоны с качелями, шезлонгами и лавочки с WiFi. В проекте предусмотрен ландшафтный дизайн, озеленение и вечерняя подсветка. Внутреннее благоустройство включает в себя: места для игр и общения, дворы с фонтанами, площадками для спорта и детских игр, лаунж-зону с навесами и openair-коворкинг, музыкальные инсталляции, сенсорные сады, тактильною тропу, лавочки с WiFi.
Проект «Primavera» находится в районе Покровское-Стрешнево. Рядом с проектом находятся школы, детские сады, поликлиники, спортивные центры, магазины, салоны красоты. До метро «Спартак» — 15 минут пешком.
ЖК «Primavera» — это комплексная застройка переменной этажности от 2 до 22 этажей в стиле неоклассики и ар-деко. Авторами проекта выступила архитектурная мастерская Atrium. Отделка фасадов выполнена алюминиевыми композитными панелями, керамогранитом, стемалитом. В лобби сделана уникальная дизайнерская отделка, спроектированы колясочные и почтовые комнаты.
В ЖК «Primavera» представлены видовые двухуровневые пентхаусы, а также квартиры с патио и террасами. Всего в квартале доступно более 120 планировочных решений площадью от 40 до 192 квадратных метров. Большое количество квартир имеют вид на реку.
На территории проекта «Primavera» спроектирован эко парк на 17 га. Он включает в себя смотровые площадки, пляжные зоны, спуск к реке, зону лесного отдыха, детские, спортивные, рекреационные и экологические площадки, прогулочные тропы и велодорожки, а также зону воркаут. На территории ЖК продуман центральный прогулочный бульвар, который включает в себя: 4 функциональные зоны, детские площадки с батутами и современными игровыми комплексами, непрерывные беговые дорожки и спортивные комплексы марки Kompan, лаунж-зоны с качелями, шезлонгами и лавочки с WiFi. В проекте предусмотрен ландшафтный дизайн, озеленение и вечерняя подсветка. Внутреннее благоустройство включает в себя: места для игр и общения, дворы с фонтанами, площадками для спорта и детских игр, лаунж-зону с навесами и openair-коворкинг, музыкальные инсталляции, сенсорные сады, тактильною тропу, лавочки с WiFi.
Проект «Primavera» находится в районе Покровское-Стрешнево. Рядом с проектом находятся школы, детские сады, поликлиники, спортивные центры, магазины, салоны красоты. До метро «Спартак» — 15 минут пешком.
ЖК «Primavera» — это комплексная застройка переменной этажности от 2 до 22 этажей в стиле неоклассики и ар-деко. Авторами проекта выступила архитектурная мастерская Atrium. Отделка фасадов выполнена алюминиевыми композитными панелями, керамогранитом, стемалитом. В лобби сделана уникальная дизайнерская отделка, спроектированы колясочные и почтовые комнаты.
В ЖК «Primavera» представлены видовые двухуровневые пентхаусы, а также квартиры с патио и террасами. Всего в квартале доступно более 120 планировочных решений площадью от 40 до 192 квадратных метров. Большое количество квартир имеют вид на реку.
На территории проекта «Primavera» спроектирован эко парк на 17 га. Он включает в себя смотровые площадки, пляжные зоны, спуск к реке, зону лесного отдыха, детские, спортивные, рекреационные и экологические площадки, прогулочные тропы и велодорожки, а также зону воркаут. На территории ЖК продуман центральный прогулочный бульвар, который включает в себя: 4 функциональные зоны, детские площадки с батутами и современными игровыми комплексами, непрерывные беговые дорожки и спортивные комплексы марки Kompan, лаунж-зоны с качелями, шезлонгами и лавочки с WiFi. В проекте предусмотрен ландшафтный дизайн, озеленение и вечерняя подсветка. Внутреннее благоустройство включает в себя: места для игр и общения, дворы с фонтанами, площадками для спорта и детских игр, лаунж-зону с навесами и openair-коворкинг, музыкальные инсталляции, сенсорные сады, тактильною тропу, лавочки с WiFi.
Проект «Primavera» находится в районе Покровское-Стрешнево. Рядом с проектом находятся школы, детские сады, поликлиники, спортивные центры, магазины, салоны красоты. До метро «Спартак» — 15 минут пешком.
ЖК «Primavera» — это комплексная застройка переменной этажности от 2 до 22 этажей в стиле неоклассики и ар-деко. Авторами проекта выступила архитектурная мастерская Atrium. Отделка фасадов выполнена алюминиевыми композитными панелями, керамогранитом, стемалитом. В лобби сделана уникальная дизайнерская отделка, спроектированы колясочные и почтовые комнаты.
В ЖК «Primavera» представлены видовые двухуровневые пентхаусы, а также квартиры с патио и террасами. Всего в квартале доступно более 120 планировочных решений площадью от 40 до 192 квадратных метров. Большое количество квартир имеют вид на реку.
На территории проекта «Primavera» спроектирован эко парк на 17 га. Он включает в себя смотровые площадки, пляжные зоны, спуск к реке, зону лесного отдыха, детские, спортивные, рекреационные и экологические площадки, прогулочные тропы и велодорожки, а также зону воркаут. На территории ЖК продуман центральный прогулочный бульвар, который включает в себя: 4 функциональные зоны, детские площадки с батутами и современными игровыми комплексами, непрерывные беговые дорожки и спортивные комплексы марки Kompan, лаунж-зоны с качелями, шезлонгами и лавочки с WiFi. В проекте предусмотрен ландшафтный дизайн, озеленение и вечерняя подсветка. Внутреннее благоустройство включает в себя: места для игр и общения, дворы с фонтанами, площадками для спорта и детских игр, лаунж-зону с навесами и openair-коворкинг, музыкальные инсталляции, сенсорные сады, тактильною тропу, лавочки с WiFi.
Проект «Primavera» находится в районе Покровское-Стрешнево. Рядом с проектом находятся школы, детские сады, поликлиники, спортивные центры, магазины, салоны красоты. До метро «Спартак» — 15 минут пешком.
ЖК «Primavera» — это комплексная застройка переменной этажности от 2 до 22 этажей в стиле неоклассики и ар-деко. Авторами проекта выступила архитектурная мастерская Atrium. Отделка фасадов выполнена алюминиевыми композитными панелями, керамогранитом, стемалитом. В лобби сделана уникальная дизайнерская отделка, спроектированы колясочные и почтовые комнаты.
В ЖК «Primavera» представлены видовые двухуровневые пентхаусы, а также квартиры с патио и террасами. Всего в квартале доступно более 120 планировочных решений площадью от 40 до 192 квадратных метров. Большое количество квартир имеют вид на реку.
На территории проекта «Primavera» спроектирован эко парк на 17 га. Он включает в себя смотровые площадки, пляжные зоны, спуск к реке, зону лесного отдыха, детские, спортивные, рекреационные и экологические площадки, прогулочные тропы и велодорожки, а также зону воркаут. На территории ЖК продуман центральный прогулочный бульвар, который включает в себя: 4 функциональные зоны, детские площадки с батутами и современными игровыми комплексами, непрерывные беговые дорожки и спортивные комплексы марки Kompan, лаунж-зоны с качелями, шезлонгами и лавочки с WiFi. В проекте предусмотрен ландшафтный дизайн, озеленение и вечерняя подсветка. Внутреннее благоустройство включает в себя: места для игр и общения, дворы с фонтанами, площадками для спорта и детских игр, лаунж-зону с навесами и openair-коворкинг, музыкальные инсталляции, сенсорные сады, тактильною тропу, лавочки с WiFi.
Проект «Primavera» находится в районе Покровское-Стрешнево. Рядом с проектом находятся школы, детские сады, поликлиники, спортивные центры, магазины, салоны красоты. До метро «Спартак» — 15 минут пешком.
ЖК «Primavera» — это комплексная застройка переменной этажности от 2 до 22 этажей в стиле неоклассики и ар-деко. Авторами проекта выступила архитектурная мастерская Atrium. Отделка фасадов выполнена алюминиевыми композитными панелями, керамогранитом, стемалитом. В лобби сделана уникальная дизайнерская отделка, спроектированы колясочные и почтовые комнаты.
В ЖК «Primavera» представлены видовые двухуровневые пентхаусы, а также квартиры с патио и террасами. Всего в квартале доступно более 120 планировочных решений площадью от 40 до 192 квадратных метров. Большое количество квартир имеют вид на реку.
На территории проекта «Primavera» спроектирован эко парк на 17 га. Он включает в себя смотровые площадки, пляжные зоны, спуск к реке, зону лесного отдыха, детские, спортивные, рекреационные и экологические площадки, прогулочные тропы и велодорожки, а также зону воркаут. На территории ЖК продуман центральный прогулочный бульвар, который включает в себя: 4 функциональные зоны, детские площадки с батутами и современными игровыми комплексами, непрерывные беговые дорожки и спортивные комплексы марки Kompan, лаунж-зоны с качелями, шезлонгами и лавочки с WiFi. В проекте предусмотрен ландшафтный дизайн, озеленение и вечерняя подсветка. Внутреннее благоустройство включает в себя: места для игр и общения, дворы с фонтанами, площадками для спорта и детских игр, лаунж-зону с навесами и openair-коворкинг, музыкальные инсталляции, сенсорные сады, тактильною тропу, лавочки с WiFi.
Проект «Primavera» находится в районе Покровское-Стрешнево. Рядом с проектом находятся школы, детские сады, поликлиники, спортивные центры, магазины, салоны красоты. До метро «Спартак» — 15 минут пешком.
ЖК «Primavera» — это комплексная застройка переменной этажности от 2 до 22 этажей в стиле неоклассики и ар-деко. Авторами проекта выступила архитектурная мастерская Atrium. Отделка фасадов выполнена алюминиевыми композитными панелями, керамогранитом, стемалитом. В лобби сделана уникальная дизайнерская отделка, спроектированы колясочные и почтовые комнаты.
В ЖК «Primavera» представлены видовые двухуровневые пентхаусы, а также квартиры с патио и террасами. Всего в квартале доступно более 120 планировочных решений площадью от 40 до 192 квадратных метров. Большое количество квартир имеют вид на реку.
На территории проекта «Primavera» спроектирован эко парк на 17 га. Он включает в себя смотровые площадки, пляжные зоны, спуск к реке, зону лесного отдыха, детские, спортивные, рекреационные и экологические площадки, прогулочные тропы и велодорожки, а также зону воркаут. На территории ЖК продуман центральный прогулочный бульвар, который включает в себя: 4 функциональные зоны, детские площадки с батутами и современными игровыми комплексами, непрерывные беговые дорожки и спортивные комплексы марки Kompan, лаунж-зоны с качелями, шезлонгами и лавочки с WiFi. В проекте предусмотрен ландшафтный дизайн, озеленение и вечерняя подсветка. Внутреннее благоустройство включает в себя: места для игр и общения, дворы с фонтанами, площадками для спорта и детских игр, лаунж-зону с навесами и openair-коворкинг, музыкальные инсталляции, сенсорные сады, тактильною тропу, лавочки с WiFi.
Проект «Primavera» находится в районе Покровское-Стрешнево. Рядом с проектом находятся школы, детские сады, поликлиники, спортивные центры, магазины, салоны красоты. До метро «Спартак» — 15 минут пешком.
ЖК «Primavera» — это комплексная застройка переменной этажности от 2 до 22 этажей в стиле неоклассики и ар-деко. Авторами проекта выступила архитектурная мастерская Atrium. Отделка фасадов выполнена алюминиевыми композитными панелями, керамогранитом, стемалитом. В лобби сделана уникальная дизайнерская отделка, спроектированы колясочные и почтовые комнаты.
В ЖК «Primavera» представлены видовые двухуровневые пентхаусы, а также квартиры с патио и террасами. Всего в квартале доступно более 120 планировочных решений площадью от 40 до 192 квадратных метров. Большое количество квартир имеют вид на реку.
На территории проекта «Primavera» спроектирован эко парк на 17 га. Он включает в себя смотровые площадки, пляжные зоны, спуск к реке, зону лесного отдыха, детские, спортивные, рекреационные и экологические площадки, прогулочные тропы и велодорожки, а также зону воркаут. На территории ЖК продуман центральный прогулочный бульвар, который включает в себя: 4 функциональные зоны, детские площадки с батутами и современными игровыми комплексами, непрерывные беговые дорожки и спортивные комплексы марки Kompan, лаунж-зоны с качелями, шезлонгами и лавочки с WiFi. В проекте предусмотрен ландшафтный дизайн, озеленение и вечерняя подсветка. Внутреннее благоустройство включает в себя: места для игр и общения, дворы с фонтанами, площадками для спорта и детских игр, лаунж-зону с навесами и openair-коворкинг, музыкальные инсталляции, сенсорные сады, тактильною тропу, лавочки с WiFi.
Проект «Primavera» находится в районе Покровское-Стрешнево. Рядом с проектом находятся школы, детские сады, поликлиники, спортивные центры, магазины, салоны красоты. До метро «Спартак» — 15 минут пешком.
ЖК «Primavera» — это комплексная застройка переменной этажности от 2 до 22 этажей в стиле неоклассики и ар-деко. Авторами проекта выступила архитектурная мастерская Atrium. Отделка фасадов выполнена алюминиевыми композитными панелями, керамогранитом, стемалитом. В лобби сделана уникальная дизайнерская отделка, спроектированы колясочные и почтовые комнаты.
В ЖК «Primavera» представлены видовые двухуровневые пентхаусы, а также квартиры с патио и террасами. Всего в квартале доступно более 120 планировочных решений площадью от 40 до 192 квадратных метров. Большое количество квартир имеют вид на реку.
На территории проекта «Primavera» спроектирован эко парк на 17 га. Он включает в себя смотровые площадки, пляжные зоны, спуск к реке, зону лесного отдыха, детские, спортивные, рекреационные и экологические площадки, прогулочные тропы и велодорожки, а также зону воркаут. На территории ЖК продуман центральный прогулочный бульвар, который включает в себя: 4 функциональные зоны, детские площадки с батутами и современными игровыми комплексами, непрерывные беговые дорожки и спортивные комплексы марки Kompan, лаунж-зоны с качелями, шезлонгами и лавочки с WiFi. В проекте предусмотрен ландшафтный дизайн, озеленение и вечерняя подсветка. Внутреннее благоустройство включает в себя: места для игр и общения, дворы с фонтанами, площадками для спорта и детских игр, лаунж-зону с навесами и openair-коворкинг, музыкальные инсталляции, сенсорные сады, тактильною тропу, лавочки с WiFi.
Проект «Primavera» находится в районе Покровское-Стрешнево. Рядом с проектом находятся школы, детские сады, поликлиники, спортивные центры, магазины, салоны красоты. До метро «Спартак» — 15 минут пешком.
ЖК «Primavera» — это комплексная застройка переменной этажности от 2 до 22 этажей в стиле неоклассики и ар-деко. Авторами проекта выступила архитектурная мастерская Atrium. Отделка фасадов выполнена алюминиевыми композитными панелями, керамогранитом, стемалитом. В лобби сделана уникальная дизайнерская отделка, спроектированы колясочные и почтовые комнаты.
В ЖК «Primavera» представлены видовые двухуровневые пентхаусы, а также квартиры с патио и террасами. Всего в квартале доступно более 120 планировочных решений площадью от 40 до 192 квадратных метров. Большое количество квартир имеют вид на реку.
На территории проекта «Primavera» спроектирован эко парк на 17 га. Он включает в себя смотровые площадки, пляжные зоны, спуск к реке, зону лесного отдыха, детские, спортивные, рекреационные и экологические площадки, прогулочные тропы и велодорожки, а также зону воркаут. На территории ЖК продуман центральный прогулочный бульвар, который включает в себя: 4 функциональные зоны, детские площадки с батутами и современными игровыми комплексами, непрерывные беговые дорожки и спортивные комплексы марки Kompan, лаунж-зоны с качелями, шезлонгами и лавочки с WiFi. В проекте предусмотрен ландшафтный дизайн, озеленение и вечерняя подсветка. Внутреннее благоустройство включает в себя: места для игр и общения, дворы с фонтанами, площадками для спорта и детских игр, лаунж-зону с навесами и openair-коворкинг, музыкальные инсталляции, сенсорные сады, тактильною тропу, лавочки с WiFi.
Проект «Primavera» находится в районе Покровское-Стрешнево. Рядом с проектом находятся школы, детские сады, поликлиники, спортивные центры, магазины, салоны красоты. До метро «Спартак» — 15 минут пешком.
ЖК «Primavera» — это комплексная застройка переменной этажности от 2 до 22 этажей в стиле неоклассики и ар-деко. Авторами проекта выступила архитектурная мастерская Atrium. Отделка фасадов выполнена алюминиевыми композитными панелями, керамогранитом, стемалитом. В лобби сделана уникальная дизайнерская отделка, спроектированы колясочные и почтовые комнаты.
В ЖК «Primavera» представлены видовые двухуровневые пентхаусы, а также квартиры с патио и террасами. Всего в квартале доступно более 120 планировочных решений площадью от 40 до 192 квадратных метров. Большое количество квартир имеют вид на реку.
На территории проекта «Primavera» спроектирован эко парк на 17 га. Он включает в себя смотровые площадки, пляжные зоны, спуск к реке, зону лесного отдыха, детские, спортивные, рекреационные и экологические площадки, прогулочные тропы и велодорожки, а также зону воркаут. На территории ЖК продуман центральный прогулочный бульвар, который включает в себя: 4 функциональные зоны, детские площадки с батутами и современными игровыми комплексами, непрерывные беговые дорожки и спортивные комплексы марки Kompan, лаунж-зоны с качелями, шезлонгами и лавочки с WiFi. В проекте предусмотрен ландшафтный дизайн, озеленение и вечерняя подсветка. Внутреннее благоустройство включает в себя: места для игр и общения, дворы с фонтанами, площадками для спорта и детских игр, лаунж-зону с навесами и openair-коворкинг, музыкальные инсталляции, сенсорные сады, тактильною тропу, лавочки с WiFi.
Проект «Primavera» находится в районе Покровское-Стрешнево. Рядом с проектом находятся школы, детские сады, поликлиники, спортивные центры, магазины, салоны красоты. До метро «Спартак» — 15 минут пешком.
ЖК «Primavera» — это комплексная застройка переменной этажности от 2 до 22 этажей в стиле неоклассики и ар-деко. Авторами проекта выступила архитектурная мастерская Atrium. Отделка фасадов выполнена алюминиевыми композитными панелями, керамогранитом, стемалитом. В лобби сделана уникальная дизайнерская отделка, спроектированы колясочные и почтовые комнаты.
В ЖК «Primavera» представлены видовые двухуровневые пентхаусы, а также квартиры с патио и террасами. Всего в квартале доступно более 120 планировочных решений площадью от 40 до 192 квадратных метров. Большое количество квартир имеют вид на реку.
На территории проекта «Primavera» спроектирован эко парк на 17 га. Он включает в себя смотровые площадки, пляжные зоны, спуск к реке, зону лесного отдыха, детские, спортивные, рекреационные и экологические площадки, прогулочные тропы и велодорожки, а также зону воркаут. На территории ЖК продуман центральный прогулочный бульвар, который включает в себя: 4 функциональные зоны, детские площадки с батутами и современными игровыми комплексами, непрерывные беговые дорожки и спортивные комплексы марки Kompan, лаунж-зоны с качелями, шезлонгами и лавочки с WiFi. В проекте предусмотрен ландшафтный дизайн, озеленение и вечерняя подсветка. Внутреннее благоустройство включает в себя: места для игр и общения, дворы с фонтанами, площадками для спорта и детских игр, лаунж-зону с навесами и openair-коворкинг, музыкальные инсталляции, сенсорные сады, тактильною тропу, лавочки с WiFi.
Проект «Primavera» находится в районе Покровское-Стрешнево. Рядом с проектом находятся школы, детские сады, поликлиники, спортивные центры, магазины, салоны красоты. До метро «Спартак» — 15 минут пешком.
ЖК «Primavera» — это комплексная застройка переменной этажности от 2 до 22 этажей в стиле неоклассики и ар-деко. Авторами проекта выступила архитектурная мастерская Atrium. Отделка фасадов выполнена алюминиевыми композитными панелями, керамогранитом, стемалитом. В лобби сделана уникальная дизайнерская отделка, спроектированы колясочные и почтовые комнаты.
В ЖК «Primavera» представлены видовые двухуровневые пентхаусы, а также квартиры с патио и террасами. Всего в квартале доступно более 120 планировочных решений площадью от 40 до 192 квадратных метров. Большое количество квартир имеют вид на реку.
На территории проекта «Primavera» спроектирован эко парк на 17 га. Он включает в себя смотровые площадки, пляжные зоны, спуск к реке, зону лесного отдыха, детские, спортивные, рекреационные и экологические площадки, прогулочные тропы и велодорожки, а также зону воркаут. На территории ЖК продуман центральный прогулочный бульвар, который включает в себя: 4 функциональные зоны, детские площадки с батутами и современными игровыми комплексами, непрерывные беговые дорожки и спортивные комплексы марки Kompan, лаунж-зоны с качелями, шезлонгами и лавочки с WiFi. В проекте предусмотрен ландшафтный дизайн, озеленение и вечерняя подсветка. Внутреннее благоустройство включает в себя: места для игр и общения, дворы с фонтанами, площадками для спорта и детских игр, лаунж-зону с навесами и openair-коворкинг, музыкальные инсталляции, сенсорные сады, тактильною тропу, лавочки с WiFi.
Проект «Primavera» находится в районе Покровское-Стрешнево. Рядом с проектом находятся школы, детские сады, поликлиники, спортивные центры, магазины, салоны красоты. До метро «Спартак» — 15 минут пешком.
ЖК «Primavera» — это комплексная застройка переменной этажности от 2 до 22 этажей в стиле неоклассики и ар-деко. Авторами проекта выступила архитектурная мастерская Atrium. Отделка фасадов выполнена алюминиевыми композитными панелями, керамогранитом, стемалитом. В лобби сделана уникальная дизайнерская отделка, спроектированы колясочные и почтовые комнаты.
В ЖК «Primavera» представлены видовые двухуровневые пентхаусы, а также квартиры с патио и террасами. Всего в квартале доступно более 120 планировочных решений площадью от 40 до 192 квадратных метров. Большое количество квартир имеют вид на реку.
На территории проекта «Primavera» спроектирован эко парк на 17 га. Он включает в себя смотровые площадки, пляжные зоны, спуск к реке, зону лесного отдыха, детские, спортивные, рекреационные и экологические площадки, прогулочные тропы и велодорожки, а также зону воркаут. На территории ЖК продуман центральный прогулочный бульвар, который включает в себя: 4 функциональные зоны, детские площадки с батутами и современными игровыми комплексами, непрерывные беговые дорожки и спортивные комплексы марки Kompan, лаунж-зоны с качелями, шезлонгами и лавочки с WiFi. В проекте предусмотрен ландшафтный дизайн, озеленение и вечерняя подсветка. Внутреннее благоустройство включает в себя: места для игр и общения, дворы с фонтанами, площадками для спорта и детских игр, лаунж-зону с навесами и openair-коворкинг, музыкальные инсталляции, сенсорные сады, тактильною тропу, лавочки с WiFi.
Проект «Primavera» находится в районе Покровское-Стрешнево. Рядом с проектом находятся школы, детские сады, поликлиники, спортивные центры, магазины, салоны красоты. До метро «Спартак» — 15 минут пешком.
ЖК «Primavera» — это комплексная застройка переменной этажности от 2 до 22 этажей в стиле неоклассики и ар-деко. Авторами проекта выступила архитектурная мастерская Atrium. Отделка фасадов выполнена алюминиевыми композитными панелями, керамогранитом, стемалитом. В лобби сделана уникальная дизайнерская отделка, спроектированы колясочные и почтовые комнаты.
В ЖК «Primavera» представлены видовые двухуровневые пентхаусы, а также квартиры с патио и террасами. Всего в квартале доступно более 120 планировочных решений площадью от 40 до 192 квадратных метров. Большое количество квартир имеют вид на реку.
На территории проекта «Primavera» спроектирован эко парк на 17 га. Он включает в себя смотровые площадки, пляжные зоны, спуск к реке, зону лесного отдыха, детские, спортивные, рекреационные и экологические площадки, прогулочные тропы и велодорожки, а также зону воркаут. На территории ЖК продуман центральный прогулочный бульвар, который включает в себя: 4 функциональные зоны, детские площадки с батутами и современными игровыми комплексами, непрерывные беговые дорожки и спортивные комплексы марки Kompan, лаунж-зоны с качелями, шезлонгами и лавочки с WiFi. В проекте предусмотрен ландшафтный дизайн, озеленение и вечерняя подсветка. Внутреннее благоустройство включает в себя: места для игр и общения, дворы с фонтанами, площадками для спорта и детских игр, лаунж-зону с навесами и openair-коворкинг, музыкальные инсталляции, сенсорные сады, тактильною тропу, лавочки с WiFi.
Проект «Primavera» находится в районе Покровское-Стрешнево. Рядом с проектом находятся школы, детские сады, поликлиники, спортивные центры, магазины, салоны красоты. До метро «Спартак» — 15 минут пешком.
