ЖК «Primavera» — это комплексная застройка переменной этажности от 2 до 22 этажей в стиле неоклассики и ар-деко. Авторами проекта выступила архитектурная мастерская Atrium. Отделка фасадов выполнена алюминиевыми композитными панелями, керамогранитом, стемалитом. В лобби сделана уникальная дизайнерская отделка, спроектированы колясочные и почтовые комнаты.
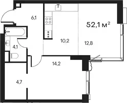
В ЖК «Primavera» представлены видовые двухуровневые пентхаусы, а также квартиры с патио и террасами. Всего в квартале доступно более 120 планировочных решений площадью от 40 до 192 квадратных метров. Большое количество квартир имеют вид на реку.
На территории проекта «Primavera» спроектирован эко парк на 17 га. Он включает в себя смотровые площадки, пляжные зоны, спуск к реке, зону лесного отдыха, детские, спортивные, рекреационные и экологические площадки, прогулочные тропы и велодорожки, а также зону воркаут. На территории ЖК продуман центральный прогулочный бульвар, который включает в себя: 4 функциональные зоны, детские площадки с батутами и современными игровыми комплексами, непрерывные беговые дорожки и спортивные комплексы марки Kompan, лаунж-зоны с качелями, шезлонгами и лавочки с WiFi. В проекте предусмотрен ландшафтный дизайн, озеленение и вечерняя подсветка. Внутреннее благоустройство включает в себя: места для игр и общения, дворы с фонтанами, площадками для спорта и детских игр, лаунж-зону с навесами и openair-коворкинг, музыкальные инсталляции, сенсорные сады, тактильною тропу, лавочки с WiFi.
Проект «Primavera» находится в районе Покровское-Стрешнево. Рядом с проектом находятся школы, детские сады, поликлиники, спортивные центры, магазины, салоны красоты. До метро «Спартак» — 15 минут пешком.
