Жилой комплекс «Резиденции архитекторов» включает в себя кирпично-монолитные корпуса переменной этажности. Дома расположены тремя параллельными линиями и образуют два закрытых внутренних благоустроенных двора и центральный бульвар до Рубцовской набережной. Архитектурный проект разработан мастерской «Группа АБВ». Вентилируемые фасады выполнены в современном стиле.
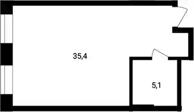
Квартиры имеют просторные планировки до четырех комнат. Высота потолков достигает 3,4 метра. Окна некоторых квартир обращены на набережную реки Яуза. Застройщик передает дольщикам квартиры без отделки.
В состав комплекса входят торгово-офисные комплексы, детский сад, рестораны и кафе, а также галереи, творческие студии и арт-пространства для работы и отдыха. В проекте предусмотрена концепция «двор без машин». Для жителей работают службы охраны и консьержей. Придомовая территория благоустроена ландшафтным дизайном, детскими и спортивными площадками, пешеходными и велосипедными дорожками. Широкий бульвар, переходящий в пешеходный мост через реку Яузу, благоустроен дизайнерскими скамейками, клумбами и малыми архитектурными формами.
Жилой комплекс находится в Басманном районе – одном из центральных районов Москвы. В пешей доступности расположены школы, торговые центры, спортивные и медицинские учреждения, а также Лефортовский парк. Метро «Электрозаводская» находится в 10 минутах пешком.
