Жилой комплекс «Родные кварталы» состоит из кирпично-монолитных корпусов средней этажности высотой до 10 этажей. В отделке используется сочетание вентилируемого фасада с облицовкой из фибробетонной плитки и штукатуркой. Выразительность и динамику облику зданий придают контрастные цвета, чередование объемов и материалов отделки, окна различных размеров и их нелинейное расположение. В домах предусмотрены дизайнерские входные группы с вестибюлем, зоной ожидания, местами для мойки колес и лап питомцев, колясочными и велосипедными. Витражное остекление входных групп обеспечивает приток естественного света. Все дома обеспечены подземными паркингами и кладовыми. Первые этажи зданий занимают коммерческие помещения.
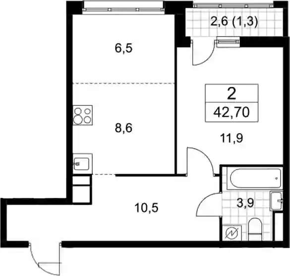
В ЖК «Родные кварталы» предложено множество планировочных решений – от функциональных компактных студий до просторных 4-комнатных квартир европейского формата. Квартиры сдаются без отделки, высота потолков составляет 2,95 метра.
Ландшафтный дизайн территории выполнен архитектурной студией GAFA. Во дворах обустроены природные зоны, напоминающие ландшафты разных регионов России, установлены площадки с народными играми. Территорию комплекса покрывает сеть пешеходных и велосипедных маршрутов протяженностью 4 километра.
ЖК «Родные кварталы» расположен в экологически чистом районе, вблизи деревни Постниково. Комплекс окружают малоэтажные поселки и живописный Ульяновский лесопарк. В районе хорошо развита инфраструктура для спорта и активного отдыха, рядом расположены: конный клуб, центр практического и игрового развития «Лучшее время», парк «Ручеек». До аэропорта Внуково можно добраться за 15 минут на автомобиле. Ближайшее метро «Пыхтино» в 10 минутах транспортом.
