
Жилой комплекс состоит из 33 кирпично-монолитных корпусов переменной этажности 5-14 этажей. Корпуса разделены на четыре категории: Balanced, Optimum, Advanced, Superb. В каждой секции имеются бесшумные скоростные лифты, зоны ожидания, места для хранения колясок и велосипедов, комнаты для мытья лап домашним питомцам, а также гостевые санузлы. В жилом комплексе интегрированы автоматизированные инженерные системы, вакуумная система мусороудаления (с обязательной предварительной сортировкой), которая позволит отказаться от мусорных контейнеров и солнечные панели на фасадах и крышах зданий.
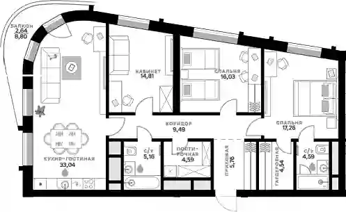
Покупателям предлагаются квартиры с различными планировками: от однокомнатных до четырехкомнатных квартир площадью 52-200 кв.м. Высота потолков в квартирах также разная: от 2,9 до 4,5 м. Квартиры сдаются как без отделки, так и с отделкой. На выбор предлагается три стиля отделки в более светлых или темных вариациях: Mediterranean (средиземноморский стиль в теплой цветовой гамме), New Classic (сдержанная и элегантная классика с характерными молдингами на стенах), Scandinavian (приглушенные тона северной природы). К дополнительным характеристикам можно отнести: панорамное остекление, варианты квартир с террасами и система «умный дом».
Внутренняя инфраструктура ЖК включает в себя благоустроенные внутренние дворы с открытыми пространствами для спорта и детских игр, а также коммерческие помещения на первых этажах корпусов. Также в комплексе действуют школы и детские сады, поликлиники, бизнес-анклав и Тематический развлекательный парк «Союзмультфильм». На территории ЖК сооружены стоянка и подземный паркинг на 36 000 мест, в том числе с зарядными устройствами для электромобилей.
Район, в котором расположен жилой комплекс, также обладает развитой инфраструктурой. Рядом с комплексом находятся театр танца «Щелкунчик», футбольный клуб «Cтрoгинo», спортивный игровой центр Playground, секция каратэ, клуб сапбординга Gosup, магазины, школы, детские сады, аптеки, поликлиники, кафе и рестораны. Также недалеко от комплекса расположены музей-усадьба «Apхaнгeльскoe», особо охраняемые природные территории и заповедник Лохин остров, парки Рублевский и Ромашковский. До ближайшей станции метро «Строгино» можно добраться за 20 минут на автомобиле.
