










Жилой комплекс включает в себя 2 корпуса высотой 13 и 22 этажей. Архитектурная концепция проекта гармонично сочетает в себе эстетику и функциональность. Фасады зданий выполнены из бетонной плитки, имитирующей кирпичную кладку, и композитных панелей. Теплая цветовая гамма архитектурной подсветки создает уютную атмосферу, которая идеально сочетается с окружающей природой и органично вписывается в городской пейзаж. Интерьер лобби разработан архитектурным бюро А4 в едином стиле, для которого характерны линейность, фактурность и четкость форм. Эти элементы идеально гармонируют с элегантным фасадом здания.
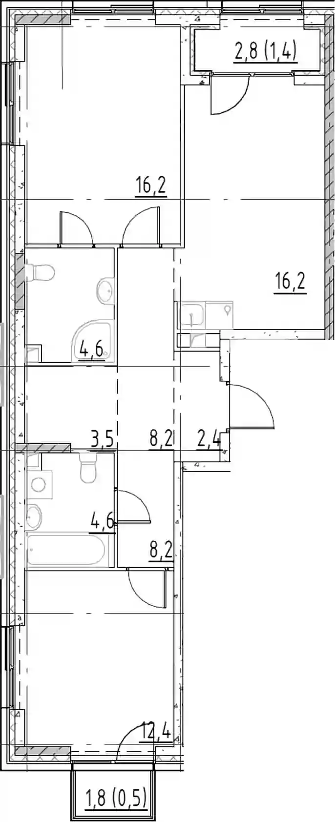
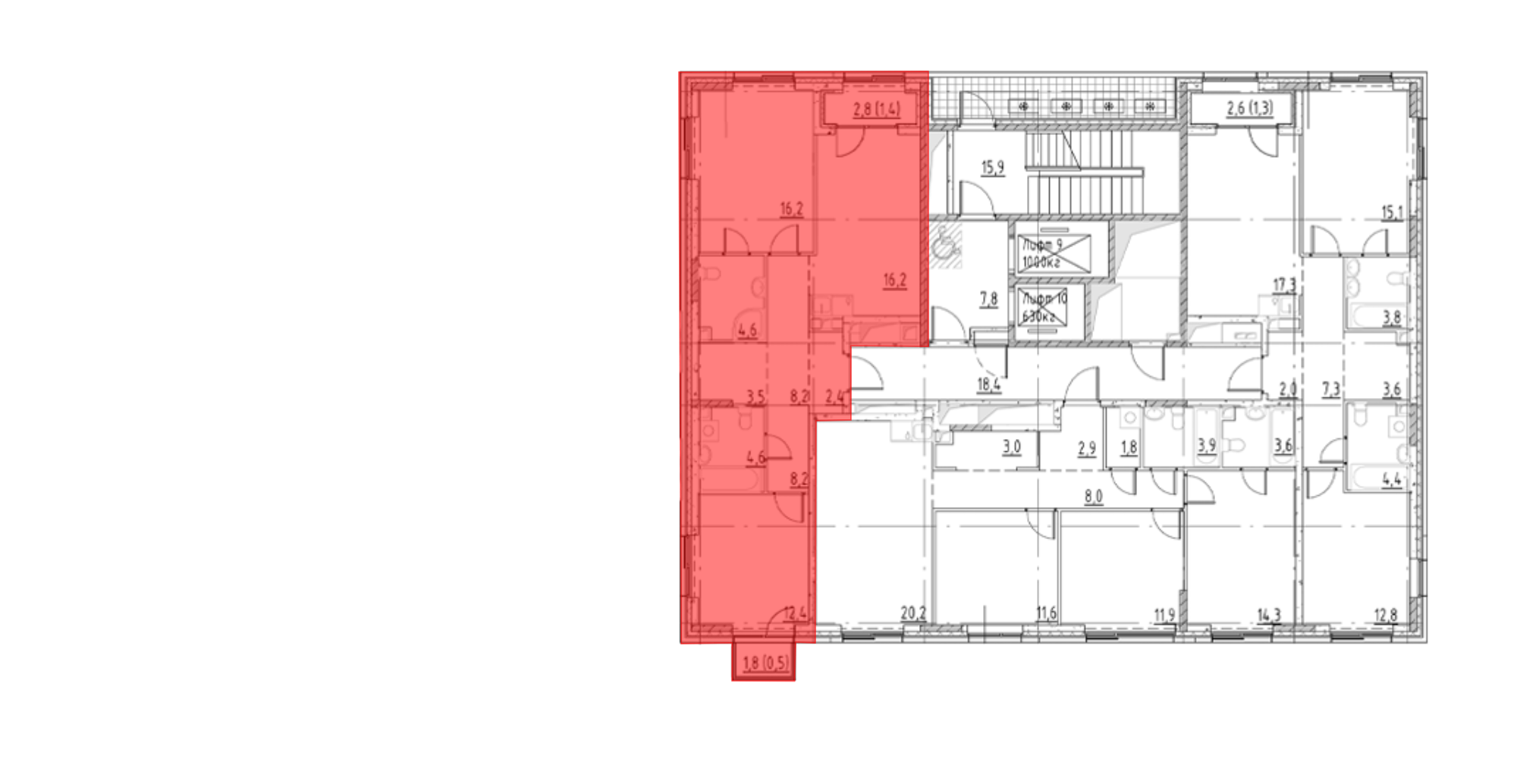
В проекте представлены разнообразные варианты планировок: от уютных однокомнатных площадью от 28,1 квадратных метров до просторных 3-комнатных площадью 88,9 метров. Также в ассортименте имеются квартиры с угловым остеклением и широкими панорамными окнами. Высота потолков варьируется от 2,87 до 3,30 метров. Все квартиры сдаются без отделки.
Придомовая территория благоустроена с учетом различных сценариев использования в течение дня. Концепция включает несколько функциональных зон: для встреч с друзьями, спокойного отдыха и активного образа жизни. Для тех, кто предпочитает работать на свежем воздухе, созданы зоны коворкинга под открытым небом. Кроме того, есть зона для занятий спортом, где взрослые смогут поддерживать свою форму, а дети — играть на безопасной площадке. В торговой галерее комплекса предусмотрено 21 помещение коммерческого назначения, благодарякоторым будет сформирована вся необходимая коммерческая инфраструктура.Это позволит обеспечить жителей всем необходимым для комфортной жизни в шаговой доступности. В подземной части расположен паркинг, оборудованный лифтом для быстрого доступа на жилые этажи. Также здесь предусмотрены зарядные станции для электромобилей и келлеры.
Жилой комплекс расположен в живописном Богородском районе на востоке Москвы. В непосредственной близости находятся все необходимые объекты: торговые центры, спортивные клубы, кафе и рестораны, а также социальные и деловые учреждения. Комплекс окружен крупнейшими зелеными зонами столицы: национальным парком «Лосиный остров» и парком «Сокольники». Здесь можно наслаждаться прогулками по лесным дорожкам, кататься на велосипеде, заниматься спортом на свежем воздухе или устраивать конные прогулки. До метро «Преображенская площадь» можно добраться всего за 15 минут транспортом.
Жилой комплекс включает в себя 2 корпуса высотой 13 и 22 этажей. Архитектурная концепция проекта гармонично сочетает в себе эстетику и функциональность. Фасады зданий выполнены из бетонной плитки, имитирующей кирпичную кладку, и композитных панелей. Теплая цветовая гамма архитектурной подсветки создает уютную атмосферу, которая идеально сочетается с окружающей природой и органично вписывается в городской пейзаж. Интерьер лобби разработан архитектурным бюро А4 в едином стиле, для которого характерны линейность, фактурность и четкость форм. Эти элементы идеально гармонируют с элегантным фасадом здания.
В проекте представлены разнообразные варианты планировок: от уютных однокомнатных площадью от 28,1 квадратных метров до просторных 3-комнатных площадью 88,9 метров. Также в ассортименте имеются квартиры с угловым остеклением и широкими панорамными окнами. Высота потолков варьируется от 2,87 до 3,30 метров. Все квартиры сдаются без отделки.
Придомовая территория благоустроена с учетом различных сценариев использования в течение дня. Концепция включает несколько функциональных зон: для встреч с друзьями, спокойного отдыха и активного образа жизни. Для тех, кто предпочитает работать на свежем воздухе, созданы зоны коворкинга под открытым небом. Кроме того, есть зона для занятий спортом, где взрослые смогут поддерживать свою форму, а дети — играть на безопасной площадке. В торговой галерее комплекса предусмотрено 21 помещение коммерческого назначения, благодарякоторым будет сформирована вся необходимая коммерческая инфраструктура.Это позволит обеспечить жителей всем необходимым для комфортной жизни в шаговой доступности. В подземной части расположен паркинг, оборудованный лифтом для быстрого доступа на жилые этажи. Также здесь предусмотрены зарядные станции для электромобилей и келлеры.
Жилой комплекс расположен в живописном Богородском районе на востоке Москвы. В непосредственной близости находятся все необходимые объекты: торговые центры, спортивные клубы, кафе и рестораны, а также социальные и деловые учреждения. Комплекс окружен крупнейшими зелеными зонами столицы: национальным парком «Лосиный остров» и парком «Сокольники». Здесь можно наслаждаться прогулками по лесным дорожкам, кататься на велосипеде, заниматься спортом на свежем воздухе или устраивать конные прогулки. До метро «Преображенская площадь» можно добраться всего за 15 минут транспортом.
Жилой комплекс бизнес-класса состоит из 2 корпусов высотой 5 и 17 этажей. Визуальный облик комплекса выполнен в стиле модернизм, что подчеркивается использованием крупных керамогранитных панелей с имитацией натурального белоснежного камня. Панорамные окна и витражное остекление первых этажей придают проекту легкость и современный облик.
В комплексе представлен широкий выбор планировок квартир с 1–4 спальнями площадью от 40 до 150 кв. метров. Квартиры сдаются без отделки, с высотой потолков от 3 метров, окна — панорамные и увеличенные. В проекте также представлены редкие форматы квартир: пентхаусы с террасами, квартиры с отдельными постирочными, угловым остеклением и несколькими окнами.
Благоустроенная территория комплекса включает закрытый охраняемый двор с детскими и спортивными площадками, зонами для отдыха и коворкингом на открытом воздухе. На первых этажах расположены рестораны, кафе, салоны красоты и детские развивающие центры. Для владельцев автомобилей предусмотрен подземный паркинг со станциями для зарядки электромобилей и кладовыми помещениями.
Комплекс расположен в районе Марьина Роща, в 5 минутах пешком от метро «Марьина Роща». В шаговой доступности находятся школы, детские сады, поликлиники, торговые центры и крупные зеленые зоны — парки ВДНХ и Сокольники.
Жилой комплекс бизнес-класса состоит из 2 корпусов высотой 5 и 17 этажей. Визуальный облик комплекса выполнен в стиле модернизм, что подчеркивается использованием крупных керамогранитных панелей с имитацией натурального белоснежного камня. Панорамные окна и витражное остекление первых этажей придают проекту легкость и современный облик.
В комплексе представлен широкий выбор планировок квартир с 1–4 спальнями площадью от 40 до 150 кв. метров. Квартиры сдаются без отделки, с высотой потолков от 3 метров, окна — панорамные и увеличенные. В проекте также представлены редкие форматы квартир: пентхаусы с террасами, квартиры с отдельными постирочными, угловым остеклением и несколькими окнами.
Благоустроенная территория комплекса включает закрытый охраняемый двор с детскими и спортивными площадками, зонами для отдыха и коворкингом на открытом воздухе. На первых этажах расположены рестораны, кафе, салоны красоты и детские развивающие центры. Для владельцев автомобилей предусмотрен подземный паркинг со станциями для зарядки электромобилей и кладовыми помещениями.
Комплекс расположен в районе Марьина Роща, в 5 минутах пешком от метро «Марьина Роща». В шаговой доступности находятся школы, детские сады, поликлиники, торговые центры и крупные зеленые зоны — парки ВДНХ и Сокольники.
Проект «Nagatino i-Land» разработан британским архитектурным бюро AHR. В основе лежит квартальный принцип застройки. На территории квартала спроектированы жилые корпуса разной высотности от 5 до 32 этажей. Входные группы спроектированы с высокими потолками, дизайнерской отделко и двумя входами: со двора и улицы. Входы расположены на уровне земли, без ступеней и пандусов.
Покупателям квартир в ЖК «Nagatino i-Land» предложено множество планировочных решений: в наличии квартиры, как классического типа, так и европланировки. Квартиры передаются покупателям без отделки, с подчистовой и чистовой отделкой. Из некоторых квартир открывается вид на Москву-реку, а на крышах зданий низко-этажных жилых зданий появятся уникальные общественные пространства для игр, общения и занятий спортом.
В состав комплекса входят четыре детских сада и школа на 825 мест. Также в доступе у жителей будут собственные спортивный и медицинский центры, и торговые центры: «Мегаполис» и «Ривьера». Для автовладельцев предусмотрен подземный паркинг на 1500 мест. На первых этажах предусмотрены коммерческие помещения. Особое внимание уделено ландшафтному дизайну территории: пешеходные бульвары, скверы и зеленые дорожки.
ЖК «Nagatino i-Land» находится в Даниловском районе, где расположены школы, бизнес-центры, кафе и рестораны, торговые комплексы, благоустроенные набережные и парки. Метро «Технопарк» находится в 10 минутах пешком.
ЖК «Voxhall»— это 4 корпуса разной этажности: от 6 до 25 этажей. Навесные вентилируемые фасады обеспечивают комфортный температурный режим и защищают от шума. Изысканная классика кирпичных фасадов в сочетании с панорамным остеклением создают лоск стиля лофт. В проекте выполнена дизайнерская отделка входных групп и лобби, установлены современные лифты.
В жилом комплексе «Voxhall» спроектировано множество планировочных решений: от студий до пентхауса. В квартирах и апартаментах предложены террасы, гардеробные с окном, мастер спальни, просторные кухни-гостиные. Сдаются они без отделки и высотой потолков 3,3 метра.
Проект «Voxhall» имеет закрытую территорию с круглосуточной охраной и видеонаблюдением. Во дворах-скверах выполнено озеленение, организованы места для отдыха, установлены детские и спортивные площадки. На территории комплекса спроектирован свой детский сад, а на первых этажах корпусов разместились коммерческие помещения. На территории ЖК предусмотрена концепция «двор без машин». Для владельцев автомобилей спроектирован отапливаемый подземный паркинг с прямым доступом на лифте.
Жилой комплекс «Voxhall» находится в Замоскворечье. В пешей доступности находятся рестораны, кофейни, супермаркеты, банки, спортивная инфраструктура, кинотеатры, медицинские центры, аптеки, музеи, бары и бизнес-центры. Также, пешком или любым другим видом транспорта, можно добраться до парка Горького, Музеона или новой Третьяковской Галереи.
ЖК «Voxhall»— это 4 корпуса разной этажности: от 6 до 25 этажей. Навесные вентилируемые фасады обеспечивают комфортный температурный режим и защищают от шума. Изысканная классика кирпичных фасадов в сочетании с панорамным остеклением создают лоск стиля лофт. В проекте выполнена дизайнерская отделка входных групп и лобби, установлены современные лифты.
В жилом комплексе «Voxhall» спроектировано множество планировочных решений: от студий до пентхауса. В квартирах и апартаментах предложены террасы, гардеробные с окном, мастер спальни, просторные кухни-гостиные. Сдаются они без отделки и высотой потолков 3,3 метра.
Проект «Voxhall» имеет закрытую территорию с круглосуточной охраной и видеонаблюдением. Во дворах-скверах выполнено озеленение, организованы места для отдыха, установлены детские и спортивные площадки. На территории комплекса спроектирован свой детский сад, а на первых этажах корпусов разместились коммерческие помещения. На территории ЖК предусмотрена концепция «двор без машин». Для владельцев автомобилей спроектирован отапливаемый подземный паркинг с прямым доступом на лифте.
Жилой комплекс «Voxhall» находится в Замоскворечье. В пешей доступности находятся рестораны, кофейни, супермаркеты, банки, спортивная инфраструктура, кинотеатры, медицинские центры, аптеки, музеи, бары и бизнес-центры. Также, пешком или любым другим видом транспорта, можно добраться до парка Горького, Музеона или новой Третьяковской Галереи.
ЖК «Voxhall»— это 4 корпуса разной этажности: от 6 до 25 этажей. Навесные вентилируемые фасады обеспечивают комфортный температурный режим и защищают от шума. Изысканная классика кирпичных фасадов в сочетании с панорамным остеклением создают лоск стиля лофт. В проекте выполнена дизайнерская отделка входных групп и лобби, установлены современные лифты.
В жилом комплексе «Voxhall» спроектировано множество планировочных решений: от студий до пентхауса. В квартирах и апартаментах предложены террасы, гардеробные с окном, мастер спальни, просторные кухни-гостиные. Сдаются они без отделки и высотой потолков 3,3 метра.
Проект «Voxhall» имеет закрытую территорию с круглосуточной охраной и видеонаблюдением. Во дворах-скверах выполнено озеленение, организованы места для отдыха, установлены детские и спортивные площадки. На территории комплекса спроектирован свой детский сад, а на первых этажах корпусов разместились коммерческие помещения. На территории ЖК предусмотрена концепция «двор без машин». Для владельцев автомобилей спроектирован отапливаемый подземный паркинг с прямым доступом на лифте.
Жилой комплекс «Voxhall» находится в Замоскворечье. В пешей доступности находятся рестораны, кофейни, супермаркеты, банки, спортивная инфраструктура, кинотеатры, медицинские центры, аптеки, музеи, бары и бизнес-центры. Также, пешком или любым другим видом транспорта, можно добраться до парка Горького, Музеона или новой Третьяковской Галереи.
Жилой квартал «Shagal» представляет собой проект комплексного освоения территории. Над созданием концепции жилого комплекса работало архитектурное бюро Buromoscow. Главной особенностью комплекса является соседство разных типологий застройки и форматов жилья — от таунхаусов до небоскребов. Весь район спроектирован на основе принципа 15-минутной доступности необходимой инфраструктуры и продуманных прогулочных маршрутов.
Покупателям в ЖК «Shagal» предложено множество планировочных решений: в наличии квартиры, как классического типа, так и европланировки. Из большинства квартир открывается вид на Москву-реку.
На первых этажах предусмотрены коммерческие помещения. В подземной части зданий находятся паркинги и кладовые помещения. Также проектом предусмотрено благоустройство набережной и создание 4-километровой парковой зоны и первого в столице водного парка.
Комплекс расположен вдоль Москвы-реки и набережной Марка Шагала. Отличную транспортную доступность обеспечивает прямой выезд на ТТК и развитая сеть общественного транспорта. В 2 км расположена платформа МЦК «ЗИЛ» и станция метро «Технопарк».
Жилой квартал «Shagal» представляет собой проект комплексного освоения территории. Над созданием концепции жилого комплекса работало архитектурное бюро Buromoscow. Главной особенностью комплекса является соседство разных типологий застройки и форматов жилья — от таунхаусов до небоскребов. Весь район спроектирован на основе принципа 15-минутной доступности необходимой инфраструктуры и продуманных прогулочных маршрутов.
Покупателям в ЖК «Shagal» предложено множество планировочных решений: в наличии квартиры, как классического типа, так и европланировки. Из большинства квартир открывается вид на Москву-реку.
На первых этажах предусмотрены коммерческие помещения. В подземной части зданий находятся паркинги и кладовые помещения. Также проектом предусмотрено благоустройство набережной и создание 4-километровой парковой зоны и первого в столице водного парка.
Комплекс расположен вдоль Москвы-реки и набережной Марка Шагала. Отличную транспортную доступность обеспечивает прямой выезд на ТТК и развитая сеть общественного транспорта. В 2 км расположена платформа МЦК «ЗИЛ» и станция метро «Технопарк».
Жилой квартал «Десятка» представляет собой застройку домами переменной этажности от 15 до 16 этажей. В облицовке стен зданий используется современный навесной вентилируемый фасад. В корпусах выполнена дизайнерская отделка входных групп и установлены современные лифты.
В ЖК «Десятка» предложено множество планировочных решений: в наличии квартиры, как классического типа, так и европланировки. Сдаются они без отделки и с высокими потолками 2,75 метра. Во всех квартирах предусмотрены балконы или лоджии с остеклением в пол.
Первые этажи ЖК «Десятка» занимают коммерческие помещения, а на цокольном этаже здания запроектированы кладовые для хранения сезонных вещей и инвентаря. На придомовой территории оборудованы детская и спортивная площадки, спроектированы свои детский сад и школа. Для владельцев автомобилей предусмотрен отдельный многоуровневый паркинг.
ЖК «Десятка» находится в Раменском в окружении лесных массивов. В пешей доступности расположены школы, детские сады, магазины, отделения почты и банков. Выезд на МКАД и метро «Котельники» находятся в 40 минутах транспортом.
Жилой комплекс представляет собой 12-этажное здание с концепцией совмещения жилья и гостиничного сервиса: с 2 по 9 этажи размещается отель, а 10 и 11 уровни отведены под апартаменты. Объект возведен по надежной монолитной технологии с фасадным остеклением. Здание оснащено пассажирским и грузовым лифтами.
В проекте представлены квартиры с 1–4 спальнями в формате европланировок с панорамными окнами и потолками до 3,5 метров. Помещения идут без стен, что позволяет владельцам организовать пространство по собственному вкусу. Также доступны варианты с полной отделкой, включая дизайн-проект под ключ с мягкой мебелью или с кухней и встроенной бытовой техникой.
Для жителей в комплексе предусмотрены фитнес-зал, коворкинг, ресторан с панорамными видами на город на последнем этаже, коммерческие и общественные помещения на 1 этаже. Проект ориентирован на комфорт и приватность, а виды на центр Москвы, включая Кремль, станут частью повседневного пространства.
Комплекс расположен в сердце столицы — на Новом Арбате, рядом со сквером Н. В. Гоголя, кинотеатром Художественный и рестораном Прага. В радиусе 5–10 минут пешком находятся школы, детские сады, музеи, парки, театры, медицинские центры, магазины и кафе. До станции метро Арбатская площадь — 5 минут пешком, а до метро Александровский сад — 10 минут. За 15 минут пешком можно добраться до Патриарших прудов.

