Жилой комплекс «Школьный» — семейный проект, возведенный по технологии кирпично-монолитного строительства с фасадами, облицованными кирпичом. В здании имеются пассажирский и грузовой лифты.
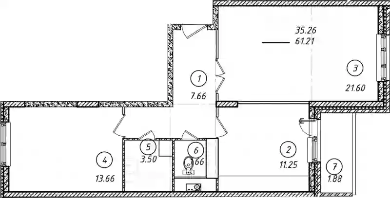
В проекте представлены 1-комнатные и 2х-комнатные планировочные решения. Все лоты сдаются без отделки с высотой потолков 2,7 метра.
Для семейного отдыха на территории комплекса имеется благоустроенный двор с детскими и спортивными площадками. Для владельцев автомобилей предусмотрена открытая стоянка.
Жилой комплекс «Школьный» расположен в районе с развитой инфраструктурой — в пешей доступности детские сады и школы, спортивные комплексы и торговые центры, медицинские учреждения, парки, кафе и рестораны. От МКАД Климовск удален на 21 километр. До метро «Подольск» 20 минут транспортом.
