
Жилой комплекс бизнес-класса состоит из 3 башен высотой 31 этаж, объединенных общим стилобатом. Здания выполнены по кирпично-монолитной технологии с вентилируемым фасадом из керамогранита. Нижняя часть оформлена в терракотовых и графитовых оттенках, а верхняя — в серебристых тонах со стеклянными вставками. В домах предусмотрены грузовые лифты и дизайнерские входные группы с местами для велосипедов и колясок
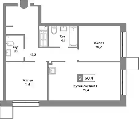
В проекте представлены студии и квартиры с 1–3 комнатами. Основная часть лотов спроектирована по стандартам евроформата с просторной кухней-гостиной, также доступны планировки с изолированной кухней. Высота потолков составляет 2,85 м на типовых этажах и 6 м на последних. На верхних этажах размещены пентхаусы с панорамными окнами и видами на Опалиховский лесопарк. Остальные квартиры оборудованы стандартными окнами с улучшенной шумоизоляцией. Отделка выполнена в подчистовом формате или без стен — в зависимости от корпуса.
В стилобатной части комплекса размещены коммерческие помещения. На стилобате обустроен двор с местами для прогулок и смотровой площадкой. Предусмотрен многоуровневый подземный паркинг с системой распознавания номеров, а также система умного дома с доступом в подъезд и на территорию через мобильное приложение. Безопасность обеспечивают круглосуточная охрана и видеонаблюдение.
Проект расположен в городе Красногорск Московской области, в самой высокой точке города. В 5–20 минутах пешком находятся детские сады, школы, медицинские учреждения, магазины, кафе, аптеки, фитнес-клубы, торговые центры и природные зоны — Опалиховский лесопарк, Изумрудные холмы и Губайловский экопарк. До станции Павшино (линия D2) — 10 минут транспортом, до МКАД — 15 минут, до ТТК — 25 минут, а до центра Москвы — 35 минут.
