
Жилой комплекс представляет собой 51-этажный небоскреб высотой 181 метр. Здание построено по кирпично-монолитной технологии, а вентилируемые фасады отделаны керамогранитом. Проект отличается футуристичной архитектурой с захватывающим визуальным эффектом, который разработан в сотрудничестве с архитектурным бюро СПИЧ. Благодаря игре света внешний вид здания меняется в зависимости от времени суток и погодных условий.
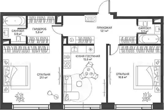
В проекте представлены студии и квартиры с 1, 2 и 3 комнатами, в которых предусмотрены потолки от 3 метров и панорамные окна. Помещения идут без внутренней отделки, что дает возможность будущим владельцам самостоятельно организовать пространство. Для удобства жителей установлена система умный дом, которая позволяет через мобильное приложение управлять доступом в квартиру и видеонаблюдением.
В комплексе спроектировано мультимедийное лобби со сценарным освещением и звуковым сопровождением, которые меняются в зависимости от сезона или времени суток. Жителям также доступно общественное пространство SocialHUB, где есть офисы, зал для мероприятий и кинозал. Благоустроенный двор от бюро Wowhaus делится на 6 зон: открытый амфитеатр, ландшафтный парк со сложным рельефом, детская площадка, а также спортивные зоны для воркаута, настольного тенниса, сквоша и стритбола.
Проект расположен в районе Западное Дегунино, на Дмитровском шоссе. На территории доступны школы, детские сады, медицинские учреждения, супермаркеты, рестораны и кафе, а в 10 минутах пешком находится парк Святослава Федорова. До метро Селигерская можно добраться за 10 минут пешком, а до станции Верхние Лихоборы — за 15 минут. Дорога до Красной площади займет 45 минут транспортом.
