Проект «Sydney City» включает в себя 33 жилых корпуса переменной этажности. Каскадное расположение домов позволяет максимально обеспечить квартиры панорамными видами на центр города и Москва-сити. В основе проекта концепция Well-being, которая заботится о благополучии жильцов. Места общего пользования выполнены по индивидуальным дизайн проектам.
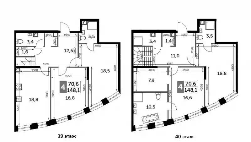
Покупателям в ЖК «Sydney City» предложено множество планировочных решений: в наличии квартиры, как классического типа, так и европланировки. Они сдаются без отделки, с подчистовой отделкой White box или с одним из 8 вариантов чистовой отделки от дизайн-бюро класса де-люкс. Во всех помещениях предусмотрена система «Умная квартира» для управления всеми приборами, электрикой и светом.
Комплекс имеет собственную инфраструктуру: спортивные площадки, студии, SPA и медицинские учреждения, кафе и магазины. Предусмотрен выход на благоустроенную набережную Москва-реки.
ЖК находится в районе Хорошево-Мневниках на улице Шеногина. В пешей доступности находится 7 природных парков. Метро «Шелепиха» находится в 20 минутах пешком от жилого квартала.
