
Жилой комплекс состоит из 3 кирпично-монолитных корпусов высотой от 15 до 24 этажей. Здания в неоклассическом стиле станут новой архитектурной доминантой района. Фасады зданий облицованы натуральным камнем с эксклюзивный декором. Инфраструктура лобби продумана с особым вниманием к потребностям жителей. В лобби размещены: фитнес, детская, бьюти-рум, репетиторская и деловое пространство с коворкингом, переговорной и сигарной. В отдельных сьютах могут остановиться гости жителей. Для сервисных служб предусмотрен отдельный лифт, для курьеров — отдельная зона.
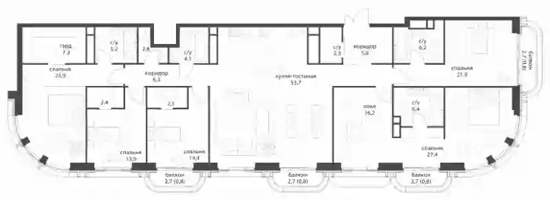
В комплексе предложен большой выбор элитных лотов: от функциональных однокомнатных квартир до семейных резиденций и пентхаусов со вторым светом. Есть и редкие форматы: с окнами в ванных, молированным угловым остеклением, возможностью установки камина. В квартирах спроектированы панорамные окна «в пол» и двухстворчатые двери. В более чем 50% квартир предусмотрены террасы, лоджии и балконы. Квартиры сдаются без отделки и внутренних перегородок.
Только для жителей на территории предусмотрен трехуровневый фитнес-центр с бассейном, залом для групповых занятий, тренажерным залом, хаммамом и массажным кабинетом. Комплекс имеет благоустроенный зеленый двор площадью 1,8 гектара. В нем размещены фонтаны, патио, галерея, лаунжи, зеленые кабинеты и событийная площадь. Для детей оборудованы современные игровые площадки. На двух подземных этажах предусмотрены двухуровневый паркинг с возможностью установки зарядки для электрокаров, зоны для хранения колясок и велосипедов, кладовые помещения для сезонных вещей.
Жилой комплекс находится в районе Замоскворечье, на улице Большая Татарская. В непосредственной близости расположены парки «Зарядье», Михайловский сад и Репинский сквер. Также здесь есть множество культурных достопримечательностей: Третьяковская галерея, Дом Музыки, театральный музей им. А.А. Бахрушина, театр на Малой Ордынке. Насладиться кулинарными изысками можно в ресторанах Bjorn, Le Carre, El Gaucho, Tacobar, «Рыба Мечты» и «Стейк Хаус Бутчер». Для получения качественного образования открыты двери школ № 627 и № 1259, гимназии при РГУ им. А.Н. Косыгина, колледжа МИД РФ и МГАРХИ им. В.И. Сурикова. Комплекс находится в 10 минутах езды от Кремля и Павелецкого вокзала, в пешей доступности метро «Новокузнецкая» и «Павелецкая».
