











Жилой комплекс «TATE» включает в себя две жилые башни высотой 41 и 49 этажей и 6-этажный общественно-деловой центр. Архитектурная концепция проекта в стиле современного минимализма разработана бюро Kleinewelt Architekten. Вход во все три здания проходит через стилобат, служащий просторным лобби, в котором размещены колясочные и лапомойки, гостевые санузлы, стойки ресепшен и постаматы. Второй этаж зданий занимает общественное пространство, оформленное в виде остекленного променада. В каждой башне установлено 6 современных скоростных лифтов. На двух подземных уровнях комплекса расположены паркинг и кладовые помещения. Кладовки предусмотрены также и на жилых этажах.
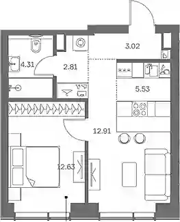
В ЖК «TATE» предложено множество планировочных решений от студий до пятикомнатных квартир с высокими потолками до 4,5 метра и панорамным остеклением. На 40 и 41 этажах башни B размещены просторные видовые пентхаусы. Квартиры сдаются с отделкой White Box или с чистовой отделкой.
На закрытой территории комплекса выполнен ландшафтный дизайн с арт-объектами и круглогодичное озеленение, оборудованы детские площадки и зоны отдыха под открытым небом. Внутренний двор огорожен от городского пространства искусственным холмом с садом. На высоте 140 метров для жителей комплекса открыта смотровая площадка с панорамным видом на город. В общественно-деловом центре размещены офисы, концептуальный ресторан и фитнес-центр с бассейном.
ЖК «TATE» расположен на улице Веткина, внутри исторического района Марьина Роща. В пешей доступности имеются две школы, три детских сада, торговый центр «Капитолий», «Музей ВДНХ» торгово-развлекательный центр «Райкин Плаза», «Музей и Центр Толерантности». Метро «Марьина Роща» и одноименная железнодорожная станция в 5 минутах пешком.

Жилой комплекс «Равновесие» — дома клубного формата от 4 до 6 этажей. Благодаря низкой плотности застройки изо всех окон открывается живописный вид. Фасад выполнен из штукатурки белого и шоколадного цвета. В корпусах выполнена дизайнерская отделка входных групп.
В ЖК «Равновесие» предложено множество планировочных решений: в наличии квартиры, как классического типа, так и европланировки. Они сдаются без стен и высотой потолков 2,7 метра. В планировках спроектировано патио и террасы на верхних этажах.
В проекте предусмотрена концепция «двор без машин». На придомовой территории расположились зеленые зоны, благоустроенные прогулочные бульвары, детские и спортивные площадки. На территории комплекса находится детский сад и школа. Для владельцев автомобилей предусмотрена стоянка.
ЖК «Равновесие» находится в Одинцовском районе. Инфраструктура развита, рядом с комплексом находятся: школы,детские сады, медицинские учреждения, магазины, кафе, банкоматы, ТЦ. До метро «Кунцевская» — 35 минут транспортом.
Жилой комплекс «Равновесие» — дома клубного формата от 4 до 6 этажей. Благодаря низкой плотности застройки изо всех окон открывается живописный вид. Фасад выполнен из штукатурки белого и шоколадного цвета. В корпусах выполнена дизайнерская отделка входных групп.
В ЖК «Равновесие» предложено множество планировочных решений: в наличии квартиры, как классического типа, так и европланировки. Они сдаются без стен и высотой потолков 2,7 метра. В планировках спроектировано патио и террасы на верхних этажах.
В проекте предусмотрена концепция «двор без машин». На придомовой территории расположились зеленые зоны, благоустроенные прогулочные бульвары, детские и спортивные площадки. На территории комплекса находится детский сад и школа. Для владельцев автомобилей предусмотрена стоянка.
ЖК «Равновесие» находится в Одинцовском районе. Инфраструктура развита, рядом с комплексом находятся: школы,детские сады, медицинские учреждения, магазины, кафе, банкоматы, ТЦ. До метро «Кунцевская» — 35 минут транспортом.
Жилой комплекс «Равновесие» — дома клубного формата от 4 до 6 этажей. Благодаря низкой плотности застройки изо всех окон открывается живописный вид. Фасад выполнен из штукатурки белого и шоколадного цвета. В корпусах выполнена дизайнерская отделка входных групп.
В ЖК «Равновесие» предложено множество планировочных решений: в наличии квартиры, как классического типа, так и европланировки. Они сдаются без стен и высотой потолков 2,7 метра. В планировках спроектировано патио и террасы на верхних этажах.
В проекте предусмотрена концепция «двор без машин». На придомовой территории расположились зеленые зоны, благоустроенные прогулочные бульвары, детские и спортивные площадки. На территории комплекса находится детский сад и школа. Для владельцев автомобилей предусмотрена стоянка.
ЖК «Равновесие» находится в Одинцовском районе. Инфраструктура развита, рядом с комплексом находятся: школы,детские сады, медицинские учреждения, магазины, кафе, банкоматы, ТЦ. До метро «Кунцевская» — 35 минут транспортом.
Жилой комплекс «Равновесие» — дома клубного формата от 4 до 6 этажей. Благодаря низкой плотности застройки изо всех окон открывается живописный вид. Фасад выполнен из штукатурки белого и шоколадного цвета. В корпусах выполнена дизайнерская отделка входных групп.
В ЖК «Равновесие» предложено множество планировочных решений: в наличии квартиры, как классического типа, так и европланировки. Они сдаются без стен и высотой потолков 2,7 метра. В планировках спроектировано патио и террасы на верхних этажах.
В проекте предусмотрена концепция «двор без машин». На придомовой территории расположились зеленые зоны, благоустроенные прогулочные бульвары, детские и спортивные площадки. На территории комплекса находится детский сад и школа. Для владельцев автомобилей предусмотрена стоянка.
ЖК «Равновесие» находится в Одинцовском районе. Инфраструктура развита, рядом с комплексом находятся: школы,детские сады, медицинские учреждения, магазины, кафе, банкоматы, ТЦ. До метро «Кунцевская» — 35 минут транспортом.
Жилой комплекс «Равновесие» — дома клубного формата от 4 до 6 этажей. Благодаря низкой плотности застройки изо всех окон открывается живописный вид. Фасад выполнен из штукатурки белого и шоколадного цвета. В корпусах выполнена дизайнерская отделка входных групп.
В ЖК «Равновесие» предложено множество планировочных решений: в наличии квартиры, как классического типа, так и европланировки. Они сдаются без стен и высотой потолков 2,7 метра. В планировках спроектировано патио и террасы на верхних этажах.
В проекте предусмотрена концепция «двор без машин». На придомовой территории расположились зеленые зоны, благоустроенные прогулочные бульвары, детские и спортивные площадки. На территории комплекса находится детский сад и школа. Для владельцев автомобилей предусмотрена стоянка.
ЖК «Равновесие» находится в Одинцовском районе. Инфраструктура развита, рядом с комплексом находятся: школы,детские сады, медицинские учреждения, магазины, кафе, банкоматы, ТЦ. До метро «Кунцевская» — 35 минут транспортом.
Жилой комплекс «Равновесие» — дома клубного формата от 4 до 6 этажей. Благодаря низкой плотности застройки изо всех окон открывается живописный вид. Фасад выполнен из штукатурки белого и шоколадного цвета. В корпусах выполнена дизайнерская отделка входных групп.
В ЖК «Равновесие» предложено множество планировочных решений: в наличии квартиры, как классического типа, так и европланировки. Они сдаются без стен и высотой потолков 2,7 метра. В планировках спроектировано патио и террасы на верхних этажах.
В проекте предусмотрена концепция «двор без машин». На придомовой территории расположились зеленые зоны, благоустроенные прогулочные бульвары, детские и спортивные площадки. На территории комплекса находится детский сад и школа. Для владельцев автомобилей предусмотрена стоянка.
ЖК «Равновесие» находится в Одинцовском районе. Инфраструктура развита, рядом с комплексом находятся: школы,детские сады, медицинские учреждения, магазины, кафе, банкоматы, ТЦ. До метро «Кунцевская» — 35 минут транспортом.
Жилой комплекс «Равновесие» — дома клубного формата от 4 до 6 этажей. Благодаря низкой плотности застройки изо всех окон открывается живописный вид. Фасад выполнен из штукатурки белого и шоколадного цвета. В корпусах выполнена дизайнерская отделка входных групп.
В ЖК «Равновесие» предложено множество планировочных решений: в наличии квартиры, как классического типа, так и европланировки. Они сдаются без стен и высотой потолков 2,7 метра. В планировках спроектировано патио и террасы на верхних этажах.
В проекте предусмотрена концепция «двор без машин». На придомовой территории расположились зеленые зоны, благоустроенные прогулочные бульвары, детские и спортивные площадки. На территории комплекса находится детский сад и школа. Для владельцев автомобилей предусмотрена стоянка.
ЖК «Равновесие» находится в Одинцовском районе. Инфраструктура развита, рядом с комплексом находятся: школы,детские сады, медицинские учреждения, магазины, кафе, банкоматы, ТЦ. До метро «Кунцевская» — 35 минут транспортом.
Жилой комплекс «Равновесие» — дома клубного формата от 4 до 6 этажей. Благодаря низкой плотности застройки изо всех окон открывается живописный вид. Фасад выполнен из штукатурки белого и шоколадного цвета. В корпусах выполнена дизайнерская отделка входных групп.
В ЖК «Равновесие» предложено множество планировочных решений: в наличии квартиры, как классического типа, так и европланировки. Они сдаются без стен и высотой потолков 2,7 метра. В планировках спроектировано патио и террасы на верхних этажах.
В проекте предусмотрена концепция «двор без машин». На придомовой территории расположились зеленые зоны, благоустроенные прогулочные бульвары, детские и спортивные площадки. На территории комплекса находится детский сад и школа. Для владельцев автомобилей предусмотрена стоянка.
ЖК «Равновесие» находится в Одинцовском районе. Инфраструктура развита, рядом с комплексом находятся: школы,детские сады, медицинские учреждения, магазины, кафе, банкоматы, ТЦ. До метро «Кунцевская» — 35 минут транспортом.
Жилой комплекс «TATE» включает в себя две жилые башни высотой 41 и 49 этажей и 6-этажный общественно-деловой центр. Архитектурная концепция проекта в стиле современного минимализма разработана бюро Kleinewelt Architekten. Вход во все три здания проходит через стилобат, служащий просторным лобби, в котором размещены колясочные и лапомойки, гостевые санузлы, стойки ресепшен и постаматы. Второй этаж зданий занимает общественное пространство, оформленное в виде остекленного променада. В каждой башне установлено 6 современных скоростных лифтов. На двух подземных уровнях комплекса расположены паркинг и кладовые помещения. Кладовки предусмотрены также и на жилых этажах.
В ЖК «TATE» предложено множество планировочных решений от студий до пятикомнатных квартир с высокими потолками до 4,5 метра и панорамным остеклением. На 40 и 41 этажах башни B размещены просторные видовые пентхаусы. Квартиры сдаются с отделкой White Box или с чистовой отделкой.
На закрытой территории комплекса выполнен ландшафтный дизайн с арт-объектами и круглогодичное озеленение, оборудованы детские площадки и зоны отдыха под открытым небом. Внутренний двор огорожен от городского пространства искусственным холмом с садом. На высоте 140 метров для жителей комплекса открыта смотровая площадка с панорамным видом на город. В общественно-деловом центре размещены офисы, концептуальный ресторан и фитнес-центр с бассейном.
ЖК «TATE» расположен на улице Веткина, внутри исторического района Марьина Роща. В пешей доступности имеются две школы, три детских сада, торговый центр «Капитолий», «Музей ВДНХ» торгово-развлекательный центр «Райкин Плаза», «Музей и Центр Толерантности». Метро «Марьина Роща» и одноименная железнодорожная станция в 5 минутах пешком.
Жилой комплекс состоит из 9 зданий высотой от 7 до 64 этажей. Проект возведен по кирпично-монолитной технологии с вентилируемыми фасадами из керамогранита для обеспечения надежности и энергоэффективности конструкции. Он спроектирован как комфортная городская среда, в которой гармонично сочетаются приватность, технологичность и эстетика. Здания оснащены пассажирскими и грузовыми лифтами.
В проекте представлены квартиры с 1–4 комнатами, включая европланировки, двухуровневые форматы, варианты с террасами, лоджиями, а также опции с мастер-спальнями и гардеробными. В помещениях установлены увеличенные или панорамные окна, а высота потолков варьируется от 2,85 до 3,1 м. Из некоторых квартир открываются виды на Москву-реку. Также, для дополнительного комфорта жильцов, предусмотрены системы умного дома и климат-контроля.
Комплекс спроектирован как полноценное общественное пространство с ландшафтным дизайном и прогулочными аллеями. На придомовой территории оборудованы детские и спортивные площадки с применением технологии геопластики. Центральным элементом является амфитеатр для встреч и мероприятий. Установлена арт-инсталляция Люминетика для зрительного и тактильного взаимодействия. Владельцам авто доступен подземный паркинг с зарядными станциями для электромобилей.
Проект расположен в районе Печатники Юго-Восточного округа, в 50 минутах транспортом от центра Москвы. В пределах 15–20 минут пешком есть все необходимое для комфортной жизни: школы, детские сады, поликлиники, торговые центры, а также набережная Москвы-реки. До метро Печатники можно добраться за 10 минут транспортом, а до ТТК — за 15 минут.
Жилой комплекс состоит из 9 зданий высотой от 7 до 64 этажей. Проект возведен по кирпично-монолитной технологии с вентилируемыми фасадами из керамогранита для обеспечения надежности и энергоэффективности конструкции. Он спроектирован как комфортная городская среда, в которой гармонично сочетаются приватность, технологичность и эстетика. Здания оснащены пассажирскими и грузовыми лифтами.
В проекте представлены квартиры с 1–4 комнатами, включая европланировки, двухуровневые форматы, варианты с террасами, лоджиями, а также опции с мастер-спальнями и гардеробными. В помещениях установлены увеличенные или панорамные окна, а высота потолков варьируется от 2,85 до 3,1 м. Из некоторых квартир открываются виды на Москву-реку. Также, для дополнительного комфорта жильцов, предусмотрены системы умного дома и климат-контроля.
Комплекс спроектирован как полноценное общественное пространство с ландшафтным дизайном и прогулочными аллеями. На придомовой территории оборудованы детские и спортивные площадки с применением технологии геопластики. Центральным элементом является амфитеатр для встреч и мероприятий. Установлена арт-инсталляция Люминетика для зрительного и тактильного взаимодействия. Владельцам авто доступен подземный паркинг с зарядными станциями для электромобилей.
Проект расположен в районе Печатники Юго-Восточного округа, в 50 минутах транспортом от центра Москвы. В пределах 15–20 минут пешком есть все необходимое для комфортной жизни: школы, детские сады, поликлиники, торговые центры, а также набережная Москвы-реки. До метро Печатники можно добраться за 10 минут транспортом, а до ТТК — за 15 минут.
Проект «ILOVE» включает в себя 5 жилых корпусов высотой от 11до 35 этажей. Концепция комплекса разработана в международной компании «AECOM».
В ЖК «ILOVE» предложено множество планировочных решений: в наличии квартиры, как классического типа, так и европланировки. В них предусмотрено панорамное остекление, высота потолков— 3,1 метра и виды на Останкинскую башню и ВДНХ. Квартиры оснащены системой «Умный дом». Она позволяет дистанционно регулировать освещение, климат, контролировать работу бытовой техники, инженерных сетей и оплачивать коммунальные услуги.
В состав внутренней инфраструктуры комплекса «ILOVE» входит детский сад на 250 мест и школа на 560 мест. Территория комплекса закрыта от машин и случайных прохожих. Дворы благоустроены игровыми и спортивными площадками, клумбами, газонами и прогулочными дорожками. Для владельцев автомобилей предусмотрен паркинг с лифтом.
ЖК «ILOVE» расположен на улице Бочкова в СВАО Москвы. В шаговой доступности от комплекса находится Звездный бульвар, знаменитая усадьба «Останкино», магазины, кафе, рынок фермерских продуктов, оборудованные места для пикника. Метро «Алексеевская» находится в 10 минутах пешком.
Проект «ILOVE» включает в себя 5 жилых корпусов высотой от 11до 35 этажей. Концепция комплекса разработана в международной компании «AECOM».
В ЖК «ILOVE» предложено множество планировочных решений: в наличии квартиры, как классического типа, так и европланировки. В них предусмотрено панорамное остекление, высота потолков— 3,1 метра и виды на Останкинскую башню и ВДНХ. Квартиры оснащены системой «Умный дом». Она позволяет дистанционно регулировать освещение, климат, контролировать работу бытовой техники, инженерных сетей и оплачивать коммунальные услуги.
В состав внутренней инфраструктуры комплекса «ILOVE» входит детский сад на 250 мест и школа на 560 мест. Территория комплекса закрыта от машин и случайных прохожих. Дворы благоустроены игровыми и спортивными площадками, клумбами, газонами и прогулочными дорожками. Для владельцев автомобилей предусмотрен паркинг с лифтом.
ЖК «ILOVE» расположен на улице Бочкова в СВАО Москвы. В шаговой доступности от комплекса находится Звездный бульвар, знаменитая усадьба «Останкино», магазины, кафе, рынок фермерских продуктов, оборудованные места для пикника. Метро «Алексеевская» находится в 10 минутах пешком.

