Жилой комплекс бизнес-класса представляет собой 44-этажное здание, возведенное по кирпично-монолитной технологии. Наружная отделка выполнена фасадным остеклением и системой ламелей в виде лент, формирующих объемную пластику фасада. В здании предусмотрены пассажирские и грузовые лифты. Входная группа оформлена двусветным гранд-лобби с высотой потолков 8,2 метра, лифтовые холлы дополнены световым мэппингом и круглосуточной стойкой ресепшен с консьержем.
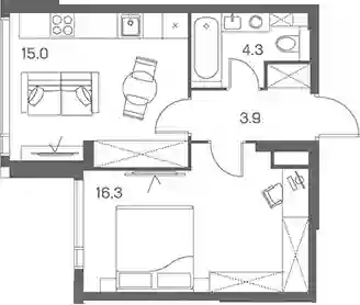
В проекте представлены студии и квартиры с 1–5 комнатами, включая европланировки. Площади лотов варьируются от 28 до 183 кв. м. Доступны квартиры с мастер-спальнями, отдельными постирочными и гардеробныыми. Предусмотрены пентхаусы и квартиры с террасами. Установлены панорамные окна, виды на реку Москва открываются с 20 этажа в северо-восточном, восточном и юго-восточном направлениях, виды на центр города — с 36 этажа в северо-западном направлении. Высота потолков в типовых квартирах составляет 3 м, на 43 этаже — 4,4 м. Студии и 1-комнатные квартиры передаются с отделкой white box, квартиры от 2 комнат и более — без отделки. Реализована система умного дома inHome 4.0.
Для резидентов предусмотрен фиджитал фитнес-рум с кардио- и силовыми тренажерами, студией для стрейтчинга и аэробики, зоной для йоги в гамаках и балетным классом со станком. На территории оборудован сад-трансформер с мобильным озеленением и двухуровневым павильоном с открытой спортивной площадкой и лаунж-зоной, рядом размещена развивающая игровая площадка. Также доступен event-lounge для проведения мероприятий резидентов. Работают видеонаблюдение и система контроля доступа. Для автомобилей предусмотрен подземный паркинг с зарядными станциями для электромобилей.
Проект расположен в Южном административном округе Москвы, на пересечении исторических районов Замоскворечье и Даниловский. В 5–20 минутах пешком находятся детские сады, школы, колледжи, вузы, медицинские учреждения, магазины, аптеки, пункты выдачи, кафе и рестораны, салоны красоты, фитнес-клубы, парки и торговые центры, Дербеневская набережная. До Садового кольца и ТТК — 10 минут транспортом, до центра города — 15 минут, до Москва-Сити — 20 минут, до аэропорта Внуково — 40 минут. Станция метро Павелецкая находится в 10 минутах пешком.
