
Жилой комплекс состоит из 3 корпусов с уникальной архитектурой. Корпус 8 представлен монолитным небоскребом высотой 47 этажей, форма которого напоминает кристалл с выступающими за плоскость фасада элементами. Его архитектура сочетает современную геометрию стеклянных эркеров с теплыми оттенками клинкерного кирпича цвета горького шоколада. Корпуса 9.1 и 9.2 по 28 этажей объединены общим стилобатом. Фасады зданий облицованы клинкерным кирпичом природного оттенка и металлическими кассетами цвета натуральной меди. В оконных блоках используется черно-серый стемалит. Входные группы выполнены в концепции музея кристаллов — с зонами отдыха, пространством для встреч и арт-экспозиций.
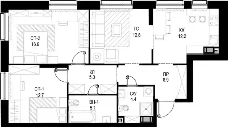
В проекте предлагаются квартиры с 1–4 комнатами. Все помещения оснащены увеличенными окнами, а в некоторых предусмотрены эркеры. На верхних этажах, начиная с 20-го или 23-го в зависимости от корпуса, расположены квартиры с видом на панораму города. В ряде планировок спроектированы мастер-спальни и гардеробные. Высота потолков достигает 3–3,65 м. Квартиры передаются без внутренних перегородок, что позволяет владельцам свободно организовать пространство.
Для жителей доступны подземный паркинг, торговая галерея, ландшафтный парк и спортивная инфраструктура. В парке оборудованы теннисный корт, беговые дорожки, спортивные площадки и уличные тренажеры под навесами, а также многофункциональное поле для футбола и волейбола. Работает room-сервис, где предоставляются услуги няни, клининга, мастера на дом, курьера и дизайн-консультанта. Дворы полностью изолированы от автомобилей, а въезды в подземные паркинги расположены со стороны улицы.
Проект находится в районе Хорошево-Мневники в Северо-Западном административном округе Москвы. В 5–15 минутах пешком расположены детские сады, школы, прогимназии, колледжи, вузы, медицинские учреждения, магазины, аптеки, кафе, рестораны, пункты выдачи, салоны красоты и фитнес-клубы. До станции метро Народное Ополчение можно добраться за 20 минут пешком. Дорога до ТТК занимает 10 минут транспортом, до центра города — 20 минут, до МКАД — 25 минут, а до аэропорта Шереметьево — около 30 минут.
