Жилой комплекс «Twelve» — современный проект архитектурных бюро HAAST и GENPRO, возведенный по технологии кирпично-монолитного строительства с вентилируемыми фасадами из кирпича. В комплексе предусмотрены душевые для мытья лап собак и велосипедных колес. В лобби расположен ресепшен и лаунж-зоны. Вход осуществляется через биометрический доступ.
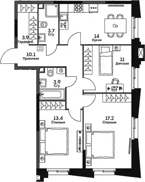
В проекте представлено множество планировочных решений — от студий до 5-комнатных квартир, среди которых квартиры Top Floor. Все лоты сдаются с базовой отделкой, увеличенными или панорамными окнами и высотой потолков до 4,1 метров.
Территория комплекса благоустроена — ландшафтный дизайн выполнен бюро GAFA. Имеется детский сад на 120 мест, для автовладельцев предусмотрен 2-уровневый подземный паркинг. Ведется круглосуточное видеонаблюдение.
Жилой комплекс «Twelve» расположен в Нагорном районе Москвы. Инфраструктура района развита хорошо — в пешей доступности находятся продовольственные магазины, образовательные учреждения, салоны красоты, СПА, торговые и спортивные центры. До станции метро «Нагорная» дорога занимает 10 минут пешком.
